Angebot 5229 von 16368

Anbieter kontaktieren

AGB, Datenschutz & Verbraucherhinweis wurden gelesen und akzeptiert.

HausHirsch GmbH

Ulrich Maikranz
40211 Düsseldorf
  • Mehr erfahren
bellevue.de-ID: 30613305

Edel, geräumig, saniert _ schönes Haus in Rüsselsheim

  • Haus
  • · 7 Zimmer
  • · 188 m² Wohnfläche
  • · 481 m² Grundstücksfläche
  • · 699.000 € Kaufpreis
Anbieter kontaktieren

Objektbeschreibung

Warum dieses außergewöhnlich sanierte Zwei-Familien-Reihenendhaus in 65428 Rüsselsheim, eine seltene Gelegenheit ist:

Zum Verkauf steht unsere edel, modern und mit viel Liebe zum Detail sanierte Doppelhaushälfte mit 178 m² Wohnfläche auf einem ...mehr lesen
Warum dieses außergewöhnlich sanierte Zwei-Familien-Reihenendhaus in 65428 Rüsselsheim, eine seltene Gelegenheit ist:

Zum Verkauf steht unsere edel, modern und mit viel Liebe zum Detail sanierte Doppelhaushälfte mit 178 m² Wohnfläche auf einem ruhigen, grünen Gartengrundstück von 481 m². Das Haus befindet sich in einer der begehrtesten Wohnlagen Rüsselsheims – zentrumsnah, sehr ruhig gelegen und nur wenige Schritte vom Ostpark, Tennisanlagen, Metzger, Bäcker und einem Einkaufszentrum entfernt. Die Nachbarschaft ist angenehm, mit großem Abstand zu den angrenzenden Grundstücken und einem weiten, unverbauten Blick ins Grüne. Der Fluglärm ist erfreulich gering.

Ruhige, grüne Lage mit hoher Lebensqualität – ideal für Familien.

Ein Haus zum Wohlfühlen – hell, offen und hochwertig saniert.

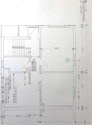
Das Erdgeschoss beeindruckt mit einem lichtdurchfluteten, offenen Wohn-, Ess- und Küchenbereich. Bodentiefe Fenster, hohe Räume und Echtholzböden schaffen ein modernes, warmes Wohnambiente. Zusätzlich befindet sich im Erdgeschoss ein kleines Bad mit ebenerdiger Dusche und WC.

Im 1. Obergeschoss erwarten Sie:
- ein großes, exklusives Badezimmer mit Badewanne und begehbarer Dusche
- ein separates WC mit Bidet
- zwei großzügige Schlafzimmer mit 20 m² und 16 m²
- ein kleiner Balkon mit Blick ins Grüne

Das 2. Obergeschoss bietet nochmals viel Raum:
- drei Zimmer, davon zwei ohne Dachschräge
- eine zusätzliche Toilette mit Waschbecken
- überall hohe Decken – ein Seltenheitswert in dieser Bauform

Das Haus war mal ein Zwei-Familienhaus ... es kann _ durch das separate Treppenhaus _ leicht auch wieder zu einem Zwei-Familien-Haus umgebaut werden ...

Immobiliendetails

  • Nutzungsart
    Wohnen
  • Objektart
    Doppelhaushälfte
  • Hauptobjektart
    Haus
  • Vertragsart
    Kauf
  • Baujahr
    1952
  • Zimmer (gesamt)
    7
  • Anzahl Schlafzimmer
    5
  • Anzahl Badezimmer
    2
  • Wohnfläche (ca.)
    188 m²
  • Grundstücksfläche (ca.)
    481 m²
  • Küche
    Einbauküche (EBK)
  • Balkon
    1
  • Balkon/Terrasse (ca.)
    2 m²
  • Bad
    Duschbad, Bad mit Dusche und Badewanne, Bad mit Fenster
  • Anzahl Etagen
    3
  • Letzte Modernisierung
    2024
  • Fußboden
    Parkett
  • Anbieter-Objektnummer
    HA2528202

Preise & Kosten

  • Courtage
    Die angegebene Käuferprovision (inkl. MwSt.) ist verdient und fällig mit Beurkundung des notariellen Kaufvertrages.

    5,50 % inklusive der gesetzlichen Mehrwertsteuer

Energie

  • Gebäudeart
    Wohngebäude

Ausstattung

  • Gäste-WC
  • Garten
  • Keller
Hochwertige Sanierung & moderne Ausstattung
- Edle Echtholzböden
- Qualitative Holzfenster
- Gasheizung
- Neuer Sicherungskasten
- Wallbox an der Außenwand für das Elektroauto
- Alle Arbeiten aufwändig, stilvoll und nachhaltig ausgeführt

Preisbewertung der ...mehr lesen
Hochwertige Sanierung & moderne Ausstattung
- Edle Echtholzböden
- Qualitative Holzfenster
- Gasheizung
- Neuer Sicherungskasten
- Wallbox an der Außenwand für das Elektroauto
- Alle Arbeiten aufwändig, stilvoll und nachhaltig ausgeführt

Preisbewertung der Deutschen Bank liegt vor

Standort & Lage

Perfekte Infrastruktur & Anbindung

Die Lage überzeugt durch ihre hervorragende Verkehrsanbindung:
Optimale Autobahnanbindung (A60 / A67) – ideal für Pendler ins Rhein-Main-Gebiet
Sehr gutes Busnetz mit schnellen Verbindungen zur Bahn / S-Bahn
Schulen, ...mehr lesen
Perfekte Infrastruktur & Anbindung

Die Lage überzeugt durch ihre hervorragende Verkehrsanbindung:
Optimale Autobahnanbindung (A60 / A67) – ideal für Pendler ins Rhein-Main-Gebiet
Sehr gutes Busnetz mit schnellen Verbindungen zur Bahn / S-Bahn
Schulen, Kindergärten, Ärzte, Restaurants und Einkaufsmöglichkeiten befinden sich im direkten Umfeld

65428 Rüsselsheim am Main · Hessen · DEU

Die genaue Anschrift erfahren Sie vom Anbieter

Ansprechpartner

Ulrich Maikranz

Dreischeibenhaus 6
40211 Düsseldorf
Verbraucherhinweis

Widerrufsbelehrung des Anbieters

(Gilt nicht für Wohnraummiete in Deutschland)

Widerrufsrecht für Verbraucher
Sie haben das Recht, binnen vierzehn Tagen ohne Angabe von Gründen diesen Vertrag zu widerrufen. Die Widerrufsfrist beträgt vierzehn Tage ab dem Tag des Vertragsabschlusses.
Um Ihr Widerrufsrecht auszuüben, müssen Sie uns (HausHirsch GmbH, Dreischeibenhaus 1, 40211D Düsseldorf, +49 0 800 000 1244, +49 211 8825025, info@haushirsch.de) mittels einer eindeutigen Erklärung (z. B. ein mit der Post versandter Brief, Telefax oder E-Mail) über Ihren Entschluss, diesen Vertrag zu widerrufen, informieren. Sie können dafür das beigefügte Muster-Widerrufsformular verwenden, das jedoch nicht vorgeschrieben ist. Zur Wahrung der Widerrufsfrist reicht es aus, dass Sie die Mitteilung über die Ausübung des Widerrufsrechts vor Ablauf der Widerrufsfrist absenden.

Folgen des Widerrufs
Wenn Sie diesen Vertrag widerrufen, haben wir Ihnen alle Zahlungen, die wir von Ihnen erhalten haben, einschließlich der Lieferkosten (mit Ausnahme der zusätzlichen Kosten, die sich daraus ergeben, dass Sie eine andere Art der Lieferung als die von uns angebotene, günstigste Standardlieferung gewählt haben), unverzüglich und spätestens binnen vierzehn Tagen ab dem Tag zurückzuzahlen, an dem die Mitteilung über Ihren Widerruf dieses Vertrags bei uns eingegangen ist. Für diese Rückzahlung verwenden wir dasselbe Zahlungsmittel, das Sie bei der ursprünglichen Transaktion eingesetzt haben, es sei denn, mit Ihnen wurde ausdrücklich etwas anderes vereinbart; in keinem Fall werden Ihnen wegen dieser Rückzahlung Entgelte berechnet. Haben Sie verlangt, dass die Dienstleistungen während der Widerrufsfrist beginnen soll, so haben Sie uns einen angemessenen Betrag zu zahlen, der dem Anteil der bis zu dem Zeitpunkt, zu dem Sie uns von der Ausübung des Widerrufsrechts hinsichtlich dieses Vertrags unterrichten, bereits erbrachten Dienstleistungen im Vergleich zum Gesamtumfang der im Vertrag vorgesehenen Dienstleistungen entspricht.

Muster-Widerrufsformular
(Wenn Sie den Vertrag widerrufen wollen, dann füllen Sie dieses Formular aus und senden Sie es zurück.)

An HausHirsch GmbH, Dreischeibenhaus 1, 40211D Düsseldorf, +49 0 800 000 1244, +49 211 8825025, info@haushirsch.de

Hiermit widerrufe ich/wir den von mir/uns abgeschlossenen Vertrag über den Kauf der folgenden Waren /die Erbringung der folgenden Dienstleistung


Bestellt am /erhalten am

Name des/der Verbraucher(s)

Anschrift des/der Verbraucher(s)

Unterschrift des/der Verbraucher(s) (nur bei Mitteilung auf Papier)

Datum


( Unzutreffendes streichen )


Hinweis auf die Möglichkeit eines vorzeitigen Erlöschens des Widerrufsrechts

Ihr Widerrufsrecht erlischt, wenn wir unsere Leistung vollständig erbracht haben und mit der Ausführung der Leistung erst begonnen haben, nachdem Sie Ihre ausdrückliche Zustimmung gegeben haben und gleichzeitig Ihre Kenntnis davon bestätigt haben, dass Sie Ihr Widerrufsrecht bei vollständiger Vertragserfüllung durch uns verlieren.

Impressum HausHirsch GmbH
VERTRETUNGSBERECHTIGTE/R
Marius Wolf


Dreischeibenhaus 1
40211D Düsseldorf
DEU
Tel.: +49 0 800 000 1244
E-Mail: info@haushirsch.de
Fax: +49 211 8825025
Homepage: https://haushirsch.de

ZUSTÄNDIGE AUFSICHTSBEHÖRDE
Die Gewerbeanmeldung nach § 34 c GewO wurde durch Stadt Düsseldorf (www.duesseldorf.de) erteilt.

HANDELSREGISTER-EINTRAG
Amtsgericht Düsseldorf, HRB 99093


UST-ID-NUMMER
DE362155160
Anbieter kontaktieren

AGB, Datenschutz & Verbraucherhinweis wurden gelesen und akzeptiert.