Angebot 8180 von 18215

Anbieter kontaktieren

AGB, Datenschutz & Verbraucherhinweis wurden gelesen und akzeptiert.

RE/MAX First, REM Immobilienmakler GmbH & Co KG

Martin F. Kny
1150 Wien
  • Mehr erfahren
bellevue.de-ID: 30612833

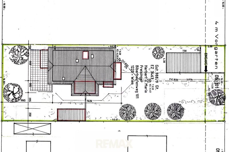
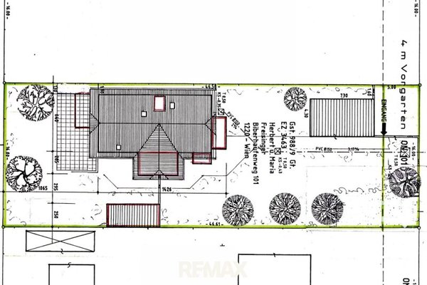
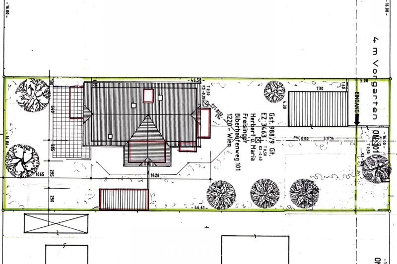
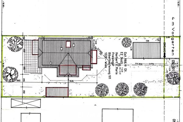
Grund für Mehrfamilienhaus

  • Grundstück
  • · 746 m² Grundstücksfläche
  • · 699.000 € Kaufpreis
Anbieter kontaktieren

Objektbeschreibung

Grund für Mehrfamilienhaus

Bauträgergrundstück

Das Grundstück befindet sich im Nahbereich des Oberen Mühlwassers und die Gegend ist geprägt von Einfamilienhäusern und den Erholungsflächen in der Lobau. Einkaufsmöglichkeiten und andere Einrichtungen ...mehr lesen
Grund für Mehrfamilienhaus

Bauträgergrundstück

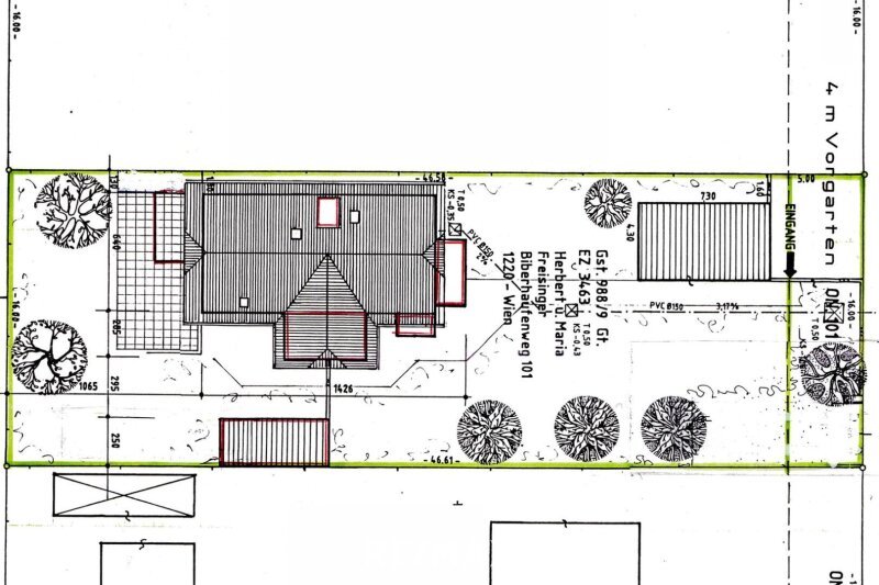
Das Grundstück befindet sich im Nahbereich des Oberen Mühlwassers und die Gegend ist geprägt von Einfamilienhäusern und den Erholungsflächen in der Lobau. Einkaufsmöglichkeiten und andere Einrichtungen sind im Nahbereich vorhanden. Durch die Busse 93A, 94A und N91 ist das Zentrum von Wien leicht erreichbar. Nach Abbruch des Bestandes könnte ein Mehrfamilienhaus oder attraktive Wohnungen errichtet werden. Das Grundstück ist komplett aufgeschlossen und es fallen keine zusätzlichen Kosten an.


Sind Sie neugierig geworden?
Dann vereinbaren Sie einfach einen Besichtigungstermin unter 0660-2061 480

Eckdaten:

Grundstück: ca.746m2
Widmung: W1, o, gk (Wohnen, offen oder gekoppelt)
Gebäudehöhe: 6,5m + Dachaufbau 4,5m


Maklerhonorar 3% plus 20% Ust
Wir bitten um Verständnis, dass auf Grund der Nachweispflicht gegenüber dem Eigentümer nur Anfragen mit vollständigen Kontaktdaten (Name, Adresse, Tel., Email) beantwortet werden können. Es wird darauf hingewiesen, dass die angeführten Daten auf Informationen des Eigentümers oder Dritter (z.B. Behörden) beruhen, sodass für die Richtigkeit keine Gewähr übernommen werden kann.

Der Vermittler ist als Doppelmakler tätig.


Infrastruktur / Entfernungen

Gesundheit
Arzt <1.000m
Apotheke <2.000m
Klinik <2.000m
Krankenhaus <2.000m

Kinder & Schulen
Schule <1.500m
Kindergarten <1.500m
Universität <3.000m
Höhere Schule <3.500m

Nahversorgung
Supermarkt <500m
Bäckerei <2.000m
Einkaufszentrum <4.000m

Sonstige
Geldautomat <2.000m
Bank <2.000m
Post <2.000m
Polizei <2.000m

Verkehr
Bus <500m
U-Bahn <2.000m
Straßenbahn <2.000m
Bahnhof <2.000m
Autobahnanschluss <2.500m

Angaben Entfernung Luftlinie / Quelle: OpenStreetMap

Immobiliendetails

  • Nutzungsart
    Wohnen
  • Objektart
    Wohngrundstück
  • Hauptobjektart
    Grundstück
  • Vertragsart
    Kauf
  • Grundstücksfläche (ca.)
    746 m²
  • Anbieter-Objektnummer
    1609/46508

Preise & Kosten

  • Courtage
    3 % inklusive der gesetzlichen Mehrwertsteuer

Standort & Lage

· 1220 Wien · AUT

Sonstiges

Anschlüsse

Gas: vorhanden

Kanal: vorhanden

Wasser: vorhanden

Strom: vorhanden

Starkstrom: vorhanden

Brunnen: vorhanden

Telefon: vorhanden

TV Kabel: nicht vorhanden

TV Sat: vorhanden

Internet: vorhanden

Fernwärme: nicht vorhanden

Senkgrube: nicht vorhanden

Anbieter

Logo von RE/MAX First, REM Immobilienmakler GmbH & Co KG

RE/MAX First, REM Immobilienmakler GmbH & Co KG

Frau Johanna Prosenik
Hietzinger Hauptstr. 22/D/9
1130 Wien, Hietzing

Ansprechpartner

Martin F. Kny

Eduard Süßgasse 8/31
1150 Wien
Verbraucherhinweis

Widerrufsbelehrung des Anbieters

(Gilt nicht für Wohnraummiete in Deutschland)

Widerrufsrecht für Verbraucher
Sie haben das Recht, binnen vierzehn Tagen ohne Angabe von Gründen diesen Vertrag zu widerrufen. Die Widerrufsfrist beträgt vierzehn Tage ab dem Tag des Vertragsabschlusses.
Um Ihr Widerrufsrecht auszuüben, müssen Sie uns (REM Immobilienmakler GmbH & Co KG, Hietzinger Hauptstr. 22/D/9, 1130 Wien, Hietzing, 0043 1 997 1000, hietzing@remax-first.at) mittels einer eindeutigen Erklärung (z. B. ein mit der Post versandter Brief, Telefax oder E-Mail) über Ihren Entschluss, diesen Vertrag zu widerrufen, informieren. Sie können dafür das beigefügte Muster-Widerrufsformular verwenden, das jedoch nicht vorgeschrieben ist. Zur Wahrung der Widerrufsfrist reicht es aus, dass Sie die Mitteilung über die Ausübung des Widerrufsrechts vor Ablauf der Widerrufsfrist absenden.

Folgen des Widerrufs
Wenn Sie diesen Vertrag widerrufen, haben wir Ihnen alle Zahlungen, die wir von Ihnen erhalten haben, einschließlich der Lieferkosten (mit Ausnahme der zusätzlichen Kosten, die sich daraus ergeben, dass Sie eine andere Art der Lieferung als die von uns angebotene, günstigste Standardlieferung gewählt haben), unverzüglich und spätestens binnen vierzehn Tagen ab dem Tag zurückzuzahlen, an dem die Mitteilung über Ihren Widerruf dieses Vertrags bei uns eingegangen ist. Für diese Rückzahlung verwenden wir dasselbe Zahlungsmittel, das Sie bei der ursprünglichen Transaktion eingesetzt haben, es sei denn, mit Ihnen wurde ausdrücklich etwas anderes vereinbart; in keinem Fall werden Ihnen wegen dieser Rückzahlung Entgelte berechnet. Haben Sie verlangt, dass die Dienstleistungen während der Widerrufsfrist beginnen soll, so haben Sie uns einen angemessenen Betrag zu zahlen, der dem Anteil der bis zu dem Zeitpunkt, zu dem Sie uns von der Ausübung des Widerrufsrechts hinsichtlich dieses Vertrags unterrichten, bereits erbrachten Dienstleistungen im Vergleich zum Gesamtumfang der im Vertrag vorgesehenen Dienstleistungen entspricht.

Muster-Widerrufsformular
(Wenn Sie den Vertrag widerrufen wollen, dann füllen Sie dieses Formular aus und senden Sie es zurück.)

An REM Immobilienmakler GmbH & Co KG, Hietzinger Hauptstr. 22/D/9, 1130 Wien, Hietzing, 0043 1 997 1000, hietzing@remax-first.at

Hiermit widerrufe ich/wir den von mir/uns abgeschlossenen Vertrag über den Kauf der folgenden Waren /die Erbringung der folgenden Dienstleistung


Bestellt am /erhalten am

Name des/der Verbraucher(s)

Anschrift des/der Verbraucher(s)

Unterschrift des/der Verbraucher(s) (nur bei Mitteilung auf Papier)

Datum


( Unzutreffendes streichen )


Hinweis auf die Möglichkeit eines vorzeitigen Erlöschens des Widerrufsrechts

Ihr Widerrufsrecht erlischt, wenn wir unsere Leistung vollständig erbracht haben und mit der Ausführung der Leistung erst begonnen haben, nachdem Sie Ihre ausdrückliche Zustimmung gegeben haben und gleichzeitig Ihre Kenntnis davon bestätigt haben, dass Sie Ihr Widerrufsrecht bei vollständiger Vertragserfüllung durch uns verlieren.

Impressum REM Immobilienmakler GmbH & Co KG
VERTRETUNGSBERECHTIGTE/R
Johanna Prosenik


Hietzinger Hauptstr. 22/D/9
1130 Wien, Hietzing
AUT
Tel.: 0043 1 997 1000
E-Mail: hietzing@remax-first.at
Homepage: https://www.remax-first.at

HANDELSREGISTER-EINTRAG
FN 301467i


UST-ID-NUMMER
ATU64073512
Anbieter kontaktieren

AGB, Datenschutz & Verbraucherhinweis wurden gelesen und akzeptiert.