Angebot 2334 von 14948

Anbieter kontaktieren

AGB, Datenschutz & Verbraucherhinweis wurden gelesen und akzeptiert.

RE/MAX First, REM Immobilienmakler GmbH & Co KG

Karin Prosenik-Resch
1130 Wien
  • Mehr erfahren
bellevue.de-ID: 30612823

WESTSEITIGE GARTENWOHNUNG | PROVISIONSFREI

  • Wohnung
  • · 4 Zimmer
  • · 135 m² Wohnfläche
  • · 1.399.000 € Kaufpreis
Anbieter kontaktieren

Objektbeschreibung

WESTSEITIGE GARTENWOHNUNG! PROVISIONSFREI!



Beschreibung

In einer ruhigen und charmanten Wohngegend, nahe dem Krankenhaus Hietzing, entsteht ein modernes Wohnhaus, das Wiener Eleganz mit zeitgemäßem Wohnkomfort verbindet. In der Josef-Kyrle-Gasse 4

...mehr lesen

WESTSEITIGE GARTENWOHNUNG! PROVISIONSFREI!



Beschreibung

In einer ruhigen und charmanten Wohngegend, nahe dem Krankenhaus Hietzing, entsteht ein modernes Wohnhaus, das Wiener Eleganz mit zeitgemäßem Wohnkomfort verbindet. In der Josef-Kyrle-Gasse 4 warten acht exklusive Eigentumswohnungen auf ihre neuen Bewohner. Sie überzeugen durch eine durchdachte Raumaufteilung, hochwertige Ausstattung und helle, sonnige Räume.



Schon beim Eintreten begrüßt Sie ein großzügiger Vorraum mit Platz für Garderobe und Stauraum. Von hier aus sind alle Räume übersichtlich und funktional erreichbar.



Das Herzstück der Wohnung ist der offene Wohn- und Essbereich. Große Fenster lassen viel Tageslicht herein und schaffen eine direkte Verbindung zur Terrasse und zum privaten Garten – perfekt zum Entspannen, Genießen oder für gemeinsame Stunden im Freien. Die moderne, offene Küche fügt sich harmonisch in den Raum ein und kann nach individuellen Wünschen gestaltet werden.



Die Schlafzimmer liegen ruhig und bieten Rückzugsorte zum Wohlfühlen. Das Hauptschlafzimmer verfügt über ein eigenes Badezimmer (en suite). Zwei weitere Zimmer eignen sich ideal als Kinder-, Gäste- oder Arbeitszimmer. Durch die klare Trennung von Wohn- und Schlafbereich entsteht ein Gefühl von Privatsphäre und Ruhe.



Zwei elegant ausgestattete Badezimmer – eines mit Badewanne, eines mit Dusche – sowie ein separates WC ergänzen das harmonische Raumkonzept. Ein praktischer Abstellraum bietet zusätzlichen Platz für Haushaltsgeräte oder Vorräte.



Die großzügige Terrasse führt in den sonnigen Garten mit Süd-/West-Ausrichtung. Hier genießen Sie Sonne bis in die Abendstunden – ein Stück Natur mitten in Wien.



Ausstattung

- Zentralheizungsanlage mit Fußbodenheizung

- Warmwasseraufbereitung mit Luftwärmepumpe

- Hochwertige Allu-Kunststofffenster

- Smart Home System

- Vollklimatisierte Räume

- Echtholz-Parkettböden in allen Wohn- und Schlafräumen

- Exklusive Sanitärausstattung von Laufen PRO S und Hans Grohe Essence

- PV-Anlagen



Lage

Die Josef-Kyrle-Gasse bietet eine ideale Kombination aus Ruhe, Natur und städtischem Komfort. In der Nähe finden Sie Kindergärten, Schulen, Arztpraxen, Spielplätze und Sportanlagen. Der Lainzer Tiergarten, der Hörndlwald und der Rote Berg laden zu Spaziergängen und sportlichen Aktivitäten ein. Geschäfte, Restaurants und öffentliche Verkehrsmittel sind bequem zu Fuß erreichbar. Für Freizeit und Erholung sorgen außerdem das Hietzinger Bad und das Schönbrunner Bad – beliebte Treffpunkte, besonders in den Sommermonaten. In der Josef-Kyrle-Gasse genießen Sie das Beste aus zwei Welten: ein naturnahes Familienleben und zugleich eine schnelle Anbindung an die Wiener Innenstadt.



Infrastruktur

- Schnellbahn S80 von Wien Hütteldorf bis Wien Aspern Nord <500m

- Straßenbahnlinie 62 von Lainz bis Matthäusgasse <200

- Straßenbahnlinie 60 von Rodaun bis Westbahnhof <600m

- diverse Buslinien in unmittelbarer Nähe

- U-Bahn <2500m

- Autobahnanschluss <3500m



Verfügbarkeit und Hinweise

Das Objekt befindet sich derzeit in der fortgeschrittenen Phase des Innenausbaus.

Die Fertigstellung ist voraussichtlich im 1. Quartal 2026 vorgesehen.



Kaufpreis EUR 1.399.000,-

PROVISIONSFREI für den Käufer!


Infrastruktur / Entfernungen

Gesundheit
Arzt <500m
Apotheke <1.000m
Klinik <500m
Krankenhaus <500m

Kinder & Schulen
Schule <500m
Kindergarten <500m
Universität <2.000m
Höhere Schule <4.500m

Nahversorgung
Supermarkt <500m
Bäckerei <500m
Einkaufszentrum <3.500m

Sonstige
Geldautomat <500m
Bank <500m
Post <500m
Polizei <1.000m

Verkehr
Bus <500m
Straßenbahn <500m
U-Bahn <2.500m
Bahnhof <500m
Autobahnanschluss <3.500m

Angaben Entfernung Luftlinie / Quelle: OpenStreetMap

Immobiliendetails

  • Nutzungsart
    Wohnen
  • Objektart
    Sonstige Wohnung
  • Hauptobjektart
    Wohnung
  • Vertragsart
    Kauf
  • Objektzustand
    Neubau
  • Baujahr
    2025
  • Zimmer (gesamt)
    4
  • Anzahl Badezimmer
    2
  • Anzahl separate WC
    2
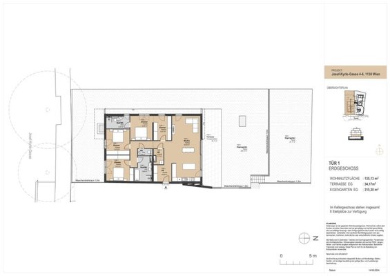
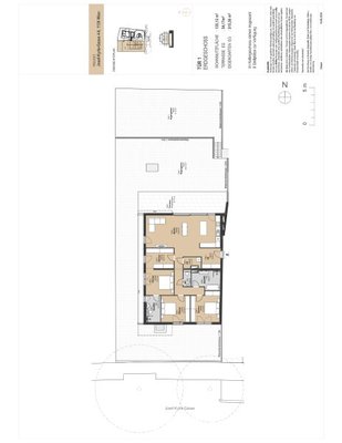
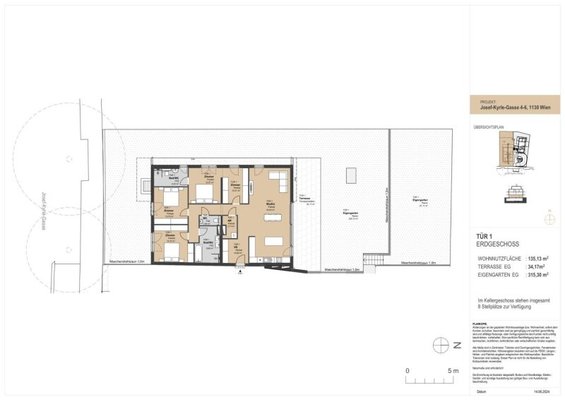
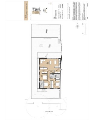
  • Wohnfläche (ca.)
    135 m²
  • Balkon/Terrasse (ca.)
    34,17 m²
  • Gartenfläche (ca.)
    315,3 m²
  • Anzahl Terrassen
    1
  • Stellplatzart
    Tiefgarage
  • Garagenstellplätze
    1
  • Objektzustand
    Neubau
  • Anbieter-Objektnummer
    1609/46498

Preise & Kosten

  • Courtage
    Keine besondere Angabe.

Energie

  • Heizungsart
    Fussbodenheizung, Zentralheizung
  • Energiestandard
    Passivhaus
  • Befeuerungsart
    Luft-/Wasserwärme
  • Energieausweis
    Energiebedarfsausweis
  • Energiepass gültig bis
    2034-04-21

Standort & Lage

· 1130 Wien,Hietzing · AUT

Dokumente

Anbieter

Logo von RE/MAX First, REM Immobilienmakler GmbH & Co KG

RE/MAX First, REM Immobilienmakler GmbH & Co KG

Frau Johanna Prosenik
Hietzinger Hauptstr. 22/D/9
1130 Wien, Hietzing

Ansprechpartner

Karin Prosenik-Resch

Hietzinger Hauptstraße 22/D/ 2. Stock/ 9
1130 Wien
Verbraucherhinweis

Widerrufsbelehrung des Anbieters

(Gilt nicht für Wohnraummiete in Deutschland)

Widerrufsrecht für Verbraucher
Sie haben das Recht, binnen vierzehn Tagen ohne Angabe von Gründen diesen Vertrag zu widerrufen. Die Widerrufsfrist beträgt vierzehn Tage ab dem Tag des Vertragsabschlusses.
Um Ihr Widerrufsrecht auszuüben, müssen Sie uns (REM Immobilienmakler GmbH & Co KG, Hietzinger Hauptstr. 22/D/9, 1130 Wien, Hietzing, 0043 1 997 1000, hietzing@remax-first.at) mittels einer eindeutigen Erklärung (z. B. ein mit der Post versandter Brief, Telefax oder E-Mail) über Ihren Entschluss, diesen Vertrag zu widerrufen, informieren. Sie können dafür das beigefügte Muster-Widerrufsformular verwenden, das jedoch nicht vorgeschrieben ist. Zur Wahrung der Widerrufsfrist reicht es aus, dass Sie die Mitteilung über die Ausübung des Widerrufsrechts vor Ablauf der Widerrufsfrist absenden.

Folgen des Widerrufs
Wenn Sie diesen Vertrag widerrufen, haben wir Ihnen alle Zahlungen, die wir von Ihnen erhalten haben, einschließlich der Lieferkosten (mit Ausnahme der zusätzlichen Kosten, die sich daraus ergeben, dass Sie eine andere Art der Lieferung als die von uns angebotene, günstigste Standardlieferung gewählt haben), unverzüglich und spätestens binnen vierzehn Tagen ab dem Tag zurückzuzahlen, an dem die Mitteilung über Ihren Widerruf dieses Vertrags bei uns eingegangen ist. Für diese Rückzahlung verwenden wir dasselbe Zahlungsmittel, das Sie bei der ursprünglichen Transaktion eingesetzt haben, es sei denn, mit Ihnen wurde ausdrücklich etwas anderes vereinbart; in keinem Fall werden Ihnen wegen dieser Rückzahlung Entgelte berechnet. Haben Sie verlangt, dass die Dienstleistungen während der Widerrufsfrist beginnen soll, so haben Sie uns einen angemessenen Betrag zu zahlen, der dem Anteil der bis zu dem Zeitpunkt, zu dem Sie uns von der Ausübung des Widerrufsrechts hinsichtlich dieses Vertrags unterrichten, bereits erbrachten Dienstleistungen im Vergleich zum Gesamtumfang der im Vertrag vorgesehenen Dienstleistungen entspricht.

Muster-Widerrufsformular
(Wenn Sie den Vertrag widerrufen wollen, dann füllen Sie dieses Formular aus und senden Sie es zurück.)

An REM Immobilienmakler GmbH & Co KG, Hietzinger Hauptstr. 22/D/9, 1130 Wien, Hietzing, 0043 1 997 1000, hietzing@remax-first.at

Hiermit widerrufe ich/wir den von mir/uns abgeschlossenen Vertrag über den Kauf der folgenden Waren /die Erbringung der folgenden Dienstleistung


Bestellt am /erhalten am

Name des/der Verbraucher(s)

Anschrift des/der Verbraucher(s)

Unterschrift des/der Verbraucher(s) (nur bei Mitteilung auf Papier)

Datum


( Unzutreffendes streichen )


Hinweis auf die Möglichkeit eines vorzeitigen Erlöschens des Widerrufsrechts

Ihr Widerrufsrecht erlischt, wenn wir unsere Leistung vollständig erbracht haben und mit der Ausführung der Leistung erst begonnen haben, nachdem Sie Ihre ausdrückliche Zustimmung gegeben haben und gleichzeitig Ihre Kenntnis davon bestätigt haben, dass Sie Ihr Widerrufsrecht bei vollständiger Vertragserfüllung durch uns verlieren.

Impressum REM Immobilienmakler GmbH & Co KG
VERTRETUNGSBERECHTIGTE/R
Johanna Prosenik


Hietzinger Hauptstr. 22/D/9
1130 Wien, Hietzing
AUT
Tel.: 0043 1 997 1000
E-Mail: hietzing@remax-first.at
Homepage: https://www.remax-first.at

HANDELSREGISTER-EINTRAG
FN 301467i


UST-ID-NUMMER
ATU64073512
Anbieter kontaktieren

AGB, Datenschutz & Verbraucherhinweis wurden gelesen und akzeptiert.