Angebot 9705 von 19284

Anbieter kontaktieren

AGB, Datenschutz & Verbraucherhinweis wurden gelesen und akzeptiert.

RE/MAX First, REM Immobilienmakler GmbH & Co KG

Eva Wierzbinski
1130 Wien
  • Mehr erfahren
bellevue.de-ID: 30612263

Rarität: Stadt-Villa mit weitläufigem Garten an exklusiver Hietzinger Adresse

  • Haus
  • · 10 Zimmer
  • · 400 m² Wohnfläche
  • · 1.778 m² Grundstücksfläche
  • · 5.900.000 € Kaufpreis
Anbieter kontaktieren

Objektbeschreibung

Hier spürt man das Wien der Jahrhundertwende!





In unmittelbarer Nähe zum Schloss Schönbrunn und vielen Wohnsitzen bekannter Persönlichkeiten der österreichischen Geschichte, außerdem nur wenige Gehminuten vom Hietzinger Zentrum entfernt, befindet sich

...mehr lesen

Hier spürt man das Wien der Jahrhundertwende!





In unmittelbarer Nähe zum Schloss Schönbrunn und vielen Wohnsitzen bekannter Persönlichkeiten der österreichischen Geschichte, außerdem nur wenige Gehminuten vom Hietzinger Zentrum entfernt, befindet sich diese einzigartige Liegenschaft in herrlicher Ruhelage.





In der Nachbarschaft wohnten und arbeiteten die Maler Gustav Klimt und Egon Schiele, der Musiker Alban Berg und die Psychoanalytikerin Anna Freud. Die Villen der ehemaligen Burgtheater-Schauspielerinnen Katharina Schratt und Charlotte Wolter sind nur einen Steinwurf entfernt.





Erbaut zur Jahrhundertwende in der Hochblüte der K&K-Donaumonarchie, wurde das palais-artige Haus in den 1920er-Jahren das Heim der zu ihrer Zeit berühmten Theater- und Filmschauspielerin Leopoldine Konstantin. Sie war in der Ur-Aufführung des Stückes Jedermann die erste Buhlschaft und spielte am Ende Ihrer Karriere in Filmen von Alfred Hitchcock. Für sie wurde die Liegenschaft vom ungarischen Architekten Alexander Ferenczy aufwändig adaptiert und umgebaut.





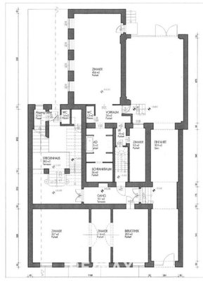
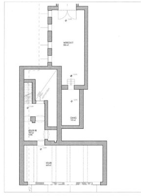
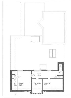
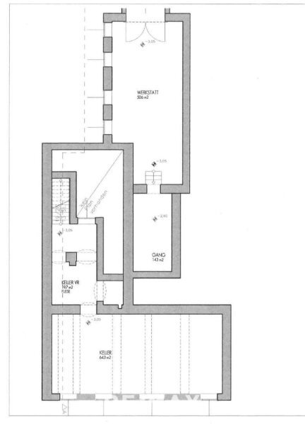
Die verträumte Villa (Nutzfläche aktuell ca. 650 m²) mit weitläufigem, parkähnlichem Garten (ca. 1.400 m²) hat Sanierungsbedarf, verzaubert aber ab dem ersten Eindruck. Wenn einmal aus dem Dornröschenschlaf geweckt, repräsentiert sie ein exklusives und herrschaftliches Wohngefühl an einer der besten Adressen von Wien.





Eine Baugenehmigung für einen Umbau bzw. eine Renovierung der Liegenschaft inkl. Pool und Gartenhaus liegt vor.



Für weitere Informationen und für einen Besichtigungstermin stehen ich Ihnen gerne zur Verfügung:

Mag. Eva Wierzbinski

M: +43 676 44 29 400

E: e.wierzbinski@remax-first.at



Vereinbaren sie noch heute einen Termin!



RECHTLICHE HINWEISE:

Wir ersuchen um Verständnis, dass wir vor der Zusendung des Exposés bzw. der Objektadresse vorab die Bestätigung benötigen, dass Sie unser sofortiges Tätigwerden wünschen und dass Sie über Ihre Rücktrittsrechte gemäß FAGG (Fern- und Auswärtsgeschäfte-Gesetz) aufgeklärt wurden. Sie bekommen nach Ihrer schriftlichen Anfrage unter vollständiger Angabe von Name und Kontaktdaten eine Nachricht per E-Mail, in der Sie diese Punkte bestätigen müssen. Anschließend freuen wir uns über eine Terminvereinbarung.

Der guten Ordnung halber halten wir fest, dass, sofern im Angebot nicht anders vermerkt, bei erfolgreichem Abschlussfall eine Provision anfällt, die den in der Immobilienmaklerverordnung BGBI. 262 und 297/1996 festgelegten Sätzen entspricht - das sind 3 % des Kaufpreises zzgl. 20 % USt. Diese Provisionspflicht besteht auch dann, wenn Sie die Ihnen überlassenen Informationen an Dritte weitergeben. Die Verpflichtung zur Zahlung einer Vermittlungsprovision entsteht selbstverständlich nur bei erfolgreicher Vermittlung und wird erst mit der Rechtswirksamkeit des vermittelten Geschäftes fällig.

Haftungsausschluss: Wir weisen darauf hin, dass sämtliche Daten im vorliegenden Angebot sowie die von unserem Büro an Sie weitergegebenen Auskünfte, vom Eigentümer der Immobilie zur Verfügung gestellt wurden. Ebenso sind Informationen von Dritten (z.B. Behörden) eingeholt worden, auch für diese können wir unsererseits keinerlei Haftung für deren uneingeschränkte Richtigkeit übernehmen. Änderungen vorbehalten.



Wir weisen darauf hin, dass zwischen dem Vermittler und dem zu vermittelndem Dritten ein familiäres oder wirtschaftliches Naheverhältnis besteht.



Der Vermittler ist als Doppelmakler tätig.


Wir weisen darauf hin, dass zwischen dem Vermittler und dem zu vermittelnden Dritten ein familiäres oder wirtschaftliches Naheverhältnis besteht.


Der Vermittler ist als Doppelmakler tätig.


Infrastruktur / Entfernungen

Gesundheit
Arzt <500m
Apotheke <1.000m
Klinik <500m
Krankenhaus <2.000m

Kinder & Schulen
Schule <500m
Kindergarten <1.000m
Universität <1.500m
Höhere Schule <3.500m

Nahversorgung
Supermarkt <500m
Bäckerei <500m
Einkaufszentrum <2.500m

Sonstige
Geldautomat <500m
Bank <500m
Post <1.000m
Polizei <1.000m

Verkehr
Bus <500m
U-Bahn <1.000m
Straßenbahn <500m
Bahnhof <1.000m
Autobahnanschluss <3.500m

Angaben Entfernung Luftlinie / Quelle: OpenStreetMap

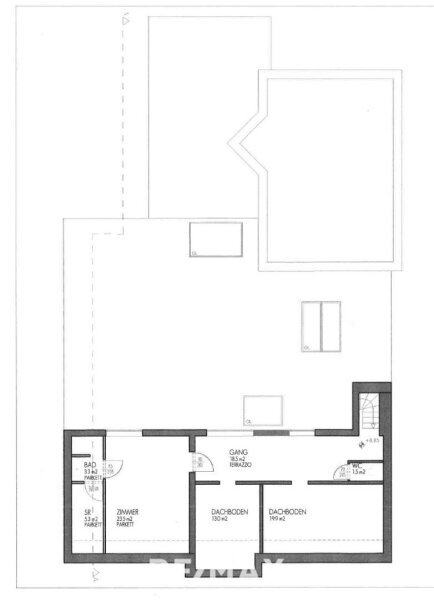
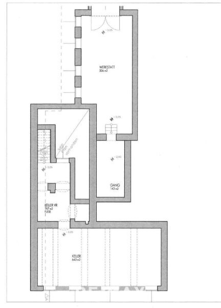
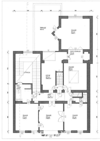
Immobiliendetails

  • Nutzungsart
    Wohnen
  • Objektart
    Villa
  • Hauptobjektart
    Haus
  • Vertragsart
    Kauf
  • Objektzustand
    Sanierungsbedürftig
  • Baujahr
    1900
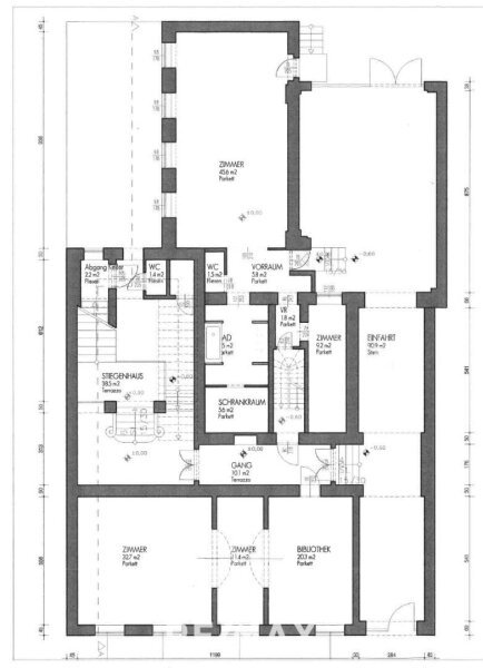
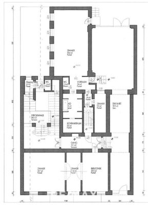
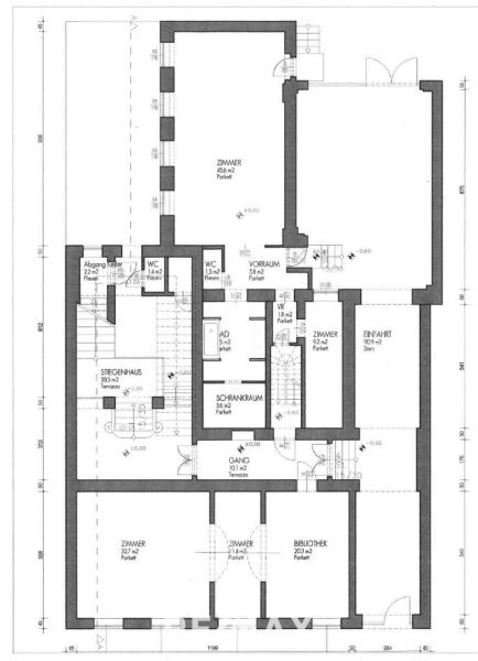
  • Zimmer (gesamt)
    10
  • Wohnfläche (ca.)
    400 m²
  • Grundstücksfläche (ca.)
    1.778 m²
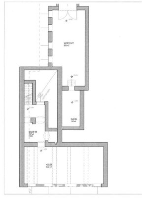
  • Nutzfläche (ca.)
    650 m²
  • Anzahl Etagen
    2
  • Anbieter-Objektnummer
    1609/46275

Preise & Kosten

  • Courtage
    3 % inklusive der gesetzlichen Mehrwertsteuer

Energie

  • Energieausweis
    Energiebedarfsausweis
  • Energiepass gültig bis
    2026-10-04

Standort & Lage

· 1130 Wien · AUT

Videos

Anbieter

Logo von RE/MAX First, REM Immobilienmakler GmbH & Co KG

RE/MAX First, REM Immobilienmakler GmbH & Co KG

Frau Johanna Prosenik
Hietzinger Hauptstr. 22/D/9
1130 Wien, Hietzing

Ansprechpartner

Verbraucherhinweis

Widerrufsbelehrung des Anbieters

(Gilt nicht für Wohnraummiete in Deutschland)

Widerrufsrecht für Verbraucher
Sie haben das Recht, binnen vierzehn Tagen ohne Angabe von Gründen diesen Vertrag zu widerrufen. Die Widerrufsfrist beträgt vierzehn Tage ab dem Tag des Vertragsabschlusses.
Um Ihr Widerrufsrecht auszuüben, müssen Sie uns (REM Immobilienmakler GmbH & Co KG, Hietzinger Hauptstr. 22/D/9, 1130 Wien, Hietzing, 0043 1 997 1000, hietzing@remax-first.at) mittels einer eindeutigen Erklärung (z. B. ein mit der Post versandter Brief, Telefax oder E-Mail) über Ihren Entschluss, diesen Vertrag zu widerrufen, informieren. Sie können dafür das beigefügte Muster-Widerrufsformular verwenden, das jedoch nicht vorgeschrieben ist. Zur Wahrung der Widerrufsfrist reicht es aus, dass Sie die Mitteilung über die Ausübung des Widerrufsrechts vor Ablauf der Widerrufsfrist absenden.

Folgen des Widerrufs
Wenn Sie diesen Vertrag widerrufen, haben wir Ihnen alle Zahlungen, die wir von Ihnen erhalten haben, einschließlich der Lieferkosten (mit Ausnahme der zusätzlichen Kosten, die sich daraus ergeben, dass Sie eine andere Art der Lieferung als die von uns angebotene, günstigste Standardlieferung gewählt haben), unverzüglich und spätestens binnen vierzehn Tagen ab dem Tag zurückzuzahlen, an dem die Mitteilung über Ihren Widerruf dieses Vertrags bei uns eingegangen ist. Für diese Rückzahlung verwenden wir dasselbe Zahlungsmittel, das Sie bei der ursprünglichen Transaktion eingesetzt haben, es sei denn, mit Ihnen wurde ausdrücklich etwas anderes vereinbart; in keinem Fall werden Ihnen wegen dieser Rückzahlung Entgelte berechnet. Haben Sie verlangt, dass die Dienstleistungen während der Widerrufsfrist beginnen soll, so haben Sie uns einen angemessenen Betrag zu zahlen, der dem Anteil der bis zu dem Zeitpunkt, zu dem Sie uns von der Ausübung des Widerrufsrechts hinsichtlich dieses Vertrags unterrichten, bereits erbrachten Dienstleistungen im Vergleich zum Gesamtumfang der im Vertrag vorgesehenen Dienstleistungen entspricht.

Muster-Widerrufsformular
(Wenn Sie den Vertrag widerrufen wollen, dann füllen Sie dieses Formular aus und senden Sie es zurück.)

An REM Immobilienmakler GmbH & Co KG, Hietzinger Hauptstr. 22/D/9, 1130 Wien, Hietzing, 0043 1 997 1000, hietzing@remax-first.at

Hiermit widerrufe ich/wir den von mir/uns abgeschlossenen Vertrag über den Kauf der folgenden Waren /die Erbringung der folgenden Dienstleistung


Bestellt am /erhalten am

Name des/der Verbraucher(s)

Anschrift des/der Verbraucher(s)

Unterschrift des/der Verbraucher(s) (nur bei Mitteilung auf Papier)

Datum


( Unzutreffendes streichen )


Hinweis auf die Möglichkeit eines vorzeitigen Erlöschens des Widerrufsrechts

Ihr Widerrufsrecht erlischt, wenn wir unsere Leistung vollständig erbracht haben und mit der Ausführung der Leistung erst begonnen haben, nachdem Sie Ihre ausdrückliche Zustimmung gegeben haben und gleichzeitig Ihre Kenntnis davon bestätigt haben, dass Sie Ihr Widerrufsrecht bei vollständiger Vertragserfüllung durch uns verlieren.

Impressum REM Immobilienmakler GmbH & Co KG
VERTRETUNGSBERECHTIGTE/R
Johanna Prosenik


Hietzinger Hauptstr. 22/D/9
1130 Wien, Hietzing
AUT
Tel.: 0043 1 997 1000
E-Mail: hietzing@remax-first.at
Homepage: https://www.remax-first.at

HANDELSREGISTER-EINTRAG
FN 301467i


UST-ID-NUMMER
ATU64073512
Anbieter kontaktieren

AGB, Datenschutz & Verbraucherhinweis wurden gelesen und akzeptiert.