Angebot 8775 von 18575

Anbieter kontaktieren

AGB, Datenschutz & Verbraucherhinweis wurden gelesen und akzeptiert.

RE/MAX First, REM Immobilienmakler GmbH & Co KG

Karin Prosenik-Resch
1130 Wien
  • Mehr erfahren
bellevue.de-ID: 30612203

REIHENHAUS MIT GARTEN | PROVISIONSFREI

  • Haus
  • · 4 Zimmer
  • · 109 m² Wohnfläche
  • · 682.900 € Kaufpreis
Anbieter kontaktieren

Objektbeschreibung

Jetzt Haus kaufen und 5% sparen! 



Sie träumen von einem eigenen Haus mit Garten? Dann ist jetzt der perfekte Zeitpunkt für eine Besichtigung! Wer sich bis 31. Juli 2026 für diese attraktiven Doppelhaushälften oder Reihenhäuser entscheidet und ein

...mehr lesen

Jetzt Haus kaufen und 5% sparen! 



Sie träumen von einem eigenen Haus mit Garten? Dann ist jetzt der perfekte Zeitpunkt für eine Besichtigung! Wer sich bis 31. Juli 2026 für diese attraktiven Doppelhaushälften oder Reihenhäuser entscheidet und ein Kaufanbot zum aktuellen Listenpreis legt, profitiert von einem Preisvorteil von 5 %.



Nutzen Sie diese einmalige Gelegenheit, Ihr neues Zuhause zu entdecken – modern, hochwertig und ideal für Familien, Paare oder Anleger.

Vereinbaren Sie noch heute Ihren persönlichen Besichtigungstermin und lassen Sie sich vor Ort begeistern!



Zentral gelegen und doch im Grünen, gute Verkehrsanbindung, top ausgestattet.



In einer beliebten Wohngegend südlich von Wien, in zentraler Lage in Maria Enzersdorf entsteht ein erstklassiges Wohnprojekt. Auf einer Fläche von über 3.000 m² werden 15 Doppel- und Reihenhäuser mit modernster Ausstattung und ökologischer Luftwärmepumpe errichtet. Die angeführten Preise beziehen sich auf die belagsfertige Ausführung. Die Häuser können auch in der schlüsselfertigen Variante mit modernster Ausstattung gegen Aufpreis erworben werden. Besonderes Highlight sind die durchdachte Raumplanung und die hochwertigen Materialen!



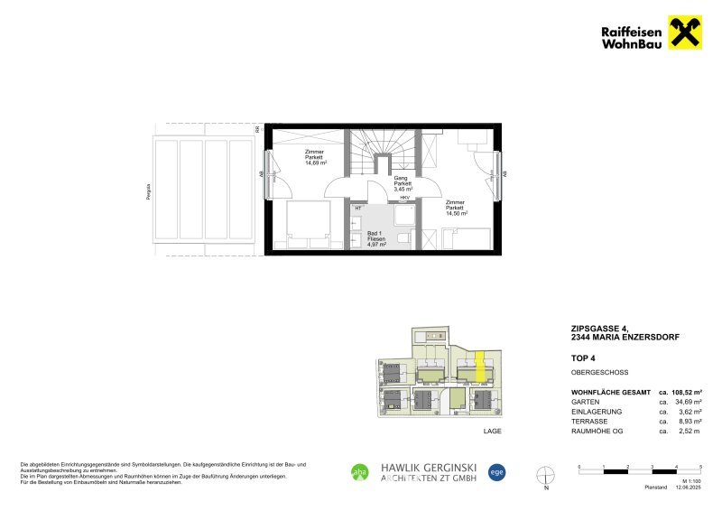
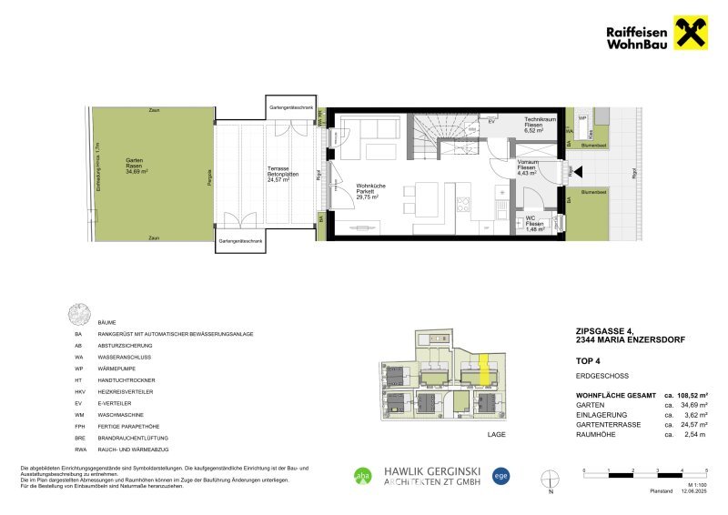
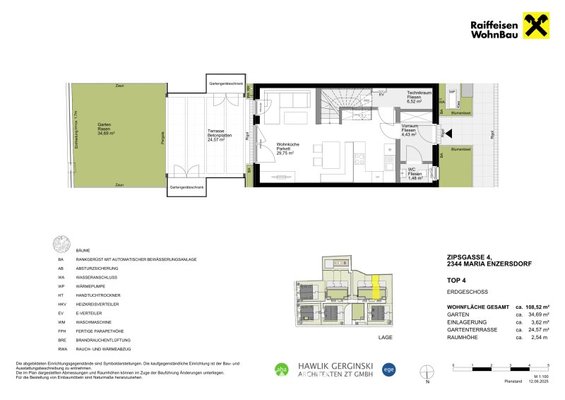
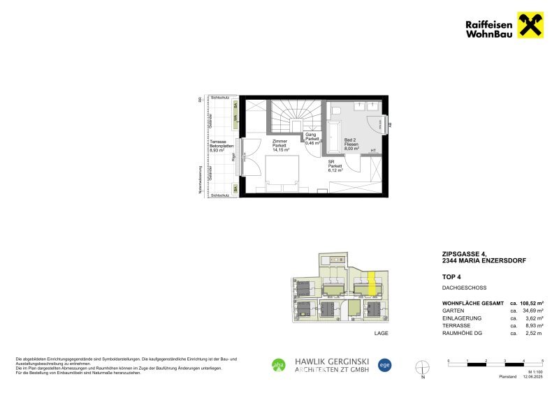
• Wohnfläche: ca. 108,52 m²

• Garten: ca. 34,69 m²

• Gartenterrasse: ca. 24,57 m²



In der Tiefgarage stehen gesamt 30 komfortable Einzelstellplätze zur Verfügung. Jedem Haus sind 2 Stellplätze zugeordnet, der Kaufpreis eines Stellplatzes beträgt zusätzlich EUR 25.000,- (Eigennutzer).



Die Neubauten sind optimal an den öffentlichen Verkehr angebunden. Mit der Schnellbahn ist die Wiener U-Bahnlinie U6 in nur 14 Minuten zu erreichen. Knapp 20 Minuten sind es bis zur U-Bahnlinie U1 mit weiteren Anschlussmöglichkeiten an die innerstädtischen Verkehrsmittel. Die Autobahnanschlussstelle A21 - A2 ist in 9 Minuten mit dem Auto zu erreichen.

Die Wohnruhelage zeichnet sich durch einen idyllischen Parkblick und drei großflächige Parks in unmittelbarer Nähe aus. Ebenso ist ein Schulzentrum fußläufig, sowie diverse Schulen für alle Altersklassen mit Bussen erreichbar.



 



 


Wir weisen darauf hin, dass zwischen dem Vermittler und dem zu vermittelnden Dritten ein familiäres oder wirtschaftliches Naheverhältnis besteht.


Der Vermittler ist als Doppelmakler tätig.


Infrastruktur / Entfernungen

Gesundheit
Arzt <500m
Apotheke <500m
Klinik <2.000m
Krankenhaus <1.500m

Kinder & Schulen
Kindergarten <250m
Schule <250m
Höhere Schule <2.750m
Universität <10.000m

Nahversorgung
Supermarkt <250m
Bäckerei <1.250m
Einkaufszentrum <1.750m

Sonstige
Bank <250m
Geldautomat <250m
Post <1.250m
Polizei <500m

Verkehr
Bus <250m
U-Bahn <4.250m
Straßenbahn <4.250m
Bahnhof <1.250m
Autobahnanschluss <2.250m

Angaben Entfernung Luftlinie / Quelle: OpenStreetMap

Immobiliendetails

  • Nutzungsart
    Wohnen
  • Objektart
    Reihenhaus
  • Hauptobjektart
    Haus
  • Vertragsart
    Kauf
  • Objektzustand
    Neubau
  • Baujahr
    2025
  • Zimmer (gesamt)
    4
  • Anzahl Badezimmer
    2
  • Anzahl separate WC
    3
  • Anzahl Parkflächen
    1
  • Wohnfläche (ca.)
    108,52 m²
  • Kellerfläche (ca.)
    3,62 m²
  • Balkon/Terrasse (ca.)
    33,5 m²
  • Anzahl Terrassen
    1
  • Freier Stellplatz
    1
  • Anzahl Etagen
    3
  • Objektzustand
    Neubau
  • Anbieter-Objektnummer
    1609/46444

Preise & Kosten

  • Nebenkosten
    148,12 €
  • Courtage
    Provisionsfrei

Energie

  • Heizungsart
    Fussbodenheizung
  • Befeuerungsart
    Luft-/Wasserwärme
  • Energieausweis
    Energiebedarfsausweis
  • Energiepass gültig bis
    2033-02-23

Standort & Lage

Zipsgasse · 2344 Maria Enzersdorf · AUT

Dokumente

Anbieter

Logo von RE/MAX First, REM Immobilienmakler GmbH & Co KG

RE/MAX First, REM Immobilienmakler GmbH & Co KG

Frau Johanna Prosenik
Hietzinger Hauptstr. 22/D/9
1130 Wien, Hietzing

Ansprechpartner

Karin Prosenik-Resch

Hietzinger Hauptstraße 22 / D / 9
1130 Wien
Verbraucherhinweis

Widerrufsbelehrung des Anbieters

(Gilt nicht für Wohnraummiete in Deutschland)

Widerrufsrecht für Verbraucher
Sie haben das Recht, binnen vierzehn Tagen ohne Angabe von Gründen diesen Vertrag zu widerrufen. Die Widerrufsfrist beträgt vierzehn Tage ab dem Tag des Vertragsabschlusses.
Um Ihr Widerrufsrecht auszuüben, müssen Sie uns (REM Immobilienmakler GmbH & Co KG, Hietzinger Hauptstr. 22/D/9, 1130 Wien, Hietzing, 0043 1 997 1000, hietzing@remax-first.at) mittels einer eindeutigen Erklärung (z. B. ein mit der Post versandter Brief, Telefax oder E-Mail) über Ihren Entschluss, diesen Vertrag zu widerrufen, informieren. Sie können dafür das beigefügte Muster-Widerrufsformular verwenden, das jedoch nicht vorgeschrieben ist. Zur Wahrung der Widerrufsfrist reicht es aus, dass Sie die Mitteilung über die Ausübung des Widerrufsrechts vor Ablauf der Widerrufsfrist absenden.

Folgen des Widerrufs
Wenn Sie diesen Vertrag widerrufen, haben wir Ihnen alle Zahlungen, die wir von Ihnen erhalten haben, einschließlich der Lieferkosten (mit Ausnahme der zusätzlichen Kosten, die sich daraus ergeben, dass Sie eine andere Art der Lieferung als die von uns angebotene, günstigste Standardlieferung gewählt haben), unverzüglich und spätestens binnen vierzehn Tagen ab dem Tag zurückzuzahlen, an dem die Mitteilung über Ihren Widerruf dieses Vertrags bei uns eingegangen ist. Für diese Rückzahlung verwenden wir dasselbe Zahlungsmittel, das Sie bei der ursprünglichen Transaktion eingesetzt haben, es sei denn, mit Ihnen wurde ausdrücklich etwas anderes vereinbart; in keinem Fall werden Ihnen wegen dieser Rückzahlung Entgelte berechnet. Haben Sie verlangt, dass die Dienstleistungen während der Widerrufsfrist beginnen soll, so haben Sie uns einen angemessenen Betrag zu zahlen, der dem Anteil der bis zu dem Zeitpunkt, zu dem Sie uns von der Ausübung des Widerrufsrechts hinsichtlich dieses Vertrags unterrichten, bereits erbrachten Dienstleistungen im Vergleich zum Gesamtumfang der im Vertrag vorgesehenen Dienstleistungen entspricht.

Muster-Widerrufsformular
(Wenn Sie den Vertrag widerrufen wollen, dann füllen Sie dieses Formular aus und senden Sie es zurück.)

An REM Immobilienmakler GmbH & Co KG, Hietzinger Hauptstr. 22/D/9, 1130 Wien, Hietzing, 0043 1 997 1000, hietzing@remax-first.at

Hiermit widerrufe ich/wir den von mir/uns abgeschlossenen Vertrag über den Kauf der folgenden Waren /die Erbringung der folgenden Dienstleistung


Bestellt am /erhalten am

Name des/der Verbraucher(s)

Anschrift des/der Verbraucher(s)

Unterschrift des/der Verbraucher(s) (nur bei Mitteilung auf Papier)

Datum


( Unzutreffendes streichen )


Hinweis auf die Möglichkeit eines vorzeitigen Erlöschens des Widerrufsrechts

Ihr Widerrufsrecht erlischt, wenn wir unsere Leistung vollständig erbracht haben und mit der Ausführung der Leistung erst begonnen haben, nachdem Sie Ihre ausdrückliche Zustimmung gegeben haben und gleichzeitig Ihre Kenntnis davon bestätigt haben, dass Sie Ihr Widerrufsrecht bei vollständiger Vertragserfüllung durch uns verlieren.

Impressum REM Immobilienmakler GmbH & Co KG
VERTRETUNGSBERECHTIGTE/R
Johanna Prosenik


Hietzinger Hauptstr. 22/D/9
1130 Wien, Hietzing
AUT
Tel.: 0043 1 997 1000
E-Mail: hietzing@remax-first.at
Homepage: https://www.remax-first.at

HANDELSREGISTER-EINTRAG
FN 301467i


UST-ID-NUMMER
ATU64073512
Anbieter kontaktieren

AGB, Datenschutz & Verbraucherhinweis wurden gelesen und akzeptiert.