Angebot 2419 von 14874

Anbieter kontaktieren

AGB, Datenschutz & Verbraucherhinweis wurden gelesen und akzeptiert.

RE/MAX First, REM Immobilienmakler GmbH & Co KG

Karin Prosenik-Resch
1130 Wien
  • Mehr erfahren
bellevue.de-ID: 30612175

SONNIGES GRUNDSTÜCK MIT BUNGALOW IN MAUER

  • Haus
  • · 2 Zimmer
  • · 97 m² Wohnfläche
  • · 1.188 m² Grundstücksfläche
  • · 1.480.000 € Kaufpreis
Anbieter kontaktieren

Objektbeschreibung

Sonniges Grundstück in Toplage nahe Maurer Hauptplatz



Das Wichtigste auf einen Blick

- Grundstücksfläche: 1.188 m² - Aufteilung: 2 Grundstücksnummern – Teilung auf je ca. 594 m² möglich

- Bebauung/Widmung: Bauklasse I, 6,5 m, o gk, -

- Pro Grundstück

...mehr lesen

Sonniges Grundstück in Toplage nahe Maurer Hauptplatz



Das Wichtigste auf einen Blick

- Grundstücksfläche: 1.188 m² - Aufteilung: 2 Grundstücksnummern – Teilung auf je ca. 594 m² möglich

- Bebauung/Widmung: Bauklasse I, 6,5 m, o gk, -

- Pro Grundstück sind je 198 m² verbaute Fläche möglich

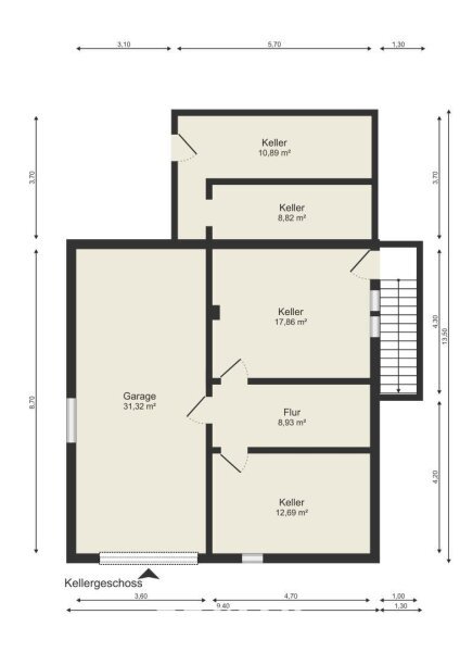
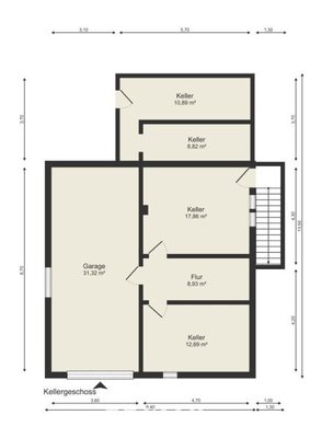
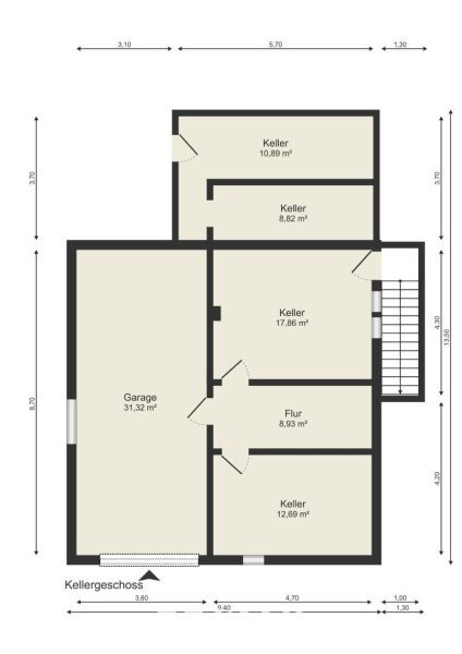
- Bestandsgebäude: Bungalow mit ca. 97 m² Wohnfläche - voll unterkellert - Garage



Die ausführliche Beschreibung

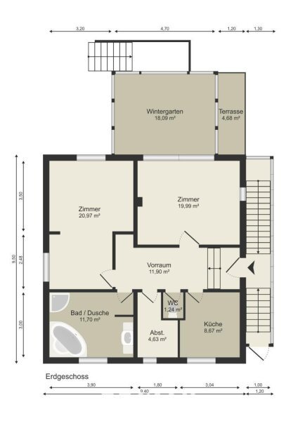
Auf dem großzügigen und sonnigen Grundstück in der Binagasse in Mauer befindet sich ein gepflegter Bungalow mit ca. 97 m² Wohnfläche.



Der Grundriss umfasst:

- einen gemütlichen Wohnbereich mit westseitigem Wintergarten,

- ein Schlafzimmer,

- eine voll ausgestattete Küche,

- ein Badezimmer mit Wanne, Dusche und Fenster,

- sowie einen praktischen Abstellraum.



Der Bungalow wird mit Strom-Nachtspeicheröfen beheizt. Fenster und Fassadendämmung wurden bereits vor rund 15 Jahren erneuert, sodass ein solider Bauzustand gegeben ist.



Dank der Widmung bietet das Grundstück auch hervorragende Entwicklungsmöglichkeiten. Damit ist die Liegenschaft sowohl für Eigennutzer, die viel Grün und Ruhe schätzen, als auch für Bauträger hochinteressant.



Lage & Umgebung

Die Liegenschaft liegt in einer ruhigen Wohngegend von Mauer, unweit des beliebten Maurer Hauptplatzes. Hier finden sich charmante Heurige, Restaurants sowie sämtliche Nahversorger und Geschäfte des täglichen Bedarfs. Schulen, Kindergärten und medizinische Einrichtungen sind ebenfalls bequem erreichbar.



Öffentliche Anbindung

Buslinien: 58B, 63A, 56A, 58A, N60 – wenige Gehminuten entfernt

S-Bahn: S2 und S3 (Bahnhof Liesing) mit direkter Verbindung ins Stadtzentrum

U-Bahn: U6 – schnell erreichbar und direkte Anbindung zur Innenstadt

Straßenbahnlinie 60 Richtung Hietzing

Mit dem Auto sind sowohl die Südosttangente (A23) als auch die Südautobahn (A2) in wenigen Minuten erreichbar.



Fazit

Ein großzügiges Grundstück in bester Lage, das durch seine vielseitigen Nutzungsmöglichkeiten überzeugt – ob als charmantes Zuhause im bestehenden Bungalow oder als spannendes Entwicklungsprojekt für Bauträger



Ein Energieausweis ist in Arbeit.


Hinweis gemäß Energieausweisvorlagegesetz: Ein Energieausweis wurde vom Eigentümer bzw. Verkäufer, nach unserer Aufklärung über die generell geltende Vorlagepflicht, sowie Aufforderung zu seiner Erstellung noch nicht vorgelegt. Daher gilt zumindest eine dem Alter und der Art des Gebäudes entsprechende Gesamtenergieeffizienz als vereinbart. Wir übernehmen keinerlei Gewähr oder Haftung für die tatsächliche Energieeffizienz der angebotenen Immobilie.


Der Vermittler ist als Doppelmakler tätig.


Infrastruktur / Entfernungen

Gesundheit
Arzt <500m
Apotheke <750m
Klinik <1.750m
Krankenhaus <1.750m

Kinder & Schulen
Schule <250m
Kindergarten <750m
Universität <4.500m
Höhere Schule <5.500m

Nahversorgung
Supermarkt <750m
Bäckerei <1.000m
Einkaufszentrum <1.000m

Sonstige
Geldautomat <1.000m
Bank <1.000m
Post <1.000m
Polizei <1.250m

Verkehr
Bus <500m
U-Bahn <3.000m
Straßenbahn <750m
Bahnhof <1.000m
Autobahnanschluss <3.500m

Angaben Entfernung Luftlinie / Quelle: OpenStreetMap

Immobiliendetails

  • Nutzungsart
    Wohnen
  • Objektart
    Einfamilienhaus
  • Hauptobjektart
    Haus
  • Vertragsart
    Kauf
  • Objektzustand
    Neubau
  • Baujahr
    1972
  • Zimmer (gesamt)
    2
  • Anzahl Badezimmer
    1
  • Anzahl separate WC
    1
  • Wohnfläche (ca.)
    97 m²
  • Grundstücksfläche (ca.)
    1.188 m²
  • Küche
    Einbauküche (EBK)
  • Kellerfläche (ca.)
    90,51 m²
  • Garagenstellplätze
    1
  • Anzahl Etagen
    1
  • Objektzustand
    Neubau
  • Erschließung
    Teilweise erschlossen
  • Verfügbarkeit
    nach Vereinbarung
  • Anbieter-Objektnummer
    1609/46493

Preise & Kosten

  • Courtage
    3 % inklusive der gesetzlichen Mehrwertsteuer

Energie

  • Befeuerungsart
    Strom

Standort & Lage

Binagasse · 1230 Wien · AUT

Anbieter

Logo von RE/MAX First, REM Immobilienmakler GmbH & Co KG

RE/MAX First, REM Immobilienmakler GmbH & Co KG

Frau Johanna Prosenik
Hietzinger Hauptstr. 22/D/9
1130 Wien, Hietzing

Ansprechpartner

Karin Prosenik-Resch

Hietzinger Hauptstraße 22/D/ 2. Stock/ 9
1130 Wien
Verbraucherhinweis

Widerrufsbelehrung des Anbieters

(Gilt nicht für Wohnraummiete in Deutschland)

Widerrufsrecht für Verbraucher
Sie haben das Recht, binnen vierzehn Tagen ohne Angabe von Gründen diesen Vertrag zu widerrufen. Die Widerrufsfrist beträgt vierzehn Tage ab dem Tag des Vertragsabschlusses.
Um Ihr Widerrufsrecht auszuüben, müssen Sie uns (REM Immobilienmakler GmbH & Co KG, Hietzinger Hauptstr. 22/D/9, 1130 Wien, Hietzing, 0043 1 997 1000, hietzing@remax-first.at) mittels einer eindeutigen Erklärung (z. B. ein mit der Post versandter Brief, Telefax oder E-Mail) über Ihren Entschluss, diesen Vertrag zu widerrufen, informieren. Sie können dafür das beigefügte Muster-Widerrufsformular verwenden, das jedoch nicht vorgeschrieben ist. Zur Wahrung der Widerrufsfrist reicht es aus, dass Sie die Mitteilung über die Ausübung des Widerrufsrechts vor Ablauf der Widerrufsfrist absenden.

Folgen des Widerrufs
Wenn Sie diesen Vertrag widerrufen, haben wir Ihnen alle Zahlungen, die wir von Ihnen erhalten haben, einschließlich der Lieferkosten (mit Ausnahme der zusätzlichen Kosten, die sich daraus ergeben, dass Sie eine andere Art der Lieferung als die von uns angebotene, günstigste Standardlieferung gewählt haben), unverzüglich und spätestens binnen vierzehn Tagen ab dem Tag zurückzuzahlen, an dem die Mitteilung über Ihren Widerruf dieses Vertrags bei uns eingegangen ist. Für diese Rückzahlung verwenden wir dasselbe Zahlungsmittel, das Sie bei der ursprünglichen Transaktion eingesetzt haben, es sei denn, mit Ihnen wurde ausdrücklich etwas anderes vereinbart; in keinem Fall werden Ihnen wegen dieser Rückzahlung Entgelte berechnet. Haben Sie verlangt, dass die Dienstleistungen während der Widerrufsfrist beginnen soll, so haben Sie uns einen angemessenen Betrag zu zahlen, der dem Anteil der bis zu dem Zeitpunkt, zu dem Sie uns von der Ausübung des Widerrufsrechts hinsichtlich dieses Vertrags unterrichten, bereits erbrachten Dienstleistungen im Vergleich zum Gesamtumfang der im Vertrag vorgesehenen Dienstleistungen entspricht.

Muster-Widerrufsformular
(Wenn Sie den Vertrag widerrufen wollen, dann füllen Sie dieses Formular aus und senden Sie es zurück.)

An REM Immobilienmakler GmbH & Co KG, Hietzinger Hauptstr. 22/D/9, 1130 Wien, Hietzing, 0043 1 997 1000, hietzing@remax-first.at

Hiermit widerrufe ich/wir den von mir/uns abgeschlossenen Vertrag über den Kauf der folgenden Waren /die Erbringung der folgenden Dienstleistung


Bestellt am /erhalten am

Name des/der Verbraucher(s)

Anschrift des/der Verbraucher(s)

Unterschrift des/der Verbraucher(s) (nur bei Mitteilung auf Papier)

Datum


( Unzutreffendes streichen )


Hinweis auf die Möglichkeit eines vorzeitigen Erlöschens des Widerrufsrechts

Ihr Widerrufsrecht erlischt, wenn wir unsere Leistung vollständig erbracht haben und mit der Ausführung der Leistung erst begonnen haben, nachdem Sie Ihre ausdrückliche Zustimmung gegeben haben und gleichzeitig Ihre Kenntnis davon bestätigt haben, dass Sie Ihr Widerrufsrecht bei vollständiger Vertragserfüllung durch uns verlieren.

Impressum REM Immobilienmakler GmbH & Co KG
VERTRETUNGSBERECHTIGTE/R
Johanna Prosenik


Hietzinger Hauptstr. 22/D/9
1130 Wien, Hietzing
AUT
Tel.: 0043 1 997 1000
E-Mail: hietzing@remax-first.at
Homepage: https://www.remax-first.at

HANDELSREGISTER-EINTRAG
FN 301467i


UST-ID-NUMMER
ATU64073512
Anbieter kontaktieren

AGB, Datenschutz & Verbraucherhinweis wurden gelesen und akzeptiert.