Angebot 9060 von 18606

Anbieter kontaktieren

AGB, Datenschutz & Verbraucherhinweis wurden gelesen und akzeptiert.

HausHirsch GmbH

Marina Glaubrecht
Downtown Dubai
  • Mehr erfahren
bellevue.de-ID: 30609795

Luxuriöse 6-Schlafzimmer-Villa mit privatem Pool - Ultimatives Luxus-Wohngefühl

  • Haus
  • · 7 Zimmer
  • · 668 m² Wohnfläche
  • · 810 m² Grundstücksfläche
  • · 3.388.077 € Kaufpreis
Anbieter kontaktieren

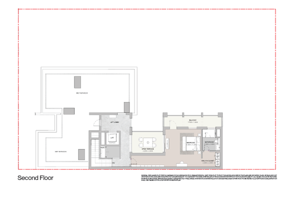
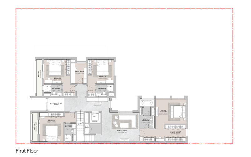
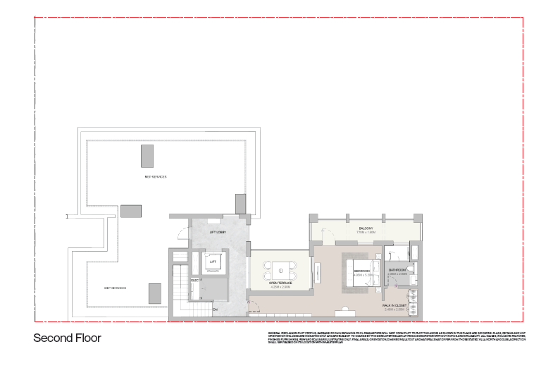
Objektbeschreibung

Willkommen in einem wirklich bemerkenswerten Anwesen, das die perfekte Mischung aus Platz, Luxus und Komfort bietet. Diese expansive 6-Schlafzimmer-Villa verfügt über einen riesigen Grundriss und bietet reichlich Platz für Familien, um sich ...mehr lesen
Willkommen in einem wirklich bemerkenswerten Anwesen, das die perfekte Mischung aus Platz, Luxus und Komfort bietet. Diese expansive 6-Schlafzimmer-Villa verfügt über einen riesigen Grundriss und bietet reichlich Platz für Familien, um sich auszubreiten und stilvoll zu entspannen. Investoren werden von den hochwertigen Ausstattungen und der Liebe zum Detail im gesamten Haus beeindruckt sein. Mit mehreren Wohnbereichen, einer Gourmetküche und atemberaubenden Außenbereichen ist diese Villa der Traum eines jeden Unterhalters. Verpassen Sie nicht die Gelegenheit, diese exquisite Immobilie zu besitzen, die selbst den anspruchsvollsten Käufer beeindrucken wird.

Immobiliendetails

  • Nutzungsart
    Wohnen
  • Objektart
    Villa
  • Hauptobjektart
    Haus
  • Vertragsart
    Kauf
  • Objektzustand
    Erstbezug
  • Zimmer (gesamt)
    7
  • Anzahl Schlafzimmer
    6
  • Anzahl Badezimmer
    6
  • Wohnfläche (ca.)
    667,62 m²
  • Grundstücksfläche (ca.)
    810 m²
  • Küche
    Einbauküche (EBK)
  • Balkon
    1
  • Bad
    Duschbad, Bad mit Dusche und Badewanne, Bidet
  • Ausstattungskategorie
    Luxus
  • Anbieter-Objektnummer
    ELWood 6BHK Villa TypeB - DV-8061

Preise & Kosten

  • Courtage
    Keine Kommission

Energie

  • Gebäudeart
    Wohngebäude

Ausstattung

  • Kamin
  • Gäste-WC
  • Klimanalage
  • Swimmingpool
  • Garten
Wenn Sie diese atemberaubende Luxusvilla mit 6 Schlafzimmern erkunden, werden Sie von der Schönheit und Ruhe, die Sie umgibt, begeistert sein. Die Villa befindet sich in einer Gemeinschaft mit über 10.000 Bäumen, die sich auf sieben einzigartige ...mehr lesen
Wenn Sie diese atemberaubende Luxusvilla mit 6 Schlafzimmern erkunden, werden Sie von der Schönheit und Ruhe, die Sie umgibt, begeistert sein. Die Villa befindet sich in einer Gemeinschaft mit über 10.000 Bäumen, die sich auf sieben einzigartige Parks verteilen, die von den globalen Wäldern inspiriert sind.

Wellness- und Fitnessbegeisterte werden den 7,5 km langen Wellness-Parcours, die offenen Fitnessbereiche, die Rundenpools und die Yogawiese in der Gemeinde zu schätzen wissen. Für Sportbegeisterte gibt es Basketball-, Fußball-, Paddle- und Pickleballplätze, ein Cricket-Übungsfeld, einen Skatepark und ein Wasserspiel mit Aktivitäten.

Für Freizeit und Entspannung bietet die Villa private Außenbereiche wie einen Swimmingpool, einen Garten und große Außenterrassen. Im Inneren finden Sie voll ausgestattete Küchen mit Bosch/Siemens-Geräten, Schlafzimmer mit eigenem Bad und begehbarem Kleiderschrank, ein separates Zimmer für das Hausmädchen sowie geräumige Wohn- und Essbereiche.

Die Gemeinschaft bietet auch wichtige Einrichtungen wie ein Clubhaus, eine Schule, eine Klinik, Einzelhandelsgeschäfte, Cafés und Restaurants. Dank des 24/7-Sicherheitsdienstes und des bewachten Zugangs können Sie sich in dieser exklusiven Umgebung in aller Ruhe umsehen.

Ganz gleich, ob Sie auf der Suche nach nachhaltigen Merkmalen wie Ladestationen für Elektrofahrzeuge oder nach überdachten Parkplätzen sind, diese Villa bietet Ihnen alles. Leben Sie in Luxus und Privatsphäre, mit Zugang zu allen Annehmlichkeiten und Dienstleistungen, die Sie benötigen, in Reichweite. Willkommen in Ihrem Traumhaus.

Standort & Lage

In der pulsierenden Stadt Dubai gelegen, bietet Al Yufra an der Straße Dubai-Al Ain ein dynamisches und aufregendes Lebensumfeld.

Die Bewohner haben leichten Zugang zu den Dingen des täglichen Bedarfs, denn ein Supermarkt ist nur einen Steinwurf ...mehr lesen
In der pulsierenden Stadt Dubai gelegen, bietet Al Yufra an der Straße Dubai-Al Ain ein dynamisches und aufregendes Lebensumfeld.

Die Bewohner haben leichten Zugang zu den Dingen des täglichen Bedarfs, denn ein Supermarkt ist nur einen Steinwurf entfernt. In der Nachbarschaft befinden sich auch verschiedene Arztpraxen und Apotheken, die eine bequeme medizinische Versorgung gewährleisten.

Für Familien mit kleinen Kindern gibt es in der Nähe mehrere Bildungseinrichtungen, darunter Kindergärten, Grundschulen, weiterführende Schulen und Universitäten.

Zur Freizeitgestaltung können die Bewohner das nahegelegene Freizeitzentrum nutzen und die lebhafte Stadt erkunden, die nur eine kurze Autofahrt entfernt ist.

Die nächste Bushaltestelle und die Autobahnauffahrt befinden sich in unmittelbarer Nähe und bieten eine gute Anbindung an andere Teile der Stadt.

Al Yufra an der Straße Dubai-Al Ain ist die perfekte Mischung aus Komfort und Wohnqualität und bietet den Bewohnern einen abgerundeten Lebensstil im Herzen von Dubai.

· Dubai · ARE

Ansprechpartner

Marina Glaubrecht

Sidra Tower al Sufouh, 1 Office 1301
Downtown Dubai
Verbraucherhinweis

Widerrufsbelehrung des Anbieters

(Gilt nicht für Wohnraummiete in Deutschland)

Widerrufsrecht für Verbraucher
Sie haben das Recht, binnen vierzehn Tagen ohne Angabe von Gründen diesen Vertrag zu widerrufen. Die Widerrufsfrist beträgt vierzehn Tage ab dem Tag des Vertragsabschlusses.
Um Ihr Widerrufsrecht auszuüben, müssen Sie uns (HausHirsch GmbH, Dreischeibenhaus 1, 40211D Düsseldorf, +49 0 800 000 1244, +49 211 8825025, info@haushirsch.de) mittels einer eindeutigen Erklärung (z. B. ein mit der Post versandter Brief, Telefax oder E-Mail) über Ihren Entschluss, diesen Vertrag zu widerrufen, informieren. Sie können dafür das beigefügte Muster-Widerrufsformular verwenden, das jedoch nicht vorgeschrieben ist. Zur Wahrung der Widerrufsfrist reicht es aus, dass Sie die Mitteilung über die Ausübung des Widerrufsrechts vor Ablauf der Widerrufsfrist absenden.

Folgen des Widerrufs
Wenn Sie diesen Vertrag widerrufen, haben wir Ihnen alle Zahlungen, die wir von Ihnen erhalten haben, einschließlich der Lieferkosten (mit Ausnahme der zusätzlichen Kosten, die sich daraus ergeben, dass Sie eine andere Art der Lieferung als die von uns angebotene, günstigste Standardlieferung gewählt haben), unverzüglich und spätestens binnen vierzehn Tagen ab dem Tag zurückzuzahlen, an dem die Mitteilung über Ihren Widerruf dieses Vertrags bei uns eingegangen ist. Für diese Rückzahlung verwenden wir dasselbe Zahlungsmittel, das Sie bei der ursprünglichen Transaktion eingesetzt haben, es sei denn, mit Ihnen wurde ausdrücklich etwas anderes vereinbart; in keinem Fall werden Ihnen wegen dieser Rückzahlung Entgelte berechnet. Haben Sie verlangt, dass die Dienstleistungen während der Widerrufsfrist beginnen soll, so haben Sie uns einen angemessenen Betrag zu zahlen, der dem Anteil der bis zu dem Zeitpunkt, zu dem Sie uns von der Ausübung des Widerrufsrechts hinsichtlich dieses Vertrags unterrichten, bereits erbrachten Dienstleistungen im Vergleich zum Gesamtumfang der im Vertrag vorgesehenen Dienstleistungen entspricht.

Muster-Widerrufsformular
(Wenn Sie den Vertrag widerrufen wollen, dann füllen Sie dieses Formular aus und senden Sie es zurück.)

An HausHirsch GmbH, Dreischeibenhaus 1, 40211D Düsseldorf, +49 0 800 000 1244, +49 211 8825025, info@haushirsch.de

Hiermit widerrufe ich/wir den von mir/uns abgeschlossenen Vertrag über den Kauf der folgenden Waren /die Erbringung der folgenden Dienstleistung


Bestellt am /erhalten am

Name des/der Verbraucher(s)

Anschrift des/der Verbraucher(s)

Unterschrift des/der Verbraucher(s) (nur bei Mitteilung auf Papier)

Datum


( Unzutreffendes streichen )


Hinweis auf die Möglichkeit eines vorzeitigen Erlöschens des Widerrufsrechts

Ihr Widerrufsrecht erlischt, wenn wir unsere Leistung vollständig erbracht haben und mit der Ausführung der Leistung erst begonnen haben, nachdem Sie Ihre ausdrückliche Zustimmung gegeben haben und gleichzeitig Ihre Kenntnis davon bestätigt haben, dass Sie Ihr Widerrufsrecht bei vollständiger Vertragserfüllung durch uns verlieren.

Impressum HausHirsch GmbH
VERTRETUNGSBERECHTIGTE/R
Marius Wolf


Dreischeibenhaus 1
40211D Düsseldorf
DEU
Tel.: +49 0 800 000 1244
E-Mail: info@haushirsch.de
Fax: +49 211 8825025
Homepage: https://haushirsch.de

ZUSTÄNDIGE AUFSICHTSBEHÖRDE
Die Gewerbeanmeldung nach § 34 c GewO wurde durch Stadt Düsseldorf (www.duesseldorf.de) erteilt.

HANDELSREGISTER-EINTRAG
Amtsgericht Düsseldorf, HRB 99093


UST-ID-NUMMER
DE362155160
Anbieter kontaktieren

AGB, Datenschutz & Verbraucherhinweis wurden gelesen und akzeptiert.