Angebot 2069 von 17613

Anbieter kontaktieren

AGB, Datenschutz & Verbraucherhinweis wurden gelesen und akzeptiert.

Eggert Eggers Immobilienmakler

Eggert Eggers
25813 Husum
  • Mehr erfahren
bellevue.de-ID: 30609387

TOPLAGE HUSUM mit Potential: Repräsentative VILLA AM SCHLOSSPARK mit großem Süd-Garten/ Bauplatz !

  • Haus
  • · 12 Zimmer
  • · 350 m² Wohnfläche
  • · 1.420 m² Grundstücksfläche
  • · 980.000 € Kaufpreis
Anbieter kontaktieren

Objektbeschreibung

Einmalige Gelegenheit - Wunderschöne Stadtvilla/ Baudenkmal mit einem riesigen Südgrundstück direkt am Schlosspark ! Perfekter Wohn- & Kanzlei-/Praxis-/ Bürostandort !

Die um 1900 klassisch massiv errichtete Gründerzeitvilla mit Treppenhaus verfügt ...mehr lesen
Einmalige Gelegenheit - Wunderschöne Stadtvilla/ Baudenkmal mit einem riesigen Südgrundstück direkt am Schlosspark ! Perfekter Wohn- & Kanzlei-/Praxis-/ Bürostandort !

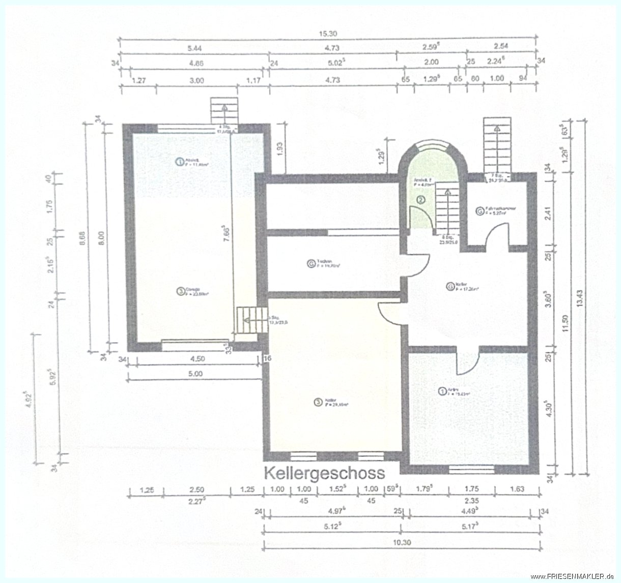
Die um 1900 klassisch massiv errichtete Gründerzeitvilla mit Treppenhaus verfügt über 3 Wohnetagen und einen Vollkeller mit extragroßer Tiefgarage. In den 60er Jahren wurde seitlich eine Erweiterung gebaut mit Büroräumen, Wohnfläche und Südbalkon.

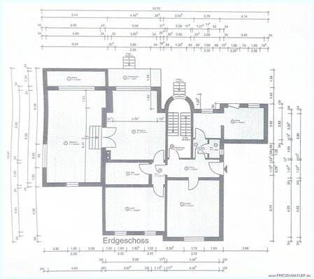
Aufteilung Erdgeschoss:
Flur, 2 Schlafzimmer, Esszimmer mit Ausgang zum Wintergarten, Wohnzimmer mit Balkon, Küche mit Essgelegenheit und Terrassenausgang, Gäste- WC, Badezimmer vorbereitet

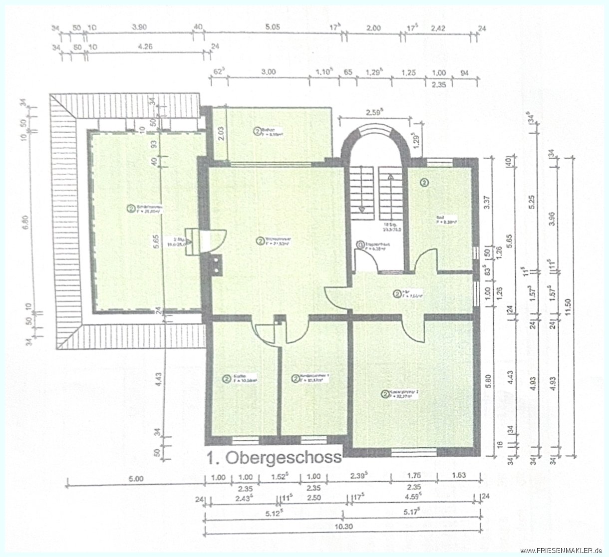
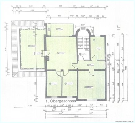
Aufteilung 1. Obergeschoss:
Flur, Schlafzimmer, Wohnzimmer mit Balkonausgang, Kinderzimmer, Büro, Badezimmer, Küche

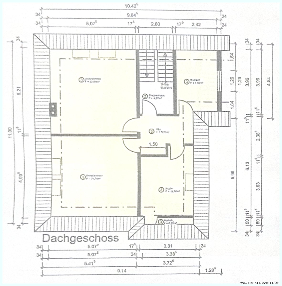
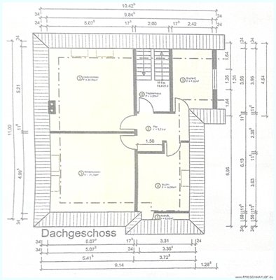
Aufteilung Dachgeschoss:
Flur, Wohnzimmer, Schlafzimmer, Küche, Badezimmer

Der südliche Grundstücksbereich bietet weitere Bebauungsmöglichkeiten welche perfekt über eine eigene Zufahrt erschlossen werden können.

Das Gebäude ist von solider Substanz - es besteht allerdings erheblicher Investitionsstau in puncto Dämmung, Dach, Installationen u.v.m. - Das Objekt ist verfügbar nach Vereinbarung !

Weitere Informationen auf Nachfrage !

Immobiliendetails

  • Nutzungsart
    Wohnen
  • Objektart
    Villa
  • Hauptobjektart
    Haus
  • Vertragsart
    Kauf
  • Objektzustand
    Sanierungsbedürftig
  • Baujahr
    1891
  • Zimmer (gesamt)
    12
  • Anzahl Schlafzimmer
    7
  • Anzahl Badezimmer
    3
  • Wohnfläche (ca.)
    350 m²
  • Grundstücksfläche (ca.)
    1.420 m²
  • Nutzfläche (ca.)
    145 m²
  • Küche
    Einbauküche (EBK)
  • Denkmalschutzobjekt
  • Anzahl Terrassen
    1
  • Stellplatzart
    Duplex, Garage
  • Garagenstellplätze
    3
  • Dachform
    Flachdach
  • Bauweise
    Massivhaus
  • Anbieter-Objektnummer
    1024

Preise & Kosten

  • Courtage
    2,98 % inklusive der gesetzlichen Mehrwertsteuer

Energie

  • Heizungsart
    Zentralheizung
  • Befeuerungsart
    Öl
  • Energieausweis
    nicht nötig
  • Energieverbrauch für Warmwasser
    nicht enthalten
  • Gebäudeart
    Wohngebäude

Ausstattung

  • Keller
Ölzentralheizung 2023 erneuert!

Standort & Lage

Im Herzen der Stormstadt Husum an der Nordsee steht diese reizvolle Wohnimmobilie. Vis-a-vis dem Schloss genießen Sie den Blick in den Schlosspark und spazieren wenige Schritte durch den Schlossgang zum Marktplatz und die Husumer Innenstadt mit ...mehr lesen
Im Herzen der Stormstadt Husum an der Nordsee steht diese reizvolle Wohnimmobilie. Vis-a-vis dem Schloss genießen Sie den Blick in den Schlosspark und spazieren wenige Schritte durch den Schlossgang zum Marktplatz und die Husumer Innenstadt mit Bahnhof, Hafen und diversen gastronomischen und kulturellen Angeboten. Etwa 10 Minuten radelt man zum Nordseedeich mit Badestelle am Dockkoog vor den Toren der Stadt an der Husumer Bucht!

25813 Husum · Nordsee · DEU

Die genaue Anschrift erfahren Sie vom Anbieter

Sonstiges

Es werden nur Anfragen mit vollständigen Kontaktdaten mit Adresse und Telefonnummer bearbeitet! Dieses Exposé wurde nach bestem Wissen und Gewissen gefertigt. Sämtliche Unterlagen und Informationen wurden uns vom Auftraggeber übergeben. Für die ...mehr lesen
Es werden nur Anfragen mit vollständigen Kontaktdaten mit Adresse und Telefonnummer bearbeitet! Dieses Exposé wurde nach bestem Wissen und Gewissen gefertigt. Sämtliche Unterlagen und Informationen wurden uns vom Auftraggeber übergeben. Für die Richtigkeit der Angaben können wir daher keine Gewähr übernehmen. Irrtum und Zwischenverkauf vorbehalten.

Dies ist ein Angebot der Firma
Eggert Eggers Immobilienmakler
Schiffbrücke 4
25813 Husum
Tel. 04841 - 802 412 , Fax 04841 - 802 413
mobil 0177 - 25 99 006
www.FRIESENMAKLER.de
info@FRIESENMAKLER.de

Ansprechpartner

Verbraucherhinweis

Widerrufsbelehrung des Anbieters

(Gilt nicht für Wohnraummiete in Deutschland)

Widerrufsrecht für Verbraucher
Sie haben das Recht, binnen vierzehn Tagen ohne Angabe von Gründen diesen Vertrag zu widerrufen. Die Widerrufsfrist beträgt vierzehn Tage ab dem Tag des Vertragsabschlusses.
Um Ihr Widerrufsrecht auszuüben, müssen Sie uns (Eggert Eggers Immobilienmakler, Schiffbrücke 4, 25813 Husum, 04841-802412, info@friesenmakler.de) mittels einer eindeutigen Erklärung (z. B. ein mit der Post versandter Brief, Telefax oder E-Mail) über Ihren Entschluss, diesen Vertrag zu widerrufen, informieren. Sie können dafür das beigefügte Muster-Widerrufsformular verwenden, das jedoch nicht vorgeschrieben ist. Zur Wahrung der Widerrufsfrist reicht es aus, dass Sie die Mitteilung über die Ausübung des Widerrufsrechts vor Ablauf der Widerrufsfrist absenden.

Folgen des Widerrufs
Wenn Sie diesen Vertrag widerrufen, haben wir Ihnen alle Zahlungen, die wir von Ihnen erhalten haben, einschließlich der Lieferkosten (mit Ausnahme der zusätzlichen Kosten, die sich daraus ergeben, dass Sie eine andere Art der Lieferung als die von uns angebotene, günstigste Standardlieferung gewählt haben), unverzüglich und spätestens binnen vierzehn Tagen ab dem Tag zurückzuzahlen, an dem die Mitteilung über Ihren Widerruf dieses Vertrags bei uns eingegangen ist. Für diese Rückzahlung verwenden wir dasselbe Zahlungsmittel, das Sie bei der ursprünglichen Transaktion eingesetzt haben, es sei denn, mit Ihnen wurde ausdrücklich etwas anderes vereinbart; in keinem Fall werden Ihnen wegen dieser Rückzahlung Entgelte berechnet. Haben Sie verlangt, dass die Dienstleistungen während der Widerrufsfrist beginnen soll, so haben Sie uns einen angemessenen Betrag zu zahlen, der dem Anteil der bis zu dem Zeitpunkt, zu dem Sie uns von der Ausübung des Widerrufsrechts hinsichtlich dieses Vertrags unterrichten, bereits erbrachten Dienstleistungen im Vergleich zum Gesamtumfang der im Vertrag vorgesehenen Dienstleistungen entspricht.

Muster-Widerrufsformular
(Wenn Sie den Vertrag widerrufen wollen, dann füllen Sie dieses Formular aus und senden Sie es zurück.)

An Eggert Eggers Immobilienmakler, Schiffbrücke 4, 25813 Husum, 04841-802412, info@friesenmakler.de

Hiermit widerrufe ich/wir den von mir/uns abgeschlossenen Vertrag über den Kauf der folgenden Waren /die Erbringung der folgenden Dienstleistung


Bestellt am /erhalten am

Name des/der Verbraucher(s)

Anschrift des/der Verbraucher(s)

Unterschrift des/der Verbraucher(s) (nur bei Mitteilung auf Papier)

Datum


( Unzutreffendes streichen )


Hinweis auf die Möglichkeit eines vorzeitigen Erlöschens des Widerrufsrechts

Ihr Widerrufsrecht erlischt, wenn wir unsere Leistung vollständig erbracht haben und mit der Ausführung der Leistung erst begonnen haben, nachdem Sie Ihre ausdrückliche Zustimmung gegeben haben und gleichzeitig Ihre Kenntnis davon bestätigt haben, dass Sie Ihr Widerrufsrecht bei vollständiger Vertragserfüllung durch uns verlieren.

Impressum Eggert Eggers Immobilienmakler
VERTRETUNGSBERECHTIGTE/R
Eggert Eggers


Schiffbrücke 4
25813 Husum
DEU
Tel.: 04841-802412
E-Mail: info@friesenmakler.de
Homepage: https://www.friesenmakler.de

ZUSTÄNDIGE AUFSICHTSBEHÖRDE
Ordnungsamt Husum, Zingel 10, 25813 Husum

UST-ID-NUMMER
Ordnungsamt Husum, Zingel 10, 25813 Husum
Anbieter kontaktieren

AGB, Datenschutz & Verbraucherhinweis wurden gelesen und akzeptiert.