Anbieter kontaktieren
Baum Immobilien GmbH
Martyna Skrzypek
40667 Meerbusch
- Mehr erfahren
bellevue.de-ID: 30608851
Charmante 2-Zimmer-Wohnung mit EBK und traumhaftem Ausblick in beliebter Lage von Büderich
- Wohnung
- · 2 Zimmer
- · 76 m² Wohnfläche
- · 900 € Miete zzgl. NK
Objektbeschreibung
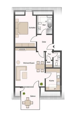
Beim Betreten der Wohnung gelangen Sie in die großzügige Diele, von der aus Sie direkten Zugang zu allen Räumen der Immobilie haben. Das lichtdurchflutete Wohnzimmer bietet Zugang zum Balkon in Süd-West-Lage und lädt zum Entspannen ein. Die großen
...mehr lesen
Beim Betreten der Wohnung gelangen Sie in die großzügige Diele, von der aus Sie direkten Zugang zu allen Räumen der Immobilie haben. Das lichtdurchflutete Wohnzimmer bietet Zugang zum Balkon in Süd-West-Lage und lädt zum Entspannen ein. Die großen Fenster lassen viel Tageslicht herein und schaffen eine freundliche und helle Atmosphäre.
Vom Wohnzimmer aus erreichen Sie die Küche, die mit einer Einbauküche und einem Fenster ausgestattet ist.
Das gemütliche Schlafzimmer bietet genügend Platz für ein Doppelbett und einen geräumigen Kleiderschrank. Der Kleiderschrank, welcher im Exposé zu sehen ist, kann im Rahmen einer Abstandzahlung vom Vormieter abgekauft werden. Das Badezimmer verfügt über eine Dusche, eine Badewanne sowie ein Fenster.
Ein separates Gäste-WC und ein praktischer Abstellraum runden das Raumangebot ab.
Zur Wohnung gehören zudem eine Einzelgarage für 50,00 € monatlich und ein gut geschnittener Kellerraum.
Aufteilung:
- Diele
- Wohnzimmer
- Küche
- Schlafzimmer
- Badezimmer
- Abstellraum
- Gäste-WC
Vom Wohnzimmer aus erreichen Sie die Küche, die mit einer Einbauküche und einem Fenster ausgestattet ist.
Das gemütliche Schlafzimmer bietet genügend Platz für ein Doppelbett und einen geräumigen Kleiderschrank. Der Kleiderschrank, welcher im Exposé zu sehen ist, kann im Rahmen einer Abstandzahlung vom Vormieter abgekauft werden. Das Badezimmer verfügt über eine Dusche, eine Badewanne sowie ein Fenster.
Ein separates Gäste-WC und ein praktischer Abstellraum runden das Raumangebot ab.
Zur Wohnung gehören zudem eine Einzelgarage für 50,00 € monatlich und ein gut geschnittener Kellerraum.
Aufteilung:
- Diele
- Wohnzimmer
- Küche
- Schlafzimmer
- Badezimmer
- Abstellraum
- Gäste-WC
Immobiliendetails
-
NutzungsartWohnen
-
ObjektartEtagenwohnung
-
HauptobjektartWohnung
-
VertragsartMiete
-
ObjektzustandGepflegt
-
Baujahr1993
-
Zimmer (gesamt)2
-
Anzahl Schlafzimmer1
-
Anzahl Badezimmer1
-
Anzahl separate WC1
-
Wohnfläche (ca.)76 m²
-
Etage1
-
StellplatzartGarage
-
Anzahl Etagen2
-
FußbodenFliesen, Laminat
-
Verfügbarkeitab 01.02.2026
-
Anbieter-Objektnummer1449-W266-MS
Preise & Kosten
-
Miete inkl. Nebenkosten1.130 €
-
Kaution/ Genossenschaftsanteile2.700 €
-
Nebenkosten230 €
-
CourtageKeine besondere Angabe.
Energie
-
HeizungsartZentralheizung, Fussbodenheizung
-
EnergieausweisEnergieverbrauchsausweis
-
Endenergieverbrauch159,2 kWh/(m²*a)
-
Baujahr (laut Energieausweis)1993
-
Energiepass gültig bis2032-03-22
-
EnergieeffizienzklasseE
-
GebäudeartWohngebäude
-
Wesentlicher EnergieträgerERDGAS_LEICHT
-
Ausgestelltnach dem 1.5.2014
Ausstattung
- Keller
- Balkon
- weitläufiger Grünblick
- elektrische Markise
- doppelverglaste Fenster
- Gegensprechanlage
- Hausmeisterdienst und Treppenhausreinigung in den Nebenkosten enthalten
- Tageslichtbad mit Dusche und Wanne
- Einbauküche
- 1 Abstellraum
- 1 Gäste-WC
- ...mehr lesen
- weitläufiger Grünblick
- elektrische Markise
- doppelverglaste Fenster
- Gegensprechanlage
- Hausmeisterdienst und Treppenhausreinigung in den Nebenkosten enthalten
- Tageslichtbad mit Dusche und Wanne
- Einbauküche
- 1 Abstellraum
- 1 Gäste-WC
- ...mehr lesen
- Balkon
- weitläufiger Grünblick
- elektrische Markise
- doppelverglaste Fenster
- Gegensprechanlage
- Hausmeisterdienst und Treppenhausreinigung in den Nebenkosten enthalten
- Tageslichtbad mit Dusche und Wanne
- Einbauküche
- 1 Abstellraum
- 1 Gäste-WC
- Waschküche
- Einzelgarage für 50,00 € monatlich
- weitläufiger Grünblick
- elektrische Markise
- doppelverglaste Fenster
- Gegensprechanlage
- Hausmeisterdienst und Treppenhausreinigung in den Nebenkosten enthalten
- Tageslichtbad mit Dusche und Wanne
- Einbauküche
- 1 Abstellraum
- 1 Gäste-WC
- Waschküche
- Einzelgarage für 50,00 € monatlich
Standort & Lage
Meerbusch-Büderich liegt vor den Toren der Landeshauptstadt Düsseldorf und ist bevorzugter Wohnort für alle, die das pulsierende Leben in einer beschaulichen Umgebung in direkter Rheinlage schätzen, ohne auf die Nähe der Großstadt verzichten zu
...mehr lesen
Meerbusch-Büderich liegt vor den Toren der Landeshauptstadt Düsseldorf und ist bevorzugter Wohnort für alle, die das pulsierende Leben in einer beschaulichen Umgebung in direkter Rheinlage schätzen, ohne auf die Nähe der Großstadt verzichten zu wollen.
Die Wohnung befindet sich in ruhiger Lage von Meerbusch-Büderich. Büderich liegt im Süden Meerbuschs, umringt von den Städten Kaarst, Neuss und Düsseldorf.
Der Sportpark Büderich sowie das Gut Dyckhof stehen Ihnen in Nähe zur Verfügung.
Im unmittelbaren alten Ortskern befinden sich Einkaufsmöglichkeiten des täglichen Bedarfs, Modeboutiquen und Gastronomie. Alle Aktivitäten können zu Fuß, mit dem Fahrrad oder den öffentlichen Verkehrsmitteln erledigt werden.
Büderich besticht durch seine ungewöhnliche Lage direkt in der Natur und punktet dabei mit seiner hervorragenden Verkehrsanbindung. Der internationale Flughafen Düsseldorf kann über die A 44 in ca. 15 Minuten erreicht werden. Die Autobahnen A 52 und A 57 sind ebenfalls in wenigen Minuten zu erreichen. Ideale Anbindungen an den ÖPNV bietet eine nahegelegene Bushaltestelle.
Die Wohnung befindet sich in ruhiger Lage von Meerbusch-Büderich. Büderich liegt im Süden Meerbuschs, umringt von den Städten Kaarst, Neuss und Düsseldorf.
Der Sportpark Büderich sowie das Gut Dyckhof stehen Ihnen in Nähe zur Verfügung.
Im unmittelbaren alten Ortskern befinden sich Einkaufsmöglichkeiten des täglichen Bedarfs, Modeboutiquen und Gastronomie. Alle Aktivitäten können zu Fuß, mit dem Fahrrad oder den öffentlichen Verkehrsmitteln erledigt werden.
Büderich besticht durch seine ungewöhnliche Lage direkt in der Natur und punktet dabei mit seiner hervorragenden Verkehrsanbindung. Der internationale Flughafen Düsseldorf kann über die A 44 in ca. 15 Minuten erreicht werden. Die Autobahnen A 52 und A 57 sind ebenfalls in wenigen Minuten zu erreichen. Ideale Anbindungen an den ÖPNV bietet eine nahegelegene Bushaltestelle.
Sonstiges
Weitere interessante Angebote finden Sie auf unserer Homepage:
www.baumimmobilien.com
www.baumimmobilien.com
Anbieter
Baum Immobilien GmbH
Frau Nadine Baum
Dorfstraße 13
40667 Meerbusch
40667 Meerbusch
Ansprechpartner
Martyna Skrzypek
Dorfstraße 13
40667 Meerbusch
40667 Meerbusch