Angebot 2394 von 17613

Anbieter kontaktieren

AGB, Datenschutz & Verbraucherhinweis wurden gelesen und akzeptiert.

Dianium Inmo - Concept S.L.

Cornelia Grün
03750 Pedreguer
  • Mehr erfahren
bellevue.de-ID: 30608517

Fantastisches Penthouse direkt am Strand | Juan-les-Pins

  • Wohnung
  • · 3 Zimmer
  • · 88 m² Wohnfläche
  • · 1.180.000 € Kaufpreis
Anbieter kontaktieren

Objektbeschreibung

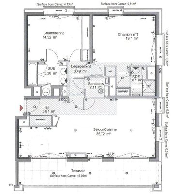
Dieses helle Penthouse mit 87 m² Wohnfläche liegt in einer neueren, gehobenen Wohnanlage, mit einem außergewöhnlichen, panoramischen Meerblick und befindet sich in Juan-les-Pins.

Die Wohnung ist ausgestattet mit einem großzügigem Wohnzimmer mit ...mehr lesen
Dieses helle Penthouse mit 87 m² Wohnfläche liegt in einer neueren, gehobenen Wohnanlage, mit einem außergewöhnlichen, panoramischen Meerblick und befindet sich in Juan-les-Pins.

Die Wohnung ist ausgestattet mit einem großzügigem Wohnzimmer mit offener Küche, beide haben einen Zugang zu einer großen, 20 m² großen Südterrasse, die ein atemberaubendes Panorama bietet.

Des Weiteren verfügt sie über zwei Schlafzimmer welche sehr komfortabel und gut geschnitten sind. Jedes Schlafzimmer hat ein eigenes, wunderschönes Badezimmer.

Sie ist mit hochwertigen Materialien ausgestattet und befindet sich in einem ausgezeichneten Zustand.

Eine private Garage und ein Keller sind im Preis inbegriffen.

Ein Juwel!

Immobiliendetails

  • Nutzungsart
    Wohnen
  • Objektart
    Penthouse
  • Hauptobjektart
    Wohnung
  • Vertragsart
    Kauf
  • Zimmer (gesamt)
    3
  • Anzahl Schlafzimmer
    2
  • Anzahl Badezimmer
    2
  • Anzahl Parkflächen
    1
  • Wohnfläche (ca.)
    87,86 m²
  • Küche
    1
  • Stellplatzart
    Garage
  • Garagenstellplätze
    1
  • Anzahl Etagen
    5
  • Anbieter-Objektnummer
    DIC.18590

Preise & Kosten

  • Courtage
    Keine besondere Angabe.

Standort & Lage

Typisch französisches Flair, eine charmante, geschichtsträchtige Altstadt, traumhafte Strände und unter anderem der Port Vabaun, der Yacht- und Seehafen, der nicht nur zu den attraktivsten an der Riviera zählt, sondern auch europaweit seine eigenen ...mehr lesen
Typisch französisches Flair, eine charmante, geschichtsträchtige Altstadt, traumhafte Strände und unter anderem der Port Vabaun, der Yacht- und Seehafen, der nicht nur zu den attraktivsten an der Riviera zählt, sondern auch europaweit seine eigenen Maßstäbe setzt: Antibes ist eindeutig eine der Städte an der Côte d’Azur, die das Wort Lebensqualität auf ihre eigene, außergewöhnliche Weise buchstabieren. Hier lebt es sich exklusiv, komfortabel, hier treffen Menschen aufeinander, die mehr vom Leben erwarten und sich genau dies auch zu holen wissen.

Von Cannes und Nizza nicht weit entfernt, ist Antibes zudem perfekter Ausgangspunkt, wenn man die nähere Umgebung mit ihren attraktiven Zielen erkunden möchte. Wassersport, Golf und viele andere Freizeitaktivitäten sind hier in unmittelbarer Umgebung möglich und bereichern die Tage unter der strahlenden Sonne der Côte d’Azur.

06600 Antibes · Côte d'Azur - Antibes · FRA

Die genaue Anschrift erfahren Sie vom Anbieter

Anbieter

Logo von Dianium Inmo - Concept S.L.
2025 Best Property Agents

Ansprechpartner

Cornelia Grün

Avenida Marina Alta 56
03750 Pedreguer
Verbraucherhinweis

Widerrufsbelehrung des Anbieters

(Gilt nicht für Wohnraummiete in Deutschland)

Widerrufsrecht für Verbraucher
Sie haben das Recht, binnen vierzehn Tagen ohne Angabe von Gründen diesen Vertrag zu widerrufen. Die Widerrufsfrist beträgt vierzehn Tage ab dem Tag des Vertragsabschlusses.
Um Ihr Widerrufsrecht auszuüben, müssen Sie uns (Dianium Inmo Concept S.L, Avenida Marina Alta 56, 03750 Pedreguer, +34680697751, info@dianium-residence.com) mittels einer eindeutigen Erklärung (z. B. ein mit der Post versandter Brief, Telefax oder E-Mail) über Ihren Entschluss, diesen Vertrag zu widerrufen, informieren. Sie können dafür das beigefügte Muster-Widerrufsformular verwenden, das jedoch nicht vorgeschrieben ist. Zur Wahrung der Widerrufsfrist reicht es aus, dass Sie die Mitteilung über die Ausübung des Widerrufsrechts vor Ablauf der Widerrufsfrist absenden.

Folgen des Widerrufs
Wenn Sie diesen Vertrag widerrufen, haben wir Ihnen alle Zahlungen, die wir von Ihnen erhalten haben, einschließlich der Lieferkosten (mit Ausnahme der zusätzlichen Kosten, die sich daraus ergeben, dass Sie eine andere Art der Lieferung als die von uns angebotene, günstigste Standardlieferung gewählt haben), unverzüglich und spätestens binnen vierzehn Tagen ab dem Tag zurückzuzahlen, an dem die Mitteilung über Ihren Widerruf dieses Vertrags bei uns eingegangen ist. Für diese Rückzahlung verwenden wir dasselbe Zahlungsmittel, das Sie bei der ursprünglichen Transaktion eingesetzt haben, es sei denn, mit Ihnen wurde ausdrücklich etwas anderes vereinbart; in keinem Fall werden Ihnen wegen dieser Rückzahlung Entgelte berechnet. Haben Sie verlangt, dass die Dienstleistungen während der Widerrufsfrist beginnen soll, so haben Sie uns einen angemessenen Betrag zu zahlen, der dem Anteil der bis zu dem Zeitpunkt, zu dem Sie uns von der Ausübung des Widerrufsrechts hinsichtlich dieses Vertrags unterrichten, bereits erbrachten Dienstleistungen im Vergleich zum Gesamtumfang der im Vertrag vorgesehenen Dienstleistungen entspricht.

Muster-Widerrufsformular
(Wenn Sie den Vertrag widerrufen wollen, dann füllen Sie dieses Formular aus und senden Sie es zurück.)

An Dianium Inmo Concept S.L, Avenida Marina Alta 56, 03750 Pedreguer, +34680697751, info@dianium-residence.com

Hiermit widerrufe ich/wir den von mir/uns abgeschlossenen Vertrag über den Kauf der folgenden Waren /die Erbringung der folgenden Dienstleistung


Bestellt am /erhalten am

Name des/der Verbraucher(s)

Anschrift des/der Verbraucher(s)

Unterschrift des/der Verbraucher(s) (nur bei Mitteilung auf Papier)

Datum


( Unzutreffendes streichen )


Hinweis auf die Möglichkeit eines vorzeitigen Erlöschens des Widerrufsrechts

Ihr Widerrufsrecht erlischt, wenn wir unsere Leistung vollständig erbracht haben und mit der Ausführung der Leistung erst begonnen haben, nachdem Sie Ihre ausdrückliche Zustimmung gegeben haben und gleichzeitig Ihre Kenntnis davon bestätigt haben, dass Sie Ihr Widerrufsrecht bei vollständiger Vertragserfüllung durch uns verlieren.

Impressum Dianium Inmo Concept S.L
VERTRETUNGSBERECHTIGTE/R
Cornelia Grün


Avenida Marina Alta 56
03750 Pedreguer
ESP
Tel.: +34680697751
E-Mail: info@dianium-residence.com
Homepage: www.dianium-residence.com

HANDELSREGISTER-EINTRAG
Alicante B-54664057


UST-ID-NUMMER
ESB 54664057
Anbieter kontaktieren

AGB, Datenschutz & Verbraucherhinweis wurden gelesen und akzeptiert.