Angebot 86 von 290

Anbieter kontaktieren

AGB, Datenschutz & Verbraucherhinweis wurden gelesen und akzeptiert.

KITZIMMO - Real Estate - OG

Franz Gobec RR Bgm.a.D.
6370 Kitzbühel
  • Mehr erfahren
bellevue.de-ID: 30607033

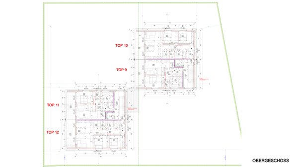
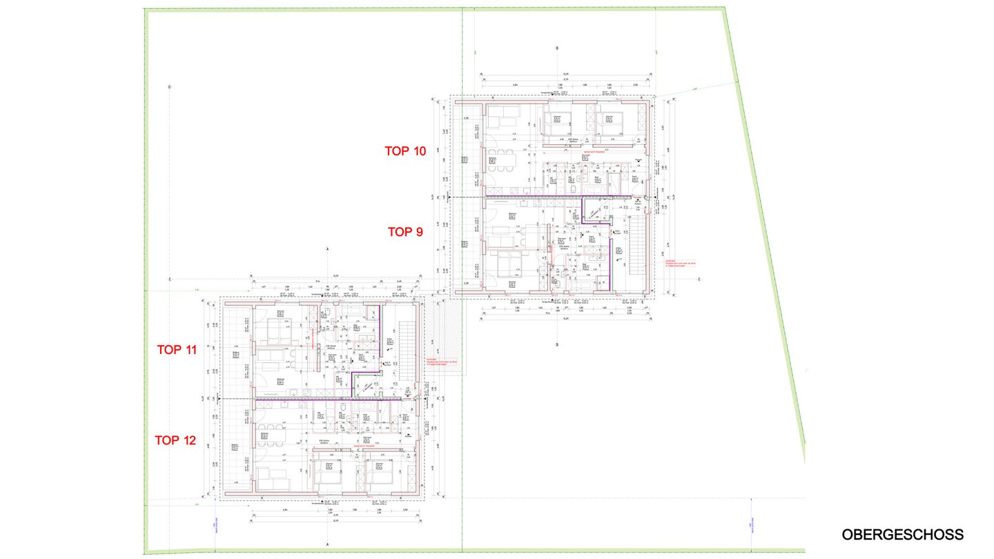
Hollersbach Residenz - Top 9

  • Wohnung
  • · 2 Zimmer
  • · 55 m² Wohnfläche
  • · Preis auf Anfrage
Anbieter kontaktieren

Objektbeschreibung

Eingebettet in den Hohen Tauern befindet sich die malerische Ortschaft Hollersbach.
Mitten in zentraler Lage entsteht eine exklusive Wohnanlage mit 12 Einheiten in einem der schönsten Täler Salzburgs. Das Gebiet rund um Hollersbach und die ...mehr lesen
Eingebettet in den Hohen Tauern befindet sich die malerische Ortschaft Hollersbach.
Mitten in zentraler Lage entsteht eine exklusive Wohnanlage mit 12 Einheiten in einem der schönsten Täler Salzburgs. Das Gebiet rund um Hollersbach und die einzigartige, teilweise unberührte Natur, zieht jedes Jahr zahlreiche Touristen und Besucher an.

Die Wohnanlage befindet sich gerade in der Bauphase und wird voraussichtlich Mitte 2026 fertiggestellt. Die Innenräume überzeugen durch stilvolle Materialien: so wird in den Wohn- und Schlafräumen edles Eichenparkett verlegt, während Flure, Bäder und WC mit zeitlos eleganten Fliesen ausgestattet werden. Fenster und Terrassentüren sind in langlebiger Kunststoff-Aluminium-Ausführung gefertigt, die Innentüren bestehen aus hochwertigem Eichenholz. Die Küchen werden mit allen notwendigen Kalt- und Warmwasserinstallationen vorbereitet, sodass jeder Käufer die Ausstattung individuell gestalten kann. Auch die Ausstattung der Badezimmer und die Armaturen sind frei wählbar und bieten somit maximale Flexibilität bei der Gestaltung.

Für ein angenehmes Raumklima sorgt eine energieeffiziente Luftwärmepumpe. Die Elektroinstallationen umfassen Anschlüsse für Internet, TV, E-Herd, Deckenbeleuchtung sowie eine moderne Türsprechanlage. In sämtlichen Räumen kommen Qualitätsprodukte von Busch-Jaeger zum Einsatz.

Als Eigenheim oder als Anlageobjekt bietet diese Immobilie alles, was das Herz begehrt – von hochwertiger Ausstattung über energieeffiziente Technik bis hin zu einer einzigartigen Lage inmitten der Alpen.
Jede der Wohnungen verfügt über ein Kellerabteil sowie zwei zugeordnete Freistellplätze. Ein Personenaufzug ist ebenfalls vorhanden.

Die hier angeboten Wohnung Top 9 bietet auf knapp 55 m² Wohnfläche ein durchdachtes Raumkonzept, verbunden mit einem modernen Wohnerlebnis.
Das Apartment teilt sich wie folgt auf: Eingangsbereich, großzügiges Wohn-Esszimmer mit offener Küche, das Masterschlafzimmer, Badezimmer mit Eckdusche, Badewanne und Doppelwaschtisch. Weiters verfügt die Wohnung über ein Gäste-WC, einen Abstellraum sowie einen Balkon, von dem man das Panorama auf die Hohen Tauern genießen kann. Energiedaten in Arbeit.

Immobiliendetails

  • Nutzungsart
    Wohnen
  • Objektart
    Dachgeschosswohnung
  • Hauptobjektart
    Wohnung
  • Vertragsart
    Kauf
  • Objektzustand
    Erstbezug
  • Baujahr
    2025
  • Zimmer (gesamt)
    2
  • Anzahl Schlafzimmer
    1
  • Anzahl Badezimmer
    1
  • Anzahl separate WC
    1
  • Anzahl Parkflächen
    2
  • Wohnfläche (ca.)
    54,75 m²
  • Küche
    Einbauküche (EBK)
  • Kellerfläche (ca.)
    3,24 m²
  • Balkon/Terrasse (ca.)
    13,37 m²
  • Bad
    Duschbad, Bad mit Dusche und Badewanne
  • Freier Stellplatz
    2
  • Ausrichtung
    Nordwest
  • Ausstattungskategorie
    Gehoben
  • Fußboden
    Fliesen, Holz/Dielen
  • Anbieter-Objektnummer
    MG-0002305_9

Preise & Kosten

  • Courtage
    Provisionsfrei

Energie

  • Heizungsart
    Fussbodenheizung
  • Befeuerungsart
    Luft-/Wasserwärme

Standort & Lage

5731 Hollersbach im Pinzgau · Salzburg · AUT

Die genaue Anschrift erfahren Sie vom Anbieter

Anbieter

Logo von KITZIMMO - Real Estate - OG
2026 Best Property Agents

Ansprechpartner

Verbraucherhinweis

Widerrufsbelehrung des Anbieters

(Gilt nicht für Wohnraummiete in Deutschland)

Widerrufsrecht für Verbraucher
Sie haben das Recht, binnen vierzehn Tagen ohne Angabe von Gründen diesen Vertrag zu widerrufen. Die Widerrufsfrist beträgt vierzehn Tage ab dem Tag des Vertragsabschlusses.
Um Ihr Widerrufsrecht auszuüben, müssen Sie uns (KITZIMMO - Real Estate - OG, Im Gries 27, 6370 Kitzbühel, 0043-676-7047120, 0043-5356-67677, office@kitzimmo.at) mittels einer eindeutigen Erklärung (z. B. ein mit der Post versandter Brief, Telefax oder E-Mail) über Ihren Entschluss, diesen Vertrag zu widerrufen, informieren. Sie können dafür das beigefügte Muster-Widerrufsformular verwenden, das jedoch nicht vorgeschrieben ist. Zur Wahrung der Widerrufsfrist reicht es aus, dass Sie die Mitteilung über die Ausübung des Widerrufsrechts vor Ablauf der Widerrufsfrist absenden.

Folgen des Widerrufs
Wenn Sie diesen Vertrag widerrufen, haben wir Ihnen alle Zahlungen, die wir von Ihnen erhalten haben, einschließlich der Lieferkosten (mit Ausnahme der zusätzlichen Kosten, die sich daraus ergeben, dass Sie eine andere Art der Lieferung als die von uns angebotene, günstigste Standardlieferung gewählt haben), unverzüglich und spätestens binnen vierzehn Tagen ab dem Tag zurückzuzahlen, an dem die Mitteilung über Ihren Widerruf dieses Vertrags bei uns eingegangen ist. Für diese Rückzahlung verwenden wir dasselbe Zahlungsmittel, das Sie bei der ursprünglichen Transaktion eingesetzt haben, es sei denn, mit Ihnen wurde ausdrücklich etwas anderes vereinbart; in keinem Fall werden Ihnen wegen dieser Rückzahlung Entgelte berechnet. Haben Sie verlangt, dass die Dienstleistungen während der Widerrufsfrist beginnen soll, so haben Sie uns einen angemessenen Betrag zu zahlen, der dem Anteil der bis zu dem Zeitpunkt, zu dem Sie uns von der Ausübung des Widerrufsrechts hinsichtlich dieses Vertrags unterrichten, bereits erbrachten Dienstleistungen im Vergleich zum Gesamtumfang der im Vertrag vorgesehenen Dienstleistungen entspricht.

Muster-Widerrufsformular
(Wenn Sie den Vertrag widerrufen wollen, dann füllen Sie dieses Formular aus und senden Sie es zurück.)

An KITZIMMO - Real Estate - OG, Im Gries 27, 6370 Kitzbühel, 0043-676-7047120, 0043-5356-67677, office@kitzimmo.at

Hiermit widerrufe ich/wir den von mir/uns abgeschlossenen Vertrag über den Kauf der folgenden Waren /die Erbringung der folgenden Dienstleistung


Bestellt am /erhalten am

Name des/der Verbraucher(s)

Anschrift des/der Verbraucher(s)

Unterschrift des/der Verbraucher(s) (nur bei Mitteilung auf Papier)

Datum


( Unzutreffendes streichen )


Hinweis auf die Möglichkeit eines vorzeitigen Erlöschens des Widerrufsrechts

Ihr Widerrufsrecht erlischt, wenn wir unsere Leistung vollständig erbracht haben und mit der Ausführung der Leistung erst begonnen haben, nachdem Sie Ihre ausdrückliche Zustimmung gegeben haben und gleichzeitig Ihre Kenntnis davon bestätigt haben, dass Sie Ihr Widerrufsrecht bei vollständiger Vertragserfüllung durch uns verlieren.

Impressum KITZIMMO - Real Estate - OG
VERTRETUNGSBERECHTIGTE/R
Franz Gobec RR Bgm.a.D.


Im Gries 27
6370 Kitzbühel
AUT
Tel.: 0043-676-7047120
E-Mail: office@kitzimmo.at
Fax: 0043-5356-67677
Homepage: https://www.kitzimmo.at/

ZUSTÄNDIGE AUFSICHTSBEHÖRDE
Bezirkshauptmannschaft Kitzbühel

UST-ID-NUMMER
ATU76179109

ZUSÄTZLICHER TEXT
staatl. gepr. und konzess. Immobilientreuhänder, Immobilienmakler, Immobilienverwalter und Bauträger, Mitglied des Ehrenschiedsgerichtes Tirol
Anbieter kontaktieren

AGB, Datenschutz & Verbraucherhinweis wurden gelesen und akzeptiert.