Angebot 7862 von 17107

Anbieter kontaktieren

AGB, Datenschutz & Verbraucherhinweis wurden gelesen und akzeptiert.

HausHirsch GmbH

Mario Costa
Downtown Dubai
  • Mehr erfahren
bellevue.de-ID: 30606667

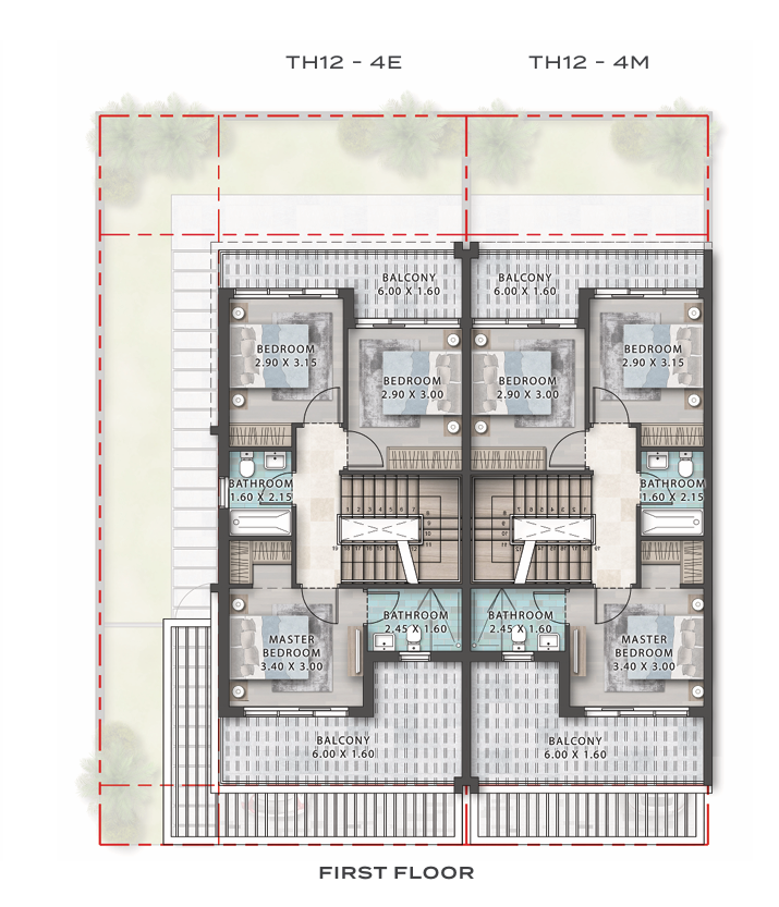
Traumhaftes und luxuriöses Stadthaus mit 4 Schlafzimmern

  • Haus
  • · 5 Zimmer
  • · 145 m² Wohnfläche
  • · 542.200 € Kaufpreis
Anbieter kontaktieren

Objektbeschreibung

Willkommen in Ihrem zukünftigen Zuhause! Dieses geräumige Stadthaus mit 4 Schlafzimmern befindet sich in einer erstklassigen Lage und bietet alles, was Familien und Investoren begeistert. Die Premium-Lage garantiert Ihnen nicht nur eine erstklassige ...mehr lesen
Willkommen in Ihrem zukünftigen Zuhause! Dieses geräumige Stadthaus mit 4 Schlafzimmern befindet sich in einer erstklassigen Lage und bietet alles, was Familien und Investoren begeistert. Die Premium-Lage garantiert Ihnen nicht nur eine erstklassige Infrastruktur, sondern auch eine gute Anbindung an öffentliche Verkehrsmittel und Einkaufsmöglichkeiten. Das Stadthaus besticht durch seine moderne Ausstattung, darunter eine voll ausgestattete Küche, geräumige Wohnbereiche, stilvolle Badezimmer und eine private Terrasse. Genießen Sie den Komfort und die Annehmlichkeiten, die dieses exklusive Stadthaus bietet, und profitieren Sie von einer hervorragenden Investitionsmöglichkeit. Willkommen zu Ihrem Traumhaus!

Immobiliendetails

  • Nutzungsart
    Wohnen
  • Objektart
    Stadthaus
  • Hauptobjektart
    Haus
  • Vertragsart
    Kauf
  • Zimmer (gesamt)
    5
  • Anzahl Schlafzimmer
    4
  • Anzahl Badezimmer
    4
  • Wohnfläche (ca.)
    145 m²
  • Küche
    Einbauküche (EBK)
  • Balkon
    1
  • Anzahl Etagen
    3
  • Als Ferienobjekt nutzbar
  • Anbieter-Objektnummer
    Violet4-TH12-E-4BHK-HA2520890

Preise & Kosten

  • Courtage
    Provisionsfrei

Energie

  • Gebäudeart
    Wohngebäude

Ausstattung

  • Gäste-WC
  • Garten
Willkommen in Ihrem eigenen Paradies direkt am Malibu Beach! Dieses 4-Zimmer-Stadthaus bietet Ihnen die einmalige Gelegenheit, an den sanften Rhythmen des Ozeans zu leben. Stellen Sie sich vor, Sie starten Ihren Tag mit einer Surfsession auf unserem ...mehr lesen
Willkommen in Ihrem eigenen Paradies direkt am Malibu Beach! Dieses 4-Zimmer-Stadthaus bietet Ihnen die einmalige Gelegenheit, an den sanften Rhythmen des Ozeans zu leben. Stellen Sie sich vor, Sie starten Ihren Tag mit einer Surfsession auf unserem Wave Surfing Simulator oder entspannen sich auf dem Lazy River, der Sie durch die gesamte Anlage führt.

Für sportbegeisterte Bewohner stehen Multi-Sports Annehmlichkeiten zur Verfügung, während Sie Ihre Einkäufe im hauseigenen Supermarkt erledigen können. Bleiben Sie fit im Gymnasium oder genießen Sie die sonnigen Tage mit Ihren Kindern im Kids Play Bereich. Abends laden Shopping- und Dining-Areale dazu ein, die kulinarischen Köstlichkeiten zu entdecken und gemütlich zu bummeln.

Dieses Townhouse bietet Ihnen alles, was Sie sich für Ihr Traumhaus wünschen. Erleben Sie die Vielfalt an Möglichkeiten, die dieses Anwesen Ihnen bietet, und lassen Sie sich von der einmaligen Atmosphäre verzaubern. Willkommen zu Ihrem neuen Zuhause am Malibu Beach!

Standort & Lage

Die Stadt Dubai bietet eine einzigartige Mischung aus Luxus, Kultur und Moderne. Die Stadt Damac Hills 2 ist ein exklusiver Stadtteil in Dubai, geprägt von eleganten Gebäuden und atemberaubender Architektur. Hier treffen Annehmlichkeiten der modernen ...mehr lesen
Die Stadt Dubai bietet eine einzigartige Mischung aus Luxus, Kultur und Moderne. Die Stadt Damac Hills 2 ist ein exklusiver Stadtteil in Dubai, geprägt von eleganten Gebäuden und atemberaubender Architektur. Hier treffen Annehmlichkeiten der modernen Welt auf arabische Gastfreundschaft und Traditionen.

In unmittelbarer Nähe der Immobilie finden Sie alles, was Sie für Ihren täglichen Bedarf benötigen. Ein Supermarkt ist gleich um die Ecke, ebenso wie Ärzte und Apotheken, die für Ihre Gesundheit sorgen.

Für Familien mit Kindern ist Damac Hills 2 ein idealer Ort zum Leben. Es gibt Kitas, Grundschulen und weiterführende Schulen in der Nachbarschaft. Auch Universitäten sind gut erreichbar, um den Bildungsbedarf Ihrer Kinder zu decken.

In der Freizeit können Sie zahlreiche Attraktionen in der Nähe genießen. Ein pulsierendes Zentrum bietet Einkaufsmöglichkeiten und Restaurants für jeden Geschmack. Auch die nächste Stadt ist nur einen Katzensprung entfernt, um weitere Abwechslung zu erleben.

Die Anbindung an öffentliche Verkehrsmittel ist hervorragend. Die nächste Haltestelle ist leicht zu Fuß erreichbar und auch die Autobahnauffahrt ist nur wenige Minuten entfernt, um schnell in andere Teile der Stadt zu gelangen.

Dubai · Dubai · ARE

Die genaue Anschrift erfahren Sie vom Anbieter

Ansprechpartner

Mario Costa

Sidra Tower al Sufouh, 1 Office 1301
Downtown Dubai
Verbraucherhinweis

Widerrufsbelehrung des Anbieters

(Gilt nicht für Wohnraummiete in Deutschland)

Widerrufsrecht für Verbraucher
Sie haben das Recht, binnen vierzehn Tagen ohne Angabe von Gründen diesen Vertrag zu widerrufen. Die Widerrufsfrist beträgt vierzehn Tage ab dem Tag des Vertragsabschlusses.
Um Ihr Widerrufsrecht auszuüben, müssen Sie uns (HausHirsch GmbH, Dreischeibenhaus 1, 40211D Düsseldorf, +49 0 800 000 1244, +49 211 8825025, info@haushirsch.de) mittels einer eindeutigen Erklärung (z. B. ein mit der Post versandter Brief, Telefax oder E-Mail) über Ihren Entschluss, diesen Vertrag zu widerrufen, informieren. Sie können dafür das beigefügte Muster-Widerrufsformular verwenden, das jedoch nicht vorgeschrieben ist. Zur Wahrung der Widerrufsfrist reicht es aus, dass Sie die Mitteilung über die Ausübung des Widerrufsrechts vor Ablauf der Widerrufsfrist absenden.

Folgen des Widerrufs
Wenn Sie diesen Vertrag widerrufen, haben wir Ihnen alle Zahlungen, die wir von Ihnen erhalten haben, einschließlich der Lieferkosten (mit Ausnahme der zusätzlichen Kosten, die sich daraus ergeben, dass Sie eine andere Art der Lieferung als die von uns angebotene, günstigste Standardlieferung gewählt haben), unverzüglich und spätestens binnen vierzehn Tagen ab dem Tag zurückzuzahlen, an dem die Mitteilung über Ihren Widerruf dieses Vertrags bei uns eingegangen ist. Für diese Rückzahlung verwenden wir dasselbe Zahlungsmittel, das Sie bei der ursprünglichen Transaktion eingesetzt haben, es sei denn, mit Ihnen wurde ausdrücklich etwas anderes vereinbart; in keinem Fall werden Ihnen wegen dieser Rückzahlung Entgelte berechnet. Haben Sie verlangt, dass die Dienstleistungen während der Widerrufsfrist beginnen soll, so haben Sie uns einen angemessenen Betrag zu zahlen, der dem Anteil der bis zu dem Zeitpunkt, zu dem Sie uns von der Ausübung des Widerrufsrechts hinsichtlich dieses Vertrags unterrichten, bereits erbrachten Dienstleistungen im Vergleich zum Gesamtumfang der im Vertrag vorgesehenen Dienstleistungen entspricht.

Muster-Widerrufsformular
(Wenn Sie den Vertrag widerrufen wollen, dann füllen Sie dieses Formular aus und senden Sie es zurück.)

An HausHirsch GmbH, Dreischeibenhaus 1, 40211D Düsseldorf, +49 0 800 000 1244, +49 211 8825025, info@haushirsch.de

Hiermit widerrufe ich/wir den von mir/uns abgeschlossenen Vertrag über den Kauf der folgenden Waren /die Erbringung der folgenden Dienstleistung


Bestellt am /erhalten am

Name des/der Verbraucher(s)

Anschrift des/der Verbraucher(s)

Unterschrift des/der Verbraucher(s) (nur bei Mitteilung auf Papier)

Datum


( Unzutreffendes streichen )


Hinweis auf die Möglichkeit eines vorzeitigen Erlöschens des Widerrufsrechts

Ihr Widerrufsrecht erlischt, wenn wir unsere Leistung vollständig erbracht haben und mit der Ausführung der Leistung erst begonnen haben, nachdem Sie Ihre ausdrückliche Zustimmung gegeben haben und gleichzeitig Ihre Kenntnis davon bestätigt haben, dass Sie Ihr Widerrufsrecht bei vollständiger Vertragserfüllung durch uns verlieren.

Impressum HausHirsch GmbH
VERTRETUNGSBERECHTIGTE/R
Marius Wolf


Dreischeibenhaus 1
40211D Düsseldorf
DEU
Tel.: +49 0 800 000 1244
E-Mail: info@haushirsch.de
Fax: +49 211 8825025
Homepage: https://haushirsch.de

ZUSTÄNDIGE AUFSICHTSBEHÖRDE
Die Gewerbeanmeldung nach § 34 c GewO wurde durch Stadt Düsseldorf (www.duesseldorf.de) erteilt.

HANDELSREGISTER-EINTRAG
Amtsgericht Düsseldorf, HRB 99093


UST-ID-NUMMER
DE362155160
Anbieter kontaktieren

AGB, Datenschutz & Verbraucherhinweis wurden gelesen und akzeptiert.