Anbieter kontaktieren

AGB, Datenschutz & Verbraucherhinweis wurden gelesen und akzeptiert.

Properstar SA

PRIMEHOUSE
  • Mehr erfahren
bellevue.de-ID: 30602903

Haus zu kaufen in Corroios, Portugal

  • Haus
  • · 1 Zimmer
  • · 248 m² Wohnfläche
  • · 1.950.000 € Kaufpreis
Anbieter kontaktieren

Objektbeschreibung

Entdecken Sie eine exzellente Residenz in Verdizela, wo modernes Design auf eine Atmosphäre der Gelassenheit und Exklusivität trifft. Dieses bezugsfertige T4-Haus wurde für diejenigen konzipiert, die Wert auf Raffinesse, Komfort und Privatsphäre in ...mehr lesen
Entdecken Sie eine exzellente Residenz in Verdizela, wo modernes Design auf eine Atmosphäre der Gelassenheit und Exklusivität trifft. Dieses bezugsfertige T4-Haus wurde für diejenigen konzipiert, die Wert auf Raffinesse, Komfort und Privatsphäre in einer privilegierten Umgebung legen.
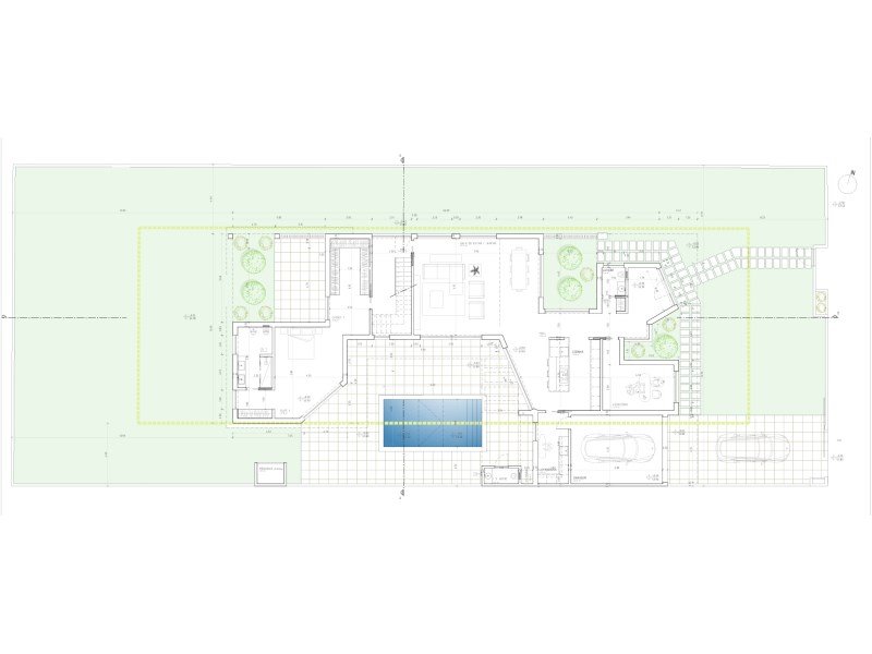
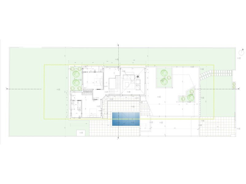
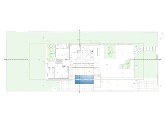
Mit einer Grundstücksfläche von 1.050 m² und einer Bruttobaufläche von 352 m² bietet die Immobilie eine großzügige Nutzfläche von 248,47 m². Die intelligente Raumaufteilung sorgt für Funktionalität und Großzügigkeit, ergänzt durch hochwertige Oberflächen. Der soziale Bereich mit einem Wohn- und Esszimmer von 49,14 m² profitiert von reichlich Tageslicht und einer harmonischen Verbindung zur voll ausgestatteten Küche von 23,26 m², die für kulinarischen Genuss und Geselligkeit konzipiert ist.
Der private Bereich umfasst eine bemerkenswerte Master-Suite von 29,06 m², komplett mit einem geräumigen begehbaren Kleiderschrank von 14,86 m² und einem anspruchsvollen Badezimmer. Im Obergeschoss erwarten Sie zwei weitere Suiten, jede mit begehbarem Kleiderschrank und eigenem Bad, die Komfort und Unabhängigkeit bieten. Ein Büro von 14,73 m² mit eingebautem Kleiderschrank bietet einen inspirierenden Arbeitsplatz.
Der Außenbereich lädt zu Freizeit und Entspannung ein, mit einem Garten von ca. 510 m² und einem automatischen Bewässerungssystem, zentriert um einen eleganten privaten Pool. Das Haus verfügt außerdem über eine Klimaanlage in allen Räumen, Solarthermie zur Warmwasserbereitung, Doppelverglasung, Fensterrahmen mit thermischer Trennung und eine geschlossene Garage von 25 m².
Das Hotel liegt in einer ruhigen Wohngegend von Verdizela und profitiert von der Nähe zu den Stränden von Costa da Caparica und der schnellen Anbindung an Lissabon. Die Nähe zu Schulen, Geschäften und Dienstleistungen ergänzt das Angebot und sorgt für einen hohen Lebensstandard.
Dieses Haus stellt die Gelegenheit dar, eine einzigartige Immobilie zu erwerben, bei der jedes Detail für Wohlbefinden und Zufriedenheit durchdacht wurde.
Für weitere Informationen oder zur Vereinbarung eines Besichtigungstermins laden wir Sie ein, uns zu kontaktieren.
Energiekategorie: A+
#ref:PH3306

Immobiliendetails

  • Nutzungsart
    Wohnen
  • Objektart
    Einfamilienhaus
  • Hauptobjektart
    Haus
  • Vertragsart
    Kauf
  • Objektzustand
    Erstbezug
  • Zimmer (gesamt)
    1
  • Anzahl Schlafzimmer
    4
  • Anzahl Badezimmer
    4
  • Wohnfläche (ca.)
    248,47 m²
  • Nutzfläche (ca.)
    248,47 m²
  • Anbieter-Objektnummer
    108564185

Preise & Kosten

  • Courtage
    Keine besondere Angabe.

Standort & Lage

Corroios · PRT

Die genaue Anschrift erfahren Sie vom Anbieter

Verbraucherhinweis

Widerrufsbelehrung des Anbieters

(Gilt nicht für Wohnraummiete in Deutschland)

Widerrufsrecht für Verbraucher
Sie haben das Recht, binnen vierzehn Tagen ohne Angabe von Gründen diesen Vertrag zu widerrufen. Die Widerrufsfrist beträgt vierzehn Tage ab dem Tag des Vertragsabschlusses.
Um Ihr Widerrufsrecht auszuüben, müssen Sie uns (ListGlobally SA, Rue Mercerie 12, 1003 Lausanne, +49 800 0010536, support@listglobally.com) mittels einer eindeutigen Erklärung (z. B. ein mit der Post versandter Brief, Telefax oder E-Mail) über Ihren Entschluss, diesen Vertrag zu widerrufen, informieren. Sie können dafür das beigefügte Muster-Widerrufsformular verwenden, das jedoch nicht vorgeschrieben ist. Zur Wahrung der Widerrufsfrist reicht es aus, dass Sie die Mitteilung über die Ausübung des Widerrufsrechts vor Ablauf der Widerrufsfrist absenden.

Folgen des Widerrufs
Wenn Sie diesen Vertrag widerrufen, haben wir Ihnen alle Zahlungen, die wir von Ihnen erhalten haben, einschließlich der Lieferkosten (mit Ausnahme der zusätzlichen Kosten, die sich daraus ergeben, dass Sie eine andere Art der Lieferung als die von uns angebotene, günstigste Standardlieferung gewählt haben), unverzüglich und spätestens binnen vierzehn Tagen ab dem Tag zurückzuzahlen, an dem die Mitteilung über Ihren Widerruf dieses Vertrags bei uns eingegangen ist. Für diese Rückzahlung verwenden wir dasselbe Zahlungsmittel, das Sie bei der ursprünglichen Transaktion eingesetzt haben, es sei denn, mit Ihnen wurde ausdrücklich etwas anderes vereinbart; in keinem Fall werden Ihnen wegen dieser Rückzahlung Entgelte berechnet. Haben Sie verlangt, dass die Dienstleistungen während der Widerrufsfrist beginnen soll, so haben Sie uns einen angemessenen Betrag zu zahlen, der dem Anteil der bis zu dem Zeitpunkt, zu dem Sie uns von der Ausübung des Widerrufsrechts hinsichtlich dieses Vertrags unterrichten, bereits erbrachten Dienstleistungen im Vergleich zum Gesamtumfang der im Vertrag vorgesehenen Dienstleistungen entspricht.

Muster-Widerrufsformular
(Wenn Sie den Vertrag widerrufen wollen, dann füllen Sie dieses Formular aus und senden Sie es zurück.)

An ListGlobally SA, Rue Mercerie 12, 1003 Lausanne, +49 800 0010536, support@listglobally.com

Hiermit widerrufe ich/wir den von mir/uns abgeschlossenen Vertrag über den Kauf der folgenden Waren /die Erbringung der folgenden Dienstleistung


Bestellt am /erhalten am

Name des/der Verbraucher(s)

Anschrift des/der Verbraucher(s)

Unterschrift des/der Verbraucher(s) (nur bei Mitteilung auf Papier)

Datum


( Unzutreffendes streichen )


Hinweis auf die Möglichkeit eines vorzeitigen Erlöschens des Widerrufsrechts

Ihr Widerrufsrecht erlischt, wenn wir unsere Leistung vollständig erbracht haben und mit der Ausführung der Leistung erst begonnen haben, nachdem Sie Ihre ausdrückliche Zustimmung gegeben haben und gleichzeitig Ihre Kenntnis davon bestätigt haben, dass Sie Ihr Widerrufsrecht bei vollständiger Vertragserfüllung durch uns verlieren.

Impressum ListGlobally SA
VERTRETUNGSBERECHTIGTE/R
Properstar SA


Rue Mercerie 12
1003 Lausanne
CHE
Tel.: +49 800 0010536
E-Mail: support@listglobally.com
Homepage: https://www.listglobally.com/
Anbieter kontaktieren

AGB, Datenschutz & Verbraucherhinweis wurden gelesen und akzeptiert.