Angebot 9638 von 18096

Anbieter kontaktieren

AGB, Datenschutz & Verbraucherhinweis wurden gelesen und akzeptiert.

Apolloni & Blom S.r.l.

Apolloni and Blom Real Estate - Immobiliare
  • Mehr erfahren
bellevue.de-ID: 30602599

Borgo tra le Dolci Colline Senesi, Siena - Toskana

  • Haus
  • · 18 Zimmer
  • · 950 m² Wohnfläche
  • · 440.000 m² Grundstücksfläche
  • · 2.500.000 € Kaufpreis
Anbieter kontaktieren

Objektbeschreibung

Borgo con casale padronale disposto su pi livelli, due ulteriori unitˆ abitative, annesso agricolo, terreno e piscina in vendita nella provincia di Siena. Il borgo offre una splendida proprietˆ situata in una posizione privilegiata. Il casale ...mehr lesen
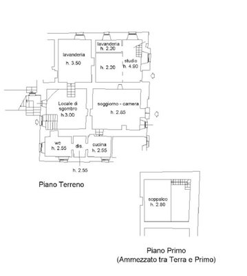
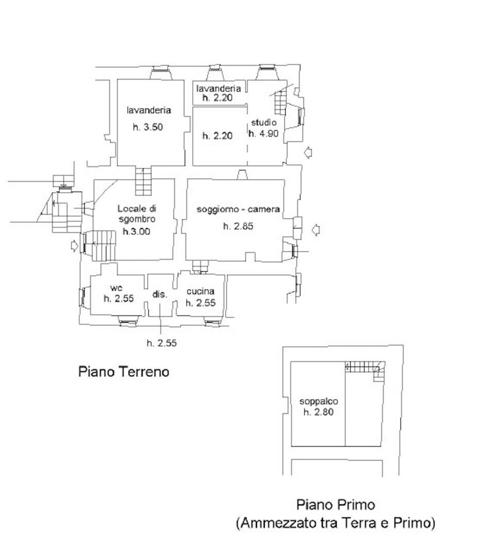
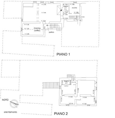
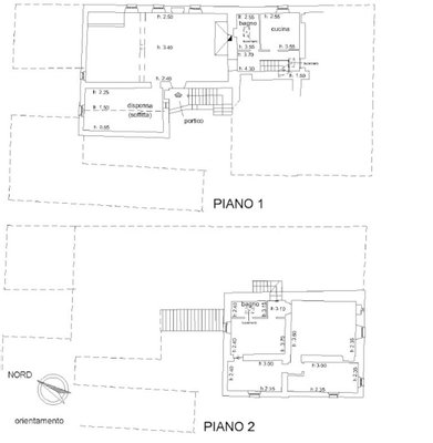
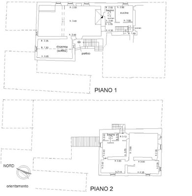
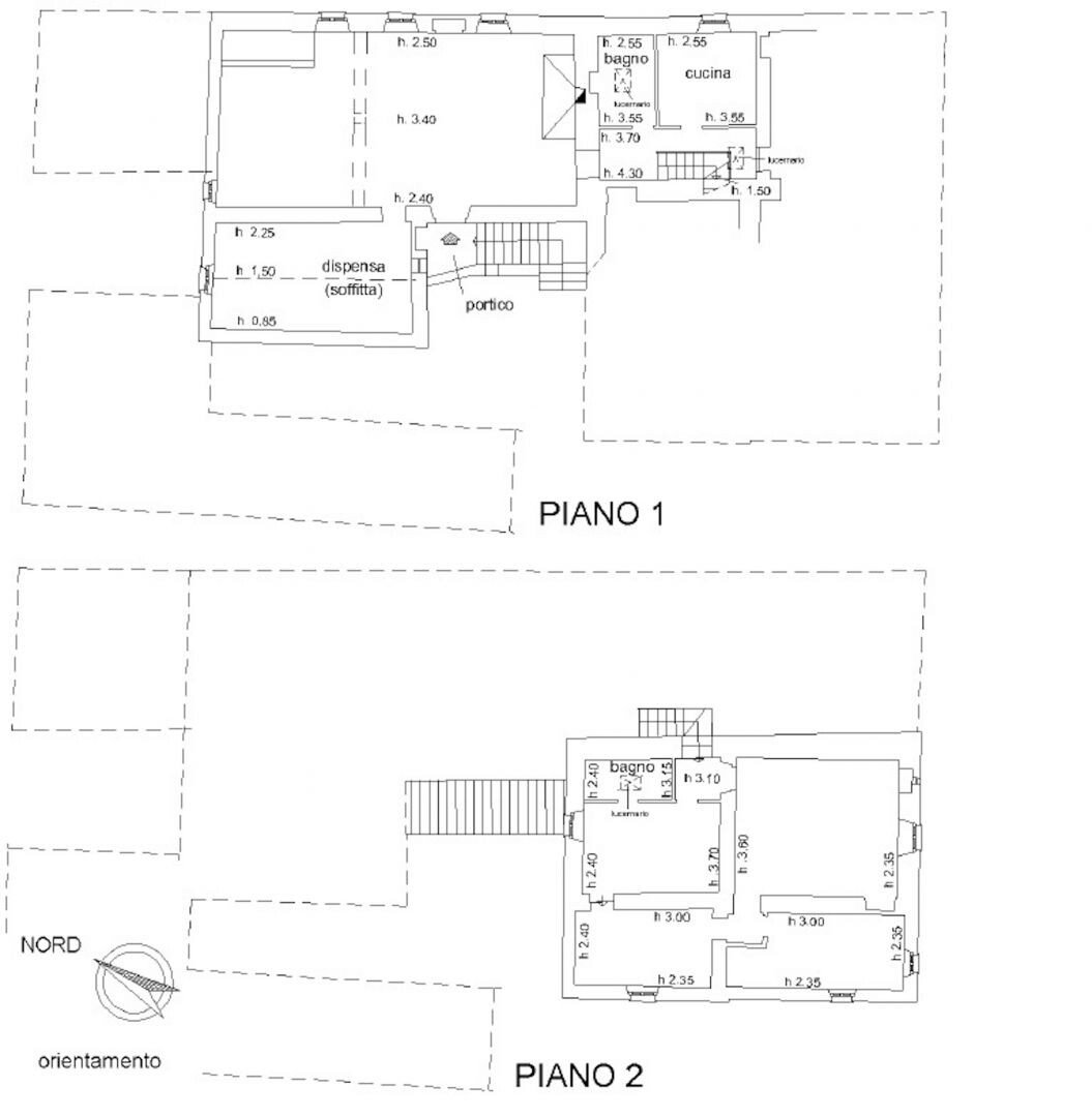
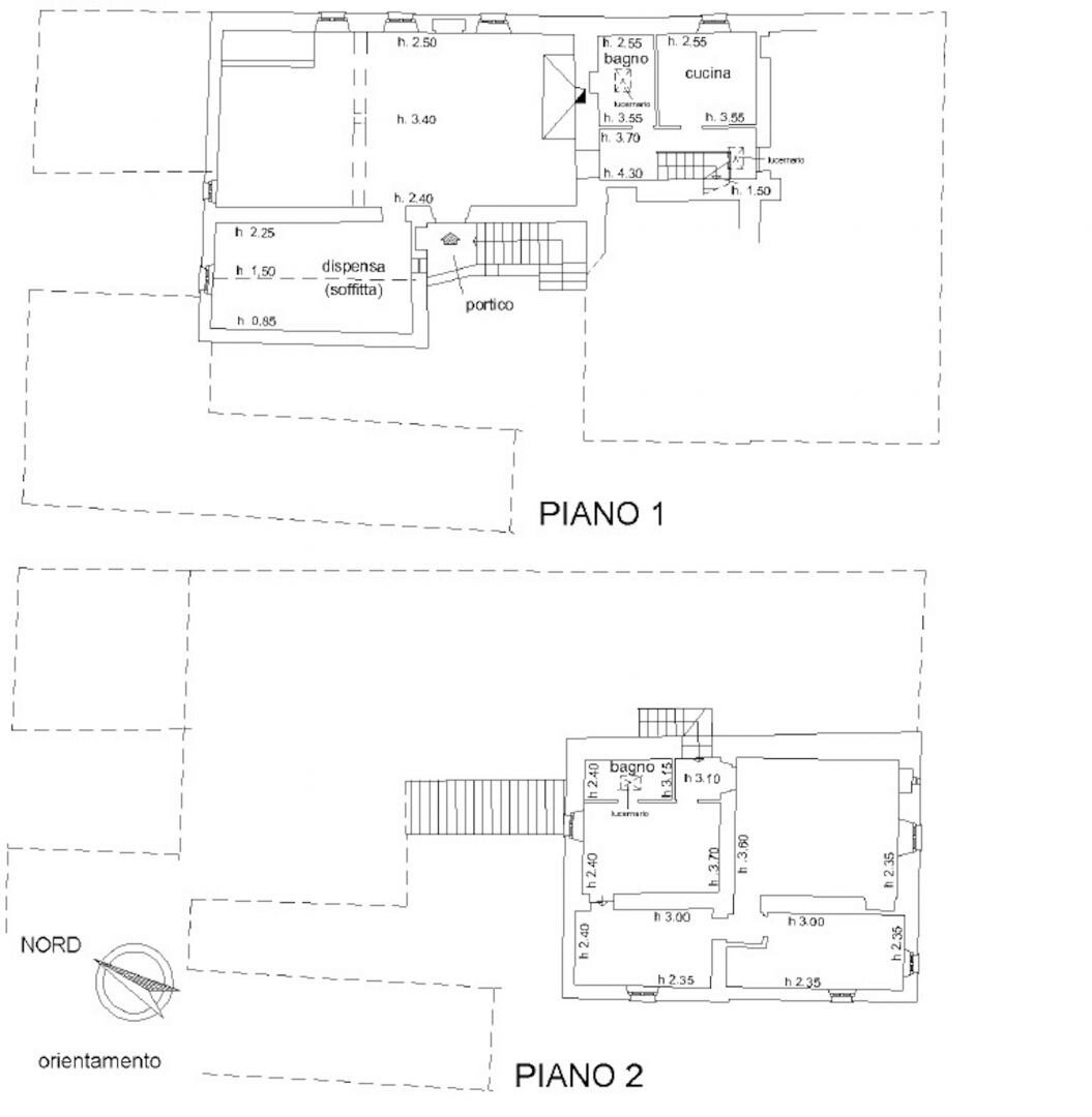
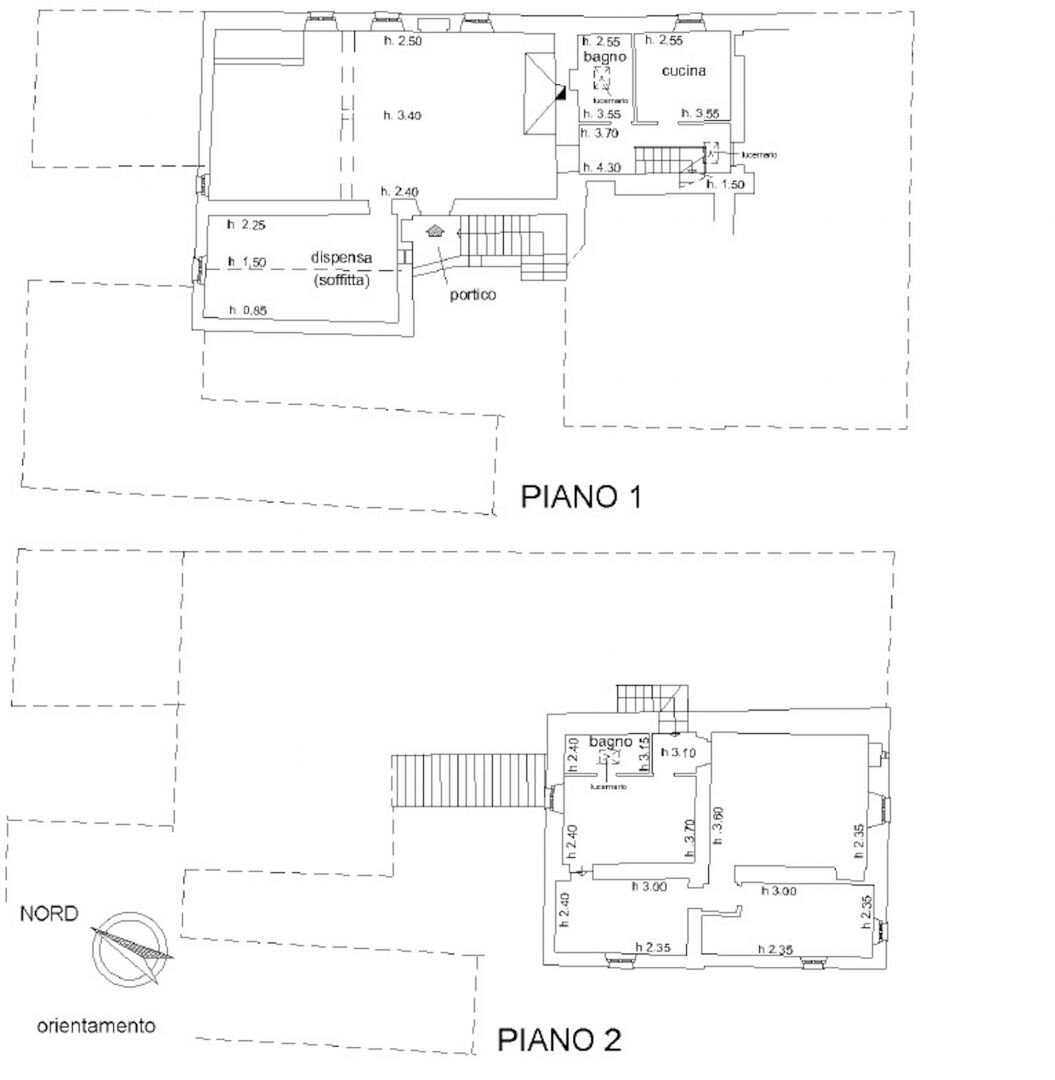
Borgo con casale padronale disposto su pi livelli, due ulteriori unitˆ abitative, annesso agricolo, terreno e piscina in vendita nella provincia di Siena. Il borgo offre una splendida proprietˆ situata in una posizione privilegiata. Il casale padronale e gli ulteriori due immobili sono stati recentemente restaurati con la massima attenzione, conservando le caratteristiche originali e presentando finiture tipiche toscane come travi in legno, pavimenti in cotto, archi in mattoni e dettagli in pietra; inoltre dispone di ampi soggiorni, magnifiche decorazioni, un bel terrazzo esterno, un cortile con antico pozzo e una loggia con una vista straordinaria. Situato nella provincia di Siena il paesaggio circostante spazia tra colline senesi, zone pianeggianti e boschive; nei dintorni possiamo ammirare paesaggi incantevoli, tradizioni antiche e borghi suggestivi. IMMOBILE Rif: SIE2229Dove: Provincia: Siena, Regione: Toscana.Tipologia: Borgo composto da casale padronale disposto su pi livelli di circa 550 mq, due ulteriori unitˆ abitative per una superficie complessiva di circa 450 mq, annesso agricolo, terreno e piscina.Annesso: Annesso agricolo di circa 30 mq.Condizioni: Ottime. Recentemente ristrutturato (Tra il 2005 e il 2009).Terreno/Giardino: La proprietˆ  circondata da 44 ettari di terreno che comprende pascolo, seminativo (circa 3,3 ettari), bosco (circa 36 ettari) e 4 ettari di parco. Possibilitˆ di impiantare vigneto. Piscina: Presente ampia piscina fuoriterra ma vi  la possibilitˆ di realizzarne una interrata.Disposizione:Piano Terra:Portico,Dispensa e ampio locale;App.1:Piano primo:Portico con angolo cottura, Quattro stanze, da destinare a camere e soggiorno,Due bagni;Appartamento 2:Piano Primo:Cucina,Bagno;Piano Secondo:Quattro stanze da destinare a soggiorno e camere,Bagno;Appartamento 3:Piano Seminterrato:Cucina-pranzo,Bagno,Stanza da adibire a camera o soggiorno;Piano Terra:Una camera con bagno en-suite,Resede esclusivo;Piano Terra:Mini appartamento con soggiorno - camera,Cucina,Bagno,Locali lavanderia,Soppalco;Appartamento 4:Piano Terra:Cucina,Soggiorno,Camera,Due Bagni,Studio,Portico,Forno;Piano Terra:Monolocale con soppalco e bagno;Tettoia.Distanza dai servizi: 5 km.Distanza da aeroporti principali: Firenze 82 km, Pisa 123 km, Perugia 131 km.Strada bianca: 1 km. Utenze: Rete telefonica fissa: DisponibileWi-Fi: DisponibileRiscaldamento: GPLPozzo: PresenteAcqua: Rete idrica comunaleEnergia elettrica: AttivaImmobile intestato a societˆ.La posizione, per privacy,  approssimativa. Classe Energetica: F

Immobiliendetails

  • Nutzungsart
    Wohnen
  • Objektart
    Resthof
  • Hauptobjektart
    Haus
  • Vertragsart
    Kauf
  • Baujahr
    1800
  • Zimmer (gesamt)
    18
  • Anzahl Schlafzimmer
    11
  • Anzahl Badezimmer
    9
  • Wohneinheiten
    4
  • Wohnfläche (ca.)
    950 m²
  • Grundstücksfläche (ca.)
    440.000 m²
  • Gartenfläche (ca.)
    40.000 m²
  • Letzte Modernisierung
    2009
  • Anbieter-Objektnummer
    SIE2229

Preise & Kosten

  • Kaufpreis pro m²
    2.500 €
  • Courtage
    Keine besondere Angabe.

Energie

  • Heizungsart
    Etagenheizung
  • Energieausweis
    Energiebedarfsausweis
  • Energieeffizienzklasse
    F
  • Gebäudeart
    Wohngebäude

Standort & Lage

· 53018 Sovicille · ITA

Ansprechpartner

Verbraucherhinweis

Widerrufsbelehrung des Anbieters

(Gilt nicht für Wohnraummiete in Deutschland)

Widerrufsrecht für Verbraucher
Sie haben das Recht, binnen vierzehn Tagen ohne Angabe von Gründen diesen Vertrag zu widerrufen. Die Widerrufsfrist beträgt vierzehn Tage ab dem Tag des Vertragsabschlusses.
Um Ihr Widerrufsrecht auszuüben, müssen Sie uns (Apolloni & Blom S.r.l., Via del progresso 7, 06061 Castiglione del Lago, +390578717016, info@apolloniblom.com) mittels einer eindeutigen Erklärung (z. B. ein mit der Post versandter Brief, Telefax oder E-Mail) über Ihren Entschluss, diesen Vertrag zu widerrufen, informieren. Sie können dafür das beigefügte Muster-Widerrufsformular verwenden, das jedoch nicht vorgeschrieben ist. Zur Wahrung der Widerrufsfrist reicht es aus, dass Sie die Mitteilung über die Ausübung des Widerrufsrechts vor Ablauf der Widerrufsfrist absenden.

Folgen des Widerrufs
Wenn Sie diesen Vertrag widerrufen, haben wir Ihnen alle Zahlungen, die wir von Ihnen erhalten haben, einschließlich der Lieferkosten (mit Ausnahme der zusätzlichen Kosten, die sich daraus ergeben, dass Sie eine andere Art der Lieferung als die von uns angebotene, günstigste Standardlieferung gewählt haben), unverzüglich und spätestens binnen vierzehn Tagen ab dem Tag zurückzuzahlen, an dem die Mitteilung über Ihren Widerruf dieses Vertrags bei uns eingegangen ist. Für diese Rückzahlung verwenden wir dasselbe Zahlungsmittel, das Sie bei der ursprünglichen Transaktion eingesetzt haben, es sei denn, mit Ihnen wurde ausdrücklich etwas anderes vereinbart; in keinem Fall werden Ihnen wegen dieser Rückzahlung Entgelte berechnet. Haben Sie verlangt, dass die Dienstleistungen während der Widerrufsfrist beginnen soll, so haben Sie uns einen angemessenen Betrag zu zahlen, der dem Anteil der bis zu dem Zeitpunkt, zu dem Sie uns von der Ausübung des Widerrufsrechts hinsichtlich dieses Vertrags unterrichten, bereits erbrachten Dienstleistungen im Vergleich zum Gesamtumfang der im Vertrag vorgesehenen Dienstleistungen entspricht.

Muster-Widerrufsformular
(Wenn Sie den Vertrag widerrufen wollen, dann füllen Sie dieses Formular aus und senden Sie es zurück.)

An Apolloni & Blom S.r.l., Via del progresso 7, 06061 Castiglione del Lago, +390578717016, info@apolloniblom.com

Hiermit widerrufe ich/wir den von mir/uns abgeschlossenen Vertrag über den Kauf der folgenden Waren /die Erbringung der folgenden Dienstleistung


Bestellt am /erhalten am

Name des/der Verbraucher(s)

Anschrift des/der Verbraucher(s)

Unterschrift des/der Verbraucher(s) (nur bei Mitteilung auf Papier)

Datum


( Unzutreffendes streichen )


Hinweis auf die Möglichkeit eines vorzeitigen Erlöschens des Widerrufsrechts

Ihr Widerrufsrecht erlischt, wenn wir unsere Leistung vollständig erbracht haben und mit der Ausführung der Leistung erst begonnen haben, nachdem Sie Ihre ausdrückliche Zustimmung gegeben haben und gleichzeitig Ihre Kenntnis davon bestätigt haben, dass Sie Ihr Widerrufsrecht bei vollständiger Vertragserfüllung durch uns verlieren.

Impressum Apolloni & Blom S.r.l.
VERTRETUNGSBERECHTIGTE/R
Blom Niklas Alvar Jonathan


Via del progresso 7
06061 Castiglione del Lago
ITA
Tel.: +390578717016
E-Mail: info@apolloniblom.com
Homepage: https://www.apolloniblom.com/it/index.html

HANDELSREGISTER-EINTRAG
03142470545
Camera di Commercio Industria e artigianato e Agricoltura dell'Umbria

UST-ID-NUMMER
03142470545
Anbieter kontaktieren

AGB, Datenschutz & Verbraucherhinweis wurden gelesen und akzeptiert.