Angebot 4370 von 17612

Anbieter kontaktieren

AGB, Datenschutz & Verbraucherhinweis wurden gelesen und akzeptiert.

Apolloni & Blom S.r.l.

Apolloni and Blom Real Estate - Immobiliare
  • Mehr erfahren
bellevue.de-ID: 30602593

Casale L'Abetaia, Sarteano - Toscana

  • Haus
  • · 13 Zimmer
  • · 30.000 m² Grundstücksfläche
  • · 790.000 € Kaufpreis
Anbieter kontaktieren

Objektbeschreibung

Renoviertes Bauernhaus aus Stein aus dem 18. Jahrhundert mit Schwimmbad und Olivenhain zu verkaufen in der Nähe von Cetona und Sarteano, Siena. Bauernhaus aus den 1700er Jahren in einer strategischen Position ein paar km von Montepulciano, Pienza, ...mehr lesen
Renoviertes Bauernhaus aus Stein aus dem 18. Jahrhundert mit Schwimmbad und Olivenhain zu verkaufen in der Nähe von Cetona und Sarteano, Siena. Bauernhaus aus den 1700er Jahren in einer strategischen Position ein paar km von Montepulciano, Pienza, San Casciano dei Bagni mit seinen berühmten Thermalbädern, Cetona. Das Anwesen besteht aus einem Haupthaus von 400 qm auf zwei Ebenen mit dem Haupthaus im ersten Stock und zwei Nebengebäuden von je 60 qm. Das Bauernhaus sowie die Nebengebäude haben außen verputzte Fassaden und innen Decken mit sichtbaren Holzbalken, kleine Gewölbe, einen Kamin und Terrakottaböden. Das Anwesen wird durch ein 3 ha großes Grundstück mit 150 Olivenbäumen und 150 Obstbäumen und einem Swimmingpool im Untergeschoss mit herrlichem Blick auf Sonnenuntergänge und das Val d'Orcia ergänzt. Das Anwesen ist über eine nur 100 Meter lange unbefestigte Straße zu erreichen. Es ist auch möglich, die Immobilie durch Übernahme der Hypothek zu erwerben, indem man direkt die Gesellschaft kauft, die Eigentümerin der Immobilie ist, die sich teilweise in Privatbesitz und teilweise im Besitz der Gesellschaft befindet - eine ideale Lösung für diejenigen, die einen strukturierten und vorteilhaften Kauf wünschen.
Objekt-Nr.: SAR1400
Wo: Sarteano, Provinz: Siena, Region: Toskana
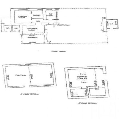
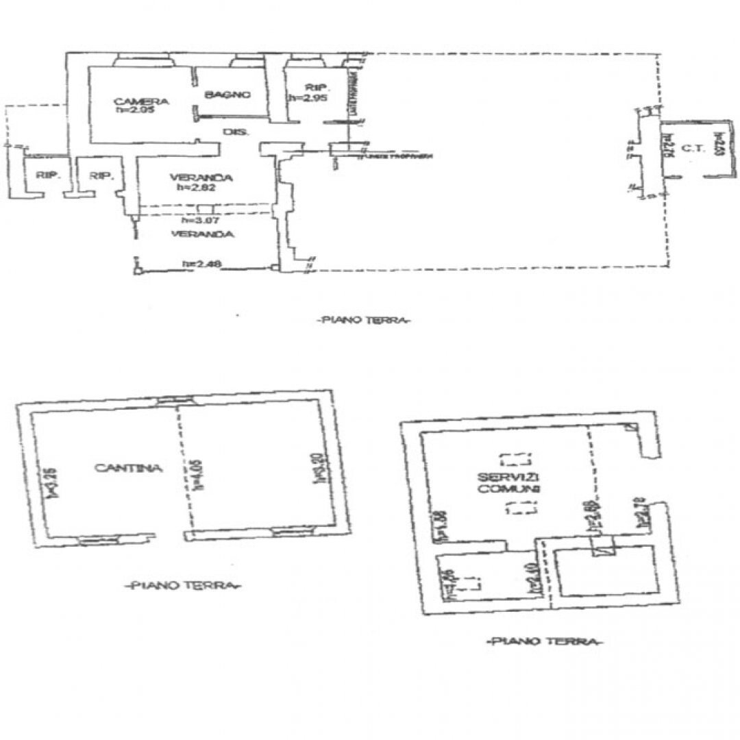
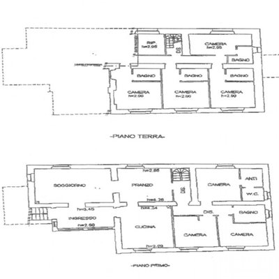
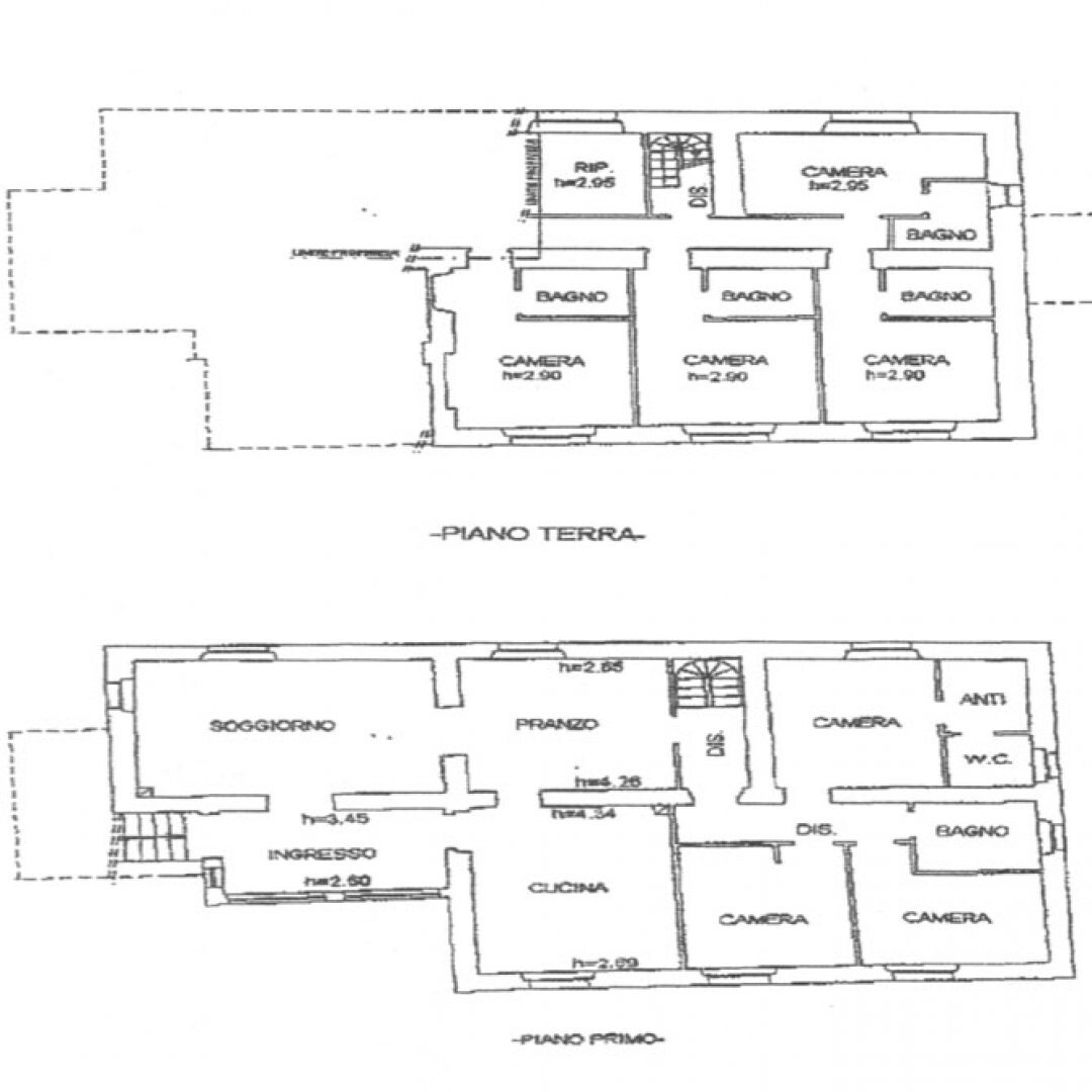
Typ: Bauernhaus auf zwei Ebenen; ca. 400 qm, mit Nebengebäuden, Schwimmbad und Garten, Olivenhain, Obstgarten
Nebengebäude: 2 Nebengebäude von je 60 qm, von denen eines als Sommerküche und das andere als Schuppen/Abstellraum genutzt wird
Zustand: komplett restauriertes Bauernhaus aus dem 18.
Land: 3 Hektar, mit Olivenhain (150 Bäume) - Obstgarten (150 Obstbäume) - Gemüsegarten - Tannenhain und jahrhundertealte Bäume
Schwimmbad: Untergeschoss 6x12 in Panoramalage
Garage: nicht überdachte Stellplätze

Immobiliendetails

  • Nutzungsart
    Wohnen
  • Objektart
    Bauernhaus
  • Hauptobjektart
    Haus
  • Vertragsart
    Kauf
  • Baujahr
    1700
  • Zimmer (gesamt)
    13
  • Anzahl Schlafzimmer
    8
  • Anzahl Badezimmer
    7
  • Grundstücksfläche (ca.)
    30.000 m²
  • Anbieter-Objektnummer
    SAR1400

Preise & Kosten

  • Kaufpreis pro m²
    1.519,23 €
  • Courtage
    Keine besondere Angabe.

Energie

  • Heizungsart
    Etagenheizung
  • Befeuerungsart
    Flüssiggas
  • Energieausweis
    Energiebedarfsausweis
  • Energieeffizienzklasse
    G
  • Gebäudeart
    Wohngebäude

Standort & Lage

Entfernung zu Dienstleistungen: Restaurant 1 km, größeres Zentrum 7 km
Entfernung zu den wichtigsten Flughäfen: Perugia 69 km, Rom 180 km, Pisa 200 km
Weiße Straße: 100 mt

· 53047 Sarteano · ITA

Ansprechpartner

Verbraucherhinweis

Widerrufsbelehrung des Anbieters

(Gilt nicht für Wohnraummiete in Deutschland)

Widerrufsrecht für Verbraucher
Sie haben das Recht, binnen vierzehn Tagen ohne Angabe von Gründen diesen Vertrag zu widerrufen. Die Widerrufsfrist beträgt vierzehn Tage ab dem Tag des Vertragsabschlusses.
Um Ihr Widerrufsrecht auszuüben, müssen Sie uns (Apolloni & Blom S.r.l., Via del progresso 7, 06061 Castiglione del Lago, +390578717016, info@apolloniblom.com) mittels einer eindeutigen Erklärung (z. B. ein mit der Post versandter Brief, Telefax oder E-Mail) über Ihren Entschluss, diesen Vertrag zu widerrufen, informieren. Sie können dafür das beigefügte Muster-Widerrufsformular verwenden, das jedoch nicht vorgeschrieben ist. Zur Wahrung der Widerrufsfrist reicht es aus, dass Sie die Mitteilung über die Ausübung des Widerrufsrechts vor Ablauf der Widerrufsfrist absenden.

Folgen des Widerrufs
Wenn Sie diesen Vertrag widerrufen, haben wir Ihnen alle Zahlungen, die wir von Ihnen erhalten haben, einschließlich der Lieferkosten (mit Ausnahme der zusätzlichen Kosten, die sich daraus ergeben, dass Sie eine andere Art der Lieferung als die von uns angebotene, günstigste Standardlieferung gewählt haben), unverzüglich und spätestens binnen vierzehn Tagen ab dem Tag zurückzuzahlen, an dem die Mitteilung über Ihren Widerruf dieses Vertrags bei uns eingegangen ist. Für diese Rückzahlung verwenden wir dasselbe Zahlungsmittel, das Sie bei der ursprünglichen Transaktion eingesetzt haben, es sei denn, mit Ihnen wurde ausdrücklich etwas anderes vereinbart; in keinem Fall werden Ihnen wegen dieser Rückzahlung Entgelte berechnet. Haben Sie verlangt, dass die Dienstleistungen während der Widerrufsfrist beginnen soll, so haben Sie uns einen angemessenen Betrag zu zahlen, der dem Anteil der bis zu dem Zeitpunkt, zu dem Sie uns von der Ausübung des Widerrufsrechts hinsichtlich dieses Vertrags unterrichten, bereits erbrachten Dienstleistungen im Vergleich zum Gesamtumfang der im Vertrag vorgesehenen Dienstleistungen entspricht.

Muster-Widerrufsformular
(Wenn Sie den Vertrag widerrufen wollen, dann füllen Sie dieses Formular aus und senden Sie es zurück.)

An Apolloni & Blom S.r.l., Via del progresso 7, 06061 Castiglione del Lago, +390578717016, info@apolloniblom.com

Hiermit widerrufe ich/wir den von mir/uns abgeschlossenen Vertrag über den Kauf der folgenden Waren /die Erbringung der folgenden Dienstleistung


Bestellt am /erhalten am

Name des/der Verbraucher(s)

Anschrift des/der Verbraucher(s)

Unterschrift des/der Verbraucher(s) (nur bei Mitteilung auf Papier)

Datum


( Unzutreffendes streichen )


Hinweis auf die Möglichkeit eines vorzeitigen Erlöschens des Widerrufsrechts

Ihr Widerrufsrecht erlischt, wenn wir unsere Leistung vollständig erbracht haben und mit der Ausführung der Leistung erst begonnen haben, nachdem Sie Ihre ausdrückliche Zustimmung gegeben haben und gleichzeitig Ihre Kenntnis davon bestätigt haben, dass Sie Ihr Widerrufsrecht bei vollständiger Vertragserfüllung durch uns verlieren.

Impressum Apolloni & Blom S.r.l.
VERTRETUNGSBERECHTIGTE/R
Blom Niklas Alvar Jonathan


Via del progresso 7
06061 Castiglione del Lago
ITA
Tel.: +390578717016
E-Mail: info@apolloniblom.com
Homepage: https://www.apolloniblom.com/it/index.html

HANDELSREGISTER-EINTRAG
03142470545
Camera di Commercio Industria e artigianato e Agricoltura dell'Umbria

UST-ID-NUMMER
03142470545
Anbieter kontaktieren

AGB, Datenschutz & Verbraucherhinweis wurden gelesen und akzeptiert.