Angebot 9642 von 18096

Anbieter kontaktieren

AGB, Datenschutz & Verbraucherhinweis wurden gelesen und akzeptiert.

Apolloni & Blom S.r.l.

Apolloni and Blom Real Estate - Immobiliare
  • Mehr erfahren
bellevue.de-ID: 30602585

Casale Le Antiche Mura, Città di Castello, - Umbrien

  • Haus
  • · 4 Zimmer
  • · 25.000 m² Grundstücksfläche
  • · 1.300.000 € Kaufpreis
Anbieter kontaktieren

Objektbeschreibung

Bauernhaus mit Grundstück und Schwimmbad zu verkaufen in der Nähe von Città di Castello, Perugia. Das 440 m² große Anwesen mit einem zusätzlichen 75 m² großen Turm ist das Ergebnis der Renovierung von zwei alten ländlichen Steinhäusern. Das ...mehr lesen
Bauernhaus mit Grundstück und Schwimmbad zu verkaufen in der Nähe von Città di Castello, Perugia. Das 440 m² große Anwesen mit einem zusätzlichen 75 m² großen Turm ist das Ergebnis der Renovierung von zwei alten ländlichen Steinhäusern. Das Bauernhaus befindet sich auf einer großen natürlichen Terrasse, die durch ihre windgeschützte Lage ein besonders günstiges Mikroklima bietet. Das Anwesen, dessen Lage das Tal des Flusses Nestore dominiert, besteht aus zwei getrennten Gebäuden, die durch einen eleganten Durchgang miteinander verbunden sind. Der gesamte Wohnkomplex erstreckt sich über zwei Ebenen, die durch Innen- und Außentreppen verbunden sind, und besteht aus einer Eingangshalle, einem großen Wohnzimmer mit Kamin, einem Esszimmer, einer Küche, 4 Schlafzimmern und 4 Bädern. Das Hauptschlafzimmer hat ein wunderschönes Doppelbogenfenster aus Backstein, das einen herrlichen Blick auf das Panorama bietet. Dieses prestigeträchtige Anwesen, für das die Möglichkeit besteht, zwei Anbauten von 40 m² zu errichten, die eventuell als Dependance genutzt werden können, ist von ca. 2,5 ha Land umgeben, das bereits für die Anlage des Gartens und des Swimmingpools nach dem Projekt eines bekannten Landschaftsarchitekten vorbereitet wurde, mit einer zusätzlichen Pergola, die als Carport für 4 Autos dient. Das Anwesen weist die typischen Merkmale des umbrischen Stils auf, wie die wunderschönen alten Holzbalken, die großen Kamine und die Steinfassade. Die Sorgfalt bei der Auswahl der sehr edlen Materialien macht das Anwesen einzigartig, auch wenn es noch nicht fertiggestellt ist. Die Arbeiten zur Fertigstellung des Gebäudes werden ca. 4 Monate in Anspruch nehmen und können vom derzeitigen Eigentümer auf der Grundlage eines genauen Lastenheftes oder vom Käufer selbständig durchgeführt werden. Das Anwesen genießt eine ausgezeichnete Privatsphäre und ist gut an die wichtigsten Dienstleistungen angeschlossen.

PROPERTY Ref: PER1934

Typ: Bauernhaus auf zwei Ebenen von ca. 440 qm im Bau mit Land und Schwimmbad; plus Nebengebäude von 75 qm.
Nebengebäude: Turm von ca. 75 qm, mit Steinfassade. Es besteht die Möglichkeit, zwei weitere Nebengebäude von 40 qm zu bauen, die als Dependance genutzt werden können.
Zustand: Bauernhaus, dessen Renovierung nach den neuesten erdbebensicheren Standards durchgeführt wurde; diese wurde rustikal mit Verputz, Elektro- und Klempnerarbeiten abgeschlossen. Die Fertigstellung des Gebäudes wird ca. 4 Monate in Anspruch nehmen und kann vom jetzigen Eigentümer nach genauen Vorgaben oder in Eigenregie des Käufers durchgeführt werden.
Land: Ungefähr 2,5 Hektar Land, das bereits für die Anlage des Gartens und des Swimmingpools nach dem Projekt eines bekannten Landschaftsarchitekten vorbereitet ist.

Immobiliendetails

  • Nutzungsart
    Wohnen
  • Objektart
    Resthof
  • Hauptobjektart
    Haus
  • Vertragsart
    Kauf
  • Objektzustand
    Rohbau/Im Bau
  • Zimmer (gesamt)
    4
  • Anzahl Schlafzimmer
    5
  • Anzahl Badezimmer
    5
  • Wohneinheiten
    2
  • Anzahl Parkflächen
    4
  • Grundstücksfläche (ca.)
    25.000 m²
  • Stellplatzart
    Carport
  • Anzahl Etagen
    2
  • Anbieter-Objektnummer
    PER1934

Preise & Kosten

  • Kaufpreis pro m²
    2.708,33 €
  • Courtage
    Keine besondere Angabe.

Energie

  • Heizungsart
    Etagenheizung
  • Energieeffizienzklasse
    G
  • Gebäudeart
    Wohngebäude

Standort & Lage

Wo: Città di Castello, Provinz: Perugia, Region: Umbrien.
Entfernungen von Dienstleistungen: 5 km von Morra, 15 km von Città di Castello, 30 km von Cortona.
Entfernung von den wichtigsten Flughäfen: Perugia 60 km, Florenz 135 km, Rom 250 km.
Weiße ...mehr lesen
Wo: Città di Castello, Provinz: Perugia, Region: Umbrien.
Entfernungen von Dienstleistungen: 5 km von Morra, 15 km von Città di Castello, 30 km von Cortona.
Entfernung von den wichtigsten Flughäfen: Perugia 60 km, Florenz 135 km, Rom 250 km.
Weiße Straße: 1,5 km.

· 6018 Città di Castello · ITA

Sonstiges

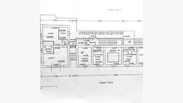
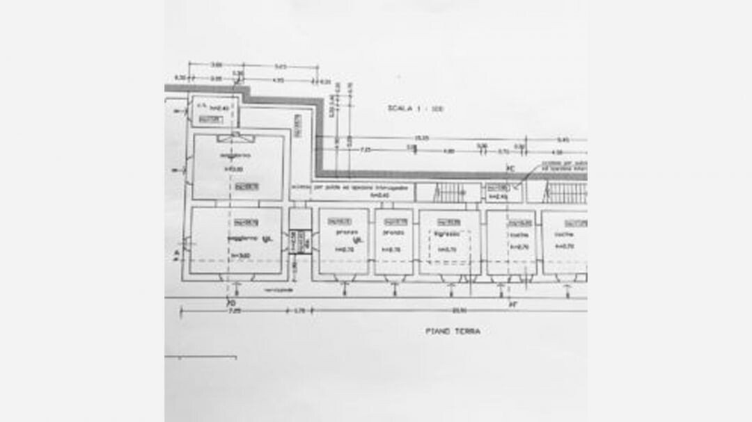
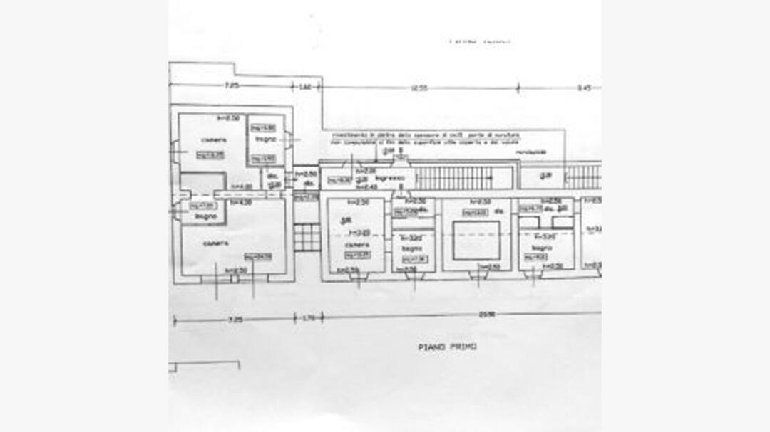
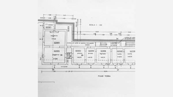
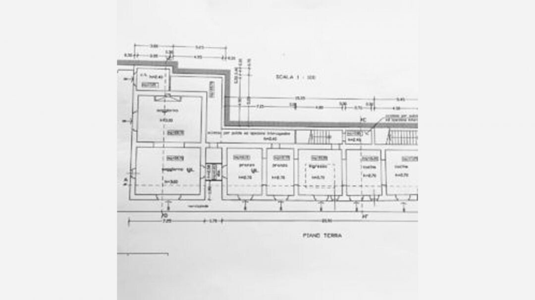
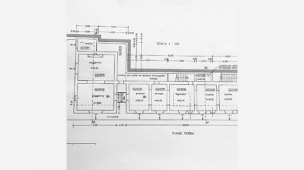
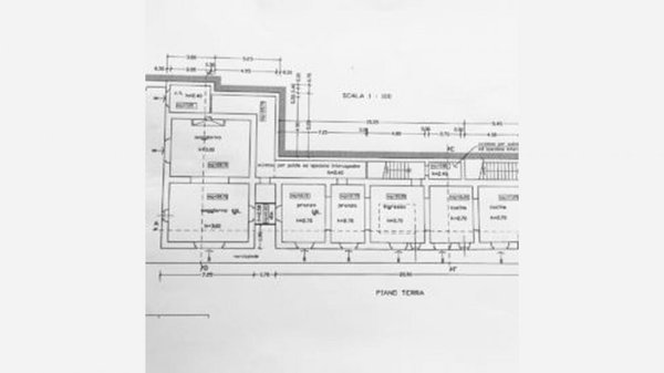
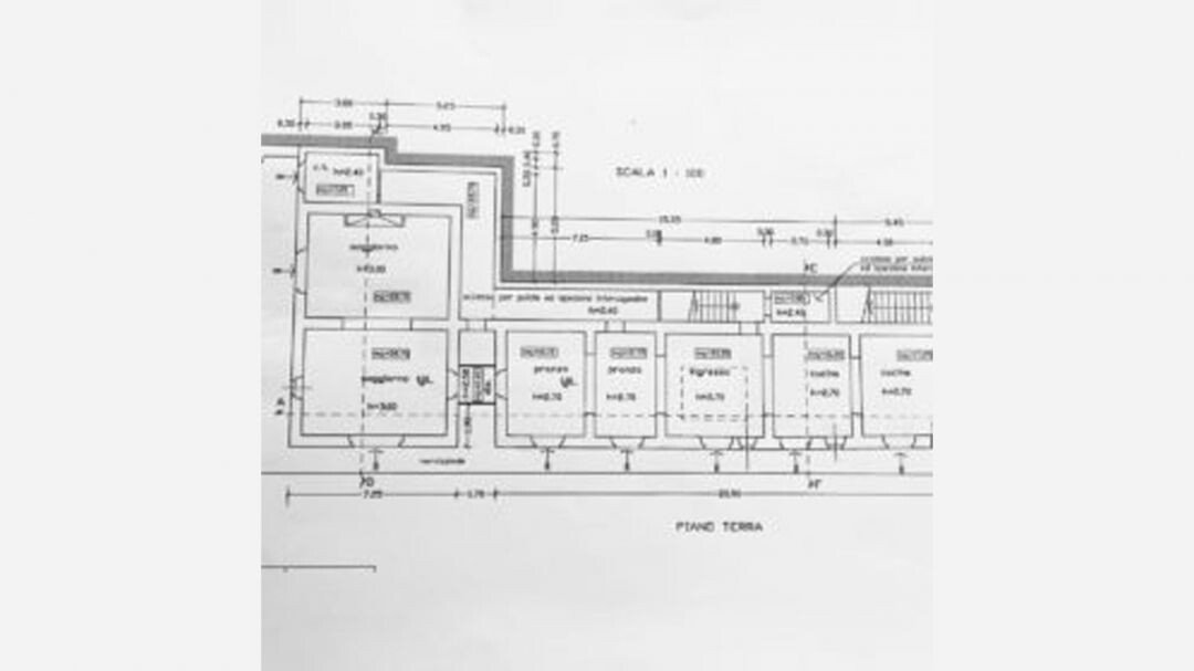
Grundriss:
Erdgeschoss:
Doppelhohe Eingangshalle mit Balkon,
Esszimmer über zwei Zimmer,
Küche über zwei Zimmer,
Wohnzimmer über zwei Zimmer mit Kamin, verbunden mit dem ersten Gebäude durch einen Flur;

Erster Stock:
Vier Schlafzimmer jeweils mit Flur,
Vier ...mehr lesen
Grundriss:
Erdgeschoss:
Doppelhohe Eingangshalle mit Balkon,
Esszimmer über zwei Zimmer,
Küche über zwei Zimmer,
Wohnzimmer über zwei Zimmer mit Kamin, verbunden mit dem ersten Gebäude durch einen Flur;

Erster Stock:
Vier Schlafzimmer jeweils mit Flur,
Vier Bäder,
Eingangshalle.

Ansprechpartner

Verbraucherhinweis

Widerrufsbelehrung des Anbieters

(Gilt nicht für Wohnraummiete in Deutschland)

Widerrufsrecht für Verbraucher
Sie haben das Recht, binnen vierzehn Tagen ohne Angabe von Gründen diesen Vertrag zu widerrufen. Die Widerrufsfrist beträgt vierzehn Tage ab dem Tag des Vertragsabschlusses.
Um Ihr Widerrufsrecht auszuüben, müssen Sie uns (Apolloni & Blom S.r.l., Via del progresso 7, 06061 Castiglione del Lago, +390578717016, info@apolloniblom.com) mittels einer eindeutigen Erklärung (z. B. ein mit der Post versandter Brief, Telefax oder E-Mail) über Ihren Entschluss, diesen Vertrag zu widerrufen, informieren. Sie können dafür das beigefügte Muster-Widerrufsformular verwenden, das jedoch nicht vorgeschrieben ist. Zur Wahrung der Widerrufsfrist reicht es aus, dass Sie die Mitteilung über die Ausübung des Widerrufsrechts vor Ablauf der Widerrufsfrist absenden.

Folgen des Widerrufs
Wenn Sie diesen Vertrag widerrufen, haben wir Ihnen alle Zahlungen, die wir von Ihnen erhalten haben, einschließlich der Lieferkosten (mit Ausnahme der zusätzlichen Kosten, die sich daraus ergeben, dass Sie eine andere Art der Lieferung als die von uns angebotene, günstigste Standardlieferung gewählt haben), unverzüglich und spätestens binnen vierzehn Tagen ab dem Tag zurückzuzahlen, an dem die Mitteilung über Ihren Widerruf dieses Vertrags bei uns eingegangen ist. Für diese Rückzahlung verwenden wir dasselbe Zahlungsmittel, das Sie bei der ursprünglichen Transaktion eingesetzt haben, es sei denn, mit Ihnen wurde ausdrücklich etwas anderes vereinbart; in keinem Fall werden Ihnen wegen dieser Rückzahlung Entgelte berechnet. Haben Sie verlangt, dass die Dienstleistungen während der Widerrufsfrist beginnen soll, so haben Sie uns einen angemessenen Betrag zu zahlen, der dem Anteil der bis zu dem Zeitpunkt, zu dem Sie uns von der Ausübung des Widerrufsrechts hinsichtlich dieses Vertrags unterrichten, bereits erbrachten Dienstleistungen im Vergleich zum Gesamtumfang der im Vertrag vorgesehenen Dienstleistungen entspricht.

Muster-Widerrufsformular
(Wenn Sie den Vertrag widerrufen wollen, dann füllen Sie dieses Formular aus und senden Sie es zurück.)

An Apolloni & Blom S.r.l., Via del progresso 7, 06061 Castiglione del Lago, +390578717016, info@apolloniblom.com

Hiermit widerrufe ich/wir den von mir/uns abgeschlossenen Vertrag über den Kauf der folgenden Waren /die Erbringung der folgenden Dienstleistung


Bestellt am /erhalten am

Name des/der Verbraucher(s)

Anschrift des/der Verbraucher(s)

Unterschrift des/der Verbraucher(s) (nur bei Mitteilung auf Papier)

Datum


( Unzutreffendes streichen )


Hinweis auf die Möglichkeit eines vorzeitigen Erlöschens des Widerrufsrechts

Ihr Widerrufsrecht erlischt, wenn wir unsere Leistung vollständig erbracht haben und mit der Ausführung der Leistung erst begonnen haben, nachdem Sie Ihre ausdrückliche Zustimmung gegeben haben und gleichzeitig Ihre Kenntnis davon bestätigt haben, dass Sie Ihr Widerrufsrecht bei vollständiger Vertragserfüllung durch uns verlieren.

Impressum Apolloni & Blom S.r.l.
VERTRETUNGSBERECHTIGTE/R
Blom Niklas Alvar Jonathan


Via del progresso 7
06061 Castiglione del Lago
ITA
Tel.: +390578717016
E-Mail: info@apolloniblom.com
Homepage: https://www.apolloniblom.com/it/index.html

HANDELSREGISTER-EINTRAG
03142470545
Camera di Commercio Industria e artigianato e Agricoltura dell'Umbria

UST-ID-NUMMER
03142470545
Anbieter kontaktieren

AGB, Datenschutz & Verbraucherhinweis wurden gelesen und akzeptiert.