Angebot 9643 von 18096

Anbieter kontaktieren

AGB, Datenschutz & Verbraucherhinweis wurden gelesen und akzeptiert.

Apolloni & Blom S.r.l.

Apolloni and Blom Real Estate - Immobiliare
  • Mehr erfahren
bellevue.de-ID: 30602583

Villa De' Cavalieri mit Pool, Perugia - Umbrien

  • Haus
  • · 18 Zimmer
  • · 524 m² Wohnfläche
  • · 7.200 m² Grundstücksfläche
  • · 1.150.000 € Kaufpreis
Anbieter kontaktieren

Objektbeschreibung

Repräsentativer Landsitz mit Schwimmbad, Dependance und Nebengebäuden auf dem Lande in der Nähe von Perugia und dem Trasimenischen See zu verkaufen. Umgeben von Reihen von Weinbergen und jahrhundertealten Olivenbäumen, in hügeliger Lage, mit Blick ...mehr lesen
Repräsentativer Landsitz mit Schwimmbad, Dependance und Nebengebäuden auf dem Lande in der Nähe von Perugia und dem Trasimenischen See zu verkaufen. Umgeben von Reihen von Weinbergen und jahrhundertealten Olivenbäumen, in hügeliger Lage, mit Blick auf Deruta und Assisi, eine Villa aus dem Jahr 1800, die den edlen Stil mit verputzten Fassaden und Pietra-Serena-Elementen mit einer Innenausstattung im rustikalen Stil typisch für Landhäuser mit großen Ziegelbögen, die die verschiedenen Wohnbereiche verbinden, Holz- und Gewölbedecken, Ziegel- und Steinmauern, holzbefeuerten Kaminen und Terrakottaböden verbindet. Der Park ist mit Rasenflächen und Zierpflanzen angelegt und bietet den perfekten Platz für einen Swimmingpool mit Panoramablick, einem runden Whirlpool und einem zentralen Springbrunnen. Villa De' Cavalieri wurde sorgfältig restauriert, jede Ecke bewahrt ihren antiken Charme, jedes Fenster bietet ein bezauberndes Panorama, ausgestattet mit allem Komfort und leicht zugänglich, elektrisches Tor, in einer reservierten und dominanten Lage, in der Nähe von allen Dienstleistungen. Das Erdgeschoss beherbergt ein großes Wohnzimmer mit Kamin und Essecke, ein zweites Wohnzimmer mit einem zentralen gemauerten Kamin zum Grillen und Kochen von traditionellen umbrischen Rezepten, sowie eine gemauerte Küche mit allen Geräten. Ein Arbeitszimmer, ein Schlafzimmer und ein Badezimmer vervollständigen die Etage. Das Wohnzimmer im ersten Stock ist mit den drei Schlafzimmern, der Küche und dem Außenzugang mit einer Loggia verbunden, die eine einfache Aufteilung des Hauses ermöglicht. Das Hauptschlafzimmer ist sehr geräumig mit Doppelfenstern und einem Kamin, einer Garderobe und einem Badezimmer im Retrostil mit Doppelwaschbecken und einer freistehenden Badewanne mit Klauenfüßen. Im Dachgeschoss befinden sich zwei weitere Zimmer. Eines der Nebengebäude im Park wurde bereits zu einer Gästewohnung umgebaut, während andere Nebengebäude zu Wohnzwecken umgebaut und erweitert werden können. Villa De' Cavalieri ist eine Residenz, die bereit ist, bewohnt zu werden und Touristen für ihren Urlaub zu beherbergen, und ermöglicht weitere Erweiterungen des Wohnbereichs sowohl der bestehenden Gebäude als auch weiterer Gebäude und Bauland, die in separaten Verhandlungen verfügbar sind.
Objekt-Nr.: PER1273
Wo: Weiler von Perugia, Provinz: Perugia, Region: Umbrien
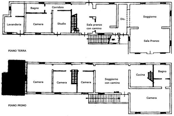
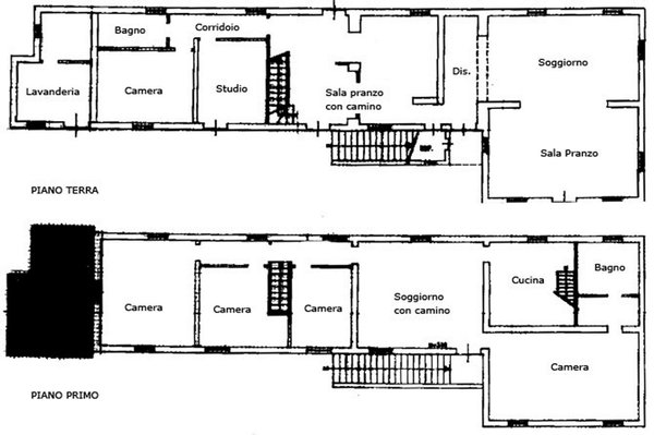
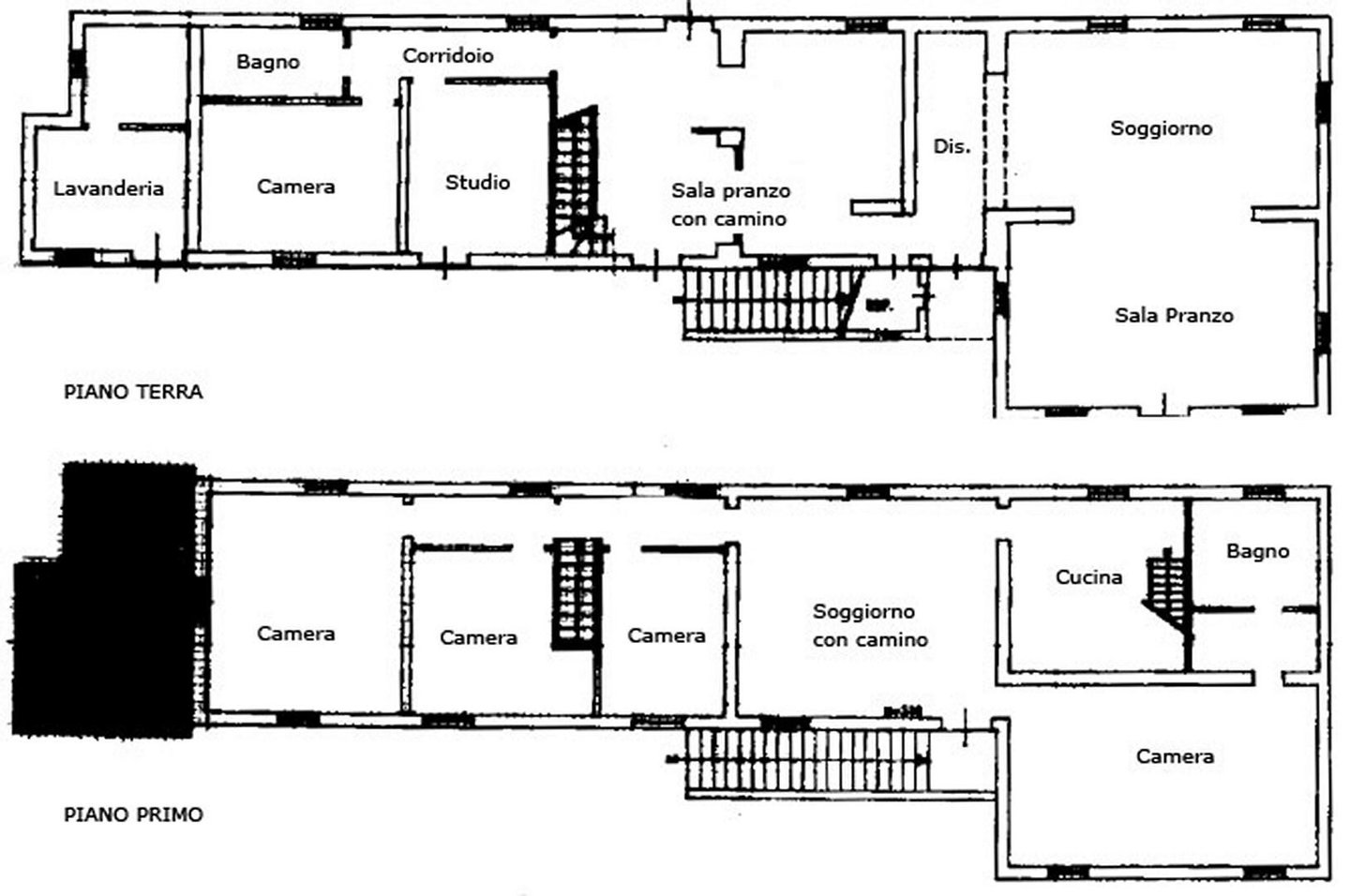
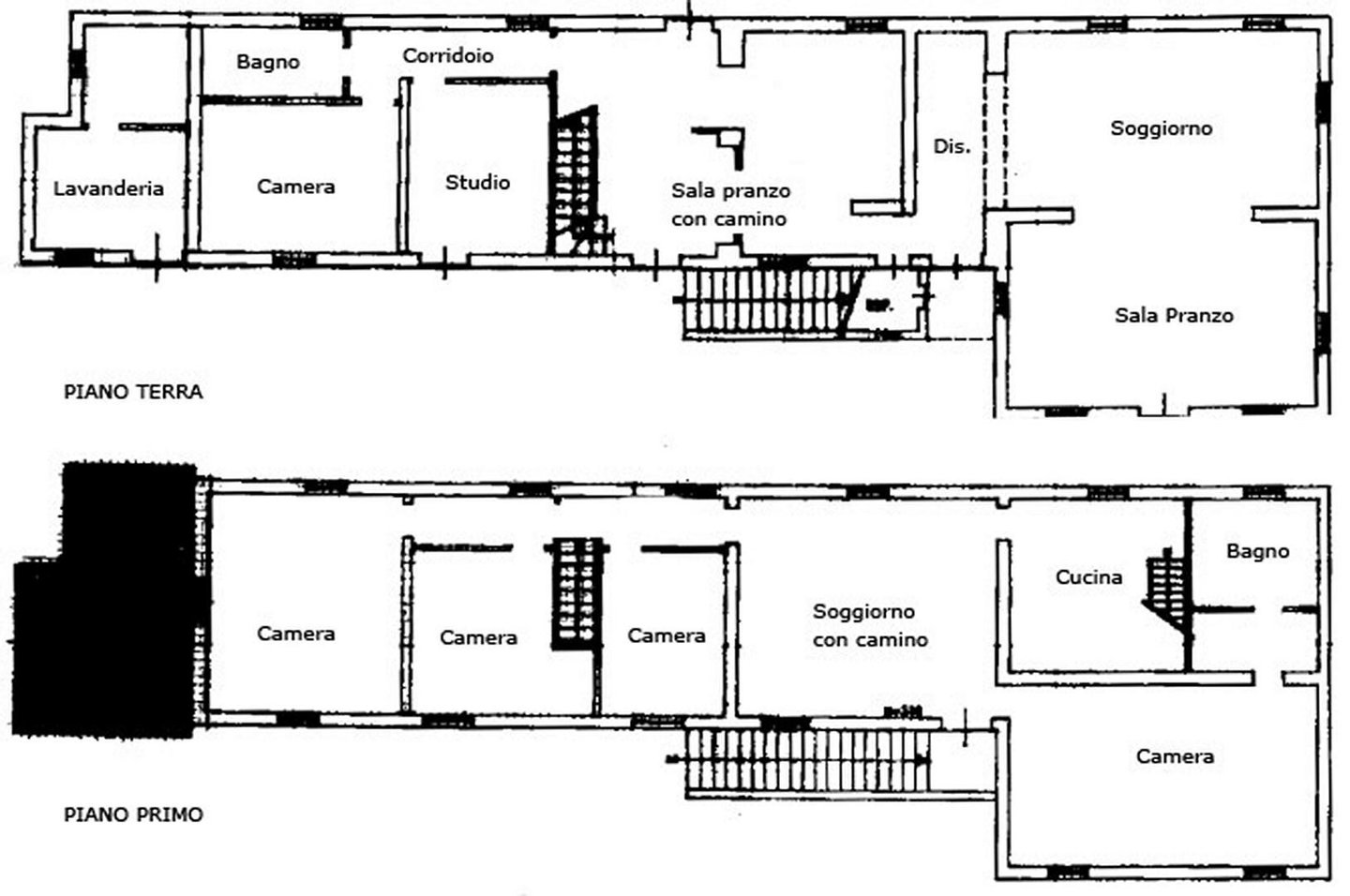
Art: historischer Wohnsitz von insgesamt 643 m², restauriert mit Villa auf drei Ebenen und 6 Zimmern, Nebengebäude, alter Ofen, Schwimmbad und Park, Nebengebäude können umgebaut und vergrößert werden, Bauland kann separat erworben werden
Nebengebäude: Gästeanbau von 64 m² auf einer Ebene, Gebäude mit 55 m² Keller und Garage, das als Umkleideraum/Poolhaus genutzt werden soll, ehemalige Stallungen von 74 m², die umgebaut werden sollen (mit der Möglichkeit der Erweiterung um weitere 100 m²)
Baujahr: 1800
Jahr der Renovierung: 1998
Zustand: sehr guter Zustand der Villa und des Nebengebäudes - Nebengebäude sind zu restaurieren und umzubauen

Immobiliendetails

  • Nutzungsart
    Wohnen
  • Objektart
    Villa
  • Hauptobjektart
    Haus
  • Vertragsart
    Kauf
  • Baujahr
    1800
  • Zimmer (gesamt)
    18
  • Anzahl Schlafzimmer
    7
  • Anzahl Badezimmer
    5
  • Wohnfläche (ca.)
    524 m²
  • Grundstücksfläche (ca.)
    7.200 m²
  • Anzahl Terrassen
    1
  • Ausblick
    Ferne
  • Letzte Modernisierung
    1998
  • Fußboden
    Parkett, Terracotta
  • Anbieter-Objektnummer
    PER1273

Preise & Kosten

  • Kaufpreis pro m²
    1.788,49 €
  • Courtage
    Keine besondere Angabe.

Energie

  • Heizungsart
    Etagenheizung
  • Befeuerungsart
    Pellets, Holz, Flüssiggas
  • Energieausweis
    Energiebedarfsausweis
  • Energieeffizienzklasse
    G
  • Gebäudeart
    Wohngebäude

Standort & Lage

Entfernung zu Dienstleistungen: 500 mt
Entfernung zu den wichtigsten Flughäfen Perugia 16 km, Rom 200 km, Pisa 230 km
Weiße Straße: Nicht vorhanden

Strada Pié della collina 8 · 06132 Perugia · ITA

Sonstiges

Garten: 7200 qm komplett eingezäunt, Tor und Einfahrt - 3 weitere Baugrundstücke vorhanden, separat zu erwerben
Details zu weiterem Bauland: ca. 7.700 qm Gesamtfläche, aufteilbar in 3 Parzellen, auf denen 3 freistehende Gebäude/Einzelhäuser mit ...mehr lesen
Garten: 7200 qm komplett eingezäunt, Tor und Einfahrt - 3 weitere Baugrundstücke vorhanden, separat zu erwerben
Details zu weiterem Bauland: ca. 7.700 qm Gesamtfläche, aufteilbar in 3 Parzellen, auf denen 3 freistehende Gebäude/Einzelhäuser mit jeweils 140 qm Wohnfläche plus Technikraum im Untergeschoss gebaut werden können, mit Garten/Grundstück auf vier Seiten
Schwimmbad: Panoramaschwimmbad mit rundem Whirlpool und zentralem Springbrunnen, Solarium mit Terrakotta-Belag
Terrasse: Loggia im ersten Stock - Anbau einer Terrasse von 80 qm erlaubt
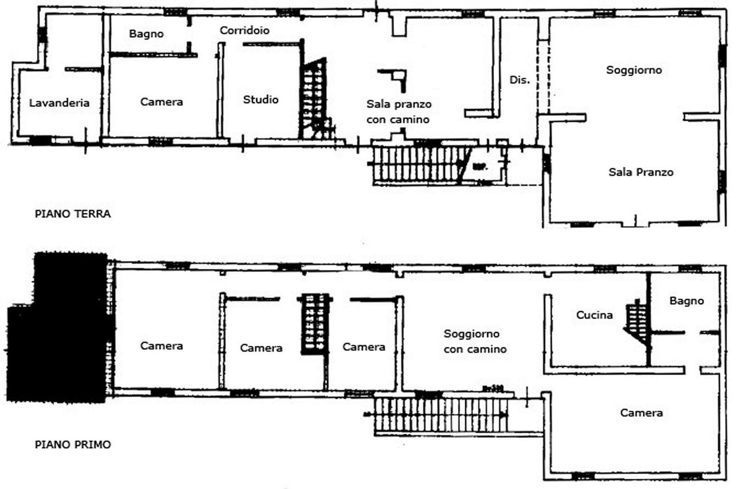
Aufteilung:
Erdgeschoss: Wohnzimmer mit Kamin und Esszimmer, Küche mit Esszimmer und Kamin, Arbeitszimmer, 1 Schlafzimmer, Bad; mit separatem Eingang vom Garten 1 Raum für Wäsche und Lagerung
Erster Stock: Treppenhaus und Flur, Wohnzimmer mit zweitem Zugang von der Außentreppe, Küche mit Zugangstreppe zum zweiten Stock, Arbeitszimmer, 1 Hauptschlafzimmer mit Kleiderschrank und eigenem Bad, 2 Schlafzimmer, 1 Bad
Zweite Etage: Dachgeschoss mit 2 Einzelzimmern

Ansprechpartner

Verbraucherhinweis

Widerrufsbelehrung des Anbieters

(Gilt nicht für Wohnraummiete in Deutschland)

Widerrufsrecht für Verbraucher
Sie haben das Recht, binnen vierzehn Tagen ohne Angabe von Gründen diesen Vertrag zu widerrufen. Die Widerrufsfrist beträgt vierzehn Tage ab dem Tag des Vertragsabschlusses.
Um Ihr Widerrufsrecht auszuüben, müssen Sie uns (Apolloni & Blom S.r.l., Via del progresso 7, 06061 Castiglione del Lago, +390578717016, info@apolloniblom.com) mittels einer eindeutigen Erklärung (z. B. ein mit der Post versandter Brief, Telefax oder E-Mail) über Ihren Entschluss, diesen Vertrag zu widerrufen, informieren. Sie können dafür das beigefügte Muster-Widerrufsformular verwenden, das jedoch nicht vorgeschrieben ist. Zur Wahrung der Widerrufsfrist reicht es aus, dass Sie die Mitteilung über die Ausübung des Widerrufsrechts vor Ablauf der Widerrufsfrist absenden.

Folgen des Widerrufs
Wenn Sie diesen Vertrag widerrufen, haben wir Ihnen alle Zahlungen, die wir von Ihnen erhalten haben, einschließlich der Lieferkosten (mit Ausnahme der zusätzlichen Kosten, die sich daraus ergeben, dass Sie eine andere Art der Lieferung als die von uns angebotene, günstigste Standardlieferung gewählt haben), unverzüglich und spätestens binnen vierzehn Tagen ab dem Tag zurückzuzahlen, an dem die Mitteilung über Ihren Widerruf dieses Vertrags bei uns eingegangen ist. Für diese Rückzahlung verwenden wir dasselbe Zahlungsmittel, das Sie bei der ursprünglichen Transaktion eingesetzt haben, es sei denn, mit Ihnen wurde ausdrücklich etwas anderes vereinbart; in keinem Fall werden Ihnen wegen dieser Rückzahlung Entgelte berechnet. Haben Sie verlangt, dass die Dienstleistungen während der Widerrufsfrist beginnen soll, so haben Sie uns einen angemessenen Betrag zu zahlen, der dem Anteil der bis zu dem Zeitpunkt, zu dem Sie uns von der Ausübung des Widerrufsrechts hinsichtlich dieses Vertrags unterrichten, bereits erbrachten Dienstleistungen im Vergleich zum Gesamtumfang der im Vertrag vorgesehenen Dienstleistungen entspricht.

Muster-Widerrufsformular
(Wenn Sie den Vertrag widerrufen wollen, dann füllen Sie dieses Formular aus und senden Sie es zurück.)

An Apolloni & Blom S.r.l., Via del progresso 7, 06061 Castiglione del Lago, +390578717016, info@apolloniblom.com

Hiermit widerrufe ich/wir den von mir/uns abgeschlossenen Vertrag über den Kauf der folgenden Waren /die Erbringung der folgenden Dienstleistung


Bestellt am /erhalten am

Name des/der Verbraucher(s)

Anschrift des/der Verbraucher(s)

Unterschrift des/der Verbraucher(s) (nur bei Mitteilung auf Papier)

Datum


( Unzutreffendes streichen )


Hinweis auf die Möglichkeit eines vorzeitigen Erlöschens des Widerrufsrechts

Ihr Widerrufsrecht erlischt, wenn wir unsere Leistung vollständig erbracht haben und mit der Ausführung der Leistung erst begonnen haben, nachdem Sie Ihre ausdrückliche Zustimmung gegeben haben und gleichzeitig Ihre Kenntnis davon bestätigt haben, dass Sie Ihr Widerrufsrecht bei vollständiger Vertragserfüllung durch uns verlieren.

Impressum Apolloni & Blom S.r.l.
VERTRETUNGSBERECHTIGTE/R
Blom Niklas Alvar Jonathan


Via del progresso 7
06061 Castiglione del Lago
ITA
Tel.: +390578717016
E-Mail: info@apolloniblom.com
Homepage: https://www.apolloniblom.com/it/index.html

HANDELSREGISTER-EINTRAG
03142470545
Camera di Commercio Industria e artigianato e Agricoltura dell'Umbria

UST-ID-NUMMER
03142470545
Anbieter kontaktieren

AGB, Datenschutz & Verbraucherhinweis wurden gelesen und akzeptiert.