Angebot 9667 von 18096

Anbieter kontaktieren

AGB, Datenschutz & Verbraucherhinweis wurden gelesen und akzeptiert.

Apolloni & Blom S.r.l.

Apolloni and Blom Real Estate - Immobiliare
  • Mehr erfahren
bellevue.de-ID: 30602487

La Villa Storica, Anghiari, Arezzo - Toscana

  • Haus
  • · 40 Zimmer
  • · 703 m² Wohnfläche
  • · 13.000 m² Grundstücksfläche
  • · 2.500.000 € Kaufpreis
Anbieter kontaktieren

Objektbeschreibung

Charmante historische Villa mit Park, Grundstück, Tennisplatz und zwei weiteren Häusern im historischen Zentrum von Anghiari, Arezzo, zu verkaufen. Es handelt sich um ein Anwesen von besonderem Charme, reich an Geschichte und einzigartigen ...mehr lesen
Charmante historische Villa mit Park, Grundstück, Tennisplatz und zwei weiteren Häusern im historischen Zentrum von Anghiari, Arezzo, zu verkaufen. Es handelt sich um ein Anwesen von besonderem Charme, reich an Geschichte und einzigartigen architektonischen Merkmalen, das von einem englischen Lord zu Beginn des 20. Jahrhunderts erbaut wurde und den Jugendstil mit dem britischen Stil verbindet, der sich durch Erkerfenster, eingelegte Steinkamine und freigelegte Steinmauern auszeichnet, die typisch für die toskanische Architektur sind. Der Park ist sehr gepflegt und mit jahrhundertealten Pflanzen und einem Tennisplatz geschmückt. Die Villa befindet sich in einer sehr zentralen Lage und ist durch ein kleines Tor mit dem historischen Zentrum des Dorfes verbunden. Neben der Villa, die sich über vier Etagen erstreckt, gibt es zwei nebeneinander liegende, aber unabhängige Häuser, die sich über zwei Etagen erstrecken und aus zwei Wohnungen bestehen. Zum Anwesen gehört ein Grundstück von ca. 1,3 Hektar, das zum Teil als Park und zum Teil als landwirtschaftliche Fläche mit Olivenbäumen und Weinreben genutzt wird. Das Anwesen wurde in den 1980er Jahren renoviert und hat seine ursprünglichen Merkmale und die sehr malerische Innenausstattung beibehalten. Es eignet sich ideal als privater Wohnsitz für Familie und Freunde, aber auch für Touristen und Reisende aus der ganzen Welt, die diese Gegend jedes Jahr für ihren Urlaub wählen.
Objekt-Nr.: ARZ2299
Wo: Anghiari, Provinz: Arezzo, Region: Toskana.
Typ: Villa von ca. 490m² netto, mit zwei weiteren Häusern in freistehenden Gebäuden von ca. 123m² netto bzw. 90m² netto, plus Lagerräume, Grundstück und Tennisplatz
Zustand: Sehr gut, in den 80er Jahren unter Beibehaltung der ursprünglichen Struktur renoviert
Land: 1,3 Hektar, teilweise als Park genutzt und teilweise mit Olivenhain und Weinberg

Immobiliendetails

  • Nutzungsart
    Wohnen
  • Objektart
    Villa
  • Hauptobjektart
    Haus
  • Vertragsart
    Kauf
  • Objektzustand
    Renovierungsbedürftig
  • Zimmer (gesamt)
    40
  • Anzahl Schlafzimmer
    8
  • Anzahl Badezimmer
    4
  • Wohnfläche (ca.)
    703 m²
  • Grundstücksfläche (ca.)
    13.000 m²
  • Anzahl Terrassen
    1
  • Anzahl Etagen
    4
  • Anbieter-Objektnummer
    ARZ2299

Preise & Kosten

  • Kaufpreis pro m²
    2.717,39 €
  • Courtage
    Keine besondere Angabe.

Energie

  • Heizungsart
    Etagenheizung
  • Energieausweis
    Energiebedarfsausweis
  • Energieeffizienzklasse
    E
  • Gebäudeart
    Wohngebäude

Ausstattung

  • Keller
Versorgungsunternehmen:
Telefonfestnetz: aktiv
Internet: verfügbar, Glasfaser
Heizung: Erdgas
Wasser: kommunale Wasserversorgung und privater Brunnen
Elektrizität: aktiv
Kanalisation: Imoff und kommunales Netz
Alarmanlage und Videoüberwachung
Klimatisierung
E ...mehr lesen
Versorgungsunternehmen:
Telefonfestnetz: aktiv
Internet: verfügbar, Glasfaser
Heizung: Erdgas
Wasser: kommunale Wasserversorgung und privater Brunnen
Elektrizität: aktiv
Kanalisation: Imoff und kommunales Netz
Alarmanlage und Videoüberwachung
Klimatisierung
Eigentum im Namen einer Privatperson
Die Lage ist aus Gründen des Datenschutzes nur ungefähr
Energieklasse: G und E

Standort & Lage

Entfernung zu Dienstleistungen: historisches Zentrum
Entfernung zu den wichtigsten Flughäfen: Perugia 74km, Florenz 126km, Pisa 186km

· 52031 Anghiari · ITA

Sonstiges

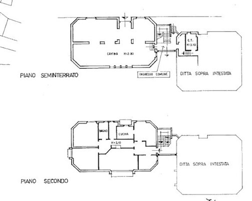
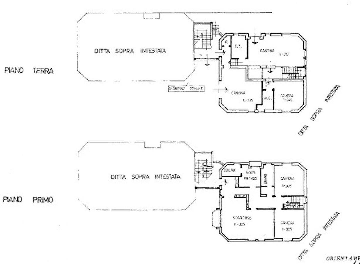
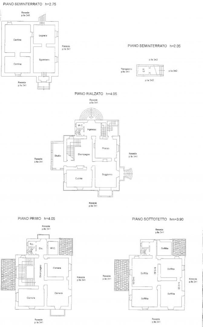
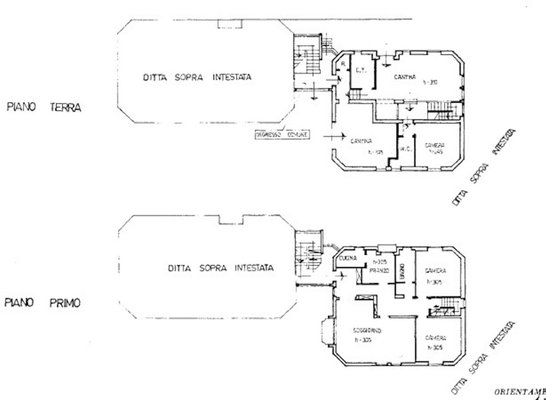
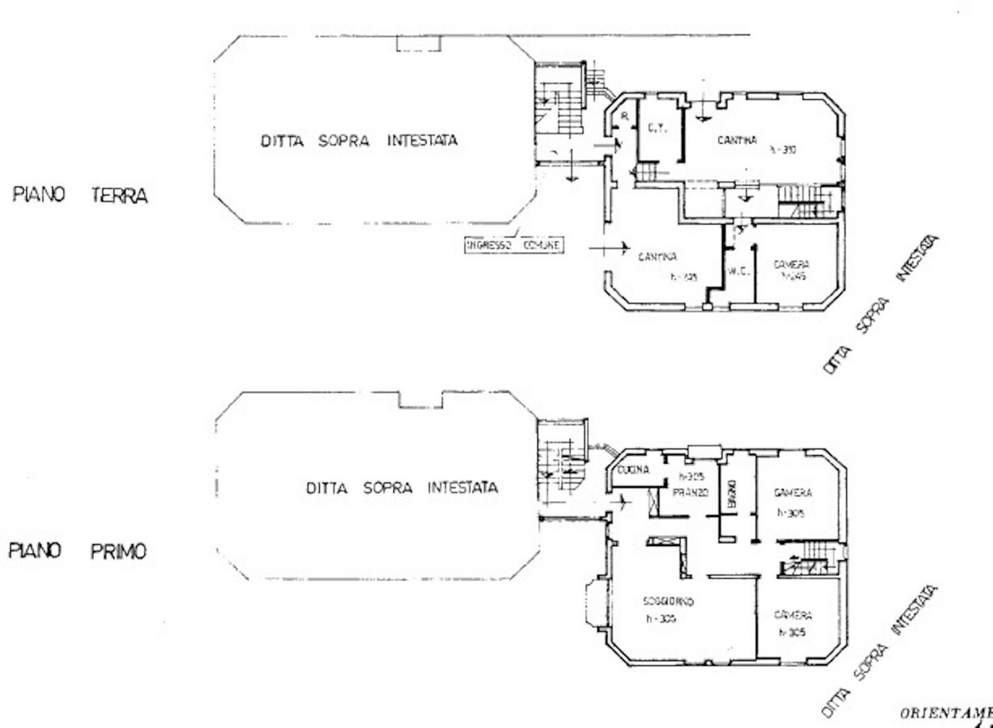
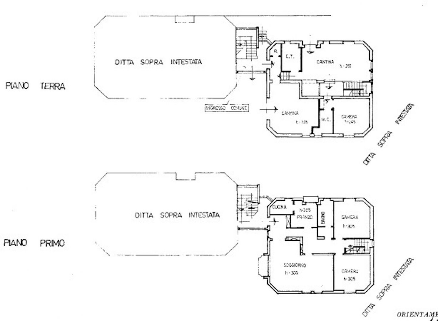
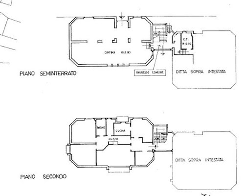
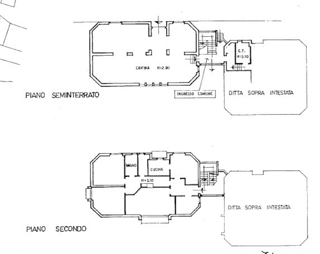
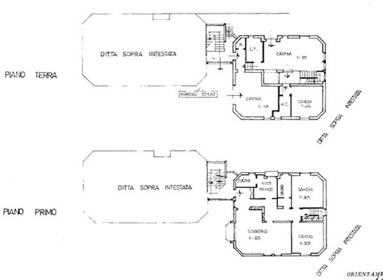
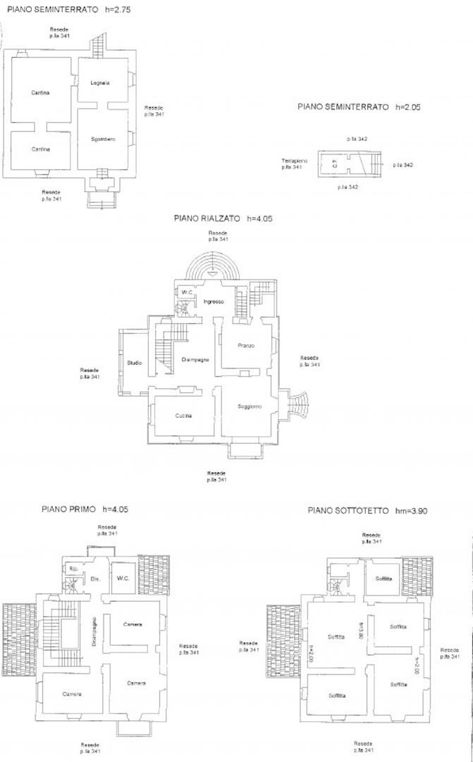
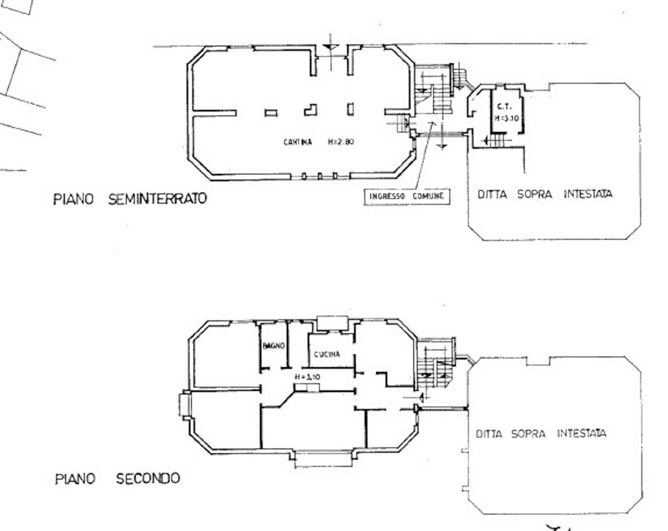
Grundriss:
Hauptvilla - ca. 490 qm Nutzfläche
Kellergeschoss: 2 Keller, Holzschuppen, Abstellraum
Hochparterre: Eingang, Flur, Wohnzimmer, Esszimmer, Küche, Arbeitszimmer, Bad
Obergeschoss: 3 Doppelschlafzimmer, Diele, Hauswirtschaftsraum, Bad
Dachgeschos ...mehr lesen
Grundriss:
Hauptvilla - ca. 490 qm Nutzfläche
Kellergeschoss: 2 Keller, Holzschuppen, Abstellraum
Hochparterre: Eingang, Flur, Wohnzimmer, Esszimmer, Küche, Arbeitszimmer, Bad
Obergeschoss: 3 Doppelschlafzimmer, Diele, Hauswirtschaftsraum, Bad
Dachgeschoss: 5 Zimmer im Dachgeschoss

Villa 1 - Wohnung von ca. 123 qm + Lagerräume von ca. 120 qm
Kellergeschoss: Lagerräume
Zweiter Stock: Küche, Bad, 5 Zimmer

Villa 2 - Wohnung von ca. 90 qm Nutzfläche + Lagerräume von ca. 90 qm
Erdgeschoss: 2 Keller, Zentralheizungsraum, Abstellraum
Erster Stock: Wohnzimmer, Esszimmer, Küche, 2 Schlafzimmer, Badezimmer

Ansprechpartner

Verbraucherhinweis

Widerrufsbelehrung des Anbieters

(Gilt nicht für Wohnraummiete in Deutschland)

Widerrufsrecht für Verbraucher
Sie haben das Recht, binnen vierzehn Tagen ohne Angabe von Gründen diesen Vertrag zu widerrufen. Die Widerrufsfrist beträgt vierzehn Tage ab dem Tag des Vertragsabschlusses.
Um Ihr Widerrufsrecht auszuüben, müssen Sie uns (Apolloni & Blom S.r.l., Via del progresso 7, 06061 Castiglione del Lago, +390578717016, info@apolloniblom.com) mittels einer eindeutigen Erklärung (z. B. ein mit der Post versandter Brief, Telefax oder E-Mail) über Ihren Entschluss, diesen Vertrag zu widerrufen, informieren. Sie können dafür das beigefügte Muster-Widerrufsformular verwenden, das jedoch nicht vorgeschrieben ist. Zur Wahrung der Widerrufsfrist reicht es aus, dass Sie die Mitteilung über die Ausübung des Widerrufsrechts vor Ablauf der Widerrufsfrist absenden.

Folgen des Widerrufs
Wenn Sie diesen Vertrag widerrufen, haben wir Ihnen alle Zahlungen, die wir von Ihnen erhalten haben, einschließlich der Lieferkosten (mit Ausnahme der zusätzlichen Kosten, die sich daraus ergeben, dass Sie eine andere Art der Lieferung als die von uns angebotene, günstigste Standardlieferung gewählt haben), unverzüglich und spätestens binnen vierzehn Tagen ab dem Tag zurückzuzahlen, an dem die Mitteilung über Ihren Widerruf dieses Vertrags bei uns eingegangen ist. Für diese Rückzahlung verwenden wir dasselbe Zahlungsmittel, das Sie bei der ursprünglichen Transaktion eingesetzt haben, es sei denn, mit Ihnen wurde ausdrücklich etwas anderes vereinbart; in keinem Fall werden Ihnen wegen dieser Rückzahlung Entgelte berechnet. Haben Sie verlangt, dass die Dienstleistungen während der Widerrufsfrist beginnen soll, so haben Sie uns einen angemessenen Betrag zu zahlen, der dem Anteil der bis zu dem Zeitpunkt, zu dem Sie uns von der Ausübung des Widerrufsrechts hinsichtlich dieses Vertrags unterrichten, bereits erbrachten Dienstleistungen im Vergleich zum Gesamtumfang der im Vertrag vorgesehenen Dienstleistungen entspricht.

Muster-Widerrufsformular
(Wenn Sie den Vertrag widerrufen wollen, dann füllen Sie dieses Formular aus und senden Sie es zurück.)

An Apolloni & Blom S.r.l., Via del progresso 7, 06061 Castiglione del Lago, +390578717016, info@apolloniblom.com

Hiermit widerrufe ich/wir den von mir/uns abgeschlossenen Vertrag über den Kauf der folgenden Waren /die Erbringung der folgenden Dienstleistung


Bestellt am /erhalten am

Name des/der Verbraucher(s)

Anschrift des/der Verbraucher(s)

Unterschrift des/der Verbraucher(s) (nur bei Mitteilung auf Papier)

Datum


( Unzutreffendes streichen )


Hinweis auf die Möglichkeit eines vorzeitigen Erlöschens des Widerrufsrechts

Ihr Widerrufsrecht erlischt, wenn wir unsere Leistung vollständig erbracht haben und mit der Ausführung der Leistung erst begonnen haben, nachdem Sie Ihre ausdrückliche Zustimmung gegeben haben und gleichzeitig Ihre Kenntnis davon bestätigt haben, dass Sie Ihr Widerrufsrecht bei vollständiger Vertragserfüllung durch uns verlieren.

Impressum Apolloni & Blom S.r.l.
VERTRETUNGSBERECHTIGTE/R
Blom Niklas Alvar Jonathan


Via del progresso 7
06061 Castiglione del Lago
ITA
Tel.: +390578717016
E-Mail: info@apolloniblom.com
Homepage: https://www.apolloniblom.com/it/index.html

HANDELSREGISTER-EINTRAG
03142470545
Camera di Commercio Industria e artigianato e Agricoltura dell'Umbria

UST-ID-NUMMER
03142470545
Anbieter kontaktieren

AGB, Datenschutz & Verbraucherhinweis wurden gelesen und akzeptiert.