Angebot 7746 von 16380

Anbieter kontaktieren

AGB, Datenschutz & Verbraucherhinweis wurden gelesen und akzeptiert.

Apolloni & Blom S.r.l.

Apolloni and Blom Real Estate - Immobiliare
  • Mehr erfahren
bellevue.de-ID: 30602283

Casale Mezzajolo wird fertiggestellt, in Weiler, Cortona - Toskana

  • Haus
  • · 8 Zimmer
  • · 260 m² Wohnfläche
  • · 20.000 m² Grundstücksfläche
  • · 780.000 € Kaufpreis
Anbieter kontaktieren

Objektbeschreibung

Historisches Bauernhaus zu verkaufen, das zu einem kleinen ländlichen Weiler in der Nähe von Cortona gehört. Das Bauernhaus, einst das Haus des "Mezzaiolo", einer wichtigen ländlichen Figur im Val di Chiana im 18. Jahrhundert, ist derzeit in einem ...mehr lesen
Historisches Bauernhaus zu verkaufen, das zu einem kleinen ländlichen Weiler in der Nähe von Cortona gehört. Das Bauernhaus, einst das Haus des "Mezzaiolo", einer wichtigen ländlichen Figur im Val di Chiana im 18. Jahrhundert, ist derzeit in einem fortgeschrittenen unfertigen Zustand, so dass die Möglichkeit, gemäß dem Projekt, sechs Zimmer und ein Schwimmbad zu bauen, angepasst werden. Das Anwesen ist Teil von insgesamt 6 Bauernhäusern im traditionellen Stil, die das Ergebnis der Restaurierung eines alten Anwesens der Ritter von St. Stephan sind, das auf das Ende des 18. Jahrhunderts zurückgeht. Borgo de' Cavalieri erstreckt sich über 2 Hektar - einen gemeinsamen Park - der komplett eingezäunt ist. Das Mezzajolo ist ein klassisches zweistöckiges Gebäude von 260 Quadratmetern und bietet die Möglichkeit, entweder ein Haus mit fünf oder sechs Schlafzimmern oder zwei Doppelhaushälften zu errichten. Das Sanierungsprojekt umfasste den Abriss des ursprünglichen Gebäudes und seinen vollständigen Wiederaufbau mit hervorragenden architektonischen Techniken und modernsten Materialien, die Wärmedämmung, Energieeffizienz und erdbebensichere Strukturen garantieren. Das Gebäude steht kurz vor der Fertigstellung; 80 % des gesamten Ausbaus sind bereits abgeschlossen, so dass nur noch die Innenräume und die Oberflächengestaltung angepasst werden müssen. Der Garten umgibt das Grundstück an vier Seiten und verfügt über einen 45 Quadratmeter großen Pavillon für Mahlzeiten im Freien mit Blick auf den privaten Swimmingpool, der ebenfalls noch fertiggestellt werden soll. Zum Parken ist ein überdachter Carport mit drei Stellplätzen vorgesehen. Der Angebotspreis bezieht sich auf den unfertigen Zustand; ein Kostenvoranschlag für die schlüsselfertige Übergabe ist auf Anfrage erhältlich (schätzungsweise zwischen 200.000,00 und 300.000,00 Euro, die zum Grundpreis hinzukommen, je nach den gewählten Ausführungen und Materialien). Eines der sechs Häuser, COR2948 Casale de' Cavalieri, wurde bereits fertiggestellt und dient als Beispiel für die hervorragende Ausführung. Es gibt bereits einen Sicherheits- und Wartungsdienst, der auf die einzelnen Gebäude und Gärten ausgedehnt werden kann, sowie Unterstützung bei der Verwaltung des Anwesens oder einer eventuellen touristischen Vermietung, falls man das Anwesen zu diesem Zweck nutzen möchte. Die Zufahrtsstraße zum Borgo de' Cavalieri ist eine typische Schotterstraße durch die toskanische Landschaft, etwa 300 Meter lang. Wählen Sie Ihr Haus in der Toskana mit Schwimmbad, kontaktieren Sie uns und buchen Sie noch heute einen Termin!
Objekt-Nr.: COR2950
Wo: Cortona, Provinz: Arezzo, Region: Toskana
Typ: Neugebautes Bauernhaus von ca. 260 Quadratmetern auf zwei Ebenen, Innenräume und Anlagen müssen noch fertiggestellt werden, Garten mit Pavillon, privater Pool muss noch fertiggestellt werden, in einem Weiler mit Park und eingezäuntem Wohngebiet und mit Sicherheits-/Bewachungsdienst
Baujahr: Ende der 1700er Jahre
Jahr der Renovierung: 2024
Zustand: Baufortschritt 80%, Innenausbau mit Inventar und Dekoration noch nicht abgeschlossen
Garten: 2.400 m² privater, auf vier Seiten vollständig umzäunter Garten, Möglichkeit, einen 45 m² großen Pavillon hinzuzufügen + Gemeinschaftspark

Immobiliendetails

  • Nutzungsart
    Wohnen
  • Objektart
    Resthof
  • Hauptobjektart
    Haus
  • Vertragsart
    Kauf
  • Objektzustand
    Rohbau/Im Bau
  • Baujahr
    1700
  • Zimmer (gesamt)
    8
  • Anzahl Schlafzimmer
    6
  • Anzahl Badezimmer
    5
  • Wohneinheiten
    1
  • Anzahl Parkflächen
    3
  • Wohnfläche (ca.)
    260 m²
  • Grundstücksfläche (ca.)
    20.000 m²
  • Denkmalschutzobjekt
  • Gartenfläche (ca.)
    2.400 m²
  • Etage
    2
  • Stellplatzart
    Carport
  • Anzahl Etagen
    2
  • Ausblick
    Ferne
  • Ausrichtung
    Süd
  • Letzte Modernisierung
    2024
  • Anbieter-Objektnummer
    COR2950

Preise & Kosten

  • Kaufpreis pro m²
    3.000 €
  • Courtage
    Keine besondere Angabe.

Energie

  • Heizungsart
    Etagenheizung
  • Befeuerungsart
    Flüssiggas
  • Energieausweis
    Energiebedarfsausweis
  • Energieeffizienzklasse
    G
  • Gebäudeart
    Wohngebäude

Standort & Lage

Entfernung zu Dienstleistungen: 4 km
Entfernung zu den wichtigsten Flughäfen: Perugia 59 km, Florenz 129 km, Rom 234 km
Weiße Straße: 300 mt

località santa Caterina snc · 52044 Cortona · ITA

Sonstiges

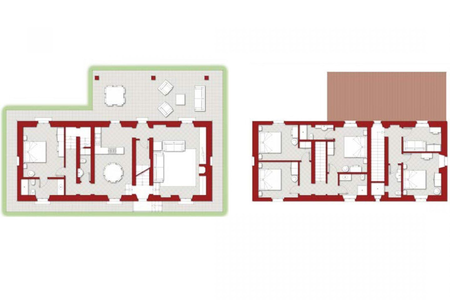
Aufteilung:
Erdgeschoss: Wohnzimmer mit Kamin, Küche mit Esszimmer, 1 Bad, 1 Schlafzimmer mit eigenem Bad
Erster Stock: 3 Doppelschlafzimmer mit eigenem Bad, 1 Doppelschlafzimmer, 1 Bad und 1 Einzelzimmer

Videos

Ansprechpartner

Verbraucherhinweis

Widerrufsbelehrung des Anbieters

(Gilt nicht für Wohnraummiete in Deutschland)

Widerrufsrecht für Verbraucher
Sie haben das Recht, binnen vierzehn Tagen ohne Angabe von Gründen diesen Vertrag zu widerrufen. Die Widerrufsfrist beträgt vierzehn Tage ab dem Tag des Vertragsabschlusses.
Um Ihr Widerrufsrecht auszuüben, müssen Sie uns (Apolloni & Blom S.r.l., Via del progresso 7, 06061 Castiglione del Lago, +390578717016, info@apolloniblom.com) mittels einer eindeutigen Erklärung (z. B. ein mit der Post versandter Brief, Telefax oder E-Mail) über Ihren Entschluss, diesen Vertrag zu widerrufen, informieren. Sie können dafür das beigefügte Muster-Widerrufsformular verwenden, das jedoch nicht vorgeschrieben ist. Zur Wahrung der Widerrufsfrist reicht es aus, dass Sie die Mitteilung über die Ausübung des Widerrufsrechts vor Ablauf der Widerrufsfrist absenden.

Folgen des Widerrufs
Wenn Sie diesen Vertrag widerrufen, haben wir Ihnen alle Zahlungen, die wir von Ihnen erhalten haben, einschließlich der Lieferkosten (mit Ausnahme der zusätzlichen Kosten, die sich daraus ergeben, dass Sie eine andere Art der Lieferung als die von uns angebotene, günstigste Standardlieferung gewählt haben), unverzüglich und spätestens binnen vierzehn Tagen ab dem Tag zurückzuzahlen, an dem die Mitteilung über Ihren Widerruf dieses Vertrags bei uns eingegangen ist. Für diese Rückzahlung verwenden wir dasselbe Zahlungsmittel, das Sie bei der ursprünglichen Transaktion eingesetzt haben, es sei denn, mit Ihnen wurde ausdrücklich etwas anderes vereinbart; in keinem Fall werden Ihnen wegen dieser Rückzahlung Entgelte berechnet. Haben Sie verlangt, dass die Dienstleistungen während der Widerrufsfrist beginnen soll, so haben Sie uns einen angemessenen Betrag zu zahlen, der dem Anteil der bis zu dem Zeitpunkt, zu dem Sie uns von der Ausübung des Widerrufsrechts hinsichtlich dieses Vertrags unterrichten, bereits erbrachten Dienstleistungen im Vergleich zum Gesamtumfang der im Vertrag vorgesehenen Dienstleistungen entspricht.

Muster-Widerrufsformular
(Wenn Sie den Vertrag widerrufen wollen, dann füllen Sie dieses Formular aus und senden Sie es zurück.)

An Apolloni & Blom S.r.l., Via del progresso 7, 06061 Castiglione del Lago, +390578717016, info@apolloniblom.com

Hiermit widerrufe ich/wir den von mir/uns abgeschlossenen Vertrag über den Kauf der folgenden Waren /die Erbringung der folgenden Dienstleistung


Bestellt am /erhalten am

Name des/der Verbraucher(s)

Anschrift des/der Verbraucher(s)

Unterschrift des/der Verbraucher(s) (nur bei Mitteilung auf Papier)

Datum


( Unzutreffendes streichen )


Hinweis auf die Möglichkeit eines vorzeitigen Erlöschens des Widerrufsrechts

Ihr Widerrufsrecht erlischt, wenn wir unsere Leistung vollständig erbracht haben und mit der Ausführung der Leistung erst begonnen haben, nachdem Sie Ihre ausdrückliche Zustimmung gegeben haben und gleichzeitig Ihre Kenntnis davon bestätigt haben, dass Sie Ihr Widerrufsrecht bei vollständiger Vertragserfüllung durch uns verlieren.

Impressum Apolloni & Blom S.r.l.
VERTRETUNGSBERECHTIGTE/R
Blom Niklas Alvar Jonathan


Via del progresso 7
06061 Castiglione del Lago
ITA
Tel.: +390578717016
E-Mail: info@apolloniblom.com
Homepage: https://www.apolloniblom.com/it/index.html

HANDELSREGISTER-EINTRAG
03142470545
Camera di Commercio Industria e artigianato e Agricoltura dell'Umbria

UST-ID-NUMMER
03142470545
Anbieter kontaktieren

AGB, Datenschutz & Verbraucherhinweis wurden gelesen und akzeptiert.