Anbieter kontaktieren
Schmidbauer Immobilien Kreta
Oskar Josef Schmidbauer
84100 Niederaichbach
- Mehr erfahren
bellevue.de-ID: 30601943
Kreta, Sisi: Neubau-Projekt! Villa direkt am Meer mit freiem Blick zu verkaufen
- Haus
- · 4 Zimmer
- · 128 m² Wohnfläche
- · 226 m² Grundstücksfläche
- · 1.200.000 € Kaufpreis
Objektbeschreibung
Diese atemberaubende Villa am Meer ist die privilegierteste Residenz in einem exklusiven Komplex aus vier Villen, der im Sommer 2027 fertiggestellt werden soll.
Dieses Anwesen liegt im malerischen Fischerdorf Sisi, Lasithi, an der Nordküste Kretas und ...mehr lesen
Dieses Anwesen liegt im malerischen Fischerdorf Sisi, Lasithi, an der Nordküste Kretas und ...mehr lesen
Diese atemberaubende Villa am Meer ist die privilegierteste Residenz in einem exklusiven Komplex aus vier Villen, der im Sommer 2027 fertiggestellt werden soll.
Dieses Anwesen liegt im malerischen Fischerdorf Sisi, Lasithi, an der Nordküste Kretas und genießt eine wirklich einzigartige Lage – ganz in der Nähe des Meeres und mit atemberaubender, unverbauter Aussicht auf die Bucht und den charmanten Hafen von Sisi.
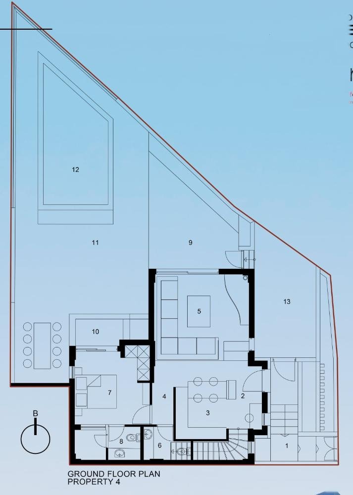
Die Villa wurde für Komfort, Privatsphäre und ein nahtloses Wohnen im Innen- und Außenbereich konzipiert und bietet 128 m² Wohnfläche auf einem 226 m² großen Grundstück und erstreckt sich über zwei Ebenen:
Erdgeschoss:
Eleganter offener Wohn- und Küchenbereich
Ein Doppelzimmer mit eigenem Bad
Gäste-WC
Direkter Zugang zu einer geräumigen Terrasse mit Meerblick, privatem Swimmingpool, Loungebereich und Essbereich
Erster Stock:
Zwei Doppelzimmer, jedes mit eigenem Bad mit Dusche und eigenem Balkon mit Meerblick
Ein Schlafzimmer verfügt über einen internen Balkon über dem darunterliegenden Wohnbereich – ideal für die Einrichtung einer gemütlichen Leseecke oder eines Home-Office-Bereichs
Mit ihrer erstklassigen Lage, dem modernen Design und dem spektakulären Meerblick bietet diese Villa eine seltene Gelegenheit, ein Stück Paradies in einem der ruhigsten Küstendörfer Kretas zu besitzen.
Das Anwesen liegt im schönen, freundlichen und ruhigen alten Fischerdorf Sissi mit seinem natürlichen Hafen, Sandstränden und umgeben von wunderschönen Olivenhainen. Die Einrichtungen sind das ganze Jahr über geöffnet.
Möbel sind NICHT im Kaufpreis enthalten.
Dieses Anwesen liegt im malerischen Fischerdorf Sisi, Lasithi, an der Nordküste Kretas und genießt eine wirklich einzigartige Lage – ganz in der Nähe des Meeres und mit atemberaubender, unverbauter Aussicht auf die Bucht und den charmanten Hafen von Sisi.
Die Villa wurde für Komfort, Privatsphäre und ein nahtloses Wohnen im Innen- und Außenbereich konzipiert und bietet 128 m² Wohnfläche auf einem 226 m² großen Grundstück und erstreckt sich über zwei Ebenen:
Erdgeschoss:
Eleganter offener Wohn- und Küchenbereich
Ein Doppelzimmer mit eigenem Bad
Gäste-WC
Direkter Zugang zu einer geräumigen Terrasse mit Meerblick, privatem Swimmingpool, Loungebereich und Essbereich
Erster Stock:
Zwei Doppelzimmer, jedes mit eigenem Bad mit Dusche und eigenem Balkon mit Meerblick
Ein Schlafzimmer verfügt über einen internen Balkon über dem darunterliegenden Wohnbereich – ideal für die Einrichtung einer gemütlichen Leseecke oder eines Home-Office-Bereichs
Mit ihrer erstklassigen Lage, dem modernen Design und dem spektakulären Meerblick bietet diese Villa eine seltene Gelegenheit, ein Stück Paradies in einem der ruhigsten Küstendörfer Kretas zu besitzen.
Das Anwesen liegt im schönen, freundlichen und ruhigen alten Fischerdorf Sissi mit seinem natürlichen Hafen, Sandstränden und umgeben von wunderschönen Olivenhainen. Die Einrichtungen sind das ganze Jahr über geöffnet.
Möbel sind NICHT im Kaufpreis enthalten.
Immobiliendetails
-
NutzungsartWohnen
-
HauptobjektartHaus
-
VertragsartKauf
-
ObjektzustandErstbezug
-
Baujahr2027
-
Zimmer (gesamt)4
-
Anzahl Schlafzimmer3
-
Anzahl Badezimmer4
-
Wohnfläche (ca.)128 m²
-
Grundstücksfläche (ca.)226 m²
-
StellplatzartCarport, Freiplatz
-
Anzahl Etagen2
-
DachformFlachdach
-
AusblickMeer
-
Anbieter-ObjektnummerS-HSIS26h
Preise & Kosten
-
Courtage2,48 % inklusive der gesetzlichen Mehrwertsteuer
Energie
-
EnergieausweisEnergiebedarfsausweis
-
Baujahr (laut Energieausweis)2027
-
EnergieeffizienzklasseH
-
Ausgestelltohne / nicht vorhanden
Ausstattung
- Gäste-WC
- Swimmingpool
- Garten
Standort & Lage
? Sisi (PLZ 720 54) – Malerisches Fischerdorf an der Nordküste
Sisi ist ein malerisches Fischerdorf in der Region Lassithi, das sich an der Nordküste Kretas befindet. Es ist bekannt für seinen kleinen, geschützten Hafen, seine entspannte Atmosphäre ...mehr lesen
Sisi ist ein malerisches Fischerdorf in der Region Lassithi, das sich an der Nordküste Kretas befindet. Es ist bekannt für seinen kleinen, geschützten Hafen, seine entspannte Atmosphäre ...mehr lesen
? Sisi (PLZ 720 54) – Malerisches Fischerdorf an der Nordküste
Sisi ist ein malerisches Fischerdorf in der Region Lassithi, das sich an der Nordküste Kretas befindet. Es ist bekannt für seinen kleinen, geschützten Hafen, seine entspannte Atmosphäre und seine Nähe zu den touristischen Zentren Malia und Agios Nikolaos. Sisi bietet die perfekte Balance zwischen ruhigem Küstenleben und der schnellen Erreichbarkeit lebhafter Orte.
? Lebensstil & Atmosphäre
Das Lebensgefühl in Sisi ist friedlich und authentisch. Die malerische Hafenbucht und die kleinen Gassen laden zum Verweilen ein. Man kann hier die Ruhe und die Schönheit der Natur genießen, ohne auf eine gute touristische Infrastruktur verzichten zu müssen, die von traditionellen Tavernen bis zu kleinen Geschäften reicht.
? Verkehr & Infrastruktur
Sisi ist hervorragend an die Hauptverkehrsachse angebunden, was eine gute Erreichbarkeit der größeren Städte und Flughäfen ermöglicht.
Malia: ca. 8,6 km entfernt, ca. 13 Minuten Fahrzeit.
Agios Nikolaos: ca. 28,6 km entfernt, ca. 34 Minuten Fahrzeit.
Neuer Flughafen Kastelli: ca. 39,1 km entfernt, ca. 42 Minuten Fahrzeit.
Heraklion (Zentrum): ca. 43,9 km entfernt, ca. 43 Minuten Fahrzeit.
Chania (Zentrum): ca. 181 km entfernt, ca. 2 Stunden, 36 Minuten Fahrzeit.
Flughafen Chania (CHQ): ca. 187 km entfernt, ca. 2 Stunden, 43 Minuten Fahrzeit.
?️ Natur & Freizeitmöglichkeiten
Die kleine Bucht von Sisi ist ideal zum Schwimmen und Sonnenbaden. In der Umgebung gibt es Wanderwege, die durch Olivenhaine und zu versteckten Stränden führen. Durch die zentrale Lage im Osten der Insel sind auch die archäologischen Stätten von Malia und Knossos sowie die Lassithi-Hochebene gut erreichbar.
? Immobilien & Standortpotential – Objekte im Osten Kretas
Der Immobilienmarkt in Sisi ist besonders attraktiv für Käufer, die eine Ferienvilla, eine Wohnung am Meer oder ein Grundstück in einer begehrten Küstenregion suchen. Die hohe Nachfrage nach Ferienunterkünften und die gute touristische Infrastruktur machen die Gegend zu einem hervorragenden Standort für eine Investition. Als Ihr Immobilienmakler, der sich ausschließlich auf Kreta spezialisiert, ist Schmidbauer Immobilien Kreta Ihr Partner, um die besten Objekte in dieser attraktiven Region zu finden.
https://www.youtube.com/watch?v=RUK5n99Aqww&t=1s
Sisi - Lasithi - Kreta - von oben - 4K Drohnenvideo
Sisi ist ein malerisches Fischerdorf in der Region Lassithi, das sich an der Nordküste Kretas befindet. Es ist bekannt für seinen kleinen, geschützten Hafen, seine entspannte Atmosphäre und seine Nähe zu den touristischen Zentren Malia und Agios Nikolaos. Sisi bietet die perfekte Balance zwischen ruhigem Küstenleben und der schnellen Erreichbarkeit lebhafter Orte.
? Lebensstil & Atmosphäre
Das Lebensgefühl in Sisi ist friedlich und authentisch. Die malerische Hafenbucht und die kleinen Gassen laden zum Verweilen ein. Man kann hier die Ruhe und die Schönheit der Natur genießen, ohne auf eine gute touristische Infrastruktur verzichten zu müssen, die von traditionellen Tavernen bis zu kleinen Geschäften reicht.
? Verkehr & Infrastruktur
Sisi ist hervorragend an die Hauptverkehrsachse angebunden, was eine gute Erreichbarkeit der größeren Städte und Flughäfen ermöglicht.
Malia: ca. 8,6 km entfernt, ca. 13 Minuten Fahrzeit.
Agios Nikolaos: ca. 28,6 km entfernt, ca. 34 Minuten Fahrzeit.
Neuer Flughafen Kastelli: ca. 39,1 km entfernt, ca. 42 Minuten Fahrzeit.
Heraklion (Zentrum): ca. 43,9 km entfernt, ca. 43 Minuten Fahrzeit.
Chania (Zentrum): ca. 181 km entfernt, ca. 2 Stunden, 36 Minuten Fahrzeit.
Flughafen Chania (CHQ): ca. 187 km entfernt, ca. 2 Stunden, 43 Minuten Fahrzeit.
?️ Natur & Freizeitmöglichkeiten
Die kleine Bucht von Sisi ist ideal zum Schwimmen und Sonnenbaden. In der Umgebung gibt es Wanderwege, die durch Olivenhaine und zu versteckten Stränden führen. Durch die zentrale Lage im Osten der Insel sind auch die archäologischen Stätten von Malia und Knossos sowie die Lassithi-Hochebene gut erreichbar.
? Immobilien & Standortpotential – Objekte im Osten Kretas
Der Immobilienmarkt in Sisi ist besonders attraktiv für Käufer, die eine Ferienvilla, eine Wohnung am Meer oder ein Grundstück in einer begehrten Küstenregion suchen. Die hohe Nachfrage nach Ferienunterkünften und die gute touristische Infrastruktur machen die Gegend zu einem hervorragenden Standort für eine Investition. Als Ihr Immobilienmakler, der sich ausschließlich auf Kreta spezialisiert, ist Schmidbauer Immobilien Kreta Ihr Partner, um die besten Objekte in dieser attraktiven Region zu finden.
https://www.youtube.com/watch?v=RUK5n99Aqww&t=1s
Sisi - Lasithi - Kreta - von oben - 4K Drohnenvideo
Sonstiges
Wir sind deutsche Immobilienmakler und haben uns spezialisiert auf Immobilien aus Kreta. Neben der Suche nach geeigneten Immobilien auf Kreta für Sie, gehört auch das Organisieren von Besichtigungsterminen auf Kreta zu unserem Portfolio.
Zu jeder ...mehr lesen
Zu jeder ...mehr lesen
Wir sind deutsche Immobilienmakler und haben uns spezialisiert auf Immobilien aus Kreta. Neben der Suche nach geeigneten Immobilien auf Kreta für Sie, gehört auch das Organisieren von Besichtigungsterminen auf Kreta zu unserem Portfolio.
Zu jeder Phase Ihres Immobilienerwerbs auf Kreta stehen wir Ihnen zur Seite und begleiten Sie vom ersten Gespräch bis über den Notarvertrag hinaus.
Uns sind Ihre Vorstellungen wichtig, wie zum Beispiel die Lage auf Kreta in Verbindung mit Meerblick, Strandnähe, Sandstrand, Steinhaus oder Swimmingpool. Zusätzlich gibt es wichtige Punkte zu beachten wie die Maße der Zimmer einer Immobilie. In Griechenland und somit auch auf Kreta werden die Wände miteingerechnet, also Außenwand zur Außenwand. Im Gegensatz zu deutschen Immobilien, hier wird von Innenwand zur Innenwand gemessen.
Wir empfehlen Ihnen unbedingt bei der Besichtigung auf Kreta die angegebene Wohnfläche zu überprüfen, da diese stark von deutschen Angaben abweichen kann (Berechnungs-, Wohnflächenverordnung, DIN-Normen) und Nutzflächen eventuell miteingerechnet wurden (Keller, Technikraum, Balkon, Terrasse etc.).
Bitte beachten Sie auch bei Standortangaben zu Immobilienangeboten auf Kreta, dass dies ungefähre Werte sind.
Der griechische Energieausweis (falls erforderlich) liegt bei der Besichtigung vor.
Zum angegebenen Kaufpreis kommen noch Nebenkosten wie Provision, Grunderwerbsteuer, Notargebühren und Anwaltskosten hinzu. Genaueres finden Sie auf unserer Homepage bei INFOS.
Alle über unser Portal angebotenen Immobilien aus Kreta wurden sorgfältig geprüft und übersetzt. Dennoch können sich Fehler einschleichen, so dass wir keine Gewähr auf Richtigkeit der Angaben übernehmen.
Für alle Fragen rund um das Thema - Kauf einer Immobilie oder Grundstück auf Kreta - stehen wir Ihnen gerne zur Verfügung und können weitere Details im Gespräch klären.
Es gelten unsere AGB, die Sie auf unserer Homepage bei AGB und Widerrufsrecht finden.
Zu jeder Phase Ihres Immobilienerwerbs auf Kreta stehen wir Ihnen zur Seite und begleiten Sie vom ersten Gespräch bis über den Notarvertrag hinaus.
Uns sind Ihre Vorstellungen wichtig, wie zum Beispiel die Lage auf Kreta in Verbindung mit Meerblick, Strandnähe, Sandstrand, Steinhaus oder Swimmingpool. Zusätzlich gibt es wichtige Punkte zu beachten wie die Maße der Zimmer einer Immobilie. In Griechenland und somit auch auf Kreta werden die Wände miteingerechnet, also Außenwand zur Außenwand. Im Gegensatz zu deutschen Immobilien, hier wird von Innenwand zur Innenwand gemessen.
Wir empfehlen Ihnen unbedingt bei der Besichtigung auf Kreta die angegebene Wohnfläche zu überprüfen, da diese stark von deutschen Angaben abweichen kann (Berechnungs-, Wohnflächenverordnung, DIN-Normen) und Nutzflächen eventuell miteingerechnet wurden (Keller, Technikraum, Balkon, Terrasse etc.).
Bitte beachten Sie auch bei Standortangaben zu Immobilienangeboten auf Kreta, dass dies ungefähre Werte sind.
Der griechische Energieausweis (falls erforderlich) liegt bei der Besichtigung vor.
Zum angegebenen Kaufpreis kommen noch Nebenkosten wie Provision, Grunderwerbsteuer, Notargebühren und Anwaltskosten hinzu. Genaueres finden Sie auf unserer Homepage bei INFOS.
Alle über unser Portal angebotenen Immobilien aus Kreta wurden sorgfältig geprüft und übersetzt. Dennoch können sich Fehler einschleichen, so dass wir keine Gewähr auf Richtigkeit der Angaben übernehmen.
Für alle Fragen rund um das Thema - Kauf einer Immobilie oder Grundstück auf Kreta - stehen wir Ihnen gerne zur Verfügung und können weitere Details im Gespräch klären.
Es gelten unsere AGB, die Sie auf unserer Homepage bei AGB und Widerrufsrecht finden.
Anbieter
Schmidbauer Immobilien Kreta
Herr Oskar Josef Schmidbauer
Kokkino Chorio 1
730 08 Kokkino Chorio
730 08 Kokkino Chorio
Ansprechpartner
Oskar Josef Schmidbauer
Adlerstrasse 2
84100 Niederaichbach
84100 Niederaichbach