Angebot 9891 von 18167

Anbieter kontaktieren

AGB, Datenschutz & Verbraucherhinweis wurden gelesen und akzeptiert.

Balearic Properties Real Estate S.L.

Bild/Logo: Balearic  Properties
Balearic Properties
07460 Pollença
  • Mehr erfahren
bellevue.de-ID: 30601897

Modernes Dorfhaus kaufen in Valldemossa, West-Mallorca

  • Haus
  • · 165 m² Wohnfläche
  • · 12 m² Grundstücksfläche
  • · 960.000 € Kaufpreis
Anbieter kontaktieren

Objektbeschreibung

Diese neu erbaute Doppelhaushälfte in Valldemossa liegt im Herzen des Dorfes und ist Teil einer exklusiven Anlage mit nur drei Häusern. Das Haus fügt sich harmonisch in die ländliche Umgebung ein und bietet einen kultivierten und dennoch ...mehr lesen
Diese neu erbaute Doppelhaushälfte in Valldemossa liegt im Herzen des Dorfes und ist Teil einer exklusiven Anlage mit nur drei Häusern. Das Haus fügt sich harmonisch in die ländliche Umgebung ein und bietet einen kultivierten und dennoch authentischen Lebensstil in einer der begehrtesten Lagen Mallorcas.

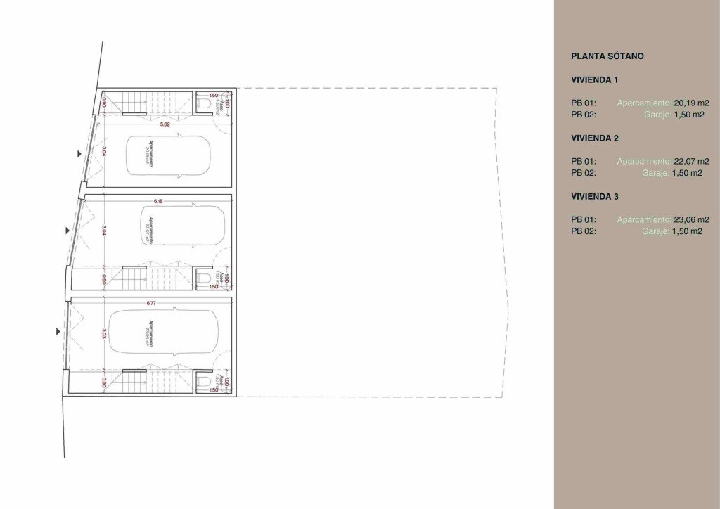
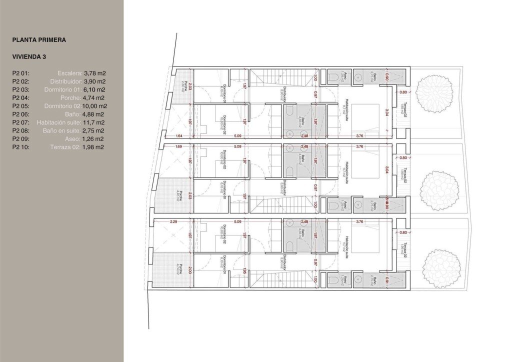
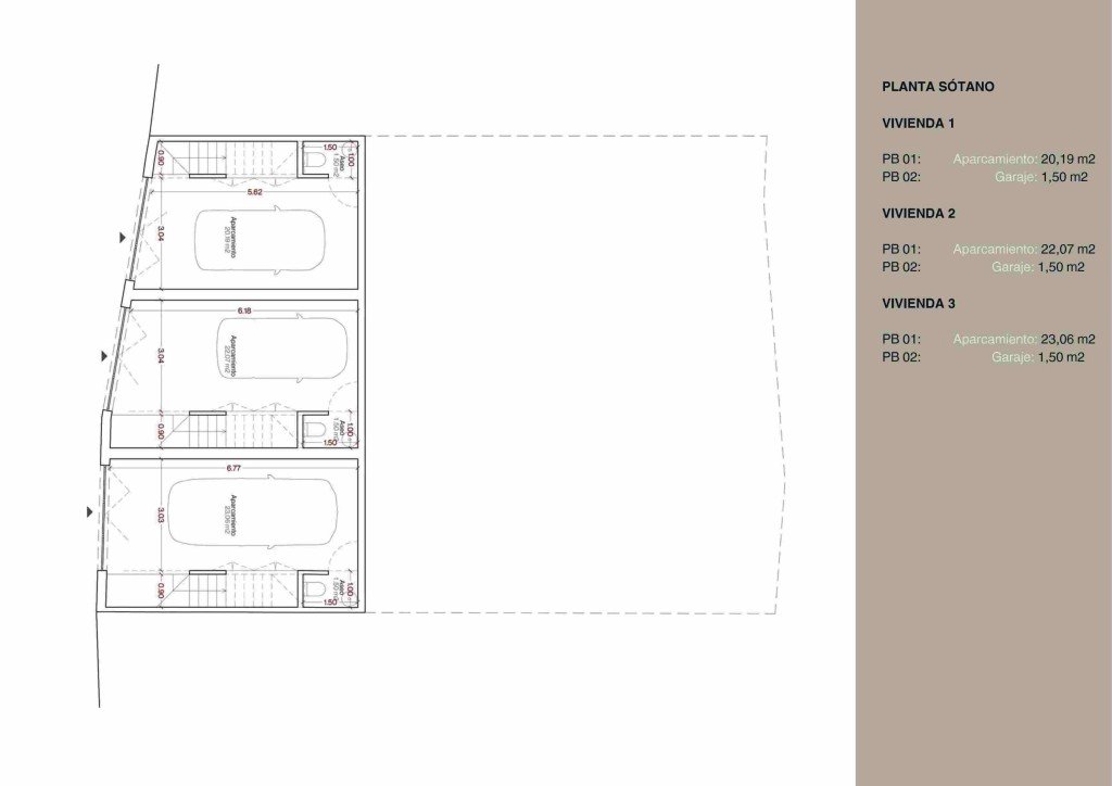
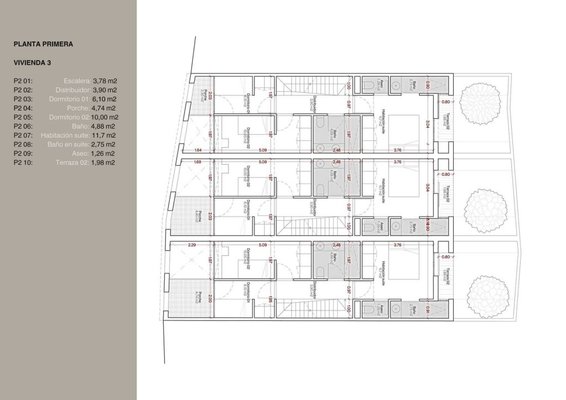
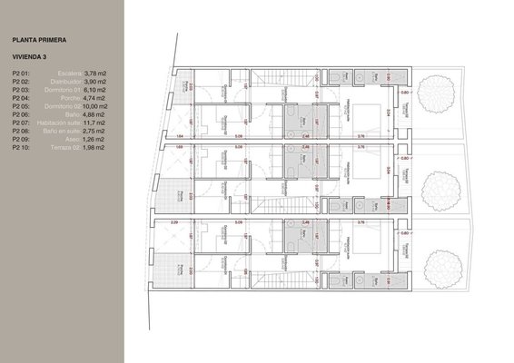
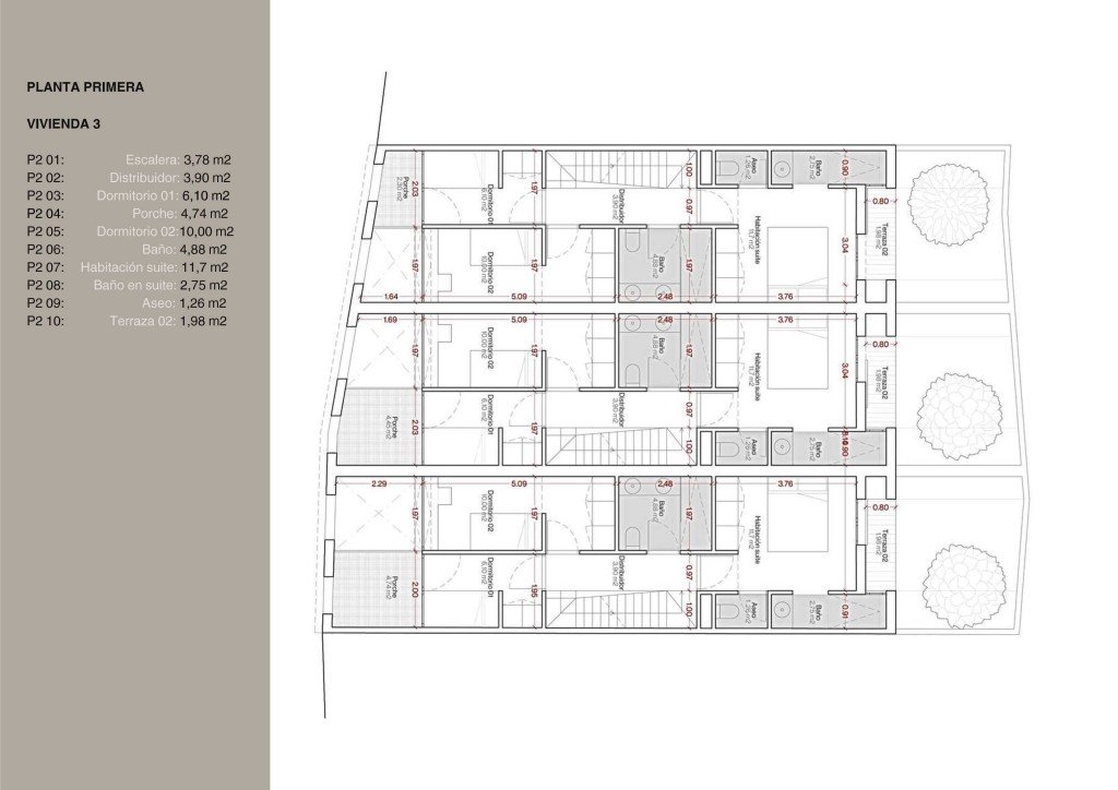
Das dreistöckige Haus verfügt über drei Schlafzimmer, zwei Badezimmer und ein Gäste-WC. Hohe Decken und Natursteinböden schaffen eine warme und einladende Atmosphäre. Eine voll ausgestattete Küche, eine Fußbodenheizung mit Biomasseanlage und eine Klimaanlage sorgen für ganzjährigen Komfort. Zu den weiteren Highlights gehören ein privater Innenpool, ein 12 m² großer Garten und ein Keller mit einer Garage für ein Auto.

Genießen Sie den ruhigen Blick auf das Dorf und die Berge von der südöstlich ausgerichteten Lage wo das Morgenlicht perfekt eingefangen wird. Valldemossa bietet eine einzigartige Mischung aus kulturellem Erbe und natürlicher Schönheit mit gepflasterten Straßen, Kunsthandwerksläden und malerischen Wanderwegen direkt vor der Haustür. Ideal für alle, die einen ruhigen Lebensstil suchen, ohne auf modernen Komfort verzichten zu müssen.

Die Fertigstellung ist für Sommer 2028 geplant. Das Haus verbindet traditionellen Charme mit modernem Komfort und hochwertiger Ausstattung.

Das Dorf Valldemossa liegt 436 Meter über dem Meeresspiegel. Es ist bekannt, weil Frédéric Chopin und seine Geliebte George Sand von Dezember 1838 bis Februar 1839 dort lebten. Die Hauptsehenswürdigkeit von Valldemossa ist die Cartuja, ein Kartäuserkloster.

For additional information contact BALEARIC PROPERTIES ESTATE AGENTS MALLORCA by email or call the Puerto Portals Office (+34) 971 68 40 00 - See more details about other houses for sale in Valldemossa or find out more about buying a home in Valldemossa.

"Balearic Properties has been in business on the Balearic Islands for many, many years. The company headquarters is on Mallorca and over the years, we have built up an unparalleled portfolio of properties to suit every budget, by means of which we have already successfully helped 10.000 clients find their new home on the Balearic Islands. Our project management and construction companies offer a unique range of luxury, turn-key villas to suit all individual and personal needs. We also offer over 200 holiday villas that guarantee our clients an unforgettable holiday experience.

Balearic Properties is the exclusive associate of Savills in Mallorca. The company offers clients a vast experience of over 20 years in the local property market. Our portfolio includes all sorts of modern villas, country homes, and trendy new developments in the best areas of Mallorca. Balearic Properties also specialises in waterfront properties and large estates. The company offers a complete, all-around property service including property management, holiday lettings, project management and legal services."

Immobiliendetails

  • Nutzungsart
    Wohnen
  • Objektart
    Doppelhaushälfte
  • Hauptobjektart
    Haus
  • Vertragsart
    Kauf
  • Objektzustand
    Erstbezug
  • Baujahr
    2028
  • Anzahl Schlafzimmer
    3
  • Anzahl Badezimmer
    2
  • Anzahl separate WC
    1
  • Anzahl Parkflächen
    1
  • Wohnfläche (ca.)
    165 m²
  • Grundstücksfläche (ca.)
    12 m²
  • Nutzfläche (ca.)
    165 m²
  • Anzahl Etagen
    3
  • Ausblick
    Berge
  • Anbieter-Objektnummer
    SWOVAL2691c

Preise & Kosten

  • Courtage
    Keine besondere Angabe.

Ausstattung

  • Klimanalage
  • Swimmingpool
  • Garten

Standort & Lage

07170 Valldemossa · Valldemossa · ESP

Die genaue Anschrift erfahren Sie vom Anbieter

Anbieter

Logo von Balearic Properties Real Estate S.L.
2026 Best Property Agents

Ansprechpartner

Verbraucherhinweis

Widerrufsbelehrung des Anbieters

Gilt nicht für Wohnraummiete in Deutschland

Widerrufsrecht für Verbraucher

Sie haben das Recht, binnen vierzehn Tagen ohne Angabe von Gründen diesen Vertrag zu widerrufen. Die Widerrufsfrist beträgt vierzehn Tage ab dem Tag des Vertragsabschlusses.

Um Ihr Widerrufsrecht auszuüben, müssen Sie uns (Balearic Properties Real Estate S.L., Via Pollentia 3, 07460 Pollença, Fax: 0034-971534506, Tel: 0034-971532984, caroline@balearic-properties.com) mittels einer eindeutigen Erklärung (z. B. ein mit der Post versandter Brief, Telefax oder E-Mail) über Ihren Entschluss, diesen Vertrag zu widerrufen, informieren. Sie können dafür das beigefügte Muster-Widerrufsformular verwenden, das jedoch nicht vorgeschrieben ist. Zur Wahrung der Widerrufsfrist reicht es aus, dass Sie die Mitteilung über die Ausübung des Widerrufsrechts vor Ablauf der Widerrufsfrist absenden.

Folgen des Widerrufs

Wenn Sie diesen Vertrag widerrufen, haben wir Ihnen alle Zahlungen, die wir von Ihnen erhalten haben, einschließlich der Lieferkosten (mit Ausnahme der zusätzlichen Kosten, die sich daraus ergeben, dass Sie eine andere Art der Lieferung als die von uns angebotene, günstigste Standardlieferung gewählt haben), unverzüglich und spätestens binnen vierzehn Tagen ab dem Tag zurückzuzahlen, an dem die Mitteilung über Ihren Widerruf dieses Vertrags bei uns eingegangen ist. Für diese Rückzahlung verwenden wir dasselbe Zahlungsmittel, das Sie bei der ursprünglichen Transaktion eingesetzt haben, es sei denn, mit Ihnen wurde ausdrücklich etwas anderes vereinbart; in keinem Fall werden Ihnen wegen dieser Rückzahlung Entgelte berechnet. Haben Sie verlangt, dass die Dienstleistungen während der Widerrufsfrist beginnen soll, so haben Sie uns einen angemessenen Betrag zu zahlen, der dem Anteil der bis zu dem Zeitpunkt, zu dem Sie uns von der Ausübung des Widerrufsrechts hinsichtlich dieses Vertrags unterrichten, bereits erbrachten Dienstleistungen im Vergleich zum Gesamtumfang der im Vertrag vorgesehenen Dienstleistungen entspricht.

Muster-Widerrufsformular

(Wenn Sie den Vertrag widerrufen wollen, dann füllen Sie dieses Formular aus und senden Sie es zurück.)

An Balearic Properties Real Estate S.L., Via Pollentia 3, 07460 Pollença, Fax: 0034-971534506, caroline@balearic-properties.com
Hiermit widerrufe(n) ich/wir (*) den von mir/uns (*) abgeschlossenen Vertrag über den Kauf der folgenden Waren (*)/die Erbringung der folgenden Dienstleistung (*)


- Bestellt am (*)/erhalten am (*)

- Name des/der Verbraucher(s)

- Anschrift des/der Verbraucher(s)

- Unterschrift des/der Verbraucher(s) (nur bei Mitteilung auf Papier)
- Datum


(*) Unzutreffendes streichen

Hinweis auf die Möglichkeit eines vorzeitigen Erlöschens des Widerrufsrechts

Ihr Widerrufsrecht erlischt, wenn wir unsere Leistung vollständig erbracht haben und mit der Ausführung der Leistung erst begonnen haben, nachdem Sie Ihre ausdrückliche Zustimmung gegeben haben und gleichzeitig Ihre Kenntnis davon bestätigt haben, dass Sie Ihr Widerrufsrecht bei vollständiger Vertragserfüllung durch uns verlieren.

Impressum Balearic Properties Real Estate S.L.
VERTRETUNGSBERECHTIGTE/R
Balearic Properties Team


Via Pollentia 3 3
07460 Pollença
ESP
Tel.: 0034-971532984
E-Mail: caroline@balearic-properties.com
Fax: 0034-971534506
Homepage: http://www.balearic-properties.com

ZUSTÄNDIGE AUFSICHTSBEHÖRDE
Amtsgericht Palma de Mallorca

HANDELSREGISTER-EINTRAG
Amtsgericht Palma de Mallorca, Mallorca 3 Mercantil, 1/2006/6.386,0


UST-ID-NUMMER
CIF: B57416752

ZUSÄTZLICHER TEXT
Verbraucherinformationen Online-Streitbeilegung gemäß Art. 14 Abs. 1 ODR-VO: Die Europäische Kommission stellt eine Plattform zur Online-Streitbeilegung (OS) bereit, die Sie hier finden: http://ec.europa.eu/consumers/odr
Anbieter kontaktieren

AGB, Datenschutz & Verbraucherhinweis wurden gelesen und akzeptiert.