Anbieter kontaktieren
Schmidbauer Immobilien Kreta
Oskar Josef Schmidbauer
84100 Niederaichbach
- Mehr erfahren
bellevue.de-ID: 30601439
Kreta, Ammoudara: Neubau! Villa in einem Komplex bei Agios Nikolaos zu verkaufen
- Haus
- · 4 Zimmer
- · 114 m² Wohnfläche
- · 502 m² Grundstücksfläche
- · 530.000 € Kaufpreis
Objektbeschreibung
Diese freistehende Villa ist Teil eines exklusiven Komplexes mit nur 5 Residenzen und liegt an einem ruhigen Hang im Dorf Ammoudara, nur 5 km von der pulsierenden Stadt Agios Nikolaos und nur 5 Gehminuten vom Sandstrand entfernt.
Die Villa steht auf ...mehr lesen
Die Villa steht auf ...mehr lesen
Diese freistehende Villa ist Teil eines exklusiven Komplexes mit nur 5 Residenzen und liegt an einem ruhigen Hang im Dorf Ammoudara, nur 5 km von der pulsierenden Stadt Agios Nikolaos und nur 5 Gehminuten vom Sandstrand entfernt.
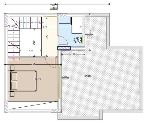
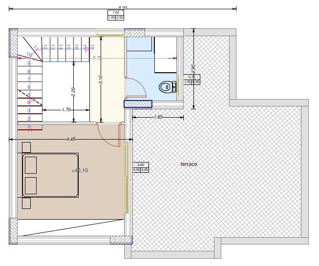
Die Villa steht auf einem 502 m² großen Privatgrundstück und bietet 114 m² Wohnfläche auf 2 Etagen, ergänzt durch einen 44 m² großen Privatparkplatz mit Platz für 2 Autos.
Das Haus verfügt über:
-3 Doppelzimmer
-2 Badezimmer
-Heller offener Wohn-, Ess- und Küchenbereich
-Private Terrasse mit 3×6 m großem Swimmingpool und Loungebereich
-Dachterrasse von 34 m² (Zugang über das Schlafzimmer im Obergeschoss), ideal zum Genießen des Panoramablicks
Der Baubeginn ist für Herbst 2025 geplant, die Fertigstellung ist für Sommer 2027 geplant.
Diese Villa vereint modernes Design, Privatsphäre und die Nähe zum Meer – ein idealer Urlaubsort oder eine Investitionsmöglichkeit in einer der begehrtesten Gegenden Kretas.
Alle 5 Villen eines Komplexes verfügen über 2 Parkplätze und einen Swimmingpool.
Die meisten Wohnbereiche der Villen verfügen über Marmorböden griechischen Ursprungs (nur die Schlafzimmer haben Holzböden (Eiche) oder Fliesen).
Der Villenkomplex besteht aus 5 Residenzen: 2 Maisonetten und 3 einstöckigen Häusern.
Die Villa steht auf einem 502 m² großen Privatgrundstück und bietet 114 m² Wohnfläche auf 2 Etagen, ergänzt durch einen 44 m² großen Privatparkplatz mit Platz für 2 Autos.
Das Haus verfügt über:
-3 Doppelzimmer
-2 Badezimmer
-Heller offener Wohn-, Ess- und Küchenbereich
-Private Terrasse mit 3×6 m großem Swimmingpool und Loungebereich
-Dachterrasse von 34 m² (Zugang über das Schlafzimmer im Obergeschoss), ideal zum Genießen des Panoramablicks
Der Baubeginn ist für Herbst 2025 geplant, die Fertigstellung ist für Sommer 2027 geplant.
Diese Villa vereint modernes Design, Privatsphäre und die Nähe zum Meer – ein idealer Urlaubsort oder eine Investitionsmöglichkeit in einer der begehrtesten Gegenden Kretas.
Alle 5 Villen eines Komplexes verfügen über 2 Parkplätze und einen Swimmingpool.
Die meisten Wohnbereiche der Villen verfügen über Marmorböden griechischen Ursprungs (nur die Schlafzimmer haben Holzböden (Eiche) oder Fliesen).
Der Villenkomplex besteht aus 5 Residenzen: 2 Maisonetten und 3 einstöckigen Häusern.
Immobiliendetails
-
NutzungsartWohnen
-
HauptobjektartHaus
-
VertragsartKauf
-
ObjektzustandErstbezug
-
Baujahr2027
-
Zimmer (gesamt)4
-
Anzahl Schlafzimmer3
-
Anzahl Badezimmer2
-
Wohnfläche (ca.)114 m²
-
Grundstücksfläche (ca.)502 m²
-
Küche1
-
StellplatzartFreiplatz
-
Anzahl Etagen2
-
DachformFlachdach
-
AusblickMeer
-
Anbieter-ObjektnummerS-HAMM13h
Preise & Kosten
-
Courtage2,48 % inklusive der gesetzlichen Mehrwertsteuer
Energie
-
EnergieausweisEnergiebedarfsausweis
-
Baujahr (laut Energieausweis)2027
-
EnergieeffizienzklasseH
-
Ausgestelltohne / nicht vorhanden
Ausstattung
- Klimanalage
- Swimmingpool
- Garten
Standort & Lage
? Ammoudara – Strandnahes Wohngebiet bei Agios Nikolaos (PLZ 721 00)
Ammoudara ist eine kleine Küstensiedlung wenige Kilometer westlich von Agios Nikolaos im Osten Kretas. Nicht zu verwechseln mit dem gleichnamigen Ort bei Heraklion, handelt es sich ...mehr lesen
Ammoudara ist eine kleine Küstensiedlung wenige Kilometer westlich von Agios Nikolaos im Osten Kretas. Nicht zu verwechseln mit dem gleichnamigen Ort bei Heraklion, handelt es sich ...mehr lesen
? Ammoudara – Strandnahes Wohngebiet bei Agios Nikolaos (PLZ 721 00)
Ammoudara ist eine kleine Küstensiedlung wenige Kilometer westlich von Agios Nikolaos im Osten Kretas. Nicht zu verwechseln mit dem gleichnamigen Ort bei Heraklion, handelt es sich hier um einen ruhigen, gepflegten Abschnitt direkt am Meer, der in den letzten Jahren zunehmend an Beliebtheit gewonnen hat – sowohl bei Touristen als auch bei Auswanderern und Ruhesuchenden.
?️ Ortsbild & Charakter
Moderne Wohnsiedlung mit dörflichem Flair: Ammoudara besteht aus einer lockeren Bebauung mit Ferienhäusern, Villen, kleinen Apartmentanlagen und wenigen traditionellen Gebäuden.
Keine klassische Ortschaft: Es gibt kein historisches Dorfzentrum, sondern eine eher funktionale, moderne Struktur – mit dem Fokus auf Wohnen und Erholung nahe dem Meer.
Gepflegte Atmosphäre: Die Straßen sind sauber, viele Gärten liebevoll angelegt. Die Nähe zur Stadt Agios Nikolaos sorgt für gute Erreichbarkeit von Versorgungsangeboten, ohne die Ruhe der Umgebung zu stören.
? Natur & Umgebung
Direkter Zugang zum Strand: Der Strand von Ammoudara ist feinsandig, gepflegt und gut zugänglich – ideal zum Baden, Sonnen und Spazierengehen. Er zählt zu den schönsten Stränden im Stadtgebiet von Agios Nikolaos.
Grüne Umgebung & Weitblick: Die leicht erhöhte Hanglage vieler Häuser bietet Ausblicke auf das Meer oder auf die umliegende Hügellandschaft. Die Vegetation ist mediterran, geprägt von Oleander, Olivenbäumen und Pinien.
Ruhiges Wohngebiet: Kein Massentourismus, keine Hotels in Hochhausform – Ammoudara bleibt angenehm ruhig, auch in der Hauptsaison.
?️ Geschichte & Kultur
Junges Wohngebiet mit gewachsener Umgebung: Ammoudara selbst ist kein historischer Ort, profitiert aber von der Nähe zu Agios Nikolaos, das kulturell, architektonisch und historisch viel zu bieten hat.
Schneller Zugang zu Sehenswürdigkeiten: Archäologische Stätten, Klöster und Museen liegen in der direkten Umgebung – ohne lange Anfahrten.
Multikulturelles Umfeld: Viele internationale Eigentümer und Bewohner haben sich hier angesiedelt, was zu einem offenen und vielfältigen Umfeld beiträgt.
? Gastronomie & Einkauf
Regionale Küche direkt am Strand: In Strandnähe befinden sich einige Tavernen mit guter Küche und Blick aufs Meer – beliebt bei Einheimischen wie Gästen.
Einkaufen in Agios Nikolaos: In wenigen Minuten erreicht man die Stadt mit Supermärkten, Apotheken, Wochenmarkt, Fachgeschäften und Cafés.
Landwirtschaft in der Umgebung: Olivenöl, Wein und Kräuter stammen meist aus der direkten Region rund um Kritsa, Kalo Chorio und Elounda.
? Tipps für Besucher
Perfekt für Badeurlauber: Wer Meer, Sonne und kurze Wege sucht, ist in Ammoudara gut aufgehoben. Die Kombination aus Nähe zur Stadt und ruhiger Strandlage ist selten.
Saisonunabhängige Attraktivität: Durch das milde Klima und die gute Infrastruktur ist der Ort auch außerhalb der Hochsaison attraktiv.
Verkehrsanbindung: Die Hauptstraße zur Südküste und nach Heraklion ist gut erreichbar. Ein Auto ist empfehlenswert, aber nicht zwingend nötig für den Alltag.
? Immobilien & Standortpotenzial
Ammoudara entwickelt sich zunehmend zu einem begehrten Wohn- und Ferienstandort in der Region um Agios Nikolaos. Der Ort bietet Strandnähe, Ruhe und moderne Infrastruktur – ein seltenes Zusammenspiel, das vor allem bei Käufern mit langfristigem Wohninteresse auf positive Resonanz stößt.
Das Immobilienangebot umfasst moderne Einfamilienhäuser, gehobene Villen mit Meerblick, sowie Apartments und Grundstücke mit Entwicklungspotenzial. Die Nachfrage ist stabil, vor allem von Seiten ausländischer Käufer. Die Preise liegen über dem regionalen Durchschnitt, bleiben aber unter denen von Elounda oder Agios Nikolaos-Stadt.
Standortvorteile:
Direkte Strandnähe ohne Massentourismus
Nur wenige Minuten nach Agios Nikolaos
Ruhige Lage mit stabiler Nachfrage
Hohe Lebensqualität, ideal für Dauerwohnsitz oder hochwertige Ferienimmobilie
https://www.youtube.com/watch?v=iwNANz5MDS4
Ammoudara - Lasithi - Kreta - von oben - 4K Drohenvideo
Ammoudara ist eine kleine Küstensiedlung wenige Kilometer westlich von Agios Nikolaos im Osten Kretas. Nicht zu verwechseln mit dem gleichnamigen Ort bei Heraklion, handelt es sich hier um einen ruhigen, gepflegten Abschnitt direkt am Meer, der in den letzten Jahren zunehmend an Beliebtheit gewonnen hat – sowohl bei Touristen als auch bei Auswanderern und Ruhesuchenden.
?️ Ortsbild & Charakter
Moderne Wohnsiedlung mit dörflichem Flair: Ammoudara besteht aus einer lockeren Bebauung mit Ferienhäusern, Villen, kleinen Apartmentanlagen und wenigen traditionellen Gebäuden.
Keine klassische Ortschaft: Es gibt kein historisches Dorfzentrum, sondern eine eher funktionale, moderne Struktur – mit dem Fokus auf Wohnen und Erholung nahe dem Meer.
Gepflegte Atmosphäre: Die Straßen sind sauber, viele Gärten liebevoll angelegt. Die Nähe zur Stadt Agios Nikolaos sorgt für gute Erreichbarkeit von Versorgungsangeboten, ohne die Ruhe der Umgebung zu stören.
? Natur & Umgebung
Direkter Zugang zum Strand: Der Strand von Ammoudara ist feinsandig, gepflegt und gut zugänglich – ideal zum Baden, Sonnen und Spazierengehen. Er zählt zu den schönsten Stränden im Stadtgebiet von Agios Nikolaos.
Grüne Umgebung & Weitblick: Die leicht erhöhte Hanglage vieler Häuser bietet Ausblicke auf das Meer oder auf die umliegende Hügellandschaft. Die Vegetation ist mediterran, geprägt von Oleander, Olivenbäumen und Pinien.
Ruhiges Wohngebiet: Kein Massentourismus, keine Hotels in Hochhausform – Ammoudara bleibt angenehm ruhig, auch in der Hauptsaison.
?️ Geschichte & Kultur
Junges Wohngebiet mit gewachsener Umgebung: Ammoudara selbst ist kein historischer Ort, profitiert aber von der Nähe zu Agios Nikolaos, das kulturell, architektonisch und historisch viel zu bieten hat.
Schneller Zugang zu Sehenswürdigkeiten: Archäologische Stätten, Klöster und Museen liegen in der direkten Umgebung – ohne lange Anfahrten.
Multikulturelles Umfeld: Viele internationale Eigentümer und Bewohner haben sich hier angesiedelt, was zu einem offenen und vielfältigen Umfeld beiträgt.
? Gastronomie & Einkauf
Regionale Küche direkt am Strand: In Strandnähe befinden sich einige Tavernen mit guter Küche und Blick aufs Meer – beliebt bei Einheimischen wie Gästen.
Einkaufen in Agios Nikolaos: In wenigen Minuten erreicht man die Stadt mit Supermärkten, Apotheken, Wochenmarkt, Fachgeschäften und Cafés.
Landwirtschaft in der Umgebung: Olivenöl, Wein und Kräuter stammen meist aus der direkten Region rund um Kritsa, Kalo Chorio und Elounda.
? Tipps für Besucher
Perfekt für Badeurlauber: Wer Meer, Sonne und kurze Wege sucht, ist in Ammoudara gut aufgehoben. Die Kombination aus Nähe zur Stadt und ruhiger Strandlage ist selten.
Saisonunabhängige Attraktivität: Durch das milde Klima und die gute Infrastruktur ist der Ort auch außerhalb der Hochsaison attraktiv.
Verkehrsanbindung: Die Hauptstraße zur Südküste und nach Heraklion ist gut erreichbar. Ein Auto ist empfehlenswert, aber nicht zwingend nötig für den Alltag.
? Immobilien & Standortpotenzial
Ammoudara entwickelt sich zunehmend zu einem begehrten Wohn- und Ferienstandort in der Region um Agios Nikolaos. Der Ort bietet Strandnähe, Ruhe und moderne Infrastruktur – ein seltenes Zusammenspiel, das vor allem bei Käufern mit langfristigem Wohninteresse auf positive Resonanz stößt.
Das Immobilienangebot umfasst moderne Einfamilienhäuser, gehobene Villen mit Meerblick, sowie Apartments und Grundstücke mit Entwicklungspotenzial. Die Nachfrage ist stabil, vor allem von Seiten ausländischer Käufer. Die Preise liegen über dem regionalen Durchschnitt, bleiben aber unter denen von Elounda oder Agios Nikolaos-Stadt.
Standortvorteile:
Direkte Strandnähe ohne Massentourismus
Nur wenige Minuten nach Agios Nikolaos
Ruhige Lage mit stabiler Nachfrage
Hohe Lebensqualität, ideal für Dauerwohnsitz oder hochwertige Ferienimmobilie
https://www.youtube.com/watch?v=iwNANz5MDS4
Ammoudara - Lasithi - Kreta - von oben - 4K Drohenvideo
Sonstiges
Wir sind deutsche Immobilienmakler und haben uns spezialisiert auf Immobilien aus Kreta. Neben der Suche nach geeigneten Immobilien auf Kreta für Sie, gehört auch das Organisieren von Besichtigungsterminen auf Kreta zu unserem Portfolio.
Zu jeder ...mehr lesen
Zu jeder ...mehr lesen
Wir sind deutsche Immobilienmakler und haben uns spezialisiert auf Immobilien aus Kreta. Neben der Suche nach geeigneten Immobilien auf Kreta für Sie, gehört auch das Organisieren von Besichtigungsterminen auf Kreta zu unserem Portfolio.
Zu jeder Phase Ihres Immobilienerwerbs auf Kreta stehen wir Ihnen zur Seite und begleiten Sie vom ersten Gespräch bis über den Notarvertrag hinaus.
Uns sind Ihre Vorstellungen wichtig, wie zum Beispiel die Lage auf Kreta in Verbindung mit Meerblick, Strandnähe, Sandstrand, Steinhaus oder Swimmingpool. Zusätzlich gibt es wichtige Punkte zu beachten wie die Maße der Zimmer einer Immobilie. In Griechenland und somit auch auf Kreta werden die Wände miteingerechnet, also Außenwand zur Außenwand. Im Gegensatz zu deutschen Immobilien, hier wird von Innenwand zur Innenwand gemessen.
Wir empfehlen Ihnen unbedingt bei der Besichtigung auf Kreta die angegebene Wohnfläche zu überprüfen, da diese stark von deutschen Angaben abweichen kann (Berechnungs-, Wohnflächenverordnung, DIN-Normen) und Nutzflächen eventuell miteingerechnet wurden (Keller, Technikraum, Balkon, Terrasse etc.).
Bitte beachten Sie auch bei Standortangaben zu Immobilienangeboten auf Kreta, dass dies ungefähre Werte sind.
Der griechische Energieausweis (falls erforderlich) liegt bei der Besichtigung vor.
Zum angegebenen Kaufpreis kommen noch Nebenkosten wie Provision, Grunderwerbsteuer, Notargebühren und Anwaltskosten hinzu. Genaueres finden Sie auf unserer Homepage bei INFOS.
Alle über unser Portal angebotenen Immobilien aus Kreta wurden sorgfältig geprüft und übersetzt. Dennoch können sich Fehler einschleichen, so dass wir keine Gewähr auf Richtigkeit der Angaben übernehmen.
Für alle Fragen rund um das Thema - Kauf einer Immobilie oder Grundstück auf Kreta - stehen wir Ihnen gerne zur Verfügung und können weitere Details im Gespräch klären.
Es gelten unsere AGB, die Sie auf unserer Homepage bei AGB und Widerrufsrecht finden.
Zu jeder Phase Ihres Immobilienerwerbs auf Kreta stehen wir Ihnen zur Seite und begleiten Sie vom ersten Gespräch bis über den Notarvertrag hinaus.
Uns sind Ihre Vorstellungen wichtig, wie zum Beispiel die Lage auf Kreta in Verbindung mit Meerblick, Strandnähe, Sandstrand, Steinhaus oder Swimmingpool. Zusätzlich gibt es wichtige Punkte zu beachten wie die Maße der Zimmer einer Immobilie. In Griechenland und somit auch auf Kreta werden die Wände miteingerechnet, also Außenwand zur Außenwand. Im Gegensatz zu deutschen Immobilien, hier wird von Innenwand zur Innenwand gemessen.
Wir empfehlen Ihnen unbedingt bei der Besichtigung auf Kreta die angegebene Wohnfläche zu überprüfen, da diese stark von deutschen Angaben abweichen kann (Berechnungs-, Wohnflächenverordnung, DIN-Normen) und Nutzflächen eventuell miteingerechnet wurden (Keller, Technikraum, Balkon, Terrasse etc.).
Bitte beachten Sie auch bei Standortangaben zu Immobilienangeboten auf Kreta, dass dies ungefähre Werte sind.
Der griechische Energieausweis (falls erforderlich) liegt bei der Besichtigung vor.
Zum angegebenen Kaufpreis kommen noch Nebenkosten wie Provision, Grunderwerbsteuer, Notargebühren und Anwaltskosten hinzu. Genaueres finden Sie auf unserer Homepage bei INFOS.
Alle über unser Portal angebotenen Immobilien aus Kreta wurden sorgfältig geprüft und übersetzt. Dennoch können sich Fehler einschleichen, so dass wir keine Gewähr auf Richtigkeit der Angaben übernehmen.
Für alle Fragen rund um das Thema - Kauf einer Immobilie oder Grundstück auf Kreta - stehen wir Ihnen gerne zur Verfügung und können weitere Details im Gespräch klären.
Es gelten unsere AGB, die Sie auf unserer Homepage bei AGB und Widerrufsrecht finden.
Anbieter
Schmidbauer Immobilien Kreta
Herr Oskar Josef Schmidbauer
Kokkino Chorio 1
730 08 Kokkino Chorio
730 08 Kokkino Chorio
Ansprechpartner
Oskar Josef Schmidbauer
Adlerstrasse 2
84100 Niederaichbach
84100 Niederaichbach