Angebot 4730 von 17609

Anbieter kontaktieren

AGB, Datenschutz & Verbraucherhinweis wurden gelesen und akzeptiert.

Balearic Properties Real Estate S.L.

Bild/Logo: Balearic  Properties
Balearic Properties
07460 Pollença
  • Mehr erfahren
bellevue.de-ID: 30601405

Baugrundstück mit Villenprojekt kaufen in Palma, Mallorca

  • Grundstück
  • · 966 m² Grundstücksfläche
  • · 950.000 € Kaufpreis
Anbieter kontaktieren

Objektbeschreibung

Dieses außergewöhnliche Grundstück wird im Herzen von La Vileta, einer der begehrtesten Wohngegenden Palmas, zum Verkauf angeboten. Das hervorragend gelegene, 966 m² große Stadtgrundstück befindet sich nur wenige Minuten vom Stadtzentrum entfernt und ...mehr lesen
Dieses außergewöhnliche Grundstück wird im Herzen von La Vileta, einer der begehrtesten Wohngegenden Palmas, zum Verkauf angeboten. Das hervorragend gelegene, 966 m² große Stadtgrundstück befindet sich nur wenige Minuten vom Stadtzentrum entfernt und ist umgeben von erstklassigen Schulen, Supermärkten, Sportanlagen und öffentlichen Verkehrsmitteln, wodurch es eine seltene Kombination aus Ruhe, Komfort und guter Anbindung bietet.

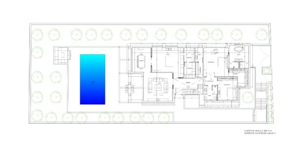
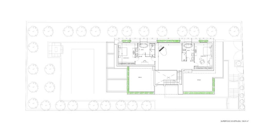
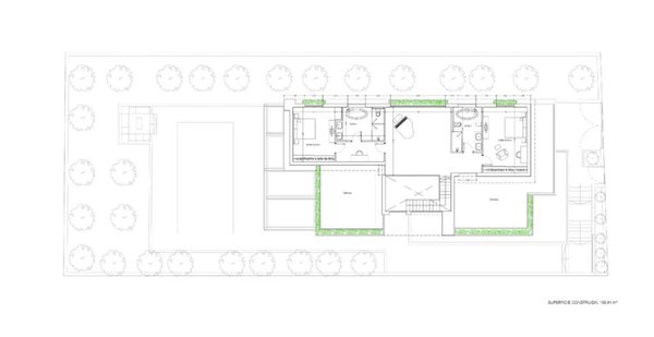
Die Immobilie wird mit einem vollständig genehmigten Grundprojekt für eine moderne freistehende Villa mit einer Fläche von 379 m² verkauft, die sich über zwei Etagen erstreckt und durch einen geräumigen Keller von 240 m² sowie einen privaten Swimmingpool von 50 m² ergänzt wird. Alle Versorgungsleitungen – Strom, Wasser, Abwasser und Glasfaser-Internet – sind direkt an der Grundstücksgrenze verfügbar, sodass ohne Verzögerung mit dem Bau begonnen werden kann.

Das Grundstück befindet sich in einem sich rasch entwickelnden Gebiet, in dem neue Häuser und hochwertige Bauprojekte das Stadtbild prägen. Die Lage garantiert langfristige Stabilität und eine klar definierte Stadtlandschaft.

Ob als Familienwohnsitz oder als sichere Investition – dieses Grundstück bietet eine seltene Gelegenheit, ein modernes Zuhause in einem der vielversprechendsten Stadtteile Palmas zu schaffen.

Palma, die Hauptstadt der Insel, befindet sich in der Bucht des gleichen Namens und bietet ein angenehmes Klima das ganze Jahr (17,9 ° C Temperatur im Durchschnitt jährlich). Die Stadt ist bekannt für ihre eleganten Boutiques und die historische Altstadt. Die Kathedrale, der Palast der Almudaina, der alte Fischmarkt La Lonja und die Plaza Mayor sind einige der Sehenswürdigkeiten, die der Stadt ein mystisches und interessantes Ambiente schenken. Palma verfügt über sehr gute Verkehrsverbindungen und liegt nur 15 Autominuten vom internationalen Flughafen entfernt.

Für weitere Informationen kontaktieren Sie bitte BALEARIC PROPERTIES ESTATE AGENTS MALLORCA per e-Mail oder rufen Sie unser Büro in Puerto Portals an (+34) 971 68 40 00 - Weitere Einzelheiten zu anderen Grundstücken zu kaufen in Palma oder mehr zum Thema Haus kaufen in Palma .

"Balearic Properties ist seit vielen, vielen Jahren auf den Balearen geschäftlich aktiv. Der Hauptsitz des Unternehmens befindet sich auf Mallorca. Im Laufe der Jahre haben wir ein beispielloses Immobilienportfolio passend zu jedem Budget aufgebaut, dadurch haben wir bereits 10.000 Kunden bei der Suche nach ihrem neuen Zuhause auf den Balearen erfolgreich geholfen. Unsere Team für Projektleitung und unser Bauunternehmen bieten eine einmalige Auswahl an schlüsselfertigen Luxusvillen an, angepasst an allen individuellen und persönlichen Bedürfnissen. Wir bieten auch über 200 Ferienvillen an, die unseren Kunden ein unvergessliches Urlaubserlebnis garantieren.

Balearic Properties ist der exklusive Partner von Savills auf Mallorca. Das Unternehmen bietet seinen Kunden eine über 20-jährige Erfahrung auf dem hiesigen Immobilienmarkt. Unser Portfolio umfasst alle Arten von modernen Villen, Landhäusern und trendigen Bauvorhaben in den besten Wohnlagen von Mallorca. Balearic Properties ist auch spezialisiert auf Immobilien am Wasser und große Anwesen. Das Unternehmen bietet einen kompletten, umfassenden Immobilienservice einschließlich Immobilienverwaltung, Ferienvermietung, Projektmanagement und Rechtsberatung."

Immobiliendetails

  • Nutzungsart
    Wohnen
  • Objektart
    RESIDE
  • Hauptobjektart
    Grundstück
  • Vertragsart
    Kauf
  • Grundstücksfläche (ca.)
    966 m²
  • Ausblick
    Berge
  • Anbieter-Objektnummer
    SWOPAL0377

Preise & Kosten

  • Courtage
    Keine besondere Angabe.

Standort & Lage

07011 La Vileta · Palma de Mallorca · ESP

Die genaue Anschrift erfahren Sie vom Anbieter

Anbieter

Logo von Balearic Properties Real Estate S.L.
2025 Best Property Agents

Ansprechpartner

Verbraucherhinweis

Widerrufsbelehrung des Anbieters

Gilt nicht für Wohnraummiete in Deutschland

Widerrufsrecht für Verbraucher

Sie haben das Recht, binnen vierzehn Tagen ohne Angabe von Gründen diesen Vertrag zu widerrufen. Die Widerrufsfrist beträgt vierzehn Tage ab dem Tag des Vertragsabschlusses.

Um Ihr Widerrufsrecht auszuüben, müssen Sie uns (Balearic Properties Real Estate S.L., Via Pollentia 3, 07460 Pollença, Fax: 0034-971534506, Tel: 0034-971532984, caroline@balearic-properties.com) mittels einer eindeutigen Erklärung (z. B. ein mit der Post versandter Brief, Telefax oder E-Mail) über Ihren Entschluss, diesen Vertrag zu widerrufen, informieren. Sie können dafür das beigefügte Muster-Widerrufsformular verwenden, das jedoch nicht vorgeschrieben ist. Zur Wahrung der Widerrufsfrist reicht es aus, dass Sie die Mitteilung über die Ausübung des Widerrufsrechts vor Ablauf der Widerrufsfrist absenden.

Folgen des Widerrufs

Wenn Sie diesen Vertrag widerrufen, haben wir Ihnen alle Zahlungen, die wir von Ihnen erhalten haben, einschließlich der Lieferkosten (mit Ausnahme der zusätzlichen Kosten, die sich daraus ergeben, dass Sie eine andere Art der Lieferung als die von uns angebotene, günstigste Standardlieferung gewählt haben), unverzüglich und spätestens binnen vierzehn Tagen ab dem Tag zurückzuzahlen, an dem die Mitteilung über Ihren Widerruf dieses Vertrags bei uns eingegangen ist. Für diese Rückzahlung verwenden wir dasselbe Zahlungsmittel, das Sie bei der ursprünglichen Transaktion eingesetzt haben, es sei denn, mit Ihnen wurde ausdrücklich etwas anderes vereinbart; in keinem Fall werden Ihnen wegen dieser Rückzahlung Entgelte berechnet. Haben Sie verlangt, dass die Dienstleistungen während der Widerrufsfrist beginnen soll, so haben Sie uns einen angemessenen Betrag zu zahlen, der dem Anteil der bis zu dem Zeitpunkt, zu dem Sie uns von der Ausübung des Widerrufsrechts hinsichtlich dieses Vertrags unterrichten, bereits erbrachten Dienstleistungen im Vergleich zum Gesamtumfang der im Vertrag vorgesehenen Dienstleistungen entspricht.

Muster-Widerrufsformular

(Wenn Sie den Vertrag widerrufen wollen, dann füllen Sie dieses Formular aus und senden Sie es zurück.)

An Balearic Properties Real Estate S.L., Via Pollentia 3, 07460 Pollença, Fax: 0034-971534506, caroline@balearic-properties.com
Hiermit widerrufe(n) ich/wir (*) den von mir/uns (*) abgeschlossenen Vertrag über den Kauf der folgenden Waren (*)/die Erbringung der folgenden Dienstleistung (*)


- Bestellt am (*)/erhalten am (*)

- Name des/der Verbraucher(s)

- Anschrift des/der Verbraucher(s)

- Unterschrift des/der Verbraucher(s) (nur bei Mitteilung auf Papier)
- Datum


(*) Unzutreffendes streichen

Hinweis auf die Möglichkeit eines vorzeitigen Erlöschens des Widerrufsrechts

Ihr Widerrufsrecht erlischt, wenn wir unsere Leistung vollständig erbracht haben und mit der Ausführung der Leistung erst begonnen haben, nachdem Sie Ihre ausdrückliche Zustimmung gegeben haben und gleichzeitig Ihre Kenntnis davon bestätigt haben, dass Sie Ihr Widerrufsrecht bei vollständiger Vertragserfüllung durch uns verlieren.

Impressum Balearic Properties Real Estate S.L.
VERTRETUNGSBERECHTIGTE/R
Balearic Properties Team


Via Pollentia 3 3
07460 Pollença
ESP
Tel.: 0034-971532984
E-Mail: caroline@balearic-properties.com
Fax: 0034-971534506
Homepage: http://www.balearic-properties.com

ZUSTÄNDIGE AUFSICHTSBEHÖRDE
Amtsgericht Palma de Mallorca

HANDELSREGISTER-EINTRAG
Amtsgericht Palma de Mallorca, Mallorca 3 Mercantil, 1/2006/6.386,0


UST-ID-NUMMER
CIF: B57416752

ZUSÄTZLICHER TEXT
Verbraucherinformationen Online-Streitbeilegung gemäß Art. 14 Abs. 1 ODR-VO: Die Europäische Kommission stellt eine Plattform zur Online-Streitbeilegung (OS) bereit, die Sie hier finden: http://ec.europa.eu/consumers/odr
Anbieter kontaktieren

AGB, Datenschutz & Verbraucherhinweis wurden gelesen und akzeptiert.