Angebot 6 von 20

Anbieter kontaktieren

AGB, Datenschutz & Verbraucherhinweis wurden gelesen und akzeptiert.

R.B. Makler GmbH

Ralf Beßler
58840 Plettenberg
  • Mehr erfahren
bellevue.de-ID: 30598561

R.B. Makler: Tradition trifft Vision – Gaststättenkomplex mit Entwicklungspotenzial

  • Gastgewerbe/Hotel
  • · 7 Zimmer
  • · 145.000 € Kaufpreis
Anbieter kontaktieren

Objektbeschreibung

Gaststättenkomplex mit Wohn- und Gästezimmern – vielseitiges Objekt in Finnentrop-Lenhausen

Auf einem ca. 1.001 m² großen Grundstück im idyllischen Ortsteil Lenhausen befindet sich dieser weitläufige Gaststättenkomplex in Massivbauweise. Rund 40 % der ...mehr lesen
Gaststättenkomplex mit Wohn- und Gästezimmern – vielseitiges Objekt in Finnentrop-Lenhausen

Auf einem ca. 1.001 m² großen Grundstück im idyllischen Ortsteil Lenhausen befindet sich dieser weitläufige Gaststättenkomplex in Massivbauweise. Rund 40 % der Fläche sind bebaut, der restliche Bereich ist teils befestigt, teils gärtnerisch gestaltet. Das Grundstück fällt sanft in nordwestlicher Richtung ab.
Die Anlage besteht aus mehreren Bauabschnitten (Baujahre 1964, 1966, 1978) und bietet vielfältige Nutzungsmöglichkeiten – vom Gastronomie- oder Eventbetrieb über Vermietung von Gästezimmern bis hin zum Umbau zu Wohnzwecken.

Ein vielseitiges Objekt mit Geschichte, das durch Sanierung, Umbau oder Umnutzung großes Potenzial für neue Konzepte bietet. Ideal für Gastronomen, Investoren oder Projektentwickler, die eine solide Basis in guter Lage suchen.

Weitere Informationen erhalten Sie gerne auf Anfrage.

Immobiliendetails

  • Nutzungsart
    Wohnen
  • Objektart
    Gastronomie
  • Hauptobjektart
    Gastgewerbe/Hotel
  • Vertragsart
    Kauf
  • Objektzustand
    Renovierungsbedürftig
  • Baujahr
    1964
  • Zimmer (gesamt)
    7
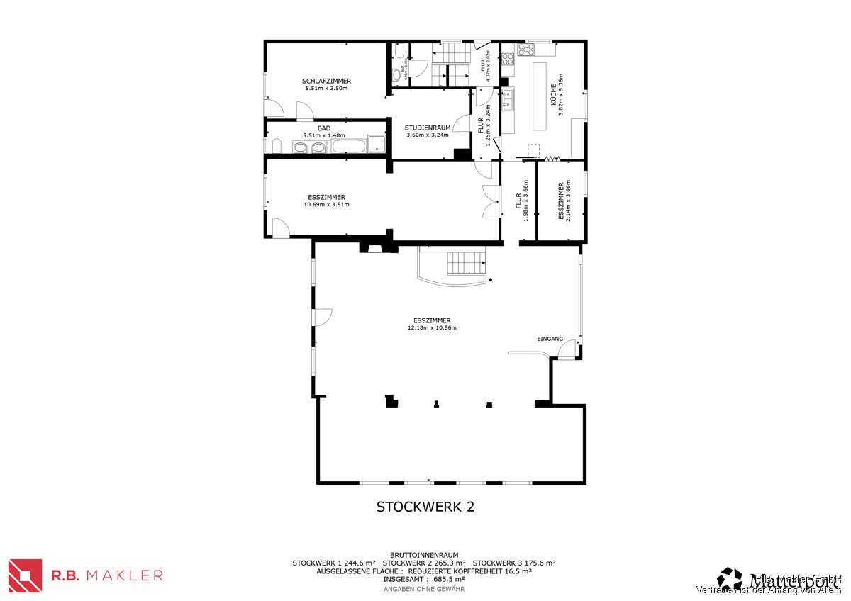
  • Gesamtfläche (ca.)
    443 m²
  • Gastraumfläche (ca.)
    133 m²
  • Anbieter-Objektnummer
    1225

Preise & Kosten

  • Courtage
    4,17 % inklusive der gesetzlichen Mehrwertsteuer

Standort & Lage

Finnentrop - Lenhausen

Lenhausen liegt ca. 4 km vom Ortszentrum Finnentrops entfernt und ist geprägt durch eine ruhige, dörfliche Wohnumgebung mit überwiegend Ein- und Zweifamilienhäusern. Die Gemeinde Finnentrop (ca. 16.000 Einwohner) gilt als ...mehr lesen
Finnentrop - Lenhausen

Lenhausen liegt ca. 4 km vom Ortszentrum Finnentrops entfernt und ist geprägt durch eine ruhige, dörfliche Wohnumgebung mit überwiegend Ein- und Zweifamilienhäusern. Die Gemeinde Finnentrop (ca. 16.000 Einwohner) gilt als Grundzentrum im Kreis Olpe mit guter Infrastruktur und Anbindung.

Der Bodenrichtwert zum 01.01.2025 beträgt 95 €/m² (Allgemeines Wohngebiet).

57413 Finnentrop · DEU

Die genaue Anschrift erfahren Sie vom Anbieter

Sonstiges

HOMEPAGE.

Dies ist eines unserer Angebote in einem Immobilienportal. Alle unsere Angebote finden Sie unter www.rb-makler.de

VIDEOWALLS.

Buchen Sie Ihre Werbung ganz einfach unter www.videowall-plettenberg.de.

Anbieter

Logo von R.B. Makler GmbH
2025 Best Property Agents

Ansprechpartner

Verbraucherhinweis

Widerrufsbelehrung des Anbieters

(Gilt nicht für Wohnraummiete in Deutschland)

Widerrufsrecht für Verbraucher
Sie haben das Recht, binnen vierzehn Tagen ohne Angabe von Gründen diesen Vertrag zu widerrufen. Die Widerrufsfrist beträgt vierzehn Tage ab dem Tag des Vertragsabschlusses.
Um Ihr Widerrufsrecht auszuüben, müssen Sie uns (R. B. Makler GmbH, Freiligrathstraße 26, 58840 Plettenberg, +49239192830, +492391928317, info@rb-makler.de) mittels einer eindeutigen Erklärung (z. B. ein mit der Post versandter Brief, Telefax oder E-Mail) über Ihren Entschluss, diesen Vertrag zu widerrufen, informieren. Sie können dafür das beigefügte Muster-Widerrufsformular verwenden, das jedoch nicht vorgeschrieben ist. Zur Wahrung der Widerrufsfrist reicht es aus, dass Sie die Mitteilung über die Ausübung des Widerrufsrechts vor Ablauf der Widerrufsfrist absenden.

Folgen des Widerrufs
Wenn Sie diesen Vertrag widerrufen, haben wir Ihnen alle Zahlungen, die wir von Ihnen erhalten haben, einschließlich der Lieferkosten (mit Ausnahme der zusätzlichen Kosten, die sich daraus ergeben, dass Sie eine andere Art der Lieferung als die von uns angebotene, günstigste Standardlieferung gewählt haben), unverzüglich und spätestens binnen vierzehn Tagen ab dem Tag zurückzuzahlen, an dem die Mitteilung über Ihren Widerruf dieses Vertrags bei uns eingegangen ist. Für diese Rückzahlung verwenden wir dasselbe Zahlungsmittel, das Sie bei der ursprünglichen Transaktion eingesetzt haben, es sei denn, mit Ihnen wurde ausdrücklich etwas anderes vereinbart; in keinem Fall werden Ihnen wegen dieser Rückzahlung Entgelte berechnet. Haben Sie verlangt, dass die Dienstleistungen während der Widerrufsfrist beginnen soll, so haben Sie uns einen angemessenen Betrag zu zahlen, der dem Anteil der bis zu dem Zeitpunkt, zu dem Sie uns von der Ausübung des Widerrufsrechts hinsichtlich dieses Vertrags unterrichten, bereits erbrachten Dienstleistungen im Vergleich zum Gesamtumfang der im Vertrag vorgesehenen Dienstleistungen entspricht.

Muster-Widerrufsformular
(Wenn Sie den Vertrag widerrufen wollen, dann füllen Sie dieses Formular aus und senden Sie es zurück.)

An R. B. Makler GmbH, Freiligrathstraße 26, 58840 Plettenberg, +49239192830, +492391928317, info@rb-makler.de

Hiermit widerrufe ich/wir den von mir/uns abgeschlossenen Vertrag über den Kauf der folgenden Waren /die Erbringung der folgenden Dienstleistung


Bestellt am /erhalten am

Name des/der Verbraucher(s)

Anschrift des/der Verbraucher(s)

Unterschrift des/der Verbraucher(s) (nur bei Mitteilung auf Papier)

Datum


( Unzutreffendes streichen )


Hinweis auf die Möglichkeit eines vorzeitigen Erlöschens des Widerrufsrechts

Ihr Widerrufsrecht erlischt, wenn wir unsere Leistung vollständig erbracht haben und mit der Ausführung der Leistung erst begonnen haben, nachdem Sie Ihre ausdrückliche Zustimmung gegeben haben und gleichzeitig Ihre Kenntnis davon bestätigt haben, dass Sie Ihr Widerrufsrecht bei vollständiger Vertragserfüllung durch uns verlieren.

Impressum R. B. Makler GmbH
VERTRETUNGSBERECHTIGTE/R
Beßler, Ralf


Freiligrathstraße 26
58840 Plettenberg
DEU
Tel.: +49239192830
E-Mail: info@rb-makler.de
Fax: +492391928317
Homepage: www.rb-makler.de

ZUSTÄNDIGE AUFSICHTSBEHÖRDE
Südwestfälische Industrie- und Handelskammer zu Hagen Bahnhofstraße 18 58095 Hagen Telefon 02331 390-0 Telefax 02331 13586 E-Mail sihk@hagen.ihk.de

HANDELSREGISTER-EINTRAG
Amtsgericht Plettenebrg HRB 30 28
Amtsgericht Plettenberg

UST-ID-NUMMER
DE169985911

ZUSÄTZLICHER TEXT
Registergericht Amtsgericht Plettenberg| HRB 30 28 Sitz: Iserlohn Steuernmmer: 302 5740 0100 USt-IdNr.: DE169985911 ERLAUBNIS §34i - IMMOBILIENDARLEHENSVERMITTLER Registrierungsnummer: D-W-130-H844-28 ERLAUBNIS §34f - FINANZANLAGENVERMITTLER Registrierungsnummer: D-F-130-CT-52-25 ERLAUBNIS §34d - VERSICHERUNGSMAKLER Registrierungsnummer: D-P3KG-YK8H0-58 Erlaubnis nach §34c der Gewerbeordnung erteilt durch das Ordnungsamt der Stadt Plettenberg. Zuständige Aufsichtsbehörde Südwestfälische Industrie- und Handelskammer zu Hagen Bahnhofstraße 18 | 58095 Hagen Telefon: 02331 / 39 00 Telefax: 02331 / 13586 E-Mail: sihk@hagen.ihk.de http://www.hagen.ihk.de Das Vermittlerregister wird geführt bei: Deutscher Industrie- und Handelskammertag (DIHK) e.V. Breite Straße 29, 10178 Berlin Telefon: 0180 600 585 0 (20 Cent/Min. aus dem dt. Festnetz, höchstens 60 Cent/Min. aus Mobilfunknetzen) www.vermittlerregister.info Verbraucherinformation Online-Streitbeilegung gemäß Art. 14 Abs. 1 ODR-VO: Die Europäische Kommission stellt eine Plattform zur Online-Streitbeilegung (OS) bereit, die Sie unter http://ec.europa.eu/consumers/odr/ finden. Inhalt der Internetpräsenz R.B. Makler GmbH übernimmt keinerlei Gewähr für die Aktualität, Korrektheit, Vollständigkeit oder Qualität der bereitgestellten Informationen. Haftungsansprüche gegen R.B. Makler GmbH, welche sich auf Schäden materieller oder ideeller Art beziehen, die durch die Nutzung oder Nichtnutzung der dargebotenen Informationen bzw. durch die Nutzung fehlerhafter und unvollständiger Informationen verursacht wurden, sind grundsätzlich ausgeschlossen, sofern seitens R.B. Makler GmbH kein nachweislich vorsätzliches oder grob fahrlässiges Verschulden vorliegt. Alle Angebote sind freibleibend und unverbindlich. R.B. Makler GmbH behält es sich ausdrücklich vor, Teile der Seiten oder das gesamte Angebot ohne gesonderte Ankündigung zu verändern, zu ergänzen, zu löschen oder die Veröffentlichung zeitweise oder endgültig einzustellen. Hinweis zur Problematik von externen Links R.B. Makler GmbH ist als Inhaltsanbieter für die "eigenen Inhalte", die sie zur Nutzung bereithält, nach den allgemeinen Gesetzen verantwortlich. Von diesen eigenen Inhalten sind Querverweise ("Links") auf die von anderen Anbietern bereitgehaltenen Inhalte zu unterscheiden. Durch den Querverweis hält R.B. Makler GmbH insofern "fremde Inhalte" zur Nutzung bereit, die in dieser Weise gekennzeichnet sind: Bei "Links" handelt es sich stets um "lebende" (dynamische) Verweisungen. R.B. Makler GmbH hat bei der erstmaligen Verknüpfung zwar den fremden Inhalt daraufhin überprüft, ob durch ihn eine mögliche zivilrechtliche oder strafrechtliche Verantwortlichkeit ausgelöst wird. Sie überprüft aber die Inhalte, auf die sie in ihrem Angebot verweist, nicht ständig auf Veränderungen, die eine Verantwortlichkeit neu begründen könnten. Wenn sie feststellt oder von anderen darauf hingewiesen wird, dass ein konkretes Angebot, zu dem sie einen Link bereitgestellt hat, eine zivil- oder strafrechtliche Verantwortlichkeit auslöst, wird sie den Verweis auf dieses Angebot aufheben. Urheber- und Kennzeichenrecht R.B. Makler GmbH bestrebt, in allen Publikationen die Urheberrechte der verwendeten Objekte (Grafiken, Texte, Sound- und Videosequenzen) zu beachten. Alle innerhalb des Internetangebotes genannten und gegebenenfalls durch Dritte geschützten Marken- und Warenzeichen unterliegen uneingeschränkt den Bestimmungen des jeweils gültigen Kennzeichenrechts und den Besitzrechten der jeweiligen eingetragenen Eigentümer. Allein aufgrund der bloßen Nennung ist nicht der Schluss zu ziehen, dass Markenzeichen nicht durch Rechte Dritter geschützt sind. Das Urheber- und Kennzeichenrecht für von R.B. Makler GmbH selbst erstellten Objekte steht ihr ausschließlich selbst zu. Eine Vervielfältigung solcher Grafiken, Sounds oder Texte in anderen
Anbieter kontaktieren

AGB, Datenschutz & Verbraucherhinweis wurden gelesen und akzeptiert.