Angebot 9192 von 16964

Anbieter kontaktieren

AGB, Datenschutz & Verbraucherhinweis wurden gelesen und akzeptiert.

URBANGOODLIVING Immobilien GmbH

Bild/Logo: Michael Urban
Michael Urban
86980 Ingenried
  • Mehr erfahren
bellevue.de-ID: 30598421

Ihr neues Zuhause am Ammersee zwei exklusive Doppelhäuser in Herrsching/Breitbrunn

  • Haus
  • · 24 Zimmer
  • · 592 m² Wohnfläche
  • · 1.520 m² Grundstücksfläche
  • · 5.196.000 € Kaufpreis
Anbieter kontaktieren

Objektbeschreibung









In Herrsching am Ammersee, Ortsteil Breitbrunn, entstehen aktuell zwei exklusive Doppelhäuser, die modernen Wohnkomfort mit hochwertiger Bauweise verbinden. Das Neubauprojekt überzeugt durch zeitgemäße Architektur, energieeffiziente Ausstattung und ...mehr lesen








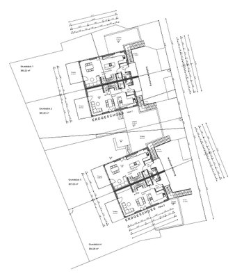
In Herrsching am Ammersee, Ortsteil Breitbrunn, entstehen aktuell zwei exklusive Doppelhäuser, die modernen Wohnkomfort mit hochwertiger Bauweise verbinden. Das Neubauprojekt überzeugt durch zeitgemäße Architektur, energieeffiziente Ausstattung und ein familienfreundliches Umfeld in einer der begehrtesten Regionen rund um den Ammersee. Jede Einheit bietet eine Wohnfläche von ca. 148 m² und verfügt über 5 bis 6 Zimmer, die sich durch ihre durchdachte Raumaufteilung ideal für Familien, Paare mit Platzbedarf oder Menschen eignen, die Wohnen und Arbeiten unter einem Dach kombinieren möchten. Mit einem Grundstücksanteil von ca. 380 m² je Haushälfte ist Raum für einen privaten Garten sowie Terrassenflächen vorhanden. Alle Häuser sind voll unterkellert und bieten so zusätzliche Nutz- und Abstellmöglichkeiten. Im Kaufpreis enthalten sind eine Garage sowie ein zusätzlicher Außenstellplatz.

Die Ausstattung erfüllt höchste Ansprüche an Qualität, Komfort und Nachhaltigkeit. Errichtet wird in Massivbauweise „Stein auf Stein“ mit optimaler Wärmedämmung nach den Vorgaben der EnEV. Eine moderne Luft-Wärmepumpe in Verbindung mit Fußbodenheizung sorgt für effiziente und gleichmäßige Wärme in allen Wohnräumen. Bodentiefe Fenster mit 3-fach-Verglasung lassen viel Tageslicht herein, schaffen eine freundliche Wohnatmosphäre und sind außen in Anthrazit und innen in klassischem Weiß gehalten. Elektrische Rollläden bieten zusätzlichen Komfort. Die Wohn- und Essbereiche sind großzügig gestaltet und öffnen sich zu Terrasse und Garten, wodurch ein fließender Übergang zwischen Innen- und Außenraum entsteht. Ein Kaminzug ist vorbereitet, sodass sich ein Kamin oder Kachelofen problemlos nachrüsten lässt und für zusätzliche Behaglichkeit sorgt.

Besonders hervorzuheben sind die hochwertigen Bäder mit bodengleichen Duschen, Badewannen und modernen Armaturen. Im Preis enthalten sind Fliesen und Sanitärgegenstände im Wert von mehreren tausend Euro, sodass Käufer ihre persönliche Note einbringen können. Auch bei den Bodenbelägen können Käufer zwischen edlem Vinyl, Fliesen oder Parkett wählen im Kaufpreis sind diese bereits berücksichtigt. Durch die sorgfältig geplante Elektroinstallation mit Netzwerkanschlüssen in Wohn- und Schlafräumen, Klingel- und Gegensprechanlage sowie optionaler Vorbereitung für Smart-Home-Lösungen ist das Haus auch technisch auf einem modernen Stand.

Die Außenanlagen werden schlüsselfertig übergeben. Terrassen sind mit hochwertigen Platten in Anthrazit ausgelegt, Zufahrten und Wege werden gepflastert. Jede Haushälfte erhält eine Garage sowie einen zusätzlichen Außenstellplatz, sodass auch Familien mit zwei Fahrzeugen bestens versorgt sind. Die Häuser werden schlüsselfertig übergeben, individuelle Sonderwünsche können während der Bauphase noch berücksichtigt werden.

Mit ca. 5–6 Zimmern, darunter ein großzügiger Wohn- und Essbereich, Schlafzimmer, Kinder- und Arbeitszimmer sowie ein voll unterkellertes Untergeschoss, das auch als Hobby- oder Fitnessraum genutzt werden kann, bieten die Häuser viel Platz und Flexibilität. Zwei Terrassen oder Balkonflächen je nach Haushälfte erweitern den Wohnraum nach draußen.

Die Kombination aus durchdachter Architektur, hochwertiger Ausstattung und einem der begehrtesten Standorte am Ammersee macht diese Doppelhaushälften zu einer wertbeständigen Investition. Neubauten in dieser Lage sind äußerst gefragt und bieten nicht nur ein außergewöhnliches Zuhause, sondern auch eine sichere Kapitalanlage.

Damit erhalten ein modernes, energieeffizientes Zuhause mit hohem Ausstattungsstandard in einer der attraktivsten Wohnregionen Oberbayerns.

Immobiliendetails

  • Nutzungsart
    Wohnen
  • Objektart
    Doppelhaushälfte
  • Hauptobjektart
    Haus
  • Vertragsart
    Kauf
  • Objektzustand
    Erstbezug
  • Baujahr
    2026
  • Zimmer (gesamt)
    24
  • Anzahl Schlafzimmer
    16
  • Anzahl Badezimmer
    4
  • Anzahl separate WC
    4
  • Anzahl Parkflächen
    9
  • Wohnfläche (ca.)
    592 m²
  • Grundstücksfläche (ca.)
    1.520 m²
  • Kellerfläche (ca.)
    216 m²
  • Balkon/Terrasse (ca.)
    56 m²
  • Bad
    Duschbad, Bad mit Dusche und Badewanne, Bad mit Fenster
  • Freier Stellplatz
    4
  • Stellplatzart
    Freiplatz, Garage
  • Garagenstellplätze
    5
  • Ausrichtung
    West
  • Ausstattungskategorie
    Standard
  • Fußboden
    Fliesen, Parkett
  • Anbieter-Objektnummer
    381744

Preise & Kosten

  • Courtage
    3,57 % inklusive der gesetzlichen Mehrwertsteuer

Energie

  • Heizungsart
    Zentralheizung
  • Befeuerungsart
    Luft-/Wasserwärme
  • Ausgestellt
    nicht nötig

Ausstattung

  • Keller


Pro Haushälfte im Überblick


-
Wohnfläche: ca. 150–160 m² (je nach Grundriss)

-
Zimmer: 5–6, inkl. großzügigem Wohn-/Essbereich

-
Grundstücksanteil: ca. 250–300 m² je Haushälfte

-
Baujahr: 2025 (Neubau, Erstbezug)

-
Keller: voll unterkellert, vielfältig ...mehr lesen


Pro Haushälfte im Überblick


-
Wohnfläche: ca. 150–160 m² (je nach Grundriss)

-
Zimmer: 5–6, inkl. großzügigem Wohn-/Essbereich

-
Grundstücksanteil: ca. 250–300 m² je Haushälfte

-
Baujahr: 2025 (Neubau, Erstbezug)

-
Keller: voll unterkellert, vielfältig nutzbar

-
Stellplätze: je Haus eine Garage + zusätzlicher Außenstellplatz

-
Haus vier hat eine Doppelgarage



Ausstattungshighlights


-
Massivbauweise „Stein auf Stein“ mit energetisch optimierter Dämmung nach EnEV

-
Fußbodenheizung in allen Wohnräumen, betrieben durch moderne Luft-Wärmepumpe

-
hochwertige Kunststofffenster mit 3-fach-Verglasung, elektrische Rollläden

-
helle Räume durch bodentiefe Fenster und durchdachte Grundrisse

-
stilvolle Design-Bäder mit bodengleicher Dusche und Badewanne, moderne Fliesen und Sanitäranlagen

-
edle Vinyl- Fliesenböden oder Parkett nach Wahl (im Kaufpreis enthalten)

-
Kaminzug für einen gemütlichen Kaminofen vorbereitet

-
zwei Terrassen oder Balkonflächen – je nach Haushälfte

-
Garage + Außenstellplatz im Preis enthalten

-
Außenanlagen gepflastert, Terrasse mit Platten in Anthrazit


Standort & Lage



Lagebeschreibung Breitbrunn bei Herrsching am Ammersee

Breitbrunn, ein malerischer Ortsteil der Gemeinde Herrsching am Ammersee, gehört zu den begehrtesten Wohnlagen im bayerischen Fünfseenland. Nur wenige Gehminuten vom westlichen Ammerseeufer ...mehr lesen


Lagebeschreibung Breitbrunn bei Herrsching am Ammersee

Breitbrunn, ein malerischer Ortsteil der Gemeinde Herrsching am Ammersee, gehört zu den begehrtesten Wohnlagen im bayerischen Fünfseenland. Nur wenige Gehminuten vom westlichen Ammerseeufer entfernt, vereint dieser charmante Ort naturnahe Ruhe, stilvolle Zurückgezogenheit und eine exzellente Anbindung an die Metropolregion München.

Die Lage ist ideal für Menschen, die das Besondere suchen: Eingebettet in sanfte Hügellandschaften, umgeben von weiten Feldern, alten Baumbeständen und dem funkelnden Wasser des Ammersees, entfaltet sich hier ein einzigartiges Lebensgefühl geprägt von Naturverbundenheit, Exklusivität und bayerischer Lebensart.

Breitbrunn überzeugt nicht nur durch seine unmittelbare Nähe zum See, sondern auch durch die hohe Lebensqualität in der gesamten Region. Herrsching selbst bietet eine ausgezeichnete Infrastruktur mit Einkaufsmöglichkeiten, Cafés, Restaurants, Schulen, Kindergärten und ärztlicher Versorgung. Die S-Bahn-Station in Herrsching ermöglicht eine direkte Anbindung an München, die Innenstadt erreichen Sie in rund 45 Minuten bequem ohne Auto.

Für Freizeitliebhaber eröffnet die Umgebung zahlreiche Möglichkeiten: Segeln, Schwimmen, Radfahren, Wandern oder einfach entspanntes Flanieren entlang der Ammersee-Promenade. Hier ist Erholung keine Auszeit, sondern Teil des Alltags. Im Winter verzaubern verschneite Uferwege und ruhige Wälder, im Sommer laden See und Natur zum Leben im Freien ein.

Breitbrunn bei Herrsching steht für eine stilvolle Form des Landlebens mit der Nähe zur Stadt, dem Luxus der Natur und einer besonderen Gelassenheit, die man nur an wenigen Orten so erleben kann.

82211 Herrsching am Ammersee · Breitbrunn · DEU

Die genaue Anschrift erfahren Sie vom Anbieter

Sonstiges

Dieses Exposé wurde mit Sorgfalt zusammengestellt. Alle darin enthaltenen Angaben über das Objekt und Grundstück beruhen auf Informationen des Verkäufers oder der Verkäuferin. Eine Haftung für deren Richtigkeit und Vollständigkeit können und werden ...mehr lesen
Dieses Exposé wurde mit Sorgfalt zusammengestellt. Alle darin enthaltenen Angaben über das Objekt und Grundstück beruhen auf Informationen des Verkäufers oder der Verkäuferin. Eine Haftung für deren Richtigkeit und Vollständigkeit können und werden wir nicht übernehmen.

Der Makler-Vertrag mit uns und/oder unserem Beauftragten kommt durch schriftliche Vereinbarung oder durch die Inanspruchnahme unserer Maklertätigkeit auf der Basis des Objekt-Exposés und seiner Bedingungen zustande. Die Käufercourtage in Höhe von 3,57 % auf den Kaufpreis einschließlich gesetzlicher Mehrwertsteuer ist bei notariellem Vertragsabschluss verdient und fällig wenn nicht im Exposè anderst ausgeschrieben.

Das gesamte Inventar ist im Kaufpreis nicht enthalten.

Weitere und zusätzliche Informationen zur Immobilie erfahren Sie unter: https://www.urbangoodliving.de/immobilien-angebote

Geldwäsche
Als Immobilienmakler, sind wir nach § 2 Abs. 1 Nr. 14 und § 10 Abs. 3 Geldwäschegesetz (GwG) dazu verpflichtet, bei der Begründung einer Geschäftsbeziehung die Identität des Vertragspartners festzustellen und zu überprüfen. Hierzu ist es erforderlich, dass wir nach § 11 GwG die relevanten Daten Ihres Personalausweises festhalten (wenn Sie als natürliche Person handeln) Bei einer juristischen Person benötigen wir eine Kopie des Handelsregisterauszugs, aus welchem der wirtschaftlich Berechtigte hervorgeht. Das Geldwäschegesetz sieht vor, dass der Makler die Unterlagen fünf Jahre aufbewahren muss.

Rechtlicher Hinweis zu Visualisierungen

Die in diesem Exposé dargestellten Visualisierungen, Bebauungsvorschläge, Volumenstudien oder Projektentwürfe sind unverbindliche Ideendarstellungen. Sie dienen ausschließlich der Illustration möglicher Entwicklungs- und Bebauungsperspektiven und stellen weder eine konkrete Planung noch eine genehmigungsfähige Bebauung dar. Abbildungen von Gebäuden, Baukörpern, Nachbargrundstücken, Umgebungsbebauungen, Sichtachsen oder Geländeverläufen können vereinfacht, schematisch oder abweichend von den tatsächlichen Gegebenheiten dargestellt sein. Verbindlich für Art und Maß der baulichen Nutzung sind ausschließlich die jeweiligen baurechtlichen Vorschriften, Bebauungspläne sowie behördlichen Genehmigungen. Eine Haftung für Genehmigungsfähigkeit oder bauliche Umsetzbarkeit dargestellter Projektideen wird ausdrücklich ausgeschlossen.
 
. Info zum Energieausweis: nicht erforderlich (z. Bsp. Grundstück, Denkmal,…)

Ansprechpartner

Verbraucherhinweis

Widerrufsbelehrung des Anbieters

(Gilt nicht für Wohnraummiete in Deutschland)

Widerrufsrecht für Verbraucher
Sie haben das Recht, binnen vierzehn Tagen ohne Angabe von Gründen diesen Vertrag zu widerrufen. Die Widerrufsfrist beträgt vierzehn Tage ab dem Tag des Vertragsabschlusses.
Um Ihr Widerrufsrecht auszuüben, müssen Sie uns (URBANGOODLIVING Immobilien GmbH, Steingadener Straße 11, 86980 Ingenried, 08868 25 99 877, kontakt@urbangoodliving.de) mittels einer eindeutigen Erklärung (z. B. ein mit der Post versandter Brief, Telefax oder E-Mail) über Ihren Entschluss, diesen Vertrag zu widerrufen, informieren. Sie können dafür das beigefügte Muster-Widerrufsformular verwenden, das jedoch nicht vorgeschrieben ist. Zur Wahrung der Widerrufsfrist reicht es aus, dass Sie die Mitteilung über die Ausübung des Widerrufsrechts vor Ablauf der Widerrufsfrist absenden.

Folgen des Widerrufs
Wenn Sie diesen Vertrag widerrufen, haben wir Ihnen alle Zahlungen, die wir von Ihnen erhalten haben, einschließlich der Lieferkosten (mit Ausnahme der zusätzlichen Kosten, die sich daraus ergeben, dass Sie eine andere Art der Lieferung als die von uns angebotene, günstigste Standardlieferung gewählt haben), unverzüglich und spätestens binnen vierzehn Tagen ab dem Tag zurückzuzahlen, an dem die Mitteilung über Ihren Widerruf dieses Vertrags bei uns eingegangen ist. Für diese Rückzahlung verwenden wir dasselbe Zahlungsmittel, das Sie bei der ursprünglichen Transaktion eingesetzt haben, es sei denn, mit Ihnen wurde ausdrücklich etwas anderes vereinbart; in keinem Fall werden Ihnen wegen dieser Rückzahlung Entgelte berechnet. Haben Sie verlangt, dass die Dienstleistungen während der Widerrufsfrist beginnen soll, so haben Sie uns einen angemessenen Betrag zu zahlen, der dem Anteil der bis zu dem Zeitpunkt, zu dem Sie uns von der Ausübung des Widerrufsrechts hinsichtlich dieses Vertrags unterrichten, bereits erbrachten Dienstleistungen im Vergleich zum Gesamtumfang der im Vertrag vorgesehenen Dienstleistungen entspricht.

Muster-Widerrufsformular
(Wenn Sie den Vertrag widerrufen wollen, dann füllen Sie dieses Formular aus und senden Sie es zurück.)

An URBANGOODLIVING Immobilien GmbH, Steingadener Straße 11, 86980 Ingenried, 08868 25 99 877, kontakt@urbangoodliving.de

Hiermit widerrufe ich/wir den von mir/uns abgeschlossenen Vertrag über den Kauf der folgenden Waren /die Erbringung der folgenden Dienstleistung


Bestellt am /erhalten am

Name des/der Verbraucher(s)

Anschrift des/der Verbraucher(s)

Unterschrift des/der Verbraucher(s) (nur bei Mitteilung auf Papier)

Datum


( Unzutreffendes streichen )


Hinweis auf die Möglichkeit eines vorzeitigen Erlöschens des Widerrufsrechts

Ihr Widerrufsrecht erlischt, wenn wir unsere Leistung vollständig erbracht haben und mit der Ausführung der Leistung erst begonnen haben, nachdem Sie Ihre ausdrückliche Zustimmung gegeben haben und gleichzeitig Ihre Kenntnis davon bestätigt haben, dass Sie Ihr Widerrufsrecht bei vollständiger Vertragserfüllung durch uns verlieren.

Impressum URBANGOODLIVING Immobilien GmbH
VERTRETUNGSBERECHTIGTE/R
Michael Urban


Steingadener Straße 11
86980 Ingenried
DEU
Tel.: 08868 25 99 877
E-Mail: kontakt@urbangoodliving.de
Homepage: https://www.urbangoodliving.de

ZUSTÄNDIGE AUFSICHTSBEHÖRDE
https://www.urbangoodliving.de/impressum Angaben gemäß § 5 TMG ​ URBANGOODLIVING Immobilien GmbH Steingadener Strasse 11 86980 Ingenried Vertreten durch: Michael Urban ​ Kontakt: Telefon: 08868 25 99 877 E-Mail: kontakt @ urbangoodliving.d

HANDELSREGISTER-EINTRAG
HRB 266319


UST-ID-NUMMER
DE343345875
Anbieter kontaktieren

AGB, Datenschutz & Verbraucherhinweis wurden gelesen und akzeptiert.