Angebot 5790 von 17612

Anbieter kontaktieren

AGB, Datenschutz & Verbraucherhinweis wurden gelesen und akzeptiert.

m² Immobilien GmbH

Hans Buchs
42653 Solingen
  • Mehr erfahren
bellevue.de-ID: 30597795

Schönes Einfamilienhaus in begehrter Lage von Solingen mit Ausbaureserve

  • Haus
  • · 3 Zimmer
  • · 100 m² Wohnfläche
  • · 1.061 m² Grundstücksfläche
  • · 539.000 € Kaufpreis
Anbieter kontaktieren

Objektbeschreibung

In einer der begehrtesten Lagen von Solingen-Aufderhöhe erwartet Sie dieses charmante Einfamilienhaus, das im Jahr 1982 in massiver Bauweise inkl. Satteldach erweitert wurde. Alle Räume befinden sich auf einer Ebene, und die L-förmige Architektur ...mehr lesen
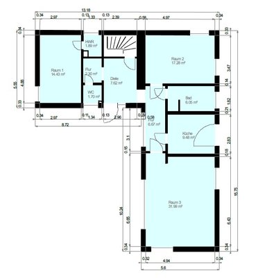
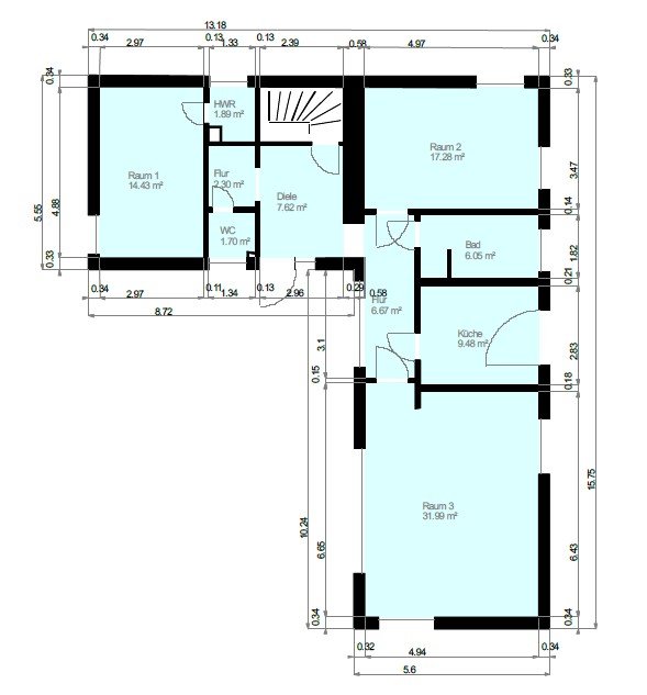
In einer der begehrtesten Lagen von Solingen-Aufderhöhe erwartet Sie dieses charmante Einfamilienhaus, das im Jahr 1982 in massiver Bauweise inkl. Satteldach erweitert wurde. Alle Räume befinden sich auf einer Ebene, und die L-förmige Architektur sorgt für eine besonders durchdachte und funktionale Raumaufteilung.

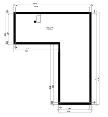
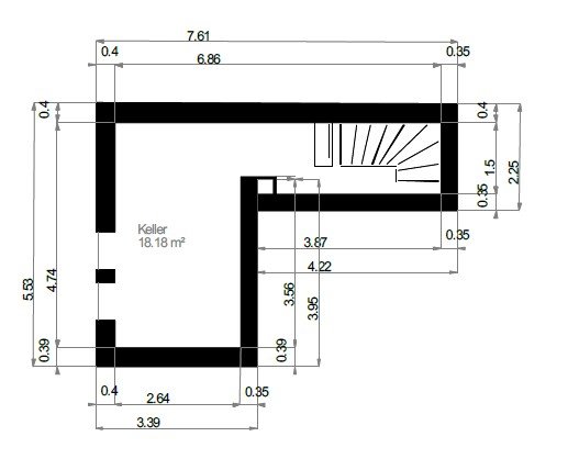
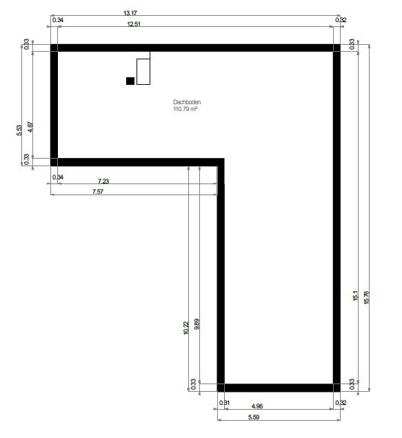
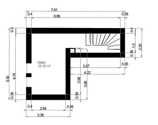
Mit einer Wohnfläche von ca. 100 m² bietet das Haus ausreichend Platz für eine Familie mit Kind. Sollte Ihnen die Wohnfläche zu gering sein, können Sie das Haus im Erdgeschoss erweitern oder die Ausbaureserve im Dachgeschoss umsetzen. Durch den Einbau von Dachgauben und zusätzlichen Dachflächenfenstern lassen sich hier weitere Wohnräume schaffen, sodass auch eine 4- bis 5-köpfige Familie ausreichend Platz findet. Das Potenzial für zusätzlichen Wohnraum im Dachgeschoss liegt bei ca. 50–70 m² und bietet eine hervorragende Möglichkeit, den Wert der Immobilie zu steigern. Welche Erweiterungsmöglichkeiten im Erdgeschoss möglich sind, müsste mit dem Bauamt abgestimmt werden. Aber auch hier sind sicher 40-60 m², wenn nicht sogar mehr, möglich.

Das großzügige Grundstück von ca. 1.061 m² bietet zudem eine herrliche Terrasse von ca. 40 m² und genügend Freiraum für Gartenliebhaber oder Familien mit Kindern. Drei Außenstellplätze sowie eine Garage sorgen für komfortables Parken.

Haben wir Ihr Interesse geweckt? Kontaktieren Sie uns gerne für weitere Informationen oder eine Besichtigung!

Immobiliendetails

  • Nutzungsart
    Wohnen
  • Objektart
    Einfamilienhaus
  • Hauptobjektart
    Haus
  • Vertragsart
    Kauf
  • Objektzustand
    Gepflegt
  • Baujahr
    1982
  • Zimmer (gesamt)
    3
  • Anzahl Schlafzimmer
    2
  • Anzahl Badezimmer
    1
  • Anzahl separate WC
    1
  • Wohneinheiten
    1
  • Anzahl Parkflächen
    4
  • Wohnfläche (ca.)
    100 m²
  • Grundstücksfläche (ca.)
    1.061 m²
  • Nutzfläche (ca.)
    30 m²
  • Balkon/Terrasse (ca.)
    40 m²
  • Freier Stellplatz
    3
  • Garagenstellplätze
    1
  • Ausstattungskategorie
    Standard
  • Anbieter-Objektnummer
    4962

Preise & Kosten

  • Courtage
    2,98 % inklusive der gesetzlichen Mehrwertsteuer

Energie

  • Heizungsart
    Zentralheizung
  • Befeuerungsart
    Gas

Standort & Lage

Das Haus befindet sich in einer ruhigen und sehr begehrten Wohnlage von Solingen-Aufderhöhe. Einkaufsmöglichkeiten, Ärzte, Apotheken und öffentliche Verkehrsmittel sind bequem zu Fuß erreichbar. Familien profitieren von der Nähe zu Kindergärten (ca. ...mehr lesen
Das Haus befindet sich in einer ruhigen und sehr begehrten Wohnlage von Solingen-Aufderhöhe. Einkaufsmöglichkeiten, Ärzte, Apotheken und öffentliche Verkehrsmittel sind bequem zu Fuß erreichbar. Familien profitieren von der Nähe zu Kindergärten (ca. 500 m) sowie Grund- und weiterführenden Schulen.

Dank der guten Anbindung an die Autobahn A3 und den Ohligser Hauptbahnhof eignet sich die Immobilie ideal für Berufspendler, die in Köln oder Düsseldorf arbeiten. Zudem bietet die Umgebung zahlreiche Möglichkeiten zur Freizeitgestaltung – sei es durch Spaziergänge in der Natur, sportliche Aktivitäten oder Ausflüge ins Bergische Land.

42699 Solingen · Nordrhein-Westfalen · DEU

Die genaue Anschrift erfahren Sie vom Anbieter

Verbraucherhinweis

Widerrufsbelehrung des Anbieters


Widerrufsrecht
Sie können Ihre Vertragserklärung (Besichtigung und Beratung bezüglich der Immobilie) innerhalb von 14 Tagen ohne Angabe von Gründen in Textform (z.B. Brief, Fax, Email) widerrufen. Die Frist beginnt nach Erhalt dieser Belehrung in Textform, jedoch nicht vor Vertragsschluss (Ihre Anfrage per Email, Brief oder Telefon) und auch nicht vor der Erfüllung unserer Informationspflichten gemäß Artikel 246 § 2 in Verbindung mit § 1 Abs. 1 und 2 EGBGB sowie unserer Pflichten gemäß § 312 g Abs. 1 Satz 1 BGB in Verbindung mit Artikel 246 § 3 EGBGB. Zur Wahrung der Widerrufsfrist genügt die rechtzeitige Absendung des Widerrufs. Der Widerruf ist zu richten an:
m² Immobilien GmbH, Gräfrather Markt 4, 42653 Solingen, Email: info@m-quadrat-immobilien.de, www.m-quadrat-immobilien.de

Widerrufsfolgen
Im Falle eines wirksamen Widerrufs (keine Besichtigung oder Beratung bezüglich des Objektes gewünscht) sind die beiderseits empfangenen Leistungen zurückzugewähren und ggf. gezogene Nutzungen (z.B. Exposés) herauszugeben. Können Sie uns die empfangene Leistung ganz oder teilweise nicht oder nur in verschlechtertem Zustand zurückgewähren, müssen Sie uns insoweit ggf. Wertersatz leisten. Dies kann dazu führen, dass Sie die vertraglichen Zahlungsverpflichtungen für den Zeitraum bis zum Widerruf gleichwohl erfüllen müssen. Verpflichtungen zur Erstattung von Zahlungen müssen innerhalb von 30 Tagen erfüllt werden. Die Frist beginnt für Sie mit der Absendung Ihrer Widerrufserklärung, für uns mit deren Empfang.

Besondere Hinweise
Ihr Widerrufsrecht (bezüglich Beratung und Besichtigung) erlischt vorzeitig, wenn der Vertrag (Ihr Wunsch zur Besichtigung und Beratung) von beiden Seiten auf Ihren ausdrücklichen Wunsch vollständig erfüllt ist, bevor Sie Ihr Widerrufsrecht ausgeübt haben.

Besondere Vereinbarungen
Ich,(Name des Kunden) erkläre mich damit einverstanden, dass m² Immobilien, bereits vor Ablauf der 14-tägigen Frist mit der Erfüllung des Vertrages (Exposézusendung, Besichtigungs- und Beratungstermine) beginnen kann.
Bei Widerruf des Vertrages nach Kauf/Miete einer Immobilie ist Wertersatz in Höhe der vollen Provision zu leisten.

Impressum m² Immobilien GmbH
VERTRETUNGSBERECHTIGTE/R
Hans Buchs


Gräfrather Markt 4
42653 Solingen
DEU
Tel.: 0212/2543616
E-Mail: info@m-quadrat-immobilien.de
Fax: 0212/2543617
Homepage: https://www.m-quadrat-immobilien.de

ZUSTÄNDIGE AUFSICHTSBEHÖRDE
Ordnungsamt Solingen, Gasstraße 22, 42651 Solingen

HANDELSREGISTER-EINTRAG
Amtsgericht Wuppertal, HRB 15799


UST-ID-NUMMER
DE 134 557 39

ZUSÄTZLICHER TEXT
Verbraucherinformationen Online-Streitbeilegung gemäß Art. 14 Abs. 1 ODR-VO: Die Europäische Kommission stellt eine Plattform zur Online-Streitbeilegung (OS) bereit, die Sie hier finden: http://ec.europa.eu/consumers/odr
Anbieter kontaktieren

AGB, Datenschutz & Verbraucherhinweis wurden gelesen und akzeptiert.