Anbieter kontaktieren
HausHirsch GmbH
Stefan Zielinski
- Mehr erfahren
bellevue.de-ID: 30596937
Grundstück mit Panoramablick und bezugsfertigem Haus
- Grundstück
- · 31.972 m² Grundstücksfläche
- · 2.950.000 € Kaufpreis
Objektbeschreibung
Eine einmalige Gelegenheit
Diese Immobilie verfügt über eine Baugenehmigung für einen Swimmingpool, die nach aktueller Gesetzeslage nie wieder für ein Einfamilienhaus auf rustikalem Land erteilt wird.
Daher stellt diese Genehmigung einen ...mehr lesen
Diese Immobilie verfügt über eine Baugenehmigung für einen Swimmingpool, die nach aktueller Gesetzeslage nie wieder für ein Einfamilienhaus auf rustikalem Land erteilt wird.
Daher stellt diese Genehmigung einen ...mehr lesen
Eine einmalige Gelegenheit
Diese Immobilie verfügt über eine Baugenehmigung für einen Swimmingpool, die nach aktueller Gesetzeslage nie wieder für ein Einfamilienhaus auf rustikalem Land erteilt wird.
Daher stellt diese Genehmigung einen außergewöhnlichen Wert dar – sowohl für den privaten Gebrauch als auch als Investition.
Das Grundstück kann mit bereits genehmigtem Bauprojekt oder als schlüsselfertiges Haus erworben werden.
Die wichtigsten Vorteile:
•✅ Genehmigter Pool mit einzigartigem Design, großflächig und organisch geformt.
•✅ Bereits installierter Strom- und Wasseranschluss – eine echte Rarität in rustikaler Lage.
•✅ Bevorzugte Lage, nur wenige Minuten vom Ortskern Manacor entfernt, auf einem erhöhten Grundstück mit Panoramablick auf die mallorquinische Landschaft.
•✅ Zwei bequeme Zufahrten von verschiedenen Straßen – für mehr Privatsphäre und einfache Logistik.
•✅ Intelligente Architektur:
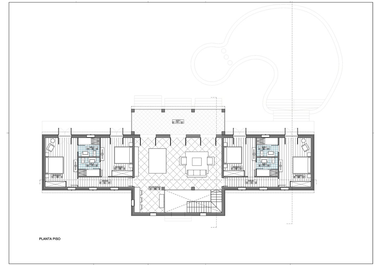
Das Haus gliedert sich in ein zentrales Hauptelement und zwei Seitenflügel.
Im rechten Flügel befindet sich der Spa-Bereich mit direktem Zugang zum Pool, wie in den virtuellen Animationen zu sehen ist.
Der Rafa-Nadal-Effekt: Manacor auf dem internationalen Radar
Die Präsenz der Rafa Nadal Academy, einer weltweit anerkannten internationalen Eliteschule, hat die Transformation Manacors maßgeblich beeinflusst.
Dank dieser hochkarätigen Institution für Sport, Bildung und Exzellenz hat sich Manacor vom traditionellen Binnenort zu einem Anziehungspunkt für ausländische Familien, Sportler, Investoren und Käufer entwickelt, die Lebensqualität und internationale Anbindung suchen – ohne auf mallorquinische Authentizität zu verzichten.
Der zunehmende Zuspruch erklärt sich durch mehrere ergänzende Faktoren:
Mallorquinische Authentizität
Manacor bewahrt seinen traditionellen und ländlichen Charakter. Im Gegensatz zu überfüllten Touristenorten bietet es Ruhe, typische mallorquinische Architektur, große Grundstücke und ein naturverbundenes Lebensgefühl. Dieses Gleichgewicht aus Privatsphäre, Landschaft und Ursprünglichkeit wird immer gefragter.
Strategische Lage
Im Zentrum des Ostens der Insel gelegen, ist Manacor nur 30–40 Minuten vom Flughafen Palma entfernt.
Es bietet schnellen Zugang zu einigen der schönsten Strände Mallorcas – etwa Cala Varques, Cala Romántica oder Cala Magraner – und eine direkte Zugverbindung nach Palma. Diese Kombination aus Nähe und Ruhe ist besonders attraktiv für Familien und Berufstätige.
Infrastruktur & Versorgung
Manacor bietet im Vergleich zu anderen ländlichen Gemeinden eine hervorragende Infrastruktur: Kreiskrankenhaus, Bahnhof, Supermärkte, Sportzentren, Einzelhandel und Gastronomie.
Die Rafa Nadal Academy hat zudem einen Zustrom internationaler Familien ausgelöst und damit die Nachfrage nach hochwertigen Dienstleistungen, internationalen Schulen und gehobenem Wohnraum erhöht.
Attraktives Preis-Leistungs-Verhältnis
Die Grundstücks- und Immobilienpreise in Manacor sind weiterhin deutlich günstiger als in anderen Regionen der Insel – insbesondere im Vergleich zum Südwesten oder den überlaufenen Küstenorten.
Dies ermöglicht größere Grundstücke, mehr Wohnfläche, bessere Aussichten – zu einem deutlich günstigeren Preis. Ein Gebiet mit starkem Wertsteigerungspotenzial.
Wohnen, Arbeiten und Wohlbefinden
Viele internationale Käufer wählen Manacor nicht nur als Ferienort, sondern als dauerhaften Wohnsitz oder Standort für das Arbeiten im Homeoffice.
Die Umgebung eignet sich hervorragend für Projekte im Bereich Wellness, Natur, Design, nachhaltige Architektur oder auch ökologische Landwirtschaft.
Mit seiner ruhigen, sonnigen und naturnahen Atmosphäre zählt Manacor zu den beliebtesten Regionen für ein ausgewogenes, gesundes Leben im Einklang mit dem Wesentlichen.
Diese Immobilie verfügt über eine Baugenehmigung für einen Swimmingpool, die nach aktueller Gesetzeslage nie wieder für ein Einfamilienhaus auf rustikalem Land erteilt wird.
Daher stellt diese Genehmigung einen außergewöhnlichen Wert dar – sowohl für den privaten Gebrauch als auch als Investition.
Das Grundstück kann mit bereits genehmigtem Bauprojekt oder als schlüsselfertiges Haus erworben werden.
Die wichtigsten Vorteile:
•✅ Genehmigter Pool mit einzigartigem Design, großflächig und organisch geformt.
•✅ Bereits installierter Strom- und Wasseranschluss – eine echte Rarität in rustikaler Lage.
•✅ Bevorzugte Lage, nur wenige Minuten vom Ortskern Manacor entfernt, auf einem erhöhten Grundstück mit Panoramablick auf die mallorquinische Landschaft.
•✅ Zwei bequeme Zufahrten von verschiedenen Straßen – für mehr Privatsphäre und einfache Logistik.
•✅ Intelligente Architektur:
Das Haus gliedert sich in ein zentrales Hauptelement und zwei Seitenflügel.
Im rechten Flügel befindet sich der Spa-Bereich mit direktem Zugang zum Pool, wie in den virtuellen Animationen zu sehen ist.
Der Rafa-Nadal-Effekt: Manacor auf dem internationalen Radar
Die Präsenz der Rafa Nadal Academy, einer weltweit anerkannten internationalen Eliteschule, hat die Transformation Manacors maßgeblich beeinflusst.
Dank dieser hochkarätigen Institution für Sport, Bildung und Exzellenz hat sich Manacor vom traditionellen Binnenort zu einem Anziehungspunkt für ausländische Familien, Sportler, Investoren und Käufer entwickelt, die Lebensqualität und internationale Anbindung suchen – ohne auf mallorquinische Authentizität zu verzichten.
Der zunehmende Zuspruch erklärt sich durch mehrere ergänzende Faktoren:
Mallorquinische Authentizität
Manacor bewahrt seinen traditionellen und ländlichen Charakter. Im Gegensatz zu überfüllten Touristenorten bietet es Ruhe, typische mallorquinische Architektur, große Grundstücke und ein naturverbundenes Lebensgefühl. Dieses Gleichgewicht aus Privatsphäre, Landschaft und Ursprünglichkeit wird immer gefragter.
Strategische Lage
Im Zentrum des Ostens der Insel gelegen, ist Manacor nur 30–40 Minuten vom Flughafen Palma entfernt.
Es bietet schnellen Zugang zu einigen der schönsten Strände Mallorcas – etwa Cala Varques, Cala Romántica oder Cala Magraner – und eine direkte Zugverbindung nach Palma. Diese Kombination aus Nähe und Ruhe ist besonders attraktiv für Familien und Berufstätige.
Infrastruktur & Versorgung
Manacor bietet im Vergleich zu anderen ländlichen Gemeinden eine hervorragende Infrastruktur: Kreiskrankenhaus, Bahnhof, Supermärkte, Sportzentren, Einzelhandel und Gastronomie.
Die Rafa Nadal Academy hat zudem einen Zustrom internationaler Familien ausgelöst und damit die Nachfrage nach hochwertigen Dienstleistungen, internationalen Schulen und gehobenem Wohnraum erhöht.
Attraktives Preis-Leistungs-Verhältnis
Die Grundstücks- und Immobilienpreise in Manacor sind weiterhin deutlich günstiger als in anderen Regionen der Insel – insbesondere im Vergleich zum Südwesten oder den überlaufenen Küstenorten.
Dies ermöglicht größere Grundstücke, mehr Wohnfläche, bessere Aussichten – zu einem deutlich günstigeren Preis. Ein Gebiet mit starkem Wertsteigerungspotenzial.
Wohnen, Arbeiten und Wohlbefinden
Viele internationale Käufer wählen Manacor nicht nur als Ferienort, sondern als dauerhaften Wohnsitz oder Standort für das Arbeiten im Homeoffice.
Die Umgebung eignet sich hervorragend für Projekte im Bereich Wellness, Natur, Design, nachhaltige Architektur oder auch ökologische Landwirtschaft.
Mit seiner ruhigen, sonnigen und naturnahen Atmosphäre zählt Manacor zu den beliebtesten Regionen für ein ausgewogenes, gesundes Leben im Einklang mit dem Wesentlichen.
Immobiliendetails
-
NutzungsartWohnen
-
ObjektartWohngrundstück
-
HauptobjektartGrundstück
-
VertragsartKauf
-
Wohnfläche (ca.)490 m²
-
Grundstücksfläche (ca.)31.972 m²
-
Nutzfläche (ca.)552 m²
-
Anbieter-ObjektnummerHM25111347
Preise & Kosten
-
Kaufpreis pro m²92,27 €
-
CourtageKeine besondere Angabe.
Energie
-
GebäudeartWohngebäude
-
Ausgestelltnicht nötig
Standort & Lage
Videos
Anbieter
HausHirsch GmbH
Herr Marius Wolf
Dreischeibenhaus
40211 Düsseldorf
40211 Düsseldorf