Angebot 8692 von 16376

Anbieter kontaktieren

AGB, Datenschutz & Verbraucherhinweis wurden gelesen und akzeptiert.

Die Grünen Makler GbR - Dr. Kaplan & Kaplan

Dr. Paul Kaplan
40597 Düsseldorf
  • Mehr erfahren
bellevue.de-ID: 30596829

Moderne Architektenvilla in exklusiver Lage

  • Haus
  • · 9 Zimmer
  • · 465 m² Wohnfläche
  • · 820 m² Grundstücksfläche
  • · 4.000.000 € Kaufpreis
Anbieter kontaktieren

Objektbeschreibung

EXKLUSIVE VILLA MIT PRIVATSPHÄRE UND RUHE
Das ca. 820 m² große Grundstück überzeugt mit optimaler Südwest-Ausrichtung und bietet Raum für eine hochwertige Gartengestaltung mit viel Privatsphäre. Dank der diskreten Zufahrt über eine private Stichstraße
...mehr lesen
EXKLUSIVE VILLA MIT PRIVATSPHÄRE UND RUHE
Das ca. 820 m² große Grundstück überzeugt mit optimaler Südwest-Ausrichtung und bietet Raum für eine hochwertige Gartengestaltung mit viel Privatsphäre. Dank der diskreten Zufahrt über eine private Stichstraße und der ruhigen Sackgassenlage ohne Durchgangsverkehr genießen Sie hier maximale Sicherheit und Abgeschiedenheit – in direkter Nähe zu Wasser, Rheinauen und der Erft. Das Grundstück liegt zudem auch bei einem Jahrtausendhochwasser sicher in trockener Lage und vereint Naturverbundenheit mit alltagstauglicher Sicherheit.

ARCHITEKTUR MIT CHARAKTER UND WEITBLICK
Die geplante Villa ist Teil eines eleganten Ensembles aus zwei Schwestervillen, das exklusives Wohnen in bester Nachbarschaft ermöglicht. Sie stellen ein architektonisch harmonisch aufeinander abgestimmtes Doppelstück des renommierten Architekturbüros Avantecture dar. Während eine Villa vom Verkäufer selbst bewohnt wird, steht das Pendant einmalig zum Verkauf. 

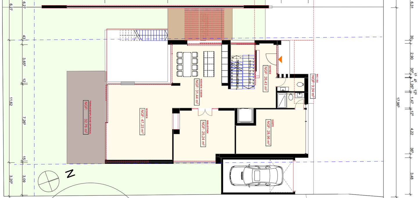
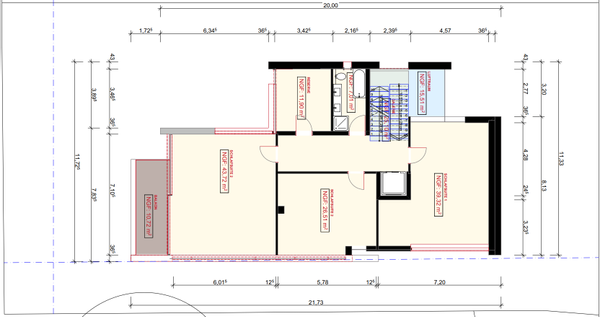
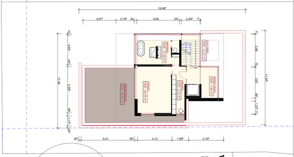
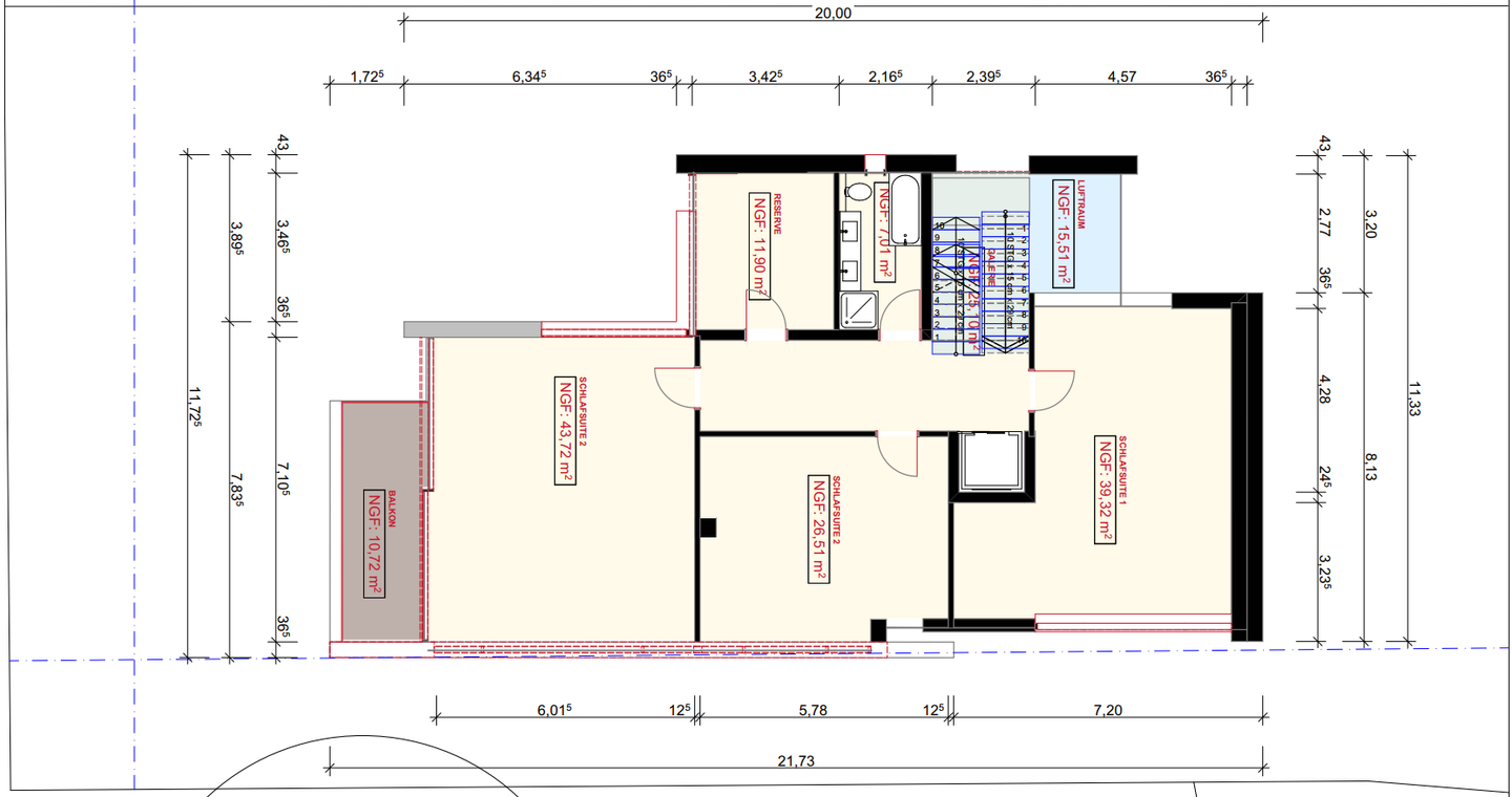
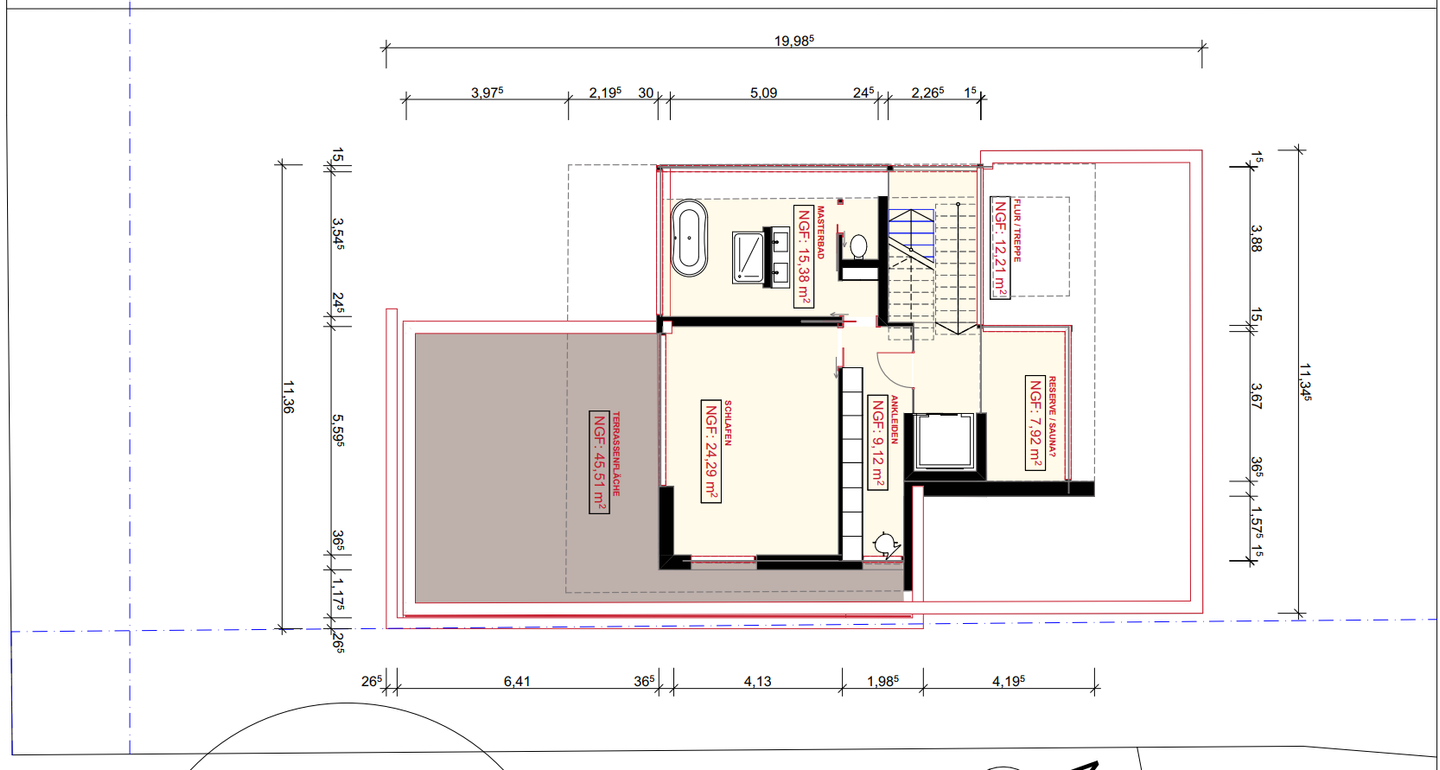
Auf rund 465 m² Wohnfläche entfaltet sich ein modernes, lichtdurchflutetes Zuhause mit großzügigen Deckenhöhen, rahmenlosen Fensterfronten und klaren Linien. Der Entwurf verbindet zeitlose Eleganz mit moderner Funktionalität und setzt damit neue Maßstäbe für anspruchsvolles Wohnen.

Für besonderen Komfort sorgen ein Aufzug über alle Etagen, Smart-Home-Technologie, eine effiziente Wärmepumpe sowie eine kontrollierte Be- und Entlüftung inkl. Wärmerückgewinnung und sanfter Raumkühlung mittels Fan-Coils. Jedes Detail ist darauf ausgelegt, Wohnen auf höchstem Niveau zu ermöglichen und den individuellen Lebensstil seiner Bewohner perfekt zu unterstreichen. 

Immobiliendetails

  • Nutzungsart
    Wohnen
  • Objektart
    Villa
  • Hauptobjektart
    Haus
  • Vertragsart
    Kauf
  • Objektzustand
    Neubau
  • Baujahr
    2027
  • Zimmer (gesamt)
    9
  • Wohnfläche (ca.)
    465 m²
  • Gesamtfläche (ca.)
    554 m²
  • Grundstücksfläche (ca.)
    820 m²
  • Nutzfläche (ca.)
    89 m²
  • Anbieter-Objektnummer
    2565

Preise & Kosten

  • Courtage
    2,38 % inklusive der gesetzlichen Mehrwertsteuer

Energie

  • Heizungsart
    Fussbodenheizung
  • Befeuerungsart
    Luft-/Wasserwärme
  • Energieausweis
    nicht nötig
  • Energieverbrauch für Warmwasser
    nicht enthalten
  • Gebäudeart
    Wohngebäude
  • Wesentlicher Energieträger
    Strom via Wärmepumpe

Ausstattung

  • Sauna
  • Gäste-WC
  • Rolladen
  • Personenaufzug
  • Möbliert
  • Freistehend
  • Terrasse
  • Barrierefrei
  • Klimanalage
  • Swimmingpool
  • Garten
  • Kabelanschluss
  • Seniorengerecht
  • Rollstuhlgerecht
  • Waschraum
  • Alarmanlage
  • Keller
  • Deckenhöhe über 2,50 m
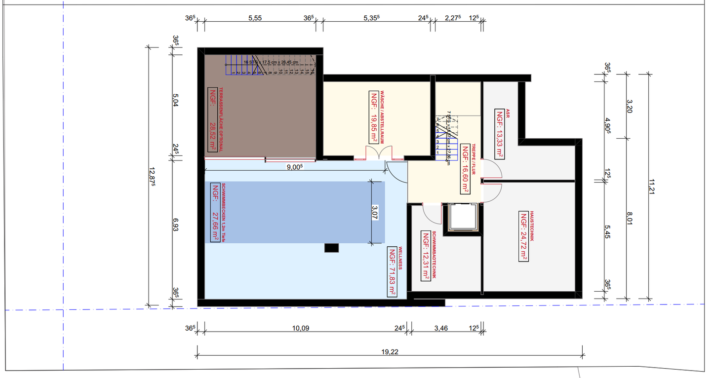
WELLNESSOASE UND LUXUS IM EIGENEN ZUHAUSE
Ein Highlight ist der luxuriöse Wellnessbereich im Untergeschoss, der mit einem Indoor-Pool und stilvollem Spa-Ambiente zur privaten Rückzugsoase wird. Hier können Sie sich vom Alltag erholen und
...mehr lesen
WELLNESSOASE UND LUXUS IM EIGENEN ZUHAUSE
Ein Highlight ist der luxuriöse Wellnessbereich im Untergeschoss, der mit einem Indoor-Pool und stilvollem Spa-Ambiente zur privaten Rückzugsoase wird. Hier können Sie sich vom Alltag erholen und Wellnessmomente in den eigenen vier Wänden genießen. Die hochwertige Ausstattung lässt sich nach Ihren Vorstellungen veredeln – für ein Zuhause, das Körper und Geist gleichermaßen
verwöhnt.


INDIVIDUELLE PLANUNG UND GESICHERTE QUALITÄT
Besonderer Wert wird auf hochwertige Materialien und eine flexible, individuelle Gestaltung gelegt. Käufer haben derzeit volle Einflussmöglichkeiten auf Grundriss, Ausstattung und Ausbaustandard – eine seltene Gelegenheit, die eigenen Wohnträume zu verwirklichen. 

Die Fertigstellung ist ca. 18 Monate nach Genehmigung geplant und erfolgt mit gesicherter Ratenzahlung gemäß Makler- und Bauträgerverordnung (MaBV). Diese transparente Struktur garantiert Sicherheit und Verlässlichkeit während des gesamten Bauprozesses – Sie zahlen ausschließlich für klar definierte Bauabschnitte und behalten dabei jederzeit volle Kostenkontrolle.

SCHLÜSSELFERTIG ODER „WOHLFÜHLFERTIG
Es besteht die Option, gemeinsam mit einem exklusiven italienischen Innenausstatter die innenarchitektonische Gestaltung und Möblierung individuell abzustimmen. So wird das Haus nicht nur schlüsselfertig, sondern „wohlfühlfertig“ geplant – sorglos bis ins Detail durchdacht für ein entspanntes Ankommen und sofortiges Wohlfühlen. Bei Interesse stellen wir hierzu gerne den
persönlichen Kontakt her.


Standort & Lage

EIN VILLENVIERTEL MIT STIL, RUHE UND BESTER ANBINDUNG
Diese Adresse ist nicht einfach „Neuss“, sondern zählt zu den besonderen Geheimtipps im Großraum Düsseldorf. Die Nachbarschaft besteht ausschließlich aus individuell gestalteten Villen – und ...mehr lesen
EIN VILLENVIERTEL MIT STIL, RUHE UND BESTER ANBINDUNG
Diese Adresse ist nicht einfach „Neuss“, sondern zählt zu den besonderen Geheimtipps im Großraum Düsseldorf. Die Nachbarschaft besteht ausschließlich aus individuell gestalteten Villen – und das Grundstück selbst wurde über viele Jahre von zwei erfolgreichen Unternehmerfamilien bewohnt, die das wirtschaftliche und gesellschaftliche Gesicht von Neuss maßgeblich mitgeprägt
haben. Die exklusive Lage, das ruhige Umfeld und die Nähe zur Natur wurden hier seit jeher
besonders geschätzt.

Direkt vor der Tür warten die Rheinauen, der Jachthafen, die Erft, sowie Wanderwege und Naturschutzgebiete mit weitläufigem Grün auf Sie. Hier wohnt man unter sich – niveauvoll, privat in freundlicher Atmosphäre und mit einem feinen Gespür für Qualität und Diskretion. 

Trotz absoluter Ruhe ist die Düsseldorfer Innenstadt nur einen Katzensprung entfernt: Die Königsallee erreichen Sie in 10 km bzw. 15 Fahrminuten. Die Mikrolage auf der gegenüberliegenden Rheinseite von Düsseldorf-Hamm liegt näher am Stadtzentrum als viele offizielle Düsseldorfer Stadtteile – und zugleich idyllischer, grüner und diskreter Neuss bietet zudem in einem Radius von 15 Minuten alles für den täglichen Bedarf: Einkaufsmöglichkeiten, Gastronomie, (internationale) Schulen und medizinische Versorgung. Diese besondere Kombination aus naturnaher Lage, hochwertigem Umfeld und bester Erreichbarkeit macht die Erftmündung zu einer Adresse mit bleibendem Wert und außergewöhnlichem Charme.

41468 Neuss · Gnadental · Nordrhein-Westfalen · DEU

Die genaue Anschrift erfahren Sie vom Anbieter

Sonstiges

GRUNDSTÜCK:
▪ Großzügiges Grundstück mit ca. 820 m² für individuelle Gartengestaltung und
Privatsphäre
Naturnahe Lage am Wasser an Erft und Rhein inkl. malerischen Auenlandschaften und
Sandstrand
Keine Hochwassergefahr auch bei Jahrtausendhochwasser
...mehr lesen
GRUNDSTÜCK:
▪ Großzügiges Grundstück mit ca. 820 m² für individuelle Gartengestaltung und
Privatsphäre
Naturnahe Lage am Wasser an Erft und Rhein inkl. malerischen Auenlandschaften und
Sandstrand
Keine Hochwassergefahr auch bei Jahrtausendhochwasser
10 km / 15 Minuten vom Düsseldorfer Zentrum (Königsallee) entfernt
Ruhige Sackgassenlage ohne Durchgangsverkehr
Diskrete Zufahrt über Stichstraße
Optimale Süd-West Ausrichtung
▪ Exklusive Nachbarschaft im Villenviertel von Neuss

DIE VILLA:
Architektonisch gestaltete Stadtvilla des renommierten Villenarchitekten Hans Heinze
(
Avantecture)
▪ 465 m² lichtdurchflutete Wohnfläche mit offenem Raumkonzept für höchste Ansprüche
Moderner Neubau mit Aufzug über alle Etagen
Exklusiver Wellnessbereich im UG mit Indoor-Pool für private Entspannungsoasen
Großzügige Deckenhöhen und rahmenlose Fenster für lichtdurchflutete Räume
Hocheffiziente Heiz- und Kühltechnik: moderne Wärmepumpe mit kontrollierter Be- und
Entlüftung samt Wärmerückgewinnung. Die Wärmeverteilung erfolgt flächendeckend über
Boden- und Wandheizsysteme. Sanfte Kühlung an heißen Tagen über Fan-Coils.
Smart Home
Garage zzgl. Außenstellplätze für bis zu drei Fahrzeuge (optional überdacht)
Hochwertige Materialien und individuelle Gestaltungsmöglichkeiten
Schlüsselfertig oder auf Wunsch „wohlfühlfertig“ innenarchitektonisch maßgeschneidert
geplant bis ins letzte Detail

Einzigartige Villa in exklusiver Mikrolage, die bereits bei Fertigstellung an Wert gewinnt
– ein vergleichbares Objekt ist kein zweites Mal zu erwerben

Anbieter

Logo von Die Grünen Makler GbR - Dr. Kaplan & Kaplan
2026 Best Property Agents

Ansprechpartner

Verbraucherhinweis

Widerrufsbelehrung des Anbieters

(Gilt nicht für Wohnraummiete in Deutschland)

Widerrufsrecht für Verbraucher
Sie haben das Recht, binnen vierzehn Tagen ohne Angabe von Gründen diesen Vertrag zu widerrufen. Die Widerrufsfrist beträgt vierzehn Tage ab dem Tag des Vertragsabschlusses.
Um Ihr Widerrufsrecht auszuüben, müssen Sie uns (Die Grünen Makler GbR - Dr. Kaplan & Kaplan, Johannes-Hesse-Straße 44, 40597 Düsseldorf, 017655662343, info@gruene-makler.de) mittels einer eindeutigen Erklärung (z. B. ein mit der Post versandter Brief, Telefax oder E-Mail) über Ihren Entschluss, diesen Vertrag zu widerrufen, informieren. Sie können dafür das beigefügte Muster-Widerrufsformular verwenden, das jedoch nicht vorgeschrieben ist. Zur Wahrung der Widerrufsfrist reicht es aus, dass Sie die Mitteilung über die Ausübung des Widerrufsrechts vor Ablauf der Widerrufsfrist absenden.

Folgen des Widerrufs
Wenn Sie diesen Vertrag widerrufen, haben wir Ihnen alle Zahlungen, die wir von Ihnen erhalten haben, einschließlich der Lieferkosten (mit Ausnahme der zusätzlichen Kosten, die sich daraus ergeben, dass Sie eine andere Art der Lieferung als die von uns angebotene, günstigste Standardlieferung gewählt haben), unverzüglich und spätestens binnen vierzehn Tagen ab dem Tag zurückzuzahlen, an dem die Mitteilung über Ihren Widerruf dieses Vertrags bei uns eingegangen ist. Für diese Rückzahlung verwenden wir dasselbe Zahlungsmittel, das Sie bei der ursprünglichen Transaktion eingesetzt haben, es sei denn, mit Ihnen wurde ausdrücklich etwas anderes vereinbart; in keinem Fall werden Ihnen wegen dieser Rückzahlung Entgelte berechnet. Haben Sie verlangt, dass die Dienstleistungen während der Widerrufsfrist beginnen soll, so haben Sie uns einen angemessenen Betrag zu zahlen, der dem Anteil der bis zu dem Zeitpunkt, zu dem Sie uns von der Ausübung des Widerrufsrechts hinsichtlich dieses Vertrags unterrichten, bereits erbrachten Dienstleistungen im Vergleich zum Gesamtumfang der im Vertrag vorgesehenen Dienstleistungen entspricht.

Muster-Widerrufsformular
(Wenn Sie den Vertrag widerrufen wollen, dann füllen Sie dieses Formular aus und senden Sie es zurück.)

An Die Grünen Makler GbR - Dr. Kaplan & Kaplan, Johannes-Hesse-Straße 44, 40597 Düsseldorf, 017655662343, info@gruene-makler.de

Hiermit widerrufe ich/wir den von mir/uns abgeschlossenen Vertrag über den Kauf der folgenden Waren /die Erbringung der folgenden Dienstleistung


Bestellt am /erhalten am

Name des/der Verbraucher(s)

Anschrift des/der Verbraucher(s)

Unterschrift des/der Verbraucher(s) (nur bei Mitteilung auf Papier)

Datum


( Unzutreffendes streichen )


Hinweis auf die Möglichkeit eines vorzeitigen Erlöschens des Widerrufsrechts

Ihr Widerrufsrecht erlischt, wenn wir unsere Leistung vollständig erbracht haben und mit der Ausführung der Leistung erst begonnen haben, nachdem Sie Ihre ausdrückliche Zustimmung gegeben haben und gleichzeitig Ihre Kenntnis davon bestätigt haben, dass Sie Ihr Widerrufsrecht bei vollständiger Vertragserfüllung durch uns verlieren.

Impressum Die Grünen Makler GbR - Dr. Kaplan & Kaplan
VERTRETUNGSBERECHTIGTE/R
Geschäftsführer: Dr. Paul Kaplan


Johannes-Hesse-Straße 44
40597 Düsseldorf
DEU
Tel.: 017655662343
E-Mail: info@gruene-makler.de
Homepage: www.gruene-makler.de

ZUSTÄNDIGE AUFSICHTSBEHÖRDE
Ordnungsamt Düsseldorf Worringer Straße 111 40210 Düsseldorf Tel.: 0211 8991 Fax: 0211 8929106 https://www.duesseldorf.de/ordnungsamt

UST-ID-NUMMER
DE349912683
Anbieter kontaktieren

AGB, Datenschutz & Verbraucherhinweis wurden gelesen und akzeptiert.