Angebot 8828 von 16439

Anbieter kontaktieren

AGB, Datenschutz & Verbraucherhinweis wurden gelesen und akzeptiert.

Heese und Acar Immobilien GmbH

Acar
10585 Berlin
  • Mehr erfahren
bellevue.de-ID: 30596491

Funktionale und gut vermietete Gewerbeeinheit im Herzen Prenzlauer Bergs

  • Gastgewerbe/Hotel
  • · 586.000 € Kaufpreis
Anbieter kontaktieren

Objektbeschreibung

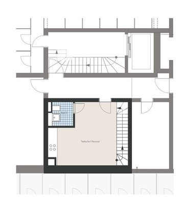
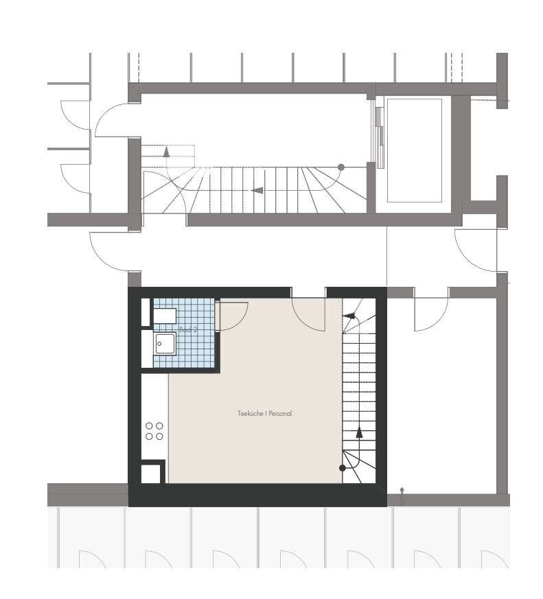
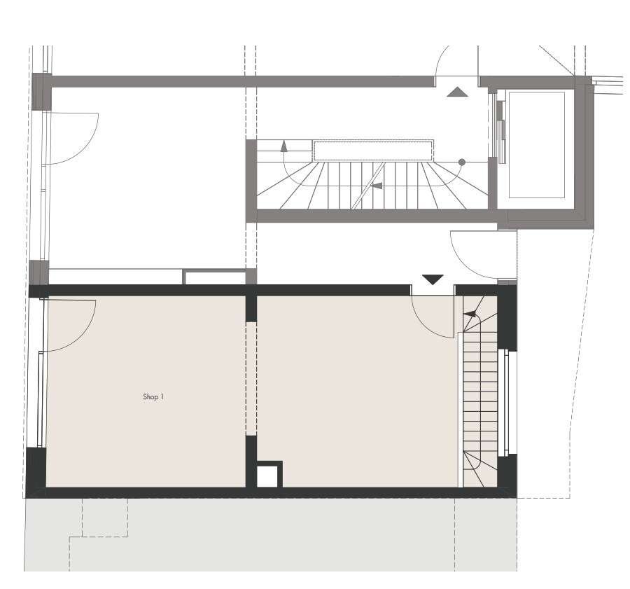
Bei diesem Gewerbe handelt es sich um eine Maisonette im Vorderhaus der Kastanienallee 64. Im Erdgeschoss befindet sich eine 41 m² große Ladenfläche. Über eine Treppe gelangt man ins Souterrain, hier befinden sich ein WC und ein Personalraum mit der ...mehr lesen
Bei diesem Gewerbe handelt es sich um eine Maisonette im Vorderhaus der Kastanienallee 64. Im Erdgeschoss befindet sich eine 41 m² große Ladenfläche. Über eine Treppe gelangt man ins Souterrain, hier befinden sich ein WC und ein Personalraum mit der Möglichkeit eines Küchenanschlusses. Im Erdgeschoss erstreckt sich über fast die gesamte Breite des Geschäfts eine raumhohe Fensterfront zur Kastanienallee. Eine gehobene Ausstattung ist allen Gewerbeeinheiten des Projekts gemeinsam: Hochwertige Fliesenbeläge und eine Fußbodenheizung sorgen für angenehme Wärme im Winter. Optional ist die Anmietung eines Tiefgaragenstellplatzes im Haus möglich. Derzeit wird die Fläche als Pizzeria genutzt.

HINWEIS: Der Preis versteht sich zzgl. Umsatzsteuer in Höhe von 19%.
Die genauen Mieteinnahmen erhalten Sie nach Anfrage.

Immobiliendetails

  • Nutzungsart
    Gewerbe
  • Objektart
    Café
  • Hauptobjektart
    Gastgewerbe/Hotel
  • Vertragsart
    Kauf
  • Baujahr
    2013
  • Gesamtfläche (ca.)
    62,48 m²
  • Gastraumfläche (ca.)
    62,48 m²
  • Fußboden
    Fliesen
  • Anbieter-Objektnummer
    2025080502

Preise & Kosten

  • Courtage
    7,14% vom Kaufpreis inkl. 19 % gesetzlicher MwSt., zahlbar vom Käufer. Die Provision ist fällig und verdient mit Beurkundung des Kaufvertrages.

    7,14 % inklusive der gesetzlichen Mehrwertsteuer

Energie

  • Heizungsart
    Fussbodenheizung
  • Energieausweis
    Energiebedarfsausweis
  • Energieeffizienzklasse
    B
  • Gebäudeart
    Nicht-Wohngebäude
  • Wesentlicher Energieträger
    KWK fossil

Ausstattung

  • Vermietet
  • Keller
  • Vermietet/Verpachtet
+ ca. 41 qm Ladenfläche im EG
+ ca. 21,34 qm im Souterrain
+ Gesamtfläche ca. 62,48 qm
+ viel Helligkeit
+ raumhohe Schaufensterfront zur Kastanienallee
+ weitere Schaufenster zum Innenhof
+ inkl. Personalraum
+ Möglichkeit eines Küchenanschlusses
+ inkl. ...mehr lesen
+ ca. 41 qm Ladenfläche im EG
+ ca. 21,34 qm im Souterrain
+ Gesamtfläche ca. 62,48 qm
+ viel Helligkeit
+ raumhohe Schaufensterfront zur Kastanienallee
+ weitere Schaufenster zum Innenhof
+ inkl. Personalraum
+ Möglichkeit eines Küchenanschlusses
+ inkl. WC
+ Fußbodenheizung
+ hochwertige Fliesen
+ Kellerabteil
+ vermietet bis September 2029
+ Staffelmiete
+ wird aktuell als Pizzeria genutzt
+ Optional: Anmietung eines Tiefgaragenstellplatzes im Haus

Standort & Lage

Die Kastanienallee in Mitte ist über die Grenzen Berlins hinaus bekannt. Sie hat sich nicht nur als Shopping- und Flaniermeile einen Namen gemacht sondern vor allem wegen der vielen kleinen Szeneläden, die sich hier angesiedelt haben. Viele Bars, ...mehr lesen
Die Kastanienallee in Mitte ist über die Grenzen Berlins hinaus bekannt. Sie hat sich nicht nur als Shopping- und Flaniermeile einen Namen gemacht sondern vor allem wegen der vielen kleinen Szeneläden, die sich hier angesiedelt haben. Viele Bars, Cafés und Restaurants laden zum Verweilen ein und Galerien und Boutiquen zeigen die neusten Trends auf. Ein
besonders kreativer Lebensstil weht von hier in die weite Welt hinaus. In der Kastanienallee ist die K6364 optimal gelegen – der idyllische Zionskirchplatz liegt mit der Zionskirche schräg gegenüber und den schönen Weinberspark erreicht man in nur 2 Gehminuten. Die U-Bahnhöfe Rosenthaler Platz und Senefelder Platz sind nur wenige Fußminuten entfernt und vor dem Gebäude hält die Straßenbahn, mit der man in nur 5 Minuten zum Hackeschen Markt gelangt. Viele Anwohner aber auch Touristen gehen hier täglich vorbei, da sich die Kastanienallee inzwischen zu einem „Must seen“ in Berlin entwickelt hat.

10119 Berlin · Berlin · DEU

Die genaue Anschrift erfahren Sie vom Anbieter

Sonstiges

Datenschutz und Vertraulichkeit:
Wir bitten um Ihr Verständnis, dass wir Exposés nur an Interessenten versenden, die uns ihre vollständige Adresse sowie Telefonnummer mitteilen. Ihre Daten behandeln wir selbstverständlich vertraulich und geben sie ...mehr lesen
Datenschutz und Vertraulichkeit:
Wir bitten um Ihr Verständnis, dass wir Exposés nur an Interessenten versenden, die uns ihre vollständige Adresse sowie Telefonnummer mitteilen. Ihre Daten behandeln wir selbstverständlich vertraulich und geben sie nicht an Dritte weiter.

Zuverlässige Begleitung:
Von der vertraulichen Erstberatung bis zur Übergabe stehen wir Ihnen jederzeit zuverlässig und kompetent zur Seite. Ihre Zufriedenheit ist uns wichtig– erst wenn Sie am Ende zufrieden sind, sind wir es auch.

Kontaktmöglichkeiten:
Sie erreichen uns unter der E-Mail-Adresse info@heeseundacar.de oder direkt telefonisch unter +49 30 93917603. Weitere Informationen finden Sie auf unserer Website: www.heeseundacar.de.

Wichtige Hinweise:

Haftungsausschluss:
Bitte beachten Sie, dass die von uns bereitgestellten Objektinformationen, Unterlagen, Pläne usw. vom Verkäufer oder Vermieter stammen. Daher können wir keine Haftung für die Richtigkeit oder Vollständigkeit der Angaben übernehmen. Es liegt in der Verantwortung unserer Kunden, die Informationen auf ihre Richtigkeit zu überprüfen. Alle Immobilienangebote sind freibleibend und vorbehaltlich von Irrtümern, Zwischenverkäufen oder -vermietungen sowie sonstigen Zwischenverwertungen.

Geldwäschegesetz:
Als Immobilienmaklerunternehmen sind wir gemäß § 2 Abs. 1 Nr. 14 und § 11 Abs. 1, 2 des Geldwäschegesetzes (GwG) verpflichtet, die Identität des Vertragspartners bei der Begründung einer Geschäftsbeziehung festzustellen und zu überprüfen, sobald ein ernsthaftes Interesse am Immobilienkaufvertrag besteht. Hierfür müssen wir gemäß § 11 Abs. 4 GwG relevante Daten Ihres Personalausweises festhalten (sofern Sie als natürliche Person handeln), beispielsweise durch eine Kopie. Bei juristischen Personen benötigen wir eine Kopie des Handelsregisterauszugs, aus dem der wirtschaftlich Berechtigte hervorgeht. Das Geldwäschegesetz schreibt vor, dass der Makler diese Kopien und Unterlagen fünf Jahre lang aufbewahren muss. Als unser Vertragspartner haben Sie auch eine Mitwirkungspflicht gemäß § 11 Abs. 6 GwG.

Anbieter

Heese und Acar Immobilien GmbH

Firma Heese und Acar Immobilien GmbH
Spielhagenstraße 7
10585 Berlin

Ansprechpartner

Verbraucherhinweis

Widerrufsbelehrung des Anbieters

(Gilt nicht für Wohnraummiete in Deutschland)

Widerrufsrecht für Verbraucher
Sie haben das Recht, binnen vierzehn Tagen ohne Angabe von Gründen diesen Vertrag zu widerrufen. Die Widerrufsfrist beträgt vierzehn Tage ab dem Tag des Vertragsabschlusses.
Um Ihr Widerrufsrecht auszuüben, müssen Sie uns (Heese und Acar Immobilien GmbH, Spielhagenstraße 7, 10585 Berlin, 030-93917603, info@heeseundacar.de) mittels einer eindeutigen Erklärung (z. B. ein mit der Post versandter Brief, Telefax oder E-Mail) über Ihren Entschluss, diesen Vertrag zu widerrufen, informieren. Sie können dafür das beigefügte Muster-Widerrufsformular verwenden, das jedoch nicht vorgeschrieben ist. Zur Wahrung der Widerrufsfrist reicht es aus, dass Sie die Mitteilung über die Ausübung des Widerrufsrechts vor Ablauf der Widerrufsfrist absenden.

Folgen des Widerrufs
Wenn Sie diesen Vertrag widerrufen, haben wir Ihnen alle Zahlungen, die wir von Ihnen erhalten haben, einschließlich der Lieferkosten (mit Ausnahme der zusätzlichen Kosten, die sich daraus ergeben, dass Sie eine andere Art der Lieferung als die von uns angebotene, günstigste Standardlieferung gewählt haben), unverzüglich und spätestens binnen vierzehn Tagen ab dem Tag zurückzuzahlen, an dem die Mitteilung über Ihren Widerruf dieses Vertrags bei uns eingegangen ist. Für diese Rückzahlung verwenden wir dasselbe Zahlungsmittel, das Sie bei der ursprünglichen Transaktion eingesetzt haben, es sei denn, mit Ihnen wurde ausdrücklich etwas anderes vereinbart; in keinem Fall werden Ihnen wegen dieser Rückzahlung Entgelte berechnet. Haben Sie verlangt, dass die Dienstleistungen während der Widerrufsfrist beginnen soll, so haben Sie uns einen angemessenen Betrag zu zahlen, der dem Anteil der bis zu dem Zeitpunkt, zu dem Sie uns von der Ausübung des Widerrufsrechts hinsichtlich dieses Vertrags unterrichten, bereits erbrachten Dienstleistungen im Vergleich zum Gesamtumfang der im Vertrag vorgesehenen Dienstleistungen entspricht.

Muster-Widerrufsformular
(Wenn Sie den Vertrag widerrufen wollen, dann füllen Sie dieses Formular aus und senden Sie es zurück.)

An Heese und Acar Immobilien GmbH, Spielhagenstraße 7, 10585 Berlin, 030-93917603, info@heeseundacar.de

Hiermit widerrufe ich/wir den von mir/uns abgeschlossenen Vertrag über den Kauf der folgenden Waren /die Erbringung der folgenden Dienstleistung


Bestellt am /erhalten am

Name des/der Verbraucher(s)

Anschrift des/der Verbraucher(s)

Unterschrift des/der Verbraucher(s) (nur bei Mitteilung auf Papier)

Datum


( Unzutreffendes streichen )


Hinweis auf die Möglichkeit eines vorzeitigen Erlöschens des Widerrufsrechts

Ihr Widerrufsrecht erlischt, wenn wir unsere Leistung vollständig erbracht haben und mit der Ausführung der Leistung erst begonnen haben, nachdem Sie Ihre ausdrückliche Zustimmung gegeben haben und gleichzeitig Ihre Kenntnis davon bestätigt haben, dass Sie Ihr Widerrufsrecht bei vollständiger Vertragserfüllung durch uns verlieren.

Impressum Heese und Acar Immobilien GmbH
VERTRETUNGSBERECHTIGTE/R
Joscha Heese und Hakan Acar


Spielhagenstraße 7
10585 Berlin
DEU
Tel.: 030-93917603
E-Mail: info@heeseundacar.de
Homepage: https://www.heeseundacar.de/

ZUSTÄNDIGE AUFSICHTSBEHÖRDE
Impressum Heese und Acar Immobilien GmbH Spielhagenstraße 7 10585 Berlin Registergericht: Amtsgericht Charlottenburg Vertreten durch: Joscha Heese und Hakan Acar Kontakt Telefon: +49 30 93917603 E-Mail: info@heeseundacar.d

HANDELSREGISTER-EINTRAG
HRB 233120 B


UST-ID-NUMMER
DE347050130
Anbieter kontaktieren

AGB, Datenschutz & Verbraucherhinweis wurden gelesen und akzeptiert.