Angebot 6291 von 17618

Anbieter kontaktieren

AGB, Datenschutz & Verbraucherhinweis wurden gelesen und akzeptiert.

Properstar SA

sundream properties
  • Mehr erfahren
bellevue.de-ID: 30595691

Haus zu kaufen in Finestrat, Spain

  • Haus
  • · 4 Zimmer
  • · 315 m² Wohnfläche
  • · 620 m² Grundstücksfläche
  • · 1.050.000 € Kaufpreis
Anbieter kontaktieren

Objektbeschreibung

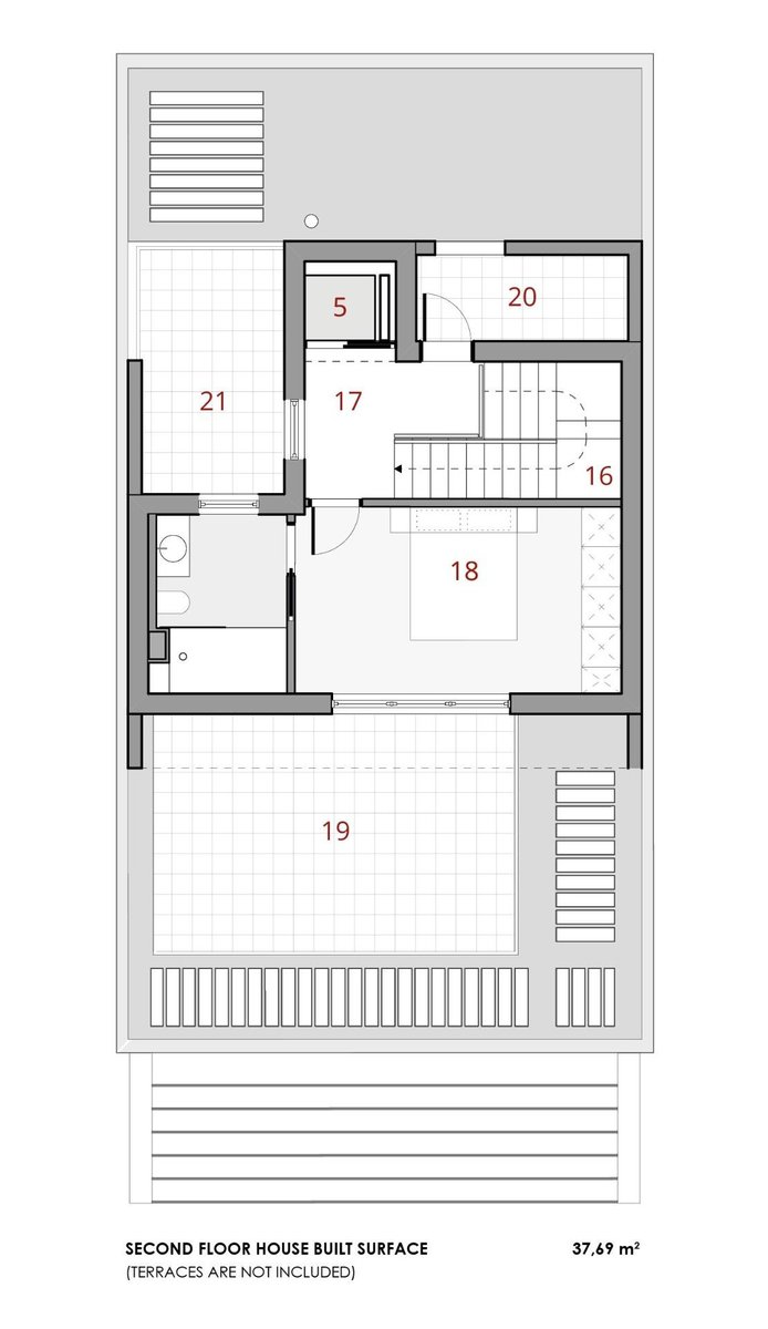
4-Zimmer-Villa mit atemberaubendem Blick auf die Skyline von Benidorm zu verkaufen (Finestrat)~~Neubau-Villa im modernen Stil mit 4 Schlafzimmern und 4 Badezimmern, offener Küche mit Wohnzimmer, Terrasse mit herrlichem Blick über Benidorm, privatem ...mehr lesen
4-Zimmer-Villa mit atemberaubendem Blick auf die Skyline von Benidorm zu verkaufen (Finestrat)~~Neubau-Villa im modernen Stil mit 4 Schlafzimmern und 4 Badezimmern, offener Küche mit Wohnzimmer, Terrasse mit herrlichem Blick über Benidorm, privatem Garten mit Swimmingpool und Parkplatz.~~Der seitliche Garten, der mit Kakteen und weißem Kies geschmückt ist, verbindet die Zugangsebene 1 mit dem Hauptgeschoss (Ebene O).~~Die Verwendung von Naturrasen auf dem restlichen Gelände wird durch ein sorgfältig geplantes Landschaftsbauprojekt als zusätzliche Besonderheit präsentiert.~~Jede Ebene wird mit einem Material akzentuiert, das ihr Wesen unterstreicht. Die Ebene O ist mit natürlichem Kalkstein verkleidet, der der gesamten Struktur Halt gibt. ~Die Ebene 1 mit ihrer einschichtigen Verkleidung und den hölzernen Fensterläden schützt den intimsten Teil des Hauses. ~Die Ebene 2 schließlich, in der sich das Hauptschlafzimmer befindet, öffnet sich zu einer großzügigen Terrasse und ist mit einem strukturierten Monolayer in einem warmen Farbton verkleidet.~~Die mediterrane Ästhetik wird durch eine perfekte Verschmelzung von Tradition, moderner Architektur und Natur erreicht.~~~Finestrat liegt in der Region Marina Baixa an der Costa Blanca, in der Nähe des benachbarten Benidorm und etwa 40 Kilometer von der Stadt Alicante und dem internationalen Flughafen entfernt.~~Das Dorf liegt am Berghang des Puig Campana und bietet einen schönen Blick auf die Berge, die Küste und das Mittelmeer.~~Benidorm ist nur fünf Autominuten von den Grundstücken entfernt und bietet alle Dienstleistungen, die Sie benötigen, wie Geschäfte, Bars, Restaurants, Supermärkte, Banken, Apotheken und mehrere private internationale Schulen.

Immobiliendetails

  • Nutzungsart
    Wohnen
  • Objektart
    Einfamilienhaus
  • Hauptobjektart
    Haus
  • Vertragsart
    Kauf
  • Zimmer (gesamt)
    4
  • Anzahl Schlafzimmer
    4
  • Anzahl Badezimmer
    4
  • Wohnfläche (ca.)
    315 m²
  • Grundstücksfläche (ca.)
    620 m²
  • Nutzfläche (ca.)
    315 m²
  • Anbieter-Objektnummer
    108993967

Preise & Kosten

  • Courtage
    Keine besondere Angabe.

Energie

  • Energieeffizienzklasse
    A

Ausstattung

  • Swimmingpool

Standort & Lage

03509 Finestrat · ESP

Die genaue Anschrift erfahren Sie vom Anbieter

Verbraucherhinweis

Widerrufsbelehrung des Anbieters

(Gilt nicht für Wohnraummiete in Deutschland)

Widerrufsrecht für Verbraucher
Sie haben das Recht, binnen vierzehn Tagen ohne Angabe von Gründen diesen Vertrag zu widerrufen. Die Widerrufsfrist beträgt vierzehn Tage ab dem Tag des Vertragsabschlusses.
Um Ihr Widerrufsrecht auszuüben, müssen Sie uns (ListGlobally SA, Rue Mercerie 12, 1003 Lausanne, +49 800 0010536, support@listglobally.com) mittels einer eindeutigen Erklärung (z. B. ein mit der Post versandter Brief, Telefax oder E-Mail) über Ihren Entschluss, diesen Vertrag zu widerrufen, informieren. Sie können dafür das beigefügte Muster-Widerrufsformular verwenden, das jedoch nicht vorgeschrieben ist. Zur Wahrung der Widerrufsfrist reicht es aus, dass Sie die Mitteilung über die Ausübung des Widerrufsrechts vor Ablauf der Widerrufsfrist absenden.

Folgen des Widerrufs
Wenn Sie diesen Vertrag widerrufen, haben wir Ihnen alle Zahlungen, die wir von Ihnen erhalten haben, einschließlich der Lieferkosten (mit Ausnahme der zusätzlichen Kosten, die sich daraus ergeben, dass Sie eine andere Art der Lieferung als die von uns angebotene, günstigste Standardlieferung gewählt haben), unverzüglich und spätestens binnen vierzehn Tagen ab dem Tag zurückzuzahlen, an dem die Mitteilung über Ihren Widerruf dieses Vertrags bei uns eingegangen ist. Für diese Rückzahlung verwenden wir dasselbe Zahlungsmittel, das Sie bei der ursprünglichen Transaktion eingesetzt haben, es sei denn, mit Ihnen wurde ausdrücklich etwas anderes vereinbart; in keinem Fall werden Ihnen wegen dieser Rückzahlung Entgelte berechnet. Haben Sie verlangt, dass die Dienstleistungen während der Widerrufsfrist beginnen soll, so haben Sie uns einen angemessenen Betrag zu zahlen, der dem Anteil der bis zu dem Zeitpunkt, zu dem Sie uns von der Ausübung des Widerrufsrechts hinsichtlich dieses Vertrags unterrichten, bereits erbrachten Dienstleistungen im Vergleich zum Gesamtumfang der im Vertrag vorgesehenen Dienstleistungen entspricht.

Muster-Widerrufsformular
(Wenn Sie den Vertrag widerrufen wollen, dann füllen Sie dieses Formular aus und senden Sie es zurück.)

An ListGlobally SA, Rue Mercerie 12, 1003 Lausanne, +49 800 0010536, support@listglobally.com

Hiermit widerrufe ich/wir den von mir/uns abgeschlossenen Vertrag über den Kauf der folgenden Waren /die Erbringung der folgenden Dienstleistung


Bestellt am /erhalten am

Name des/der Verbraucher(s)

Anschrift des/der Verbraucher(s)

Unterschrift des/der Verbraucher(s) (nur bei Mitteilung auf Papier)

Datum


( Unzutreffendes streichen )


Hinweis auf die Möglichkeit eines vorzeitigen Erlöschens des Widerrufsrechts

Ihr Widerrufsrecht erlischt, wenn wir unsere Leistung vollständig erbracht haben und mit der Ausführung der Leistung erst begonnen haben, nachdem Sie Ihre ausdrückliche Zustimmung gegeben haben und gleichzeitig Ihre Kenntnis davon bestätigt haben, dass Sie Ihr Widerrufsrecht bei vollständiger Vertragserfüllung durch uns verlieren.

Impressum ListGlobally SA
VERTRETUNGSBERECHTIGTE/R
Properstar SA


Rue Mercerie 12
1003 Lausanne
CHE
Tel.: +49 800 0010536
E-Mail: support@listglobally.com
Homepage: https://www.listglobally.com/
Anbieter kontaktieren

AGB, Datenschutz & Verbraucherhinweis wurden gelesen und akzeptiert.