Angebot 9509 von 16898

Anbieter kontaktieren

AGB, Datenschutz & Verbraucherhinweis wurden gelesen und akzeptiert.

Goschler & Partner Inmobiliaria S.L.

Bild/Logo: Sirpa Goschler
Sirpa Goschler
07570 Artà
  • Mehr erfahren
bellevue.de-ID: 30595353

Atemberaubend: Hochwertige Design-Stadtwohnung mit Patio und Pool, Capdepera

  • Wohnung
  • · 4 Zimmer
  • · 140 m² Wohnfläche
  • · 146 m² Grundstücksfläche
  • · 750.000 € Kaufpreis
Anbieter kontaktieren

Objektbeschreibung

Lage, Lage, Lage: Diese exquisite Stadtwohnung im Herzen von Capdepera besticht durch eine harmonische Kombination aus traditionellem Charme und modernem Design. Schon beim Betreten der Immobilie werden Sie von den hervorragend in Szene gesetzten ...mehr lesen
Lage, Lage, Lage: Diese exquisite Stadtwohnung im Herzen von Capdepera besticht durch eine harmonische Kombination aus traditionellem Charme und modernem Design. Schon beim Betreten der Immobilie werden Sie von den hervorragend in Szene gesetzten alten Stilelementen und dem modernen Ambiente beeindruckt sein.

Nur einen Sprung vom Markplatz Capdeperas, mit Restaurants und Bars, befindet sich dieses Stadthaus, so das Sie das City Flair in vollen Zügen genießen können. Innerhalb weniger Minuten erreichen Sie die schönen Strände von Canyamel, Font de Sa Cala und Cala Ratjada und auch Sportler kommen in Ihren Genuss - für Sie bieten sich zahlreiche Möglichkeiten wie wandern, Wassersport oder ausgedehnt Radtouren in beeindruckender Natur.

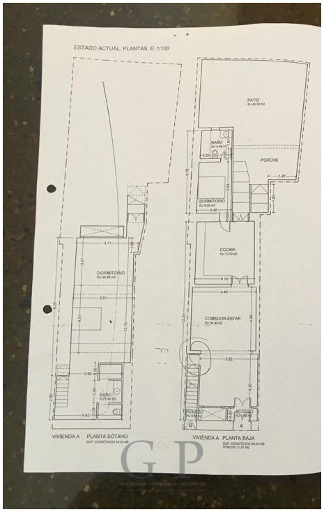
Beschreibung der Immobilie:

Der Eingangsbereich zeichnet sich durch indirekt beleuchtete Mares-Steinwände, hohe Decken und ein großzügiges Raumgefühl aus, welches sich in der gesamten Immobilie fortsetzt.

Vom Entrée gelangen Sie in den gemütlichen Wohnbereich, der nahtlos in den Essbereich mit einer modernen, offenen Edelstahlküche übergeht. Ein Highlight der Küche ist der erhaltene alte Kamin des Hauses.

Angrenzend der Küche befindet sich linker Hand ein ein Schlafzimmer mit Duschbad en-suite und mit Blick auf den Pool führt. Rechter Hand gelangen Sie in den wunderschönen Innenhof (ca. 50m2) mit Pool. Dieser bietet Ihnen sowohl eine überdachte Terrasse als auch einen Chill Out Bereich unter freiem Himmel und mit Blick auf die Burg von Capdepera.

Eine Treppe führt Sie hinunter in das ca. 60 qm große Schlafzimmer mit offenem Badezimmer en-suite, in Antonio Lupi Design. Der ursprüngliche Stall der Immobilie wurde perfekt saniert und versprüht durch das Gewölbe aus Maresstein einen ganz besonderen Charme. Auch der alte Trog wurde liebevoll in Szene gesetzt. Vom Schlafzimmer gelangen Sie ebenfalls zum Innenhof und Poolbereich des Hauses.

Die Immobilie wird komplett möbliert, dekoriert und ausgestattet an Sie übergeben - einziehen und einfach nur wohlfühlen.

Unser Fazit: Ein einzigartiges Wohnobjekt, das durch seine besondere Mischung aus historischem Flair und modernem Komfort besticht.

Kontaktieren Sie uns jetzt um unseren gemeinsamen Besichtigungstermin zu vereinbaren.

Immobiliendetails

  • Nutzungsart
    Wohnen
  • Objektart
    Erdgeschosswohnung
  • Hauptobjektart
    Wohnung
  • Vertragsart
    Kauf
  • Objektzustand
    Gepflegt
  • Baujahr
    1925
  • Zimmer (gesamt)
    4
  • Anzahl Schlafzimmer
    2
  • Anzahl Badezimmer
    2
  • Wohnfläche (ca.)
    140 m²
  • Grundstücksfläche (ca.)
    146 m²
  • Küche
    Einbauküche (EBK), 1
  • Anzahl Etagen
    2
  • Ausstattungskategorie
    Luxus
  • Fußboden
    Fliesen, Stein
  • Anbieter-Objektnummer
    G&P_001325

Preise & Kosten

  • Kaufpreis pro m²
    5.357,14 €
  • Courtage
    Keine besondere Angabe.

Energie

  • Befeuerungsart
    Strom
  • Energieausweis
    Energieverbrauchsausweis
  • Endenergieverbrauch
    149 kWh/(m²*a)
  • Baujahr (laut Energieausweis)
    1925
  • Energieeffizienzklasse
    E
  • Gebäudeart
    Wohngebäude

Standort & Lage

Die Immobilie befindet sich in Capdepera einem geschichtsträchigen Ort Mallorcas im Nordosten der Insel gelegen.
Capdepera ist eingebettet in die mallorquinische Hügellandschaft und liegt nahe mehrerer Küstenorte wie Cala Ratjada, Canyamel oder Son ...mehr lesen
Die Immobilie befindet sich in Capdepera einem geschichtsträchigen Ort Mallorcas im Nordosten der Insel gelegen.
Capdepera ist eingebettet in die mallorquinische Hügellandschaft und liegt nahe mehrerer Küstenorte wie Cala Ratjada, Canyamel oder Son Servera und Cala Millor.
Die alte Burg aus dem 13. Jahrhundert versprüht mittelalterlichen Charme und macht diesen Ort zu einem besonderen Erlebnis. Zahlreiche Restaurants und Bars säumen den Marktplatz und bieten Ihnen ein tolles Ambiente.
Für Sportler sind in dieser Region ebenfalls keine Grenzen gesetzt. Ob Golf, Wassersport , Wanderungen oder Fahrradtouren - Sie haben die Wahl. Wir wünschen Ihnen bereits jetzt viel Freude bei allem was Sie hier machen werden.

07580 Capdepera · Mallorca · ESP

Die genaue Anschrift erfahren Sie vom Anbieter

Sonstiges

Die Informationen beruhen auf Angaben des Eigentümers und den zur Verfügung gestellten Unterlagen. Wir übernehmen für diese Angaben keine Haftung.

Anbieter

Logo von Goschler & Partner Inmobiliaria S.L.
2026 Best Property Agents

Ansprechpartner

Bild/Logo: Sirpa Goschler

Sirpa Goschler

Gran Via de la Constitució No. 2
07570 Artà
Verbraucherhinweis

Widerrufsbelehrung des Anbieters

(Gilt nicht für Wohnraummiete in Deutschland)

Widerrufsrecht für Verbraucher
Sie haben das Recht, binnen vierzehn Tagen ohne Angabe von Gründen diesen Vertrag zu widerrufen. Die Widerrufsfrist beträgt vierzehn Tage ab dem Tag des Vertragsabschlusses.
Um Ihr Widerrufsrecht auszuüben, müssen Sie uns (Goschler & Partner Inmobiliaria S.L., Gran Via de la Constitució 2, 07570 Artá, 0034 652 780 735, goschler@gp-mallorcaimmobilien.com) mittels einer eindeutigen Erklärung (z. B. ein mit der Post versandter Brief, Telefax oder E-Mail) über Ihren Entschluss, diesen Vertrag zu widerrufen, informieren. Sie können dafür das beigefügte Muster-Widerrufsformular verwenden, das jedoch nicht vorgeschrieben ist. Zur Wahrung der Widerrufsfrist reicht es aus, dass Sie die Mitteilung über die Ausübung des Widerrufsrechts vor Ablauf der Widerrufsfrist absenden.

Folgen des Widerrufs
Wenn Sie diesen Vertrag widerrufen, haben wir Ihnen alle Zahlungen, die wir von Ihnen erhalten haben, einschließlich der Lieferkosten (mit Ausnahme der zusätzlichen Kosten, die sich daraus ergeben, dass Sie eine andere Art der Lieferung als die von uns angebotene, günstigste Standardlieferung gewählt haben), unverzüglich und spätestens binnen vierzehn Tagen ab dem Tag zurückzuzahlen, an dem die Mitteilung über Ihren Widerruf dieses Vertrags bei uns eingegangen ist. Für diese Rückzahlung verwenden wir dasselbe Zahlungsmittel, das Sie bei der ursprünglichen Transaktion eingesetzt haben, es sei denn, mit Ihnen wurde ausdrücklich etwas anderes vereinbart; in keinem Fall werden Ihnen wegen dieser Rückzahlung Entgelte berechnet. Haben Sie verlangt, dass die Dienstleistungen während der Widerrufsfrist beginnen soll, so haben Sie uns einen angemessenen Betrag zu zahlen, der dem Anteil der bis zu dem Zeitpunkt, zu dem Sie uns von der Ausübung des Widerrufsrechts hinsichtlich dieses Vertrags unterrichten, bereits erbrachten Dienstleistungen im Vergleich zum Gesamtumfang der im Vertrag vorgesehenen Dienstleistungen entspricht.

Muster-Widerrufsformular
(Wenn Sie den Vertrag widerrufen wollen, dann füllen Sie dieses Formular aus und senden Sie es zurück.)

An Goschler & Partner Inmobiliaria S.L., Gran Via de la Constitució 2, 07570 Artá, 0034 652 780 735, goschler@gp-mallorcaimmobilien.com

Hiermit widerrufe ich/wir den von mir/uns abgeschlossenen Vertrag über den Kauf der folgenden Waren /die Erbringung der folgenden Dienstleistung


Bestellt am /erhalten am

Name des/der Verbraucher(s)

Anschrift des/der Verbraucher(s)

Unterschrift des/der Verbraucher(s) (nur bei Mitteilung auf Papier)

Datum


( Unzutreffendes streichen )


Hinweis auf die Möglichkeit eines vorzeitigen Erlöschens des Widerrufsrechts

Ihr Widerrufsrecht erlischt, wenn wir unsere Leistung vollständig erbracht haben und mit der Ausführung der Leistung erst begonnen haben, nachdem Sie Ihre ausdrückliche Zustimmung gegeben haben und gleichzeitig Ihre Kenntnis davon bestätigt haben, dass Sie Ihr Widerrufsrecht bei vollständiger Vertragserfüllung durch uns verlieren.

Impressum Goschler & Partner Inmobiliaria S.L.
VERTRETUNGSBERECHTIGTE/R
Sirpa Goschler


Gran Via de la Constitució 2
07570 Artá
ESP
Tel.: 0034 652 780 735
E-Mail: goschler@gp-mallorcaimmobilien.com
Homepage: www.gp-mallorcaimmobilien.com

ZUSTÄNDIGE AUFSICHTSBEHÖRDE
Conversia Pau Socias Cantallops Tel. 0034 667 618 508 Mail: pau.socias@conversia.es

ZUSÄTZLICHER TEXT
Auf der Suche nach Ihrer Mallorca Immobilie? Wir bieten Ihnen die Vermittlung von Immobilien mit Schwerpunkt in Mallorcas Nordosten an. Wir kennen und lieben diese ursprüngliche Region Mallorcas mit ihren Buchten, Bergen, romantischen und stilvollen Dörfern. Lernen auch Sie Mallorcas Nordosten kennen und lieben! Unser Ziel ist es Ihnen eine optimale Betreuung vom ersten Anruf bis zum Kauf zu bieten. Bei uns zählen Werte wie Zuverlässigkeit, Hingabe, Aufrichtigkeit & Genauigkeit. Wir leben nach diesen. Für Sie streben wir eine persönliche und optimale Betreuung an. Nehmen Sie uns beim Wort! Gemeinsam mit Ihnen möchten wir Ihre Vorstellungen umsetzen und Ihre Ziele erreichen. Ihre Interessen werden wir mit größtem Engagement verfolgen. Wir sind Dienstleister mit Freude am Beruf und werden für Sie den Kauf oder Verkauf einer Immobilie zu einem äußerst zufriedenstellenden Abschluss bringen. Ihre Sirpa & Jana Goschler
Anbieter kontaktieren

AGB, Datenschutz & Verbraucherhinweis wurden gelesen und akzeptiert.