Angebot 6800 von 17156

Anbieter kontaktieren

AGB, Datenschutz & Verbraucherhinweis wurden gelesen und akzeptiert.

Balearic Properties Real Estate S.L.

Bild/Logo: Balearic  Properties
Balearic Properties
07460 Pollença
  • Mehr erfahren
bellevue.de-ID: 30593121

Finca mit Meerblick zum Renovieren kaufen in der Nähe von Puerto Andratx im Südwesten Mallorcas

  • Haus
  • · 190 m² Wohnfläche
  • · 20.748 m² Grundstücksfläche
  • · 2.000.000 € Kaufpreis
Anbieter kontaktieren

Objektbeschreibung

Wir freuen uns, diese bemerkenswerte Finca in Puerto Andratx zum Verkauf anbieten zu können. Auf einem Grundstück von über 20.000 m² in den friedlichen Wäldern von Puerto Andratx und nur sechs Minuten vom lebhaften Hafen entfernt bietet sie völlige ...mehr lesen
Wir freuen uns, diese bemerkenswerte Finca in Puerto Andratx zum Verkauf anbieten zu können. Auf einem Grundstück von über 20.000 m² in den friedlichen Wäldern von Puerto Andratx und nur sechs Minuten vom lebhaften Hafen entfernt bietet sie völlige Abgeschiedenheit und eine beruhigende Atmosphäre, ideal für alle, die abschalten möchten.

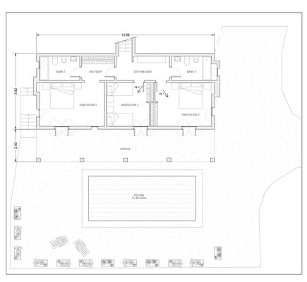
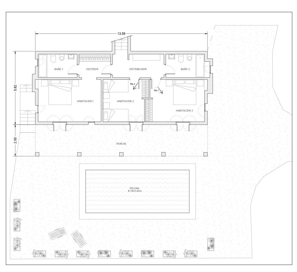
Dieses sonnige, nach Süden ausgerichtete Haus wurde sorgfältig entworfen und verfügt über drei geräumige Schlafzimmer und zwei Badezimmer sowie ein Gäste-WC im Erdgeschoss. Durch den nahtlosen Übergang zwischen Innen- und Außenbereich ist die Residenz so gestaltet, dass sie die umliegende Landschaft und das natürliche Licht einfängt.

Im Außenbereich befindet sich ein großzügiger Swimmingpool mit Liegewiese, ein einladender Ort zum Entspannen, und Panoramablicke, die bis zum Yachthafen reichen, tragen zum einzigartigen Charme der Finca bei.

Zum Anwesen gehören auch zwei kleine Nebengebäude mit jeweils ca. 25 m², die die Möglichkeit bieten, zusätzliche Gästeunterkünfte zu schaffen. Eines dieser Gebäude muss komplett renoviert werden.

Port d’Andratx, einer der besten und spektakulärsten Naturhäfen Mallorcas, zeichnet sich nicht nur durch verschiedene Sandstrände wie Cala Llamp, Cala Egos und Cala Moragues aus, sondern auch durch außergewöhnlich ultra-moderne Luxusimmobilien. Der Segel Club ist einer der besten auf den Balearen. Im Dock können Sie täglich immer frischen Fisch kaufen. Entlang der Küste können Sie einen Spaziergang Genießen, dabei die Geschäfte oder exquisite Restaurants mit Terrassen und herrlichem Meerblick besuchen.

Für weitere Informationen kontaktieren Sie bitte BALEARIC PROPERTIES ESTATE AGENTS MALLORCA per e-Mail oder rufen Sie unser Büro in Puerto Portals an (+34) 971 68 40 00 - Weitere Einzelheiten zu anderen Villen zu kaufen in Puerto Andratx oder mehr zum Thema Haus kaufen in Puerto Andratx.

"Balearic Properties ist seit vielen, vielen Jahren auf den Balearen geschäftlich aktiv. Der Hauptsitz des Unternehmens befindet sich auf Mallorca. Im Laufe der Jahre haben wir ein beispielloses Immobilienportfolio passend zu jedem Budget aufgebaut, dadurch haben wir bereits 10.000 Kunden bei der Suche nach ihrem neuen Zuhause auf den Balearen erfolgreich geholfen. Unsere Team für Projektleitung und unser Bauunternehmen bieten eine einmalige Auswahl an schlüsselfertigen Luxusvillen an, angepasst an allen individuellen und persönlichen Bedürfnissen. Wir bieten auch über 200 Ferienvillen an, die unseren Kunden ein unvergessliches Urlaubserlebnis garantieren.

Balearic Properties ist der exklusive Partner von Savills auf Mallorca. Das Unternehmen bietet seinen Kunden eine über 20-jährige Erfahrung auf dem hiesigen Immobilienmarkt. Unser Portfolio umfasst alle Arten von modernen Villen, Landhäusern und trendigen Bauvorhaben in den besten Wohnlagen von Mallorca. Balearic Properties ist auch spezialisiert auf Immobilien am Wasser und große Anwesen. Das Unternehmen bietet einen kompletten, umfassenden Immobilienservice einschließlich Immobilienverwaltung, Ferienvermietung, Projektmanagement und Rechtsberatung."

Immobiliendetails

  • Nutzungsart
    Wohnen
  • Objektart
    Finca
  • Hauptobjektart
    Haus
  • Vertragsart
    Kauf
  • Objektzustand
    Sanierungsbedürftig
  • Baujahr
    1970
  • Anzahl Schlafzimmer
    3
  • Anzahl Badezimmer
    2
  • Wohnfläche (ca.)
    190 m²
  • Grundstücksfläche (ca.)
    20.748 m²
  • Nutzfläche (ca.)
    237 m²
  • Anzahl Etagen
    2
  • Ausblick
    Meer
  • Anbieter-Objektnummer
    SWOPTA41019RM

Preise & Kosten

  • Courtage
    Keine besondere Angabe.

Ausstattung

  • Kamin
  • Klimanalage
  • Swimmingpool
  • Garten

Standort & Lage

07157 Puerto Andratx · Andratx · ESP

Die genaue Anschrift erfahren Sie vom Anbieter

Anbieter

Logo von Balearic Properties Real Estate S.L.
2025 Best Property Agents

Ansprechpartner

Verbraucherhinweis

Widerrufsbelehrung des Anbieters

Gilt nicht für Wohnraummiete in Deutschland

Widerrufsrecht für Verbraucher

Sie haben das Recht, binnen vierzehn Tagen ohne Angabe von Gründen diesen Vertrag zu widerrufen. Die Widerrufsfrist beträgt vierzehn Tage ab dem Tag des Vertragsabschlusses.

Um Ihr Widerrufsrecht auszuüben, müssen Sie uns (Balearic Properties Real Estate S.L., Via Pollentia 3, 07460 Pollença, Fax: 0034-971534506, Tel: 0034-971532984, caroline@balearic-properties.com) mittels einer eindeutigen Erklärung (z. B. ein mit der Post versandter Brief, Telefax oder E-Mail) über Ihren Entschluss, diesen Vertrag zu widerrufen, informieren. Sie können dafür das beigefügte Muster-Widerrufsformular verwenden, das jedoch nicht vorgeschrieben ist. Zur Wahrung der Widerrufsfrist reicht es aus, dass Sie die Mitteilung über die Ausübung des Widerrufsrechts vor Ablauf der Widerrufsfrist absenden.

Folgen des Widerrufs

Wenn Sie diesen Vertrag widerrufen, haben wir Ihnen alle Zahlungen, die wir von Ihnen erhalten haben, einschließlich der Lieferkosten (mit Ausnahme der zusätzlichen Kosten, die sich daraus ergeben, dass Sie eine andere Art der Lieferung als die von uns angebotene, günstigste Standardlieferung gewählt haben), unverzüglich und spätestens binnen vierzehn Tagen ab dem Tag zurückzuzahlen, an dem die Mitteilung über Ihren Widerruf dieses Vertrags bei uns eingegangen ist. Für diese Rückzahlung verwenden wir dasselbe Zahlungsmittel, das Sie bei der ursprünglichen Transaktion eingesetzt haben, es sei denn, mit Ihnen wurde ausdrücklich etwas anderes vereinbart; in keinem Fall werden Ihnen wegen dieser Rückzahlung Entgelte berechnet. Haben Sie verlangt, dass die Dienstleistungen während der Widerrufsfrist beginnen soll, so haben Sie uns einen angemessenen Betrag zu zahlen, der dem Anteil der bis zu dem Zeitpunkt, zu dem Sie uns von der Ausübung des Widerrufsrechts hinsichtlich dieses Vertrags unterrichten, bereits erbrachten Dienstleistungen im Vergleich zum Gesamtumfang der im Vertrag vorgesehenen Dienstleistungen entspricht.

Muster-Widerrufsformular

(Wenn Sie den Vertrag widerrufen wollen, dann füllen Sie dieses Formular aus und senden Sie es zurück.)

An Balearic Properties Real Estate S.L., Via Pollentia 3, 07460 Pollença, Fax: 0034-971534506, caroline@balearic-properties.com
Hiermit widerrufe(n) ich/wir (*) den von mir/uns (*) abgeschlossenen Vertrag über den Kauf der folgenden Waren (*)/die Erbringung der folgenden Dienstleistung (*)


- Bestellt am (*)/erhalten am (*)

- Name des/der Verbraucher(s)

- Anschrift des/der Verbraucher(s)

- Unterschrift des/der Verbraucher(s) (nur bei Mitteilung auf Papier)
- Datum


(*) Unzutreffendes streichen

Hinweis auf die Möglichkeit eines vorzeitigen Erlöschens des Widerrufsrechts

Ihr Widerrufsrecht erlischt, wenn wir unsere Leistung vollständig erbracht haben und mit der Ausführung der Leistung erst begonnen haben, nachdem Sie Ihre ausdrückliche Zustimmung gegeben haben und gleichzeitig Ihre Kenntnis davon bestätigt haben, dass Sie Ihr Widerrufsrecht bei vollständiger Vertragserfüllung durch uns verlieren.

Impressum Balearic Properties Real Estate S.L.
VERTRETUNGSBERECHTIGTE/R
Balearic Properties Team


Via Pollentia 3 3
07460 Pollença
ESP
Tel.: 0034-971532984
E-Mail: caroline@balearic-properties.com
Fax: 0034-971534506
Homepage: http://www.balearic-properties.com

ZUSTÄNDIGE AUFSICHTSBEHÖRDE
Amtsgericht Palma de Mallorca

HANDELSREGISTER-EINTRAG
Amtsgericht Palma de Mallorca, Mallorca 3 Mercantil, 1/2006/6.386,0


UST-ID-NUMMER
CIF: B57416752

ZUSÄTZLICHER TEXT
Verbraucherinformationen Online-Streitbeilegung gemäß Art. 14 Abs. 1 ODR-VO: Die Europäische Kommission stellt eine Plattform zur Online-Streitbeilegung (OS) bereit, die Sie hier finden: http://ec.europa.eu/consumers/odr
Anbieter kontaktieren

AGB, Datenschutz & Verbraucherhinweis wurden gelesen und akzeptiert.