Angebot 9865 von 16961

Anbieter kontaktieren

AGB, Datenschutz & Verbraucherhinweis wurden gelesen und akzeptiert.

Reker Immobilien d.o.o.

Bild/Logo: Heiner Reker
Heiner Reker
22211 Vodice
  • Mehr erfahren
bellevue.de-ID: 30592389

Erdgeschosswohnung mit 2 Schlafzimmern, 2 Bädern & privatem Garten

  • Wohnung
  • · 3 Zimmer
  • · 92 m² Wohnfläche
  • · 363.909 € Kaufpreis
Anbieter kontaktieren

Objektbeschreibung

Diese Wohnung vereint Funktion und Komfort: alles auf einer Ebene, zwei Bäder, keine Treppen, ein Garten nur für Sie. Ideal für Menschen, die barrierefreies Wohnen und viel Außenraum schätzen.

Immobiliendetails

  • Nutzungsart
    Wohnen
  • Objektart
    Erdgeschosswohnung
  • Hauptobjektart
    Wohnung
  • Vertragsart
    Kauf
  • Objektzustand
    Erstbezug
  • Baujahr
    2026
  • Zimmer (gesamt)
    3
  • Anzahl Schlafzimmer
    2
  • Anzahl Badezimmer
    2
  • Anzahl Parkflächen
    1
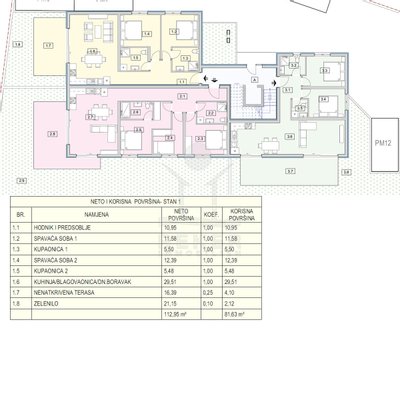
  • Wohnfläche (ca.)
    91,8 m²
  • Gartenfläche (ca.)
    21,15 m²
  • Anzahl Terrassen
    1
  • Freier Stellplatz
    1
  • Stellplatzart
    Freiplatz
  • Anzahl Etagen
    1
  • Ausrichtung
    Südost
  • Anbieter-Objektnummer
    9082

Preise & Kosten

  • Courtage
    3,75 % inklusive der gesetzlichen Mehrwertsteuer

Energie

  • Heizungsart
    Fussbodenheizung

Standort & Lage

Dieses Haus steht dort, wo viele gerne wären: fast direkt am Meer. Keine 100 Meter bis zum Strand. Die Umgebung ruhig, die Straße führt direkt zum Meer. Und trotzdem: Restaurants, Supermarkt, alles ist schnell erreicht. Das Zentrum ist nicht weit, ...mehr lesen
Dieses Haus steht dort, wo viele gerne wären: fast direkt am Meer. Keine 100 Meter bis zum Strand. Die Umgebung ruhig, die Straße führt direkt zum Meer. Und trotzdem: Restaurants, Supermarkt, alles ist schnell erreicht. Das Zentrum ist nicht weit, ein kleiner Spaziergang genügt. Ideal, wenn man seine Ruhe will, aber nicht abseits wohnen möchte.

Das Gebäude hat acht Wohnungen, verteilt auf drei Etagen und ein Flachdach. Im Erdgeschoss gibt’s Gärten, ab dem ersten Stock freie Sicht aufs Meer. Modernes Design, klare Linien, helle Fassade. Die oberen Wohnungen mit Balkon, ganz oben sogar mit großer Dachterrasse. Jeder Wohneinheit ist ein Parkplatz zugeordnet. Fertigstellung ist für Herbst 2026 geplant.

22211 Vodice · Vodice · HRV

Die genaue Anschrift erfahren Sie vom Anbieter

Anbieter

Logo von Reker Immobilien d.o.o.
2026 Best Property Agents
Verbraucherhinweis

Widerrufsbelehrung des Anbieters

(Gilt nicht für Wohnraummiete in Deutschland)

Widerrufsrecht für Verbraucher
Sie haben das Recht, binnen vierzehn Tagen ohne Angabe von Gründen diesen Vertrag zu widerrufen. Die Widerrufsfrist beträgt vierzehn Tage ab dem Tag des Vertragsabschlusses.
Um Ihr Widerrufsrecht auszuüben, müssen Sie uns (Reker Immobilien d.o.o., Micin Stanka 28 A, 22211 Vodice, +49 5207 77227, +49 5207 923455, info@reker-immobilien.de) mittels einer eindeutigen Erklärung (z. B. ein mit der Post versandter Brief, Telefax oder E-Mail) über Ihren Entschluss, diesen Vertrag zu widerrufen, informieren. Sie können dafür das beigefügte Muster-Widerrufsformular verwenden, das jedoch nicht vorgeschrieben ist. Zur Wahrung der Widerrufsfrist reicht es aus, dass Sie die Mitteilung über die Ausübung des Widerrufsrechts vor Ablauf der Widerrufsfrist absenden.

Folgen des Widerrufs
Wenn Sie diesen Vertrag widerrufen, haben wir Ihnen alle Zahlungen, die wir von Ihnen erhalten haben, einschließlich der Lieferkosten (mit Ausnahme der zusätzlichen Kosten, die sich daraus ergeben, dass Sie eine andere Art der Lieferung als die von uns angebotene, günstigste Standardlieferung gewählt haben), unverzüglich und spätestens binnen vierzehn Tagen ab dem Tag zurückzuzahlen, an dem die Mitteilung über Ihren Widerruf dieses Vertrags bei uns eingegangen ist. Für diese Rückzahlung verwenden wir dasselbe Zahlungsmittel, das Sie bei der ursprünglichen Transaktion eingesetzt haben, es sei denn, mit Ihnen wurde ausdrücklich etwas anderes vereinbart; in keinem Fall werden Ihnen wegen dieser Rückzahlung Entgelte berechnet. Haben Sie verlangt, dass die Dienstleistungen während der Widerrufsfrist beginnen soll, so haben Sie uns einen angemessenen Betrag zu zahlen, der dem Anteil der bis zu dem Zeitpunkt, zu dem Sie uns von der Ausübung des Widerrufsrechts hinsichtlich dieses Vertrags unterrichten, bereits erbrachten Dienstleistungen im Vergleich zum Gesamtumfang der im Vertrag vorgesehenen Dienstleistungen entspricht.

Muster-Widerrufsformular
(Wenn Sie den Vertrag widerrufen wollen, dann füllen Sie dieses Formular aus und senden Sie es zurück.)

An Reker Immobilien d.o.o., Micin Stanka 28 A, 22211 Vodice, +49 5207 77227, +49 5207 923455, info@reker-immobilien.de

Hiermit widerrufe ich/wir den von mir/uns abgeschlossenen Vertrag über den Kauf der folgenden Waren /die Erbringung der folgenden Dienstleistung


Bestellt am /erhalten am

Name des/der Verbraucher(s)

Anschrift des/der Verbraucher(s)

Unterschrift des/der Verbraucher(s) (nur bei Mitteilung auf Papier)

Datum


( Unzutreffendes streichen )


Hinweis auf die Möglichkeit eines vorzeitigen Erlöschens des Widerrufsrechts

Ihr Widerrufsrecht erlischt, wenn wir unsere Leistung vollständig erbracht haben und mit der Ausführung der Leistung erst begonnen haben, nachdem Sie Ihre ausdrückliche Zustimmung gegeben haben und gleichzeitig Ihre Kenntnis davon bestätigt haben, dass Sie Ihr Widerrufsrecht bei vollständiger Vertragserfüllung durch uns verlieren.

Impressum Reker Immobilien d.o.o.
VERTRETUNGSBERECHTIGTE/R
Heiner Reker


Micin Stanka 28 A
22211 Vodice
HRV
Tel.: +49 5207 77227
E-Mail: info@reker-immobilien.de
Fax: +49 5207 923455
Homepage: https://www.reker-immobilien.de

ZUSTÄNDIGE AUFSICHTSBEHÖRDE
Handelsgericht in Zagreb

HANDELSREGISTER-EINTRAG
081239791
Kroatische Wirtschaftskammer

UST-ID-NUMMER
HR 83 76066 2355
Anbieter kontaktieren

AGB, Datenschutz & Verbraucherhinweis wurden gelesen und akzeptiert.