Angebot 7213 von 17614

Anbieter kontaktieren

AGB, Datenschutz & Verbraucherhinweis wurden gelesen und akzeptiert.

IMMO-TEAM GmbH & Co. KG

Volkan Kacar
70182 Stuttgart
  • Mehr erfahren
bellevue.de-ID: 30591099

Stuttgart-Ost: Projektiertes Grundstück 300 qm Wohnfläche 4-FH möglich!

  • Grundstück
  • · 341 m² Grundstücksfläche
  • · 649.000 € Kaufpreis
Anbieter kontaktieren

Objektbeschreibung

Hier präsentieren wir ein ca. 341 m² großes Hanggrundstück, ideal gelegen in einem etablierten Wohngebiet in Stuttgart-Gablenberg, nur wenige Minuten vom Ortszentrum entfernt. Die Nachbarschaft ist geprägt von gepflegten Ein- bis Zweifamilienhäusern ...mehr lesen
Hier präsentieren wir ein ca. 341 m² großes Hanggrundstück, ideal gelegen in einem etablierten Wohngebiet in Stuttgart-Gablenberg, nur wenige Minuten vom Ortszentrum entfernt. Die Nachbarschaft ist geprägt von gepflegten Ein- bis Zweifamilienhäusern sowie modernen Mehrfamilienhäusern und bietet eine harmonische Mischung aus urbanem Flair und ruhigem Wohnen.

Das geplante Wohngebäude wurde vom renommierten Architekturbüro Ludwig entworfen und verbindet zeitlose Eleganz mit moderner Funktionalität. Die Architektur nutzt die Hanglage optimal aus, um helle, großzügige Räume zu schaffen, die ein offenes und harmonisches Wohngefühl vermitteln. Klare Linien, hochwertige Materialien und große Fensterflächen sorgen für ein Design, das Stil und Wohlfühlatmosphäre vereint.

Projektübersicht:
Das Grundstück ist für den Bau eines modernen Mehrfamilienhauses mit insgesamt vier Wohneinheiten und zwei Carportstellplätzen vorgesehen. Der Bauantrag befindet sich in der Genehmigungsphase und verspricht eine unkomplizierte Realisierung des Projekts.

Wohneinheiten-Aufteilung:
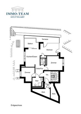
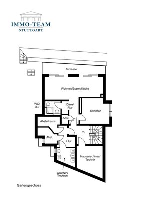
Gartengeschoss:
WHG 01: 2-Zimmer-Wohnung, ca. 62,44 m² Wohnfläche

Erdgeschoss:
WHG 02: 3-Zimmer-Wohnung, ca. 74,25 m² Wohnfläche

Obergeschoss:
WHG 03: 3-Zimmer-Wohnung, ca. 74,36 m² Wohnfläche, barrierefrei gemäß § 35 LBO

Dachgeschoss:
WHG 04: 3-Zimmer-Maisonette-Wohnung über zwei Ebenen, ca. 83,97 m² Wohnfläche

++ Gesamtwohnfläche 295,02 qm ++
++Verkehrsfläche 45,40 qm ++
++Nebenfläche 47,20 qm ++

Immobiliendetails

  • Nutzungsart
    Wohnen
  • Objektart
    Wohngrundstück
  • Hauptobjektart
    Grundstück
  • Vertragsart
    Kauf
  • Grundstücksfläche (ca.)
    341 m²
  • Anbieter-Objektnummer
    11032#SuIhQ

Preise & Kosten

  • Courtage
    4,76% Käufer-Provision inkl. 19% MwSt. vom beurkundeten Kaufpreis, verdient und fällig mit notarieller Beurkundung des Kaufvertrages (§ 652 BGB)

    4,76 % inklusive der gesetzlichen Mehrwertsteuer

Standort & Lage

Im Herzen von Stuttgart-Gablenberg, einem gewachsenen und charmanten Wohngebiet, entsteht dieses exklusive Neubauprojekt am Anna-Blos-Weg. Die ruhige Hanglage in einer Sackgasse bietet ein hohes Maß an Privatsphäre, während die Nähe zur Innenstadt ...mehr lesen
Im Herzen von Stuttgart-Gablenberg, einem gewachsenen und charmanten Wohngebiet, entsteht dieses exklusive Neubauprojekt am Anna-Blos-Weg. Die ruhige Hanglage in einer Sackgasse bietet ein hohes Maß an Privatsphäre, während die Nähe zur Innenstadt den urbanen Lebensstil perfekt ergänzt. Gablenberg zeichnet sich durch seine lebendige Nachbarschaft mit einer Mischung aus modernen und traditionellen Wohnhäusern aus. Einkaufsmöglichkeiten, Cafés, Schulen und öffentliche Verkehrsmittel sind fußläufig erreichbar und schaffen eine ideale Balance zwischen städtischem Komfort und Wohnqualität.

70186 Stuttgart · DEU

Die genaue Anschrift erfahren Sie vom Anbieter

Sonstiges

UNSER SERVICE FÜR SIE ALS EIGENTÜMER:
Planen Sie den Verkauf oder die Vermietung Ihrer Immobilie,
so ist es für Sie wichtig, deren Marktwert zu kennen. Lassen Sie kostenfrei und unverbindlich den aktuellen Wert Ihrer Immobilie professionell durch ...mehr lesen
UNSER SERVICE FÜR SIE ALS EIGENTÜMER:
Planen Sie den Verkauf oder die Vermietung Ihrer Immobilie,
so ist es für Sie wichtig, deren Marktwert zu kennen. Lassen Sie kostenfrei und unverbindlich den aktuellen Wert Ihrer Immobilie professionell durch einen unserer Immobilienspezialisten einschätzen.
Erfahren Sie auch mehr zu unserem Premium-Service professionelles Home-Staging für unsere Immobilienbesitzer unter
0711 128 951 0 - wir freuen uns auf Ihre Kontaktaufnahme!

Sonstiges:
GELDWÄSCHE:
Als Immobilienmaklerunternehmen ist die Immo-Team GmbH & Co.KG nach § 2 Abs. 1 Nr. 14 und § 10 Abs. 3 Geldwäschegesetz (GwG) dazu verpflichtet, bei der Begründung einer Geschäftsbeziehung die Identität des Vertragspartners festzustellen und zu überprüfen. Hierzu ist es erforderlich, dass wir nach § 11 GwG die relevanten Daten Ihres Personalausweises festhalten (wenn Sie als natürliche Person handeln) – beispielsweise mittels einer Kopie. Bei einer juristischen Person benötigen wir eine Kopie des Handelsregisterauszugs, aus welchem der wirtschaftlich Berechtigte hervorgeht. Das Geldwäschegesetz sieht vor, dass der Makler die Kopien bzw. Unterlagen fünf Jahre aufbewahren muss.

PROVISIONSHINWEIS:
Mit der Anfrage bei und Inanspruchnahme der Dienstleistung der Firma Immo-Team GmbH & Co. KG, wird ein Maklervertrag geschlossen. Sofern es durch die Tätigkeit dieser Firma zu einem wirksamen Hauptvertrag mit der Eigentümerseite kommt, hat der Interessent bei Abschluss eines notariellen Kaufvertrages die ortsübliche Provision/Maklercourtage wie im Exposé angegeben an die Immo-Team GmbH & Co.KG gegen Rechnung zu zahlen.

WIDERUFSBELEHRUNG für Verbraucher:
Sie haben das Recht, binnen vierzehn Tagen ohne Angabe von Gründen diesen Vertrag zu widerrufen. Die Widerrufsfrist beträgt vierzehn Tage ab dem Tag des Vertragsabschlusses bzw. nachdem wir Ihre Anfrage per Mail erhalten haben.
Um Ihr Widerrufsrecht auszuüben, müssen Sie uns der Firma Immo-Team GmbH & Co. KG; Gerokstr. 8 in 70188 Stuttgart Tel: 0711 128 951 0, Fax: 0711 128 951 50, info@immo-team.de) mittels einer eindeutigen Erklärung (z. B. ein mit der Post versandter Brief, Telefax oder E-Mail) über Ihren Entschluss, diesen Vertrag zu widerrufen, informieren. Zur Wahrung der Widerrufsfrist reicht es aus, dass Sie die Mitteilung über die Ausübung des Widerrufsrechts vor Ablauf der Widerrufsfrist absenden.

Anbieter

2025 Best Property Agents
Verbraucherhinweis

Widerrufsrecht für Verbraucher Sie haben das Recht, binnen vierzehn Tagen ohne Angabe von Gründen den Maklervertrag zu widerrufen. Die Widerrufsfrist beträgt vierzehn Tage ab dem Tag des Vertragsabschlusses Um Ihr Widerrufsrecht auszuüben, müssen Sie uns ( IMMO-TEAM GmbH & Co. KG, Charlottenstraße 23, 70182 Stuttgart, Fax-Nr.: 0711 12895150, Tel-Nr.: 0711 1289510, info@immo-team.de ) mittels einer eindeutigen Erklärung (z.B. ein mit der Post versandter Brief, Telefax oder E-Mail) über Ihren Entschluss, diesen Vertrag zu widerrufen, informieren. Sie können dafür das untenstehende Muster-Widerrufsformular verwenden, das jedoch nicht vorgeschrieben ist. Zur Wahrung der Widerrufsfrist reicht es aus, dass Sie die Mitteilung über die Ausübung des Widerrufsrechts vor Ablauf der Widerrufsfrist absenden. Muster-Widerrufsformular (Wenn Sie den Maklervertrag widerrufen wollen, dann füllen Sie bitte dieses Formular aus und senden Sie es zurück.) An IMMO-TEAM GmbH & Co. KG Charlottenstraße 23 70182 Stuttgart Fax-Nr.: 0711 12895150 info@immo-team.de Hiermit widerrufe(n) ich/wir(*) den von uns(*) abgeschlossenen Vertrag über den Kauf der folgenden Waren(*)/ die Erbringung der folgenden Dienstleistungen(*) Bestellt am (*) / erhalten am (*) Name des/der Verbraucher(s) Anschrift des/der Verbraucher(s) Unterschrift des/der Verbraucher(s) (nur bei Mitteilung auf Papier) Datum (*) Unzutreffendes streichen Folgen des Widerrufs Wenn Sie diesen Vertrag widerrufen, haben wir Ihnen alle Zahlungen, die wir von Ihnen erhalten haben, einschließlich der Lieferkosten (mit Ausnahme der zusätzlichen Kosten, die sich daraus ergeben, dass Sie eine andere Art der Lieferung als die von uns angebotene, günstigste Standardlieferung gewählt haben), unverzüglich und spätestens binnen vierzehn Tagen ab dem Tag zurückzuzahlen, an dem die Mitteilung über Ihren Widerruf dieses Vertrags bei uns eingegangen ist. Für diese Rückzahlung verwenden wir dasselbe Zahlungsmittel, das Sie bei der ursprünglichen Transaktion eingesetzt haben, es sei denn, mit Ihnen wurde ausdrücklich etwas anderes vereinbart; in keinem Fall werden Ihnen wegen dieser Rückzahlung Entgelte berechnet. Haben Sie verlangt, dass die Dienstleistungen während der Widerrufsfrist beginnen soll, so haben Sie uns einen angemessenen Betrag zu zahlen, der dem Anteil der bis zu dem Zeitpunkt, zu dem Sie uns von der Ausübung des Widerrufsrechts hinsichtlich dieses Vertrags unterrichten, bereits erbrachten Dienstleistungen im Vergleich zum Gesamtumfang der im Vertrag vorgesehenen Dienstleistung entspricht. Hinweis zum vorzeitigen Erlöschen des Widerrufsrechts Ihr Widerrufsrecht erlischt bei einem Vertrag zur Erbringung von Dienstleistungen vorzeitig, wenn wir die Dienstleistung vollständig erbracht haben und mit der Ausführung der Dienstleistung erst begonnen haben, nachdem Sie dazu Ihre ausdrückliche Zustimmung gegeben haben und gleichzeitig Ihre Kenntnis davon bestätigt haben, dass Sie Ihr Widerrufsrecht bei vollständiger Vertragserfüllung durch uns verlieren.

Impressum Immo-Team GmbH & Co. KG
VERTRETUNGSBERECHTIGTE/R
Volkan Kacar, Geschäftsführer


Charlottenstraße 23
70182 Stuttgart
DEU
Tel.: 0711-128 951 0
E-Mail: info@immo-team.de
Fax: 0711-128 951 50
Homepage: https://www.immo-team.de/

ZUSTÄNDIGE AUFSICHTSBEHÖRDE
Berufsaufsichtsbehörde Erlaubnisurkunde gemäß §34 c GewO Amt für öffentliche Ordnung Eberhardstraße 37, 70173 Stuttgart

HANDELSREGISTER-EINTRAG
HRA 725244 – Amtsgericht Stuttgart
Stuttgart

UST-ID-NUMMER
DE271653491

ZUSÄTZLICHER TEXT
Haftungsausschluss: 1. Inhalt des Onlineangebotes Der Site-Betreiber übernimmt keinerlei Gewähr für die Aktualität, Korrektheit, Vollständigkeit oder Qualität der bereitgestellten Informationen. Haftungsansprüche gegen uns, welche sich auf Schäden materieller oder ideeller Art beziehen, die durch die Nutzung oder Nichtnutzung der dargebotenen Informationen bzw. durch die Nutzung fehlerhafter und unvollständiger Informationen verursacht wurden, sind grundsätzlich ausgeschlossen, sofern unsererseits kein nachweislich vorsätzliches oder grob fahrlässiges Verschulden vorliegt. 2. Verweise und Links Wir erklären ausdrücklich, dass zum Zeitpunkt der Linksetzung die entsprechenden verlinkten Seiten frei von illegalen Inhalten waren. Auf die aktuelle und zukünftige Gestaltung, die Inhalte oder die Urheberschaft der gelinkten/verknüpften Seiten hat der Site-Betreiber keinerlei Einfluss. Deshalb distanziert sich der Site-Betreiber hiermit ausdrücklich von allen Inhalten aller gelinkten /verknüpften Seiten, die nach der Linksetzung verändert wurden. Diese Feststellung gilt für alle innerhalb des eigenen Internetangebotes gesetzten Links und Verweise sowie für Fremdeinträge in den von uns eingerichteten Gästebüchern, Diskussionsforen und Mailinglisten. Diese Erklärung gilt für alle auf der Website angezeigten Links und für alle Inhalte der Seiten, zu denen die bei ihr angemeldeten Banner und Links führen. 3. Urheber- und Kennzeichenrecht Der Site-Betreiber ist bestrebt, in allen Publikationen die Urheberrechte der verwendeten Grafiken, Tondokumente, Videosequenzen und Texte zu beachten, von ihr selbst erstellte Grafiken, Tondokumente, Videosequenzen und Texte zu nutzen oder auf lizenzfreie Grafiken, Tondokumente, Videosequenzen und Texte zurückzugreifen. Alle innerhalb des Internetangebotes genannten und ggf. durch Dritte geschützten Marken- und Warenzeichen unterliegen uneingeschränkt den Bestimmungen des jeweils gültigen Kennzeichenrechts und den Besitzrechten der jeweiligen eingetragenen Eigentümer. Allein aufgrund der bloßen Nennung ist nicht der Schluß zu ziehen, dass Markenzeichen nicht durch Rechte Dritter geschützt sind! Das Copyright für veröffentlichte, vom Site-Betreiber selbst erstellte Objekte bleibt allein beim Site-Betreiber. Eine Vervielfältigung oder Verwendung solcher Grafiken, Tondokumente, Videosequenzen und Texte auch in Auszügen in anderen elektronischen oder gedruckten Publikationen ist ohne ausdrückliche Zustimmung vom Site-Betreiber nicht gestattet. 4. Datenschutz Sofern innerhalb des Internetangebotes die Möglichkeit zur Eingabe persönlicher oder geschäftlicher Daten (Emailadressen, Namen, Anschriften) besteht, so erfolgt die Preisgabe dieser Daten seitens des Nutzers auf ausdrücklich freiwilliger Basis. Die Inanspruchnahme und Bezahlung aller angebotenen Dienste ist – soweit technisch möglich – auch ohne Angabe solcher Daten bzw. unter Angabe der Daten gestattet. Wir behandeln Ihre Daten vertraulich. Diese werden nicht an Dritte weitergegeben. 5. Rechtswirksamkeit dieses Haftungsausschlusses Dieser Haftungsausschluss ist als Teil des Internetangebotes zu betrachten, von dem aus auf diese Seite verwiesen wurde. Sofern Teile oder einzelne Formulierungen dieses Textes der geltenden Rechtslage nicht, nicht mehr oder nicht vollständig entsprechen sollten, bleiben die übrigen Teile des Dokumentes in ihrem Inhalt und ihrer Gültigkeit davon unberührt. 6. Bildnachweis: Alle auf dieser Website aufgeführten Bilder obligen dem Urheberrecht von Immo-Team GmbH & Co KG. Bildquelle für die nicht selbst gemachten Bilder, die uns freundlicherweise zur Verfügung gestellt wurden. Alle Rechte auf Texte und Bilder dieser Website sind urheberrechtlich geschütztes Eigentum. Ein teilweiser Auszug oder eine komplette Übernahme von Texten, und Bildern sind verboten und führen bei Zuwiderhandlung unweigerlich zur Anzeige als Verstoß
Anbieter kontaktieren

AGB, Datenschutz & Verbraucherhinweis wurden gelesen und akzeptiert.