Angebot 8278 von 17618

Anbieter kontaktieren

AGB, Datenschutz & Verbraucherhinweis wurden gelesen und akzeptiert.

Su Casita, S.L.

Monika Hannemann
03177 San Fulgencio (Alicante), Spanien
  • Mehr erfahren
bellevue.de-ID: 30584401

Appartements mit 3 Schlafzimmern und 2 Bädern in abgeschlossener Anlage mit Gemeinschaftspools nur 600 m vom Strand

  • Wohnung
  • · 4 Zimmer
  • · 102 m² Wohnfläche
  • · 365.000 € Kaufpreis
Anbieter kontaktieren

Objektbeschreibung

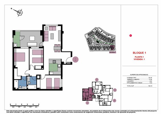
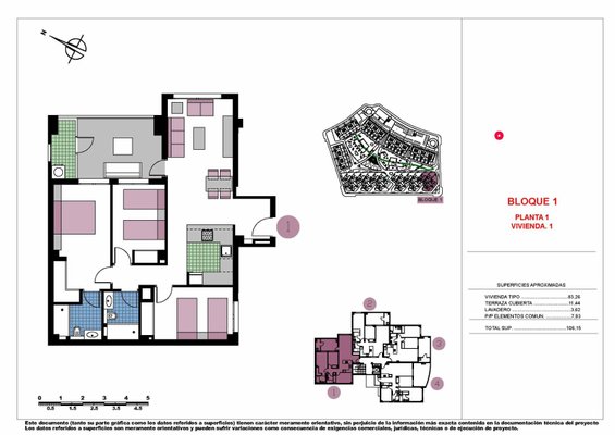
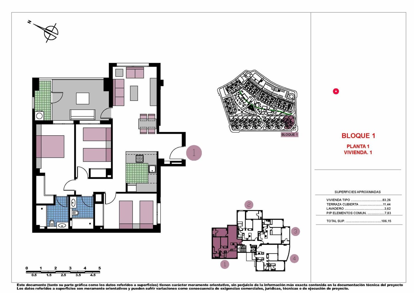
Diese hell und freundlich gestalteten Appartements verfügen über eine konstruierte Fläche von ca. 102 m² - 106 m² (verschiedene Modelle, inklusive Terrassen) mit

3 Schlafzimmern,
2 Bädern (1 en-suite),
1 Wohn-/Esszimmer mit
moderner Einbauküche,
1 ...mehr lesen
Diese hell und freundlich gestalteten Appartements verfügen über eine konstruierte Fläche von ca. 102 m² - 106 m² (verschiedene Modelle, inklusive Terrassen) mit

3 Schlafzimmern,
2 Bädern (1 en-suite),
1 Wohn-/Esszimmer mit
moderner Einbauküche,
1 Hauswirtschaftsraum,
1 Terrasse (ca. 11 m² - 15 m²) und
Anteil am Gemeinschaftsbereich von ca. 7 m² - 8 m².

Diese Wohnanlage besteht aus mehreren Gebäuden in einer sehr schönen Umgebung, erbaut mit erstklassigen Materialien. Die Anlage bietet weitläufige Grünanlagen, Tiefgarage und Gemeinschaftspools für Erwachsene und Kinder.

Die Wohnungen mit 2 oder 3 Schlafzimmern wurden mit exquisitem Geschmack entworfen, wobei auf die Innenausstattung geachtet wurde, immer auf der Suche nach dem größten Komfort für den Kunden. Alle Wohnungen haben großzügige Terrassen und die Penthouse-Wohnungen verfügen zudem über private Dachterrassen.

Immobiliendetails

  • Nutzungsart
    Wohnen
  • Objektart
    Etagenwohnung
  • Hauptobjektart
    Wohnung
  • Vertragsart
    Kauf
  • Objektzustand
    Neubau
  • Zimmer (gesamt)
    4
  • Anzahl Schlafzimmer
    3
  • Anzahl Badezimmer
    2
  • Wohnfläche (ca.)
    102 m²
  • Küche
    Einbauküche (EBK), 1
  • Anzahl Terrassen
    1
  • Ausstattungskategorie
    Gehoben
  • Objektzustand
    Neubau
  • Fußboden
    Fliesen
  • Anbieter-Objektnummer
    HA-MPN-123-A02

Preise & Kosten

  • Courtage
    Unsere Angebote sind für Käufer provisionsfrei!

Ausstattung

  • Swimmingpool
  • Garten
  • Teilmöbliert
Alle Wohnungen verfügen unter anderem über PVC-Fenster mit Doppelverglasung, moderne Einbauküchen mit Induktions-Kochfeld, Backofen und Dunstabzugshaube, Einbauschränke in den Schlafzimmern. Bäder mit Möbeln und Spiegeln, Erzeugung von warmem ...mehr lesen
Alle Wohnungen verfügen unter anderem über PVC-Fenster mit Doppelverglasung, moderne Einbauküchen mit Induktions-Kochfeld, Backofen und Dunstabzugshaube, Einbauschränke in den Schlafzimmern. Bäder mit Möbeln und Spiegeln, Erzeugung von warmem Brauchwasser durch Aerotermia, das erneuerbare und umweltfreundliche Energie liefert, und die Vorinstallation einer Klimaanlage und selbstverständlich sind auch Gemeinschaftspools und in den höheren Gebäuden auch Personenaufzüge vorhanden.

Standort & Lage

Die Anlage befindet sich nur ca. 600 Meter vom sehr schönen Sandstrand von Mil Palmeras entfernt. Der Name leitet sich ab von den vielen Palmen, die man entlang der Promenade, die parallel zum Strand verläuft, findet. Hier gibt es eine große Auswahl ...mehr lesen
Die Anlage befindet sich nur ca. 600 Meter vom sehr schönen Sandstrand von Mil Palmeras entfernt. Der Name leitet sich ab von den vielen Palmen, die man entlang der Promenade, die parallel zum Strand verläuft, findet. Hier gibt es eine große Auswahl an Restaurants, Cafés und kleinen Lädchen und sämtliche weitere Versorgungsmöglichkeiten sind in der näheren Umgebung ebenfalls vorhanden.

Das sportliche Angebot ist groß - hier kann man Wasserski, Paragliding, Segelsport, Angelsport und vieles mehr betreiben, für Golfer sind die Golfplätze von Campo Amor, Las Ramblas und Las Colinas in nur wenigen Minuten erreichbar und Wanderern sowie historisch Interessierten bietet sich ein reizvolles Hinterland. Die größeren Städte Alicante, Murcia und Cartagena mit ihren historischen Gebäuden, einladenden Plazas und vielen Einkaufsmöglichkeiten bieten ebenfalls interessante Ausflugsziele.

03191 Mil Palmeras · Valencia · ESP

Die genaue Anschrift erfahren Sie vom Anbieter

Sonstiges

Der Energieausweis ist in Vorbereitung.

Anbieter

Logo von Su Casita, S.L.
2025 Best Property Agents

Ansprechpartner

Monika Hannemann

Calle Atenas, 59
03177 San Fulgencio (Alicante), Spanien
Verbraucherhinweis

Widerrufsbelehrung des Anbieters

Gilt nicht für Wohnraummiete in Deutschland

Widerrufsrecht für Verbraucher

Sie haben das Recht, binnen vierzehn Tagen ohne Angabe von Gründen diesen Vertrag zu widerrufen. Die Widerrufsfrist beträgt vierzehn Tage ab dem Tag des Vertragsabschlusses.

Um Ihr Widerrufsrecht auszuüben, müssen Sie uns (Su Casita S.L., C./ Bilbao, 42, Urb. La Marina, 03177 San Fulgencio (Alicante), Fax: 0034-966 790 016, Tel: 0034-966 790 012, kontakt@sucasita.eu) mittels einer eindeutigen Erklärung (z. B. ein mit der Post versandter Brief, Telefax oder E-Mail) über Ihren Entschluss, diesen Vertrag zu widerrufen, informieren. Sie können dafür das beigefügte Muster-Widerrufsformular verwenden, das jedoch nicht vorgeschrieben ist. Zur Wahrung der Widerrufsfrist reicht es aus, dass Sie die Mitteilung über die Ausübung des Widerrufsrechts vor Ablauf der Widerrufsfrist absenden.

Folgen des Widerrufs

Wenn Sie diesen Vertrag widerrufen, haben wir Ihnen alle Zahlungen, die wir von Ihnen erhalten haben, einschließlich der Lieferkosten (mit Ausnahme der zusätzlichen Kosten, die sich daraus ergeben, dass Sie eine andere Art der Lieferung als die von uns angebotene, günstigste Standardlieferung gewählt haben), unverzüglich und spätestens binnen vierzehn Tagen ab dem Tag zurückzuzahlen, an dem die Mitteilung über Ihren Widerruf dieses Vertrags bei uns eingegangen ist. Für diese Rückzahlung verwenden wir dasselbe Zahlungsmittel, das Sie bei der ursprünglichen Transaktion eingesetzt haben, es sei denn, mit Ihnen wurde ausdrücklich etwas anderes vereinbart; in keinem Fall werden Ihnen wegen dieser Rückzahlung Entgelte berechnet. Haben Sie verlangt, dass die Dienstleistungen während der Widerrufsfrist beginnen soll, so haben Sie uns einen angemessenen Betrag zu zahlen, der dem Anteil der bis zu dem Zeitpunkt, zu dem Sie uns von der Ausübung des Widerrufsrechts hinsichtlich dieses Vertrags unterrichten, bereits erbrachten Dienstleistungen im Vergleich zum Gesamtumfang der im Vertrag vorgesehenen Dienstleistungen entspricht.

Muster-Widerrufsformular

(Wenn Sie den Vertrag widerrufen wollen, dann füllen Sie dieses Formular aus und senden Sie es zurück.)

An Su Casita S.L., C./ Bilbao, 42, Urb. La Marina, 03177 San Fulgencio (Alicante), Fax: 0034-966 790 016, kontakt@sucasita.eu
Hiermit widerrufe(n) ich/wir (*) den von mir/uns (*) abgeschlossenen Vertrag über den Kauf der folgenden Waren (*)/die Erbringung der folgenden Dienstleistung (*)


- Bestellt am (*)/erhalten am (*)

- Name des/der Verbraucher(s)

- Anschrift des/der Verbraucher(s)

- Unterschrift des/der Verbraucher(s) (nur bei Mitteilung auf Papier)
- Datum


(*) Unzutreffendes streichen

Hinweis auf die Möglichkeit eines vorzeitigen Erlöschens des Widerrufsrechts

Ihr Widerrufsrecht erlischt, wenn wir unsere Leistung vollständig erbracht haben und mit der Ausführung der Leistung erst begonnen haben, nachdem Sie Ihre ausdrückliche Zustimmung gegeben haben und gleichzeitig Ihre Kenntnis davon bestätigt haben, dass Sie Ihr Widerrufsrecht bei vollständiger Vertragserfüllung durch uns verlieren.

Impressum Su Casita S.L.
VERTRETUNGSBERECHTIGTE/R
Jan Hannemann


C./ Bilbao, 42, Urb. La Marina 42
03177 San Fulgencio (Alicante)
ESP
Tel.: 0034-966 790 012
E-Mail: kontakt@sucasita.eu
Fax: 0034-966 790 016
Homepage: http://www.sucasita.eu

ZUSTÄNDIGE AUFSICHTSBEHÖRDE
Registro Mercantil de Alicante, Calle de Eusebio Sempere, 8, Alicante, Spanien

HANDELSREGISTER-EINTRAG
Registergericht: Registro Mercantil de Alicante, Tomo 1.939, Libro 0, Folio 187,


UST-ID-NUMMER
ES B53133054

ZUSÄTZLICHER TEXT
Verbraucherinformationen Online-Streitbeilegung gemäß Art. 14 Abs. 1 ODR-VO: Die Europäische Kommission stellt eine Plattform zur Online-Streitbeilegung (OS) bereit, die Sie hier finden: http://ec.europa.eu/consumers/odr
Anbieter kontaktieren

AGB, Datenschutz & Verbraucherhinweis wurden gelesen und akzeptiert.