Angebot 8523 von 15394

Anbieter kontaktieren

AGB, Datenschutz & Verbraucherhinweis wurden gelesen und akzeptiert.

Su Casita, S.L.

Monika Hannemann
03177 San Fulgencio (Alicante), Spanien
  • Mehr erfahren
bellevue.de-ID: 30582973

Appartements mit 2 Schlafzimmern, 2 Bädern, Fußbodenheizung in Bädern, Klimaanlage und Gemeinschaftspool nur 250 m vom Meer

  • Wohnung
  • · 3 Zimmer
  • · 101 m² Wohnfläche
  • · 569.000 € Kaufpreis
Anbieter kontaktieren

Objektbeschreibung

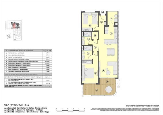
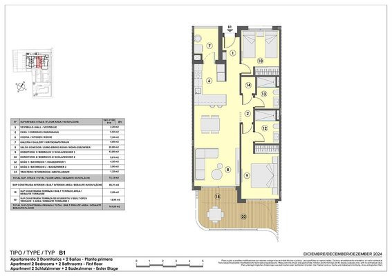
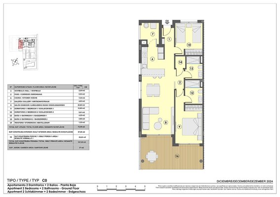
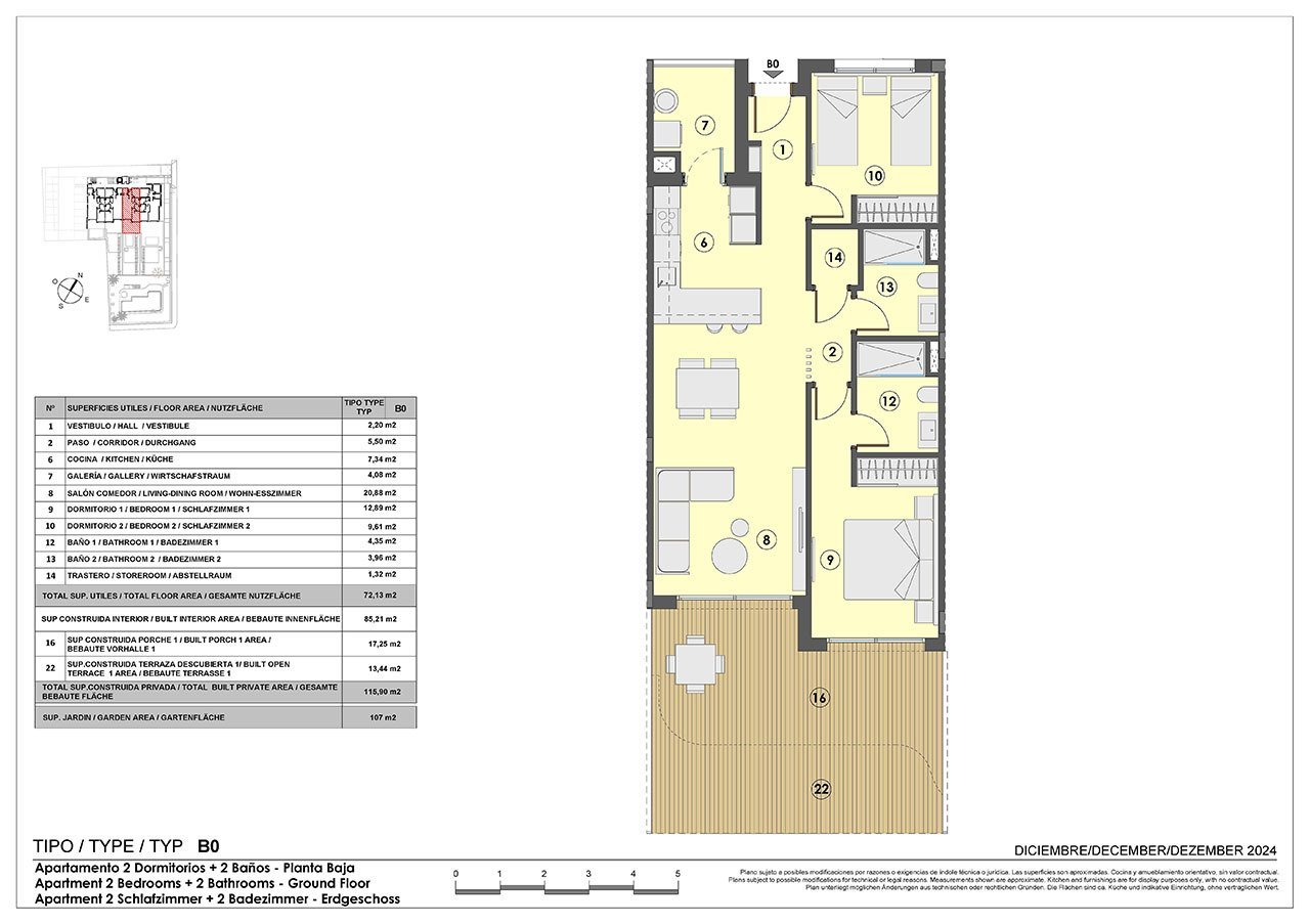
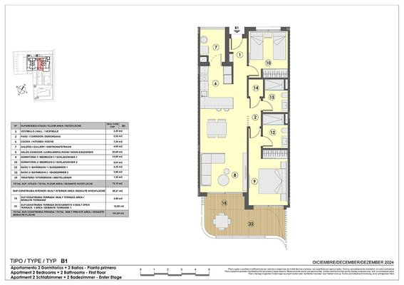
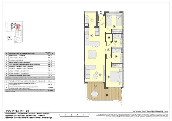
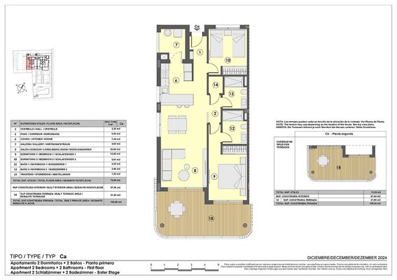
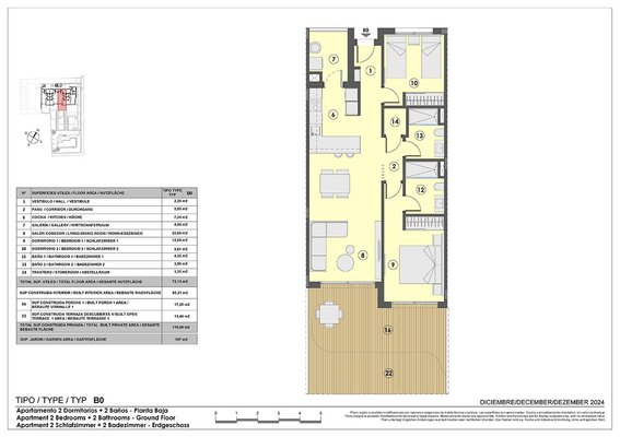
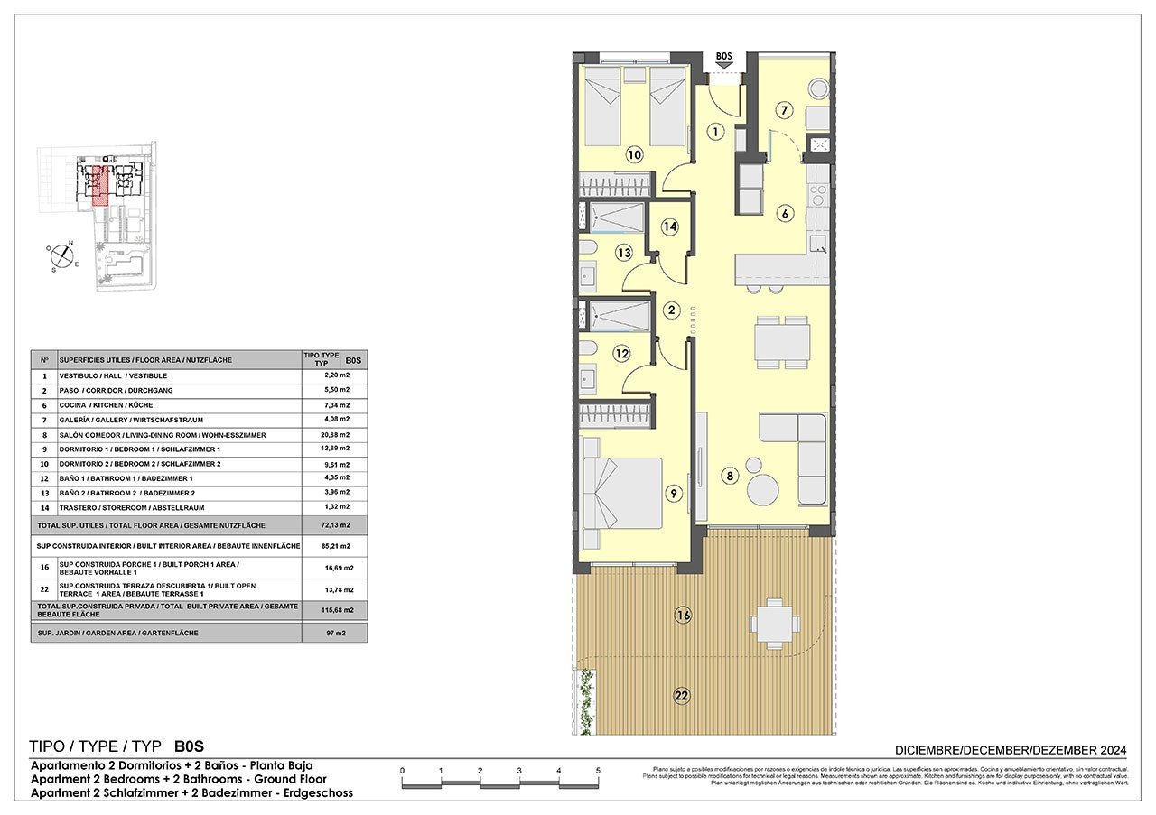
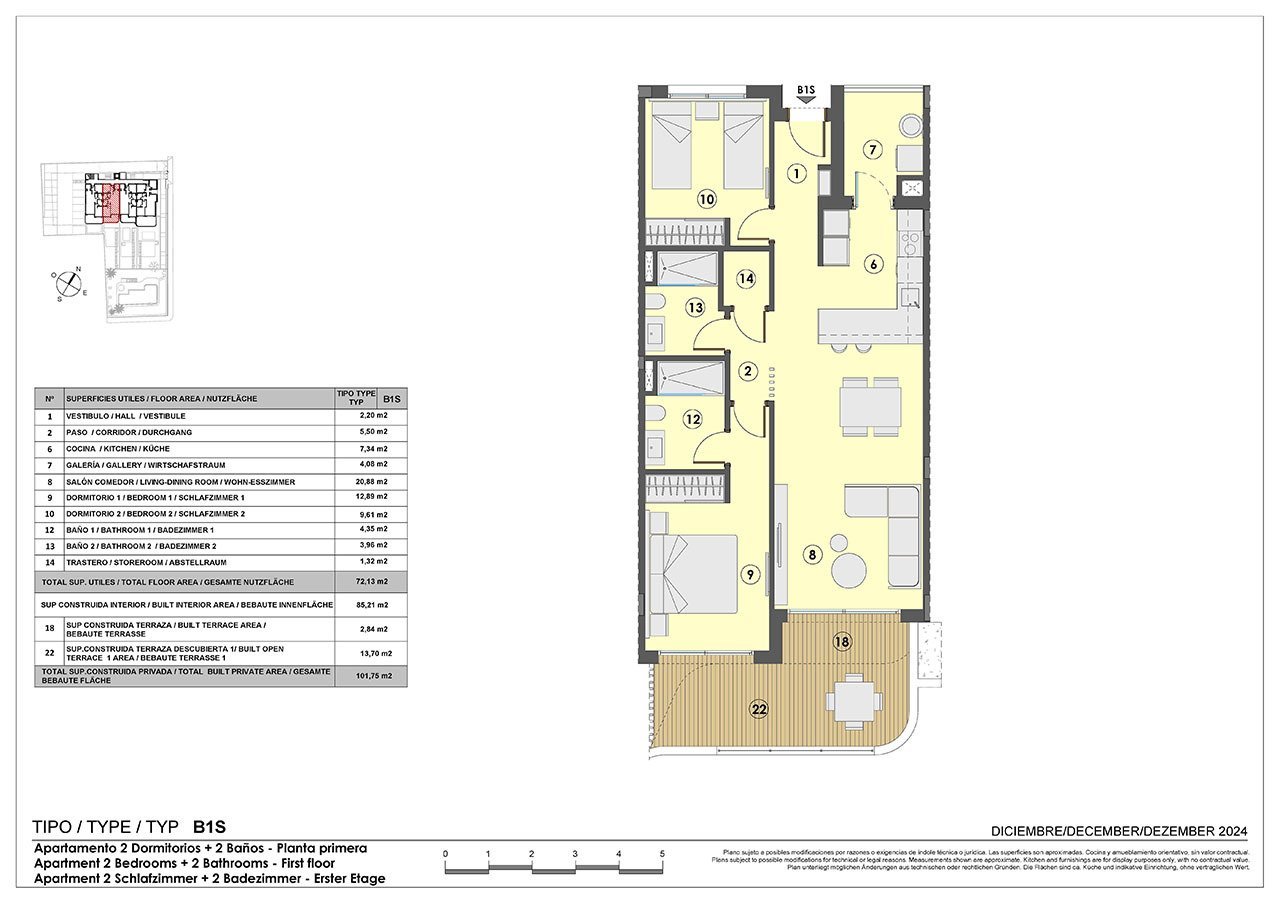
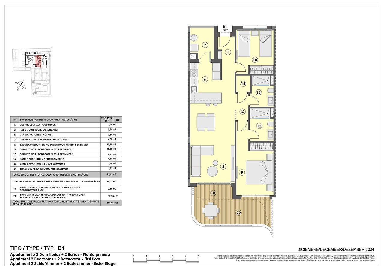
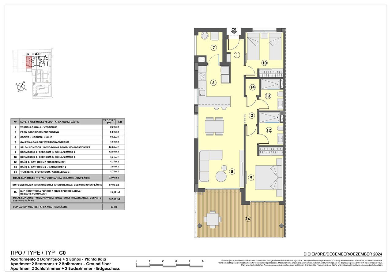
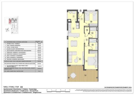
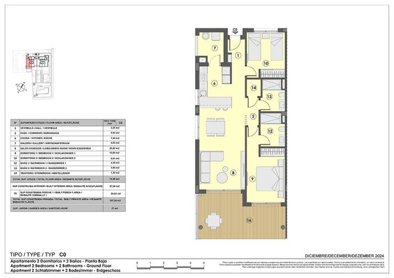
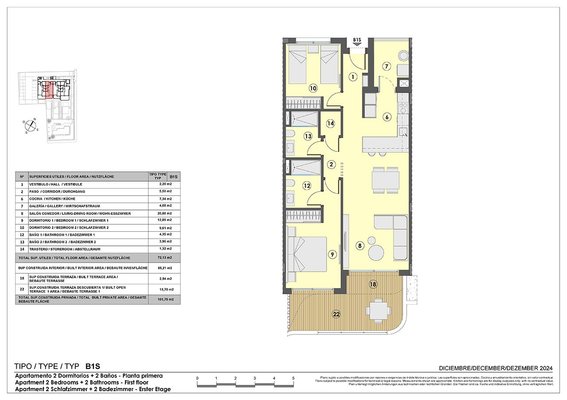
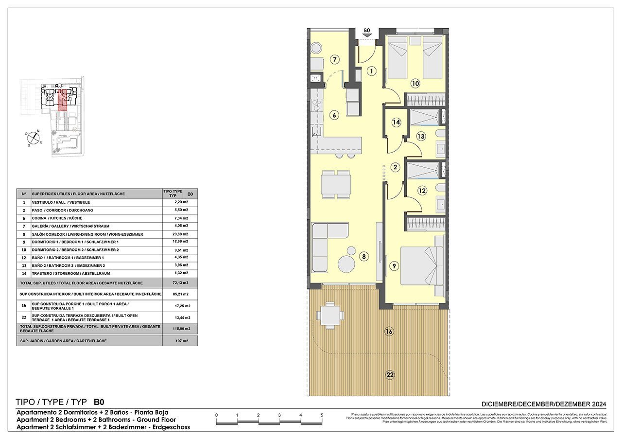
Diese fantastischen Wohnungen verfügen über eine konstruierte Fläche von 101 m² - 115 m² (verschiedene Modelle, inklusive Terrassen) mit

2 Schlafzimmern,
2 Badezimmern (1 en-suite),
1 Wohn-/Esszimmer mit
moderner Einbauküche,
1 Hauswirtschaftsraum und
1 ...mehr lesen
Diese fantastischen Wohnungen verfügen über eine konstruierte Fläche von 101 m² - 115 m² (verschiedene Modelle, inklusive Terrassen) mit

2 Schlafzimmern,
2 Badezimmern (1 en-suite),
1 Wohn-/Esszimmer mit
moderner Einbauküche,
1 Hauswirtschaftsraum und
1 Terrasse (ca. 15 m² - 30 m²).

Diese schöne Wohnanlage befindet sich in Cala Ratjada (Capdepera), nur 250 Meter entfernt von Cala Lliteres in einer einzigartigen beschaulichen Naturumgebung gegenüber dem Park Sa Gravera. Diese Wohnanlage umfasst 14 Wohneinheiten unterschiedlicher Typen: Wohnungen mit Garten oder Terrasse, Penthouse-Wohnungen mit Dachterrasse und Maisonette-Wohnungen mit Dachterrasse. Die Gemeinschaftsbereiche bieten einen herrlichen Swimmingpool mit Liegebereich für Erwachsene und Kinder, einen Whirlpool, Grünanlagen und Stellplätze für Fahrräder und Pkws. Alle Wohnungen sind nach Südosten ausgerichtet und dank ihrer großen Fenster und Terrassentüren sehr hell. Alle Wohneinheiten verfügen über einen Pkw-Stellplatz und einen Abstellraum. Ein Ort, an dem man die Natur und das Meer in ihrer ganzen Pracht erleben kann.

Immobiliendetails

  • Nutzungsart
    Wohnen
  • Objektart
    Etagenwohnung
  • Hauptobjektart
    Wohnung
  • Vertragsart
    Kauf
  • Objektzustand
    Neubau
  • Zimmer (gesamt)
    3
  • Anzahl Schlafzimmer
    2
  • Anzahl Badezimmer
    2
  • Wohnfläche (ca.)
    101 m²
  • Küche
    Einbauküche (EBK), 1
  • Anzahl Terrassen
    1
  • Freier Stellplatz
    1
  • Ausstattungskategorie
    Gehoben
  • Objektzustand
    Neubau
  • Fußboden
    Fliesen
  • Anbieter-Objektnummer
    HA-MLN-164-A01

Preise & Kosten

  • Courtage
    Unsere Angebote sind für Käufer provisionsfrei!

Energie

  • Heizungsart
    Fussbodenheizung
  • Befeuerungsart
    Luft-/Wasserwärme
  • Energieausweis
    Energiebedarfsausweis
  • Energieeffizienzklasse
    B
  • Gebäudeart
    Wohngebäude
  • Wesentlicher Energieträger
    Strom
  • Ausgestellt
    nach dem 1.5.2014

Ausstattung

  • Personenaufzug
  • Klimanalage
  • Swimmingpool
  • Garten
  • Teilmöbliert
  • Fußbodenheizung
Die hochwertige Ausstattung der Wohneinheiten beinhaltet unter anderem Klimaanlage, PVC-Fenster und -türen mit Doppelverglasung, elektrische Rollläden, Sicherheitstüren, Einbauküchen mit Ober- und Unterschränken und Dunstabzugshaube (Elektrogeräte ...mehr lesen
Die hochwertige Ausstattung der Wohneinheiten beinhaltet unter anderem Klimaanlage, PVC-Fenster und -türen mit Doppelverglasung, elektrische Rollläden, Sicherheitstüren, Einbauküchen mit Ober- und Unterschränken und Dunstabzugshaube (Elektrogeräte optional), Einbauschränke in den Schlafzimmern und erstklassige Sanitärobjekte sowie Badmöbel, -spiegel, Duschwand und Fußbodenheizung in den Bädern, bei den Wohneinheiten mit 3 Schlafzimmern Fußbodenheizung in der gesamten Immobilie. Auf den Dachterrassen werden eine Außendusche und ein Unterschrank installiert. Sämtliche Wohneinheiten verfügen außerdem über einen Außen- und/oder Tiefgaragenstellplatz.

Gegen Aufpreis auch bezugsfertige Übergabe - die Objekte werden also komplett neu eingerichtet mit Möbeln, einer Einbauküche mit E-Geräten und einer Grundausstattung an Küchen Groß- und Kleininventar (Waschmaschine, Kaffeemaschine, Bügeleisen Töpfe, Porzellan, Besteck etc.) sowie Bettwäsche, Handtüchern, Lampen und Vorhängen und sind somit sofort bewohnbar. Der Stil der Einrichtung ist wählbar.

Standort & Lage

Dieser Wohnkomplex wartet mit einer spektakulären Lage auf und ist nur 250 Meter von Cala Lliteres, 700 Meter von Cala Agulla und weniger als 1000 Meter von Cala Gat und dem Yachthafen von Cala Ratjada entfernt. Außerdem gibt es in der Nähe mehrere ...mehr lesen
Dieser Wohnkomplex wartet mit einer spektakulären Lage auf und ist nur 250 Meter von Cala Lliteres, 700 Meter von Cala Agulla und weniger als 1000 Meter von Cala Gat und dem Yachthafen von Cala Ratjada entfernt. Außerdem gibt es in der Nähe mehrere Badestrände mit kristallklarem Wasser, wie Platja Na Ferradura, Platja Son Moll und Platja Ses Cavesses. Gegenüber der Wohnanlage befindet sich der Park Sa Gravera mit vielen Bäumen und einem großen Kinderspielplatz.

Von der Wohnanlage ist die Gemeinde Capdepera mit dem Auto in nur 5 Minuten zu erreichen. Zu den berühmten Höhlen von Artà sind es nur 10 Minuten. Capdepera und Artà sind zwei geschichtsträchtige Dörfer mit zahlreichen Sehenswürdigkeiten. Cala Lliteres bietet darüber hinaus umfangreiche Dienstleistungen, wie Restaurants, Cafés, Supermärkte, Geschäfte und Apotheken - also alles, was Sie für das tägliche Leben brauchen.

Im Gebiet von Cala Lliteres gibt es mehrere Golfplätze, die mit dem Auto bequem in 10 bis 20 Minuten zu erreichen sind: Capdepera Golf, Canyamel Golf und Golf Son Servera. Wenn Sie sich lieber an der Küste aufhalten, empfehlen wir Ihnen einen Spaziergang im Fischerhafen von Cala Ratjada, dem farbenprächtigsten Ort von Capdepera, der die Fischfangtradition Mallorcas auch heute noch bewahrt.

07590 Cala Ratjada · Mallorca · ESP

Die genaue Anschrift erfahren Sie vom Anbieter

Anbieter

Logo von Su Casita, S.L.
2026 Best Property Agents

Ansprechpartner

Monika Hannemann

Calle Atenas, 59
03177 San Fulgencio (Alicante), Spanien
Verbraucherhinweis

Widerrufsbelehrung des Anbieters

Gilt nicht für Wohnraummiete in Deutschland

Widerrufsrecht für Verbraucher

Sie haben das Recht, binnen vierzehn Tagen ohne Angabe von Gründen diesen Vertrag zu widerrufen. Die Widerrufsfrist beträgt vierzehn Tage ab dem Tag des Vertragsabschlusses.

Um Ihr Widerrufsrecht auszuüben, müssen Sie uns (Su Casita S.L., C./ Bilbao, 42, Urb. La Marina, 03177 San Fulgencio (Alicante), Fax: 0034-966 790 016, Tel: 0034-966 790 012, kontakt@sucasita.eu) mittels einer eindeutigen Erklärung (z. B. ein mit der Post versandter Brief, Telefax oder E-Mail) über Ihren Entschluss, diesen Vertrag zu widerrufen, informieren. Sie können dafür das beigefügte Muster-Widerrufsformular verwenden, das jedoch nicht vorgeschrieben ist. Zur Wahrung der Widerrufsfrist reicht es aus, dass Sie die Mitteilung über die Ausübung des Widerrufsrechts vor Ablauf der Widerrufsfrist absenden.

Folgen des Widerrufs

Wenn Sie diesen Vertrag widerrufen, haben wir Ihnen alle Zahlungen, die wir von Ihnen erhalten haben, einschließlich der Lieferkosten (mit Ausnahme der zusätzlichen Kosten, die sich daraus ergeben, dass Sie eine andere Art der Lieferung als die von uns angebotene, günstigste Standardlieferung gewählt haben), unverzüglich und spätestens binnen vierzehn Tagen ab dem Tag zurückzuzahlen, an dem die Mitteilung über Ihren Widerruf dieses Vertrags bei uns eingegangen ist. Für diese Rückzahlung verwenden wir dasselbe Zahlungsmittel, das Sie bei der ursprünglichen Transaktion eingesetzt haben, es sei denn, mit Ihnen wurde ausdrücklich etwas anderes vereinbart; in keinem Fall werden Ihnen wegen dieser Rückzahlung Entgelte berechnet. Haben Sie verlangt, dass die Dienstleistungen während der Widerrufsfrist beginnen soll, so haben Sie uns einen angemessenen Betrag zu zahlen, der dem Anteil der bis zu dem Zeitpunkt, zu dem Sie uns von der Ausübung des Widerrufsrechts hinsichtlich dieses Vertrags unterrichten, bereits erbrachten Dienstleistungen im Vergleich zum Gesamtumfang der im Vertrag vorgesehenen Dienstleistungen entspricht.

Muster-Widerrufsformular

(Wenn Sie den Vertrag widerrufen wollen, dann füllen Sie dieses Formular aus und senden Sie es zurück.)

An Su Casita S.L., C./ Bilbao, 42, Urb. La Marina, 03177 San Fulgencio (Alicante), Fax: 0034-966 790 016, kontakt@sucasita.eu
Hiermit widerrufe(n) ich/wir (*) den von mir/uns (*) abgeschlossenen Vertrag über den Kauf der folgenden Waren (*)/die Erbringung der folgenden Dienstleistung (*)


- Bestellt am (*)/erhalten am (*)

- Name des/der Verbraucher(s)

- Anschrift des/der Verbraucher(s)

- Unterschrift des/der Verbraucher(s) (nur bei Mitteilung auf Papier)
- Datum


(*) Unzutreffendes streichen

Hinweis auf die Möglichkeit eines vorzeitigen Erlöschens des Widerrufsrechts

Ihr Widerrufsrecht erlischt, wenn wir unsere Leistung vollständig erbracht haben und mit der Ausführung der Leistung erst begonnen haben, nachdem Sie Ihre ausdrückliche Zustimmung gegeben haben und gleichzeitig Ihre Kenntnis davon bestätigt haben, dass Sie Ihr Widerrufsrecht bei vollständiger Vertragserfüllung durch uns verlieren.

Impressum Su Casita S.L.
VERTRETUNGSBERECHTIGTE/R
Jan Hannemann


C./ Bilbao, 42, Urb. La Marina 42
03177 San Fulgencio (Alicante)
ESP
Tel.: 0034-966 790 012
E-Mail: kontakt@sucasita.eu
Fax: 0034-966 790 016
Homepage: http://www.sucasita.eu

ZUSTÄNDIGE AUFSICHTSBEHÖRDE
Registro Mercantil de Alicante, Calle de Eusebio Sempere, 8, Alicante, Spanien

HANDELSREGISTER-EINTRAG
Registergericht: Registro Mercantil de Alicante, Tomo 1.939, Libro 0, Folio 187,


UST-ID-NUMMER
ES B53133054

ZUSÄTZLICHER TEXT
Verbraucherinformationen Online-Streitbeilegung gemäß Art. 14 Abs. 1 ODR-VO: Die Europäische Kommission stellt eine Plattform zur Online-Streitbeilegung (OS) bereit, die Sie hier finden: http://ec.europa.eu/consumers/odr
Anbieter kontaktieren

AGB, Datenschutz & Verbraucherhinweis wurden gelesen und akzeptiert.