Angebot 8814 von 17612

Anbieter kontaktieren

AGB, Datenschutz & Verbraucherhinweis wurden gelesen und akzeptiert.

Reker Immobilien d.o.o.

Bild/Logo: Heiner Reker
Heiner Reker
22211 Vodice
  • Mehr erfahren
bellevue.de-ID: 30580021

Lieblingsplatz am Meer: mediterraner Neubau mit Stil, Pool & Weitblick

  • Haus
  • · 5 Zimmer
  • · 268 m² Wohnfläche
  • · 622 m² Grundstücksfläche
  • · 1.545.000 € Kaufpreis
Anbieter kontaktieren

Objektbeschreibung

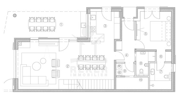
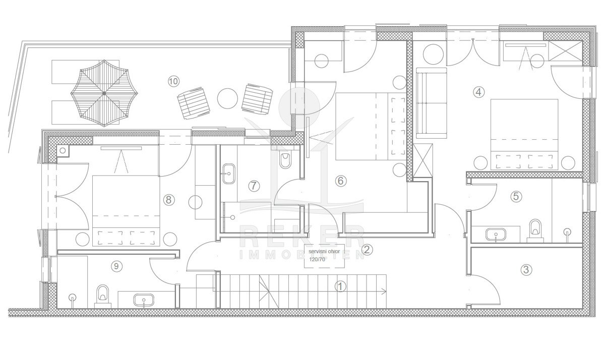
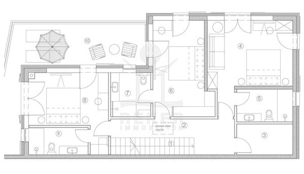
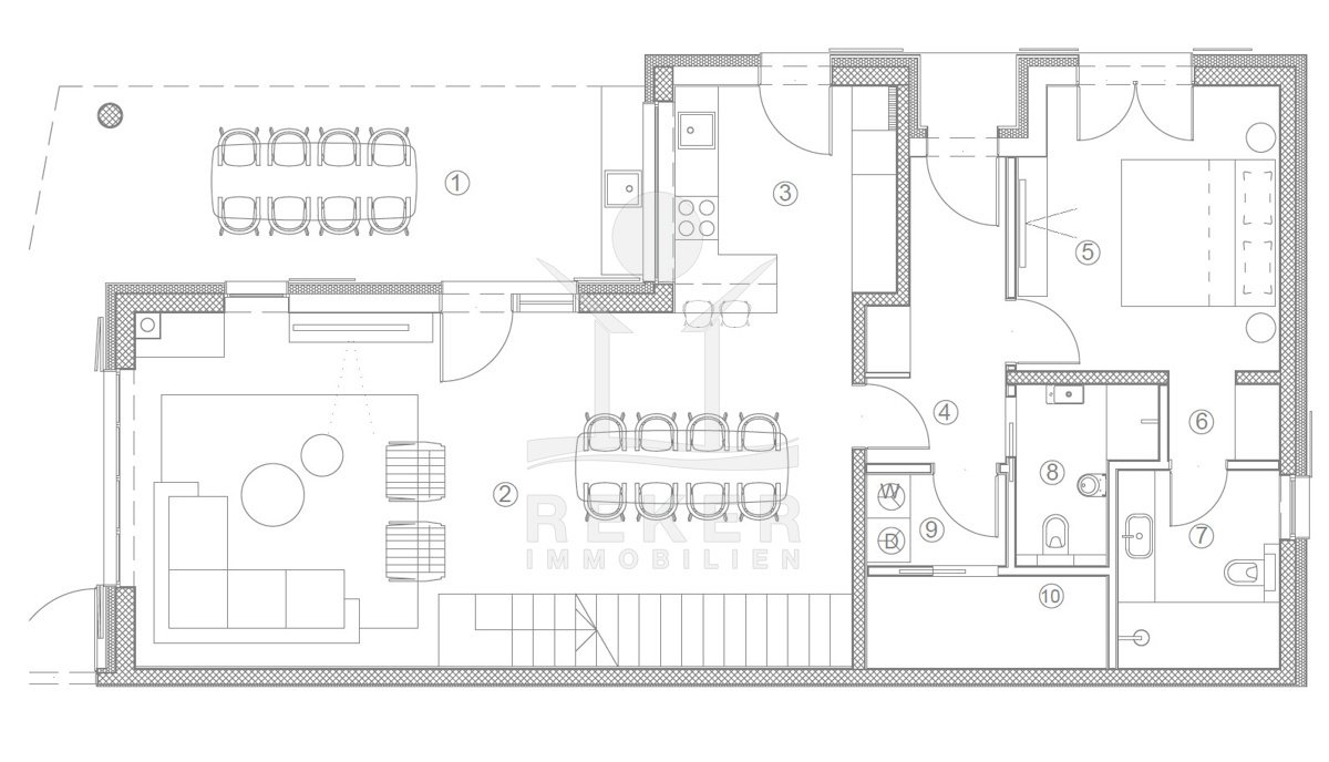
Nur 250 m vom Wasser: Diese stilvolle Doppelhaushälfte bietet Pool, Garten und Meerblick. Der Grundriss überzeugt, die Lage ohnehin. Und bei Ausstattung und Finish dürfen Sie mitentscheiden.

Immobiliendetails

  • Nutzungsart
    Wohnen
  • Objektart
    Doppelhaushälfte
  • Hauptobjektart
    Haus
  • Vertragsart
    Kauf
  • Objektzustand
    Erstbezug
  • Baujahr
    2026
  • Zimmer (gesamt)
    5
  • Anzahl Schlafzimmer
    4
  • Anzahl Badezimmer
    4
  • Anzahl Parkflächen
    4
  • Wohnfläche (ca.)
    268 m²
  • Grundstücksfläche (ca.)
    622 m²
  • Anzahl Terrassen
    1
  • Stellplatzart
    Carport
  • Ausblick
    Meer
  • Ausrichtung
    Südwest
  • Anbieter-Objektnummer
    8638

Preise & Kosten

  • Courtage
    3,75 % inklusive der gesetzlichen Mehrwertsteuer

Ausstattung

  • Möbliert
https://www.reker-immobilien.de/kroatien/doppelhaus-cres-meerblick-neubau_8638?utm_source=ausstattung&utm_medium=txt&utm_campaign=8638
~

Standort & Lage

Nur 300 Meter zum Meer. Ein kurzer Spaziergang – und Sie stehen am Wasser. Das Haus liegt in Martinšćica, auf der Insel Cres. Ruhige Lage, kaum Verkehr. Asphaltierte Zufahrt. Vier Stellplätze direkt vor dem Haus. Die Umgebung? Natürlich. Mediterran. ...mehr lesen
Nur 300 Meter zum Meer. Ein kurzer Spaziergang – und Sie stehen am Wasser. Das Haus liegt in Martinšćica, auf der Insel Cres. Ruhige Lage, kaum Verkehr. Asphaltierte Zufahrt. Vier Stellplätze direkt vor dem Haus. Die Umgebung? Natürlich. Mediterran. Viel Sonne, viel Himmel. Und: Blick aufs Meer.

Das Grundstück ist 622 Quadratmeter groß. Genug Platz für alles, was draußen Spaß macht. Ein Pool ist schon geplant. Daneben eine Terrasse mit 57 Quadratmetern. Perfekt für Liegestuhl und Kaffee. Dazu ein Garten mit 100 Quadratmetern – pflegeleicht, aber schön. Und weil es praktisch sein soll: Es gibt einen Grill und eine kleine Taverne. Für gesellige Abende. Oder einfach Ruhe.

51556 Martinšćica · Cres · HRV

Die genaue Anschrift erfahren Sie vom Anbieter

Anbieter

Logo von Reker Immobilien d.o.o.
2025 Best Property Agents
Verbraucherhinweis

Widerrufsbelehrung des Anbieters

(Gilt nicht für Wohnraummiete in Deutschland)

Widerrufsrecht für Verbraucher
Sie haben das Recht, binnen vierzehn Tagen ohne Angabe von Gründen diesen Vertrag zu widerrufen. Die Widerrufsfrist beträgt vierzehn Tage ab dem Tag des Vertragsabschlusses.
Um Ihr Widerrufsrecht auszuüben, müssen Sie uns (Reker Immobilien d.o.o., Micin Stanka 28 A, 22211 Vodice, +49 5207 77227, +49 5207 923455, info@reker-immobilien.de) mittels einer eindeutigen Erklärung (z. B. ein mit der Post versandter Brief, Telefax oder E-Mail) über Ihren Entschluss, diesen Vertrag zu widerrufen, informieren. Sie können dafür das beigefügte Muster-Widerrufsformular verwenden, das jedoch nicht vorgeschrieben ist. Zur Wahrung der Widerrufsfrist reicht es aus, dass Sie die Mitteilung über die Ausübung des Widerrufsrechts vor Ablauf der Widerrufsfrist absenden.

Folgen des Widerrufs
Wenn Sie diesen Vertrag widerrufen, haben wir Ihnen alle Zahlungen, die wir von Ihnen erhalten haben, einschließlich der Lieferkosten (mit Ausnahme der zusätzlichen Kosten, die sich daraus ergeben, dass Sie eine andere Art der Lieferung als die von uns angebotene, günstigste Standardlieferung gewählt haben), unverzüglich und spätestens binnen vierzehn Tagen ab dem Tag zurückzuzahlen, an dem die Mitteilung über Ihren Widerruf dieses Vertrags bei uns eingegangen ist. Für diese Rückzahlung verwenden wir dasselbe Zahlungsmittel, das Sie bei der ursprünglichen Transaktion eingesetzt haben, es sei denn, mit Ihnen wurde ausdrücklich etwas anderes vereinbart; in keinem Fall werden Ihnen wegen dieser Rückzahlung Entgelte berechnet. Haben Sie verlangt, dass die Dienstleistungen während der Widerrufsfrist beginnen soll, so haben Sie uns einen angemessenen Betrag zu zahlen, der dem Anteil der bis zu dem Zeitpunkt, zu dem Sie uns von der Ausübung des Widerrufsrechts hinsichtlich dieses Vertrags unterrichten, bereits erbrachten Dienstleistungen im Vergleich zum Gesamtumfang der im Vertrag vorgesehenen Dienstleistungen entspricht.

Muster-Widerrufsformular
(Wenn Sie den Vertrag widerrufen wollen, dann füllen Sie dieses Formular aus und senden Sie es zurück.)

An Reker Immobilien d.o.o., Micin Stanka 28 A, 22211 Vodice, +49 5207 77227, +49 5207 923455, info@reker-immobilien.de

Hiermit widerrufe ich/wir den von mir/uns abgeschlossenen Vertrag über den Kauf der folgenden Waren /die Erbringung der folgenden Dienstleistung


Bestellt am /erhalten am

Name des/der Verbraucher(s)

Anschrift des/der Verbraucher(s)

Unterschrift des/der Verbraucher(s) (nur bei Mitteilung auf Papier)

Datum


( Unzutreffendes streichen )


Hinweis auf die Möglichkeit eines vorzeitigen Erlöschens des Widerrufsrechts

Ihr Widerrufsrecht erlischt, wenn wir unsere Leistung vollständig erbracht haben und mit der Ausführung der Leistung erst begonnen haben, nachdem Sie Ihre ausdrückliche Zustimmung gegeben haben und gleichzeitig Ihre Kenntnis davon bestätigt haben, dass Sie Ihr Widerrufsrecht bei vollständiger Vertragserfüllung durch uns verlieren.

Impressum Reker Immobilien d.o.o.
VERTRETUNGSBERECHTIGTE/R
Heiner Reker


Micin Stanka 28 A
22211 Vodice
HRV
Tel.: +49 5207 77227
E-Mail: info@reker-immobilien.de
Fax: +49 5207 923455
Homepage: https://www.reker-immobilien.de

ZUSTÄNDIGE AUFSICHTSBEHÖRDE
Handelsgericht in Zagreb

HANDELSREGISTER-EINTRAG
081239791
Kroatische Wirtschaftskammer

UST-ID-NUMMER
HR 83 76066 2355
Anbieter kontaktieren

AGB, Datenschutz & Verbraucherhinweis wurden gelesen und akzeptiert.