Anbieter kontaktieren
DALEXIS ImmobilienService GmbH
Florian Bauer
82031 Grünwald
- Mehr erfahren
bellevue.de-ID: 30579371
Exklusive 3-Zimmer Gartenwohnung in einem kleinen Mehrfamilienhaus in ruhiger Wohnlage in Solln
- Wohnung
- · 3 Zimmer
- · 130 m² Wohnfläche
- · Preis auf Anfrage
Objektbeschreibung
Willkommen in Solln
Diese exklusive Erdgeschosswohnung in einem modernen Mehrfamilienhaus mit nur drei Wohneinheiten verkörpert stilvolles Wohnen in bester Lage von München. 2015 erbaut, präsentiert sich die Immobilie in neuwertigem Zustand und ...mehr lesen
Diese exklusive Erdgeschosswohnung in einem modernen Mehrfamilienhaus mit nur drei Wohneinheiten verkörpert stilvolles Wohnen in bester Lage von München. 2015 erbaut, präsentiert sich die Immobilie in neuwertigem Zustand und ...mehr lesen
Willkommen in Solln
Diese exklusive Erdgeschosswohnung in einem modernen Mehrfamilienhaus mit nur drei Wohneinheiten verkörpert stilvolles Wohnen in bester Lage von München. 2015 erbaut, präsentiert sich die Immobilie in neuwertigem Zustand und überzeugt durch ihre massive Bauweise.
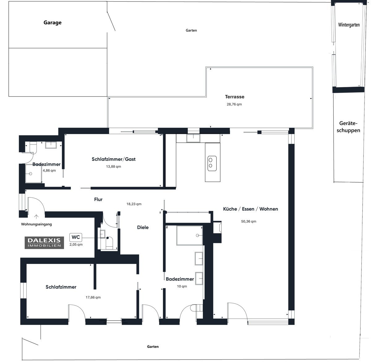
Auf einer großzügigen Wohnfläche von ca. 130 m² erwarten Sie drei geräumige Zimmer, darunter zwei komfortable Schlafzimmer und zwei elegante Badezimmer. Die Wohnung besticht durch qualitativ hochwertige Fliesenböden und ein offenes Raumkonzept, das durch einen gemütlichen Holzkamin ergänzt wird.
Besonderes Augenmerk wurde auf einen großzügigen Wohn-/Ess-Kochbereich mit über 50qm gelegt.
Hervorzuheben ist die barrierefreie Gestaltung der Wohnung, die höchsten Wohnkomfort bietet. Die moderne Küche wird den Ansprüchen ambitionierter Hobbyköche gerecht und schließt direkt an den Wohnbereich an.
Darüber hinaus haben Sie die Möglichkeit, entspannende Stunden im eigenen Garten zu genießen oder auf der sonnigen Terrasse oder windgeschützt im Wintergarten zu verweilen.
Ein besonderes Highlight ist die flexible Einliegerlösung innerhalb der Wohnung, die sich ideal für Gäste, als Kinderbereich, für eine Pflegekraft oder als separates Homeoffice nutzen lässt. mit einer Türe im Flur könnte dieser Bereich abgetrennt werden.
Ein Keller bzw. Hobbyraum mit Tageslicht, Fussbodenheizung bietet zusätzliche Gestaltungs- und Nutzungsmöglichkeiten.
Für Ihr Fahrzeug steht Ihnen eine Einzelgarage mit elektrischem Tor zur Verfügung.
Diese schöne und sofort verfügbare Immobilie bietet ideale Voraussetzungen für ein harmonisches Wohnambiente in einer der begehrtesten Wohnlagen Münchens.
Gerne senden wir Ihnen ein ausführliches Exposé zu und zeigen Ihnen die Wohnung bei einem persönlichen Besichtigungstermin.
Diese exklusive Erdgeschosswohnung in einem modernen Mehrfamilienhaus mit nur drei Wohneinheiten verkörpert stilvolles Wohnen in bester Lage von München. 2015 erbaut, präsentiert sich die Immobilie in neuwertigem Zustand und überzeugt durch ihre massive Bauweise.
Auf einer großzügigen Wohnfläche von ca. 130 m² erwarten Sie drei geräumige Zimmer, darunter zwei komfortable Schlafzimmer und zwei elegante Badezimmer. Die Wohnung besticht durch qualitativ hochwertige Fliesenböden und ein offenes Raumkonzept, das durch einen gemütlichen Holzkamin ergänzt wird.
Besonderes Augenmerk wurde auf einen großzügigen Wohn-/Ess-Kochbereich mit über 50qm gelegt.
Hervorzuheben ist die barrierefreie Gestaltung der Wohnung, die höchsten Wohnkomfort bietet. Die moderne Küche wird den Ansprüchen ambitionierter Hobbyköche gerecht und schließt direkt an den Wohnbereich an.
Darüber hinaus haben Sie die Möglichkeit, entspannende Stunden im eigenen Garten zu genießen oder auf der sonnigen Terrasse oder windgeschützt im Wintergarten zu verweilen.
Ein besonderes Highlight ist die flexible Einliegerlösung innerhalb der Wohnung, die sich ideal für Gäste, als Kinderbereich, für eine Pflegekraft oder als separates Homeoffice nutzen lässt. mit einer Türe im Flur könnte dieser Bereich abgetrennt werden.
Ein Keller bzw. Hobbyraum mit Tageslicht, Fussbodenheizung bietet zusätzliche Gestaltungs- und Nutzungsmöglichkeiten.
Für Ihr Fahrzeug steht Ihnen eine Einzelgarage mit elektrischem Tor zur Verfügung.
Diese schöne und sofort verfügbare Immobilie bietet ideale Voraussetzungen für ein harmonisches Wohnambiente in einer der begehrtesten Wohnlagen Münchens.
Gerne senden wir Ihnen ein ausführliches Exposé zu und zeigen Ihnen die Wohnung bei einem persönlichen Besichtigungstermin.
Immobiliendetails
-
NutzungsartWohnen
-
ObjektartErdgeschosswohnung
-
HauptobjektartWohnung
-
VertragsartKauf
-
ObjektzustandNeuwertig
-
Baujahr2015
-
Zimmer (gesamt)3
-
Anzahl Schlafzimmer2
-
Anzahl Badezimmer2
-
Anzahl separate WC1
-
Anzahl Parkflächen1
-
Wohnfläche (ca.)130 m²
-
Kellerfläche (ca.)10 m²
-
Balkon/Terrasse (ca.)40 m²
-
Garagenstellplätze1
-
Anzahl Etagen3
-
AusrichtungWest
-
AusstattungskategorieGehoben
-
BauweiseMassivhaus
-
FußbodenFliesen
-
Anbieter-Objektnummer7422
Preise & Kosten
-
Garagen-/Stellplatzkaufpreis35.000 €
-
Hausgeld pro Monat350 €
-
Courtage2,38% inkl. 19% MwSt. fällig mit Abschluss des notariellen Kaufvertrages
2,38 % inklusive der gesetzlichen Mehrwertsteuer
Energie
-
BefeuerungsartGas
-
EnergieausweisEnergiebedarfsausweis
-
Endenergiebedarf57 kWh/(m²*a)
-
Baujahr (laut Energieausweis)2015
-
Energiepass gültig bis2025-01-07
-
EnergieeffizienzklasseA
-
GebäudeartWohngebäude
-
Wesentlicher EnergieträgerGAS
-
Ausgestelltnach dem 1.5.2014
Ausstattung
- Keller
Ausstattungsdetails
- Barrierefreier Zugang
- Moderne Einbauküche mit Siemens Induktionsherd, Spülmaschine, Backofen/Mikrowellenkombi Kühlschrank von Liebherr, sowie Bosch Kühl-/Gefrierkombination
- Fußböden mit eleganten Fliesen in heller Holzoptik ...mehr lesen
- Barrierefreier Zugang
- Moderne Einbauküche mit Siemens Induktionsherd, Spülmaschine, Backofen/Mikrowellenkombi Kühlschrank von Liebherr, sowie Bosch Kühl-/Gefrierkombination
- Fußböden mit eleganten Fliesen in heller Holzoptik ...mehr lesen
Ausstattungsdetails
- Barrierefreier Zugang
- Moderne Einbauküche mit Siemens Induktionsherd, Spülmaschine, Backofen/Mikrowellenkombi Kühlschrank von Liebherr, sowie Bosch Kühl-/Gefrierkombination
- Fußböden mit eleganten Fliesen in heller Holzoptik ausgestattet
- Gemütlicher Holzkamin im Wohnbereich
- Bodentiefe Fenster mit Dreifachverglasung aus Holz/Aluminium bzw. Kunststoff/Aluminium
- Elektrische Raffstores für optimalen Licht- und Sichtschutz
- Edelholzterrasse mit elektrischer Markise zum Entspannen im Freien
- verglaster Wintergarten für ganzjähriges Wohlfühlambiente
- Praktisches Gartenhaus/Schuppen für zusätzlichen Stauraum
- Einzelgarage mit elektrischem Torantrieb und Starkstromanschluss, direkter Zugang zum Garten
- Massivbauweise nach KfW-Standard 2013 für hohe Energieeffizienz
- Effiziente Lüftungsanlage und Wasserenthärtungsanlage vorhanden
- Blockheizkraftwerk für effiziente Energieversorgung
- Keller mit Tageslicht, Fußbodenheizung und separatem Hobbyraum
- Waschmaschinen- und Trockneranschluss im Bad sowie zusätzlicher Waschraum im Keller
- Platzsparende Schiebetüren für maximale Raumoptimierung
- thermostatgesteuerte Fussbodenheizung in allen Räumen
- Netzwerkverkabelung
- Einzelgarage mit elektrischem Torantrieb
- großzügige Westterrasse und verglaster Wintergarten
- großzügiger Kellerraum mit Fenster und Fussbodenheizung
- Barrierefreier Zugang
- Moderne Einbauküche mit Siemens Induktionsherd, Spülmaschine, Backofen/Mikrowellenkombi Kühlschrank von Liebherr, sowie Bosch Kühl-/Gefrierkombination
- Fußböden mit eleganten Fliesen in heller Holzoptik ausgestattet
- Gemütlicher Holzkamin im Wohnbereich
- Bodentiefe Fenster mit Dreifachverglasung aus Holz/Aluminium bzw. Kunststoff/Aluminium
- Elektrische Raffstores für optimalen Licht- und Sichtschutz
- Edelholzterrasse mit elektrischer Markise zum Entspannen im Freien
- verglaster Wintergarten für ganzjähriges Wohlfühlambiente
- Praktisches Gartenhaus/Schuppen für zusätzlichen Stauraum
- Einzelgarage mit elektrischem Torantrieb und Starkstromanschluss, direkter Zugang zum Garten
- Massivbauweise nach KfW-Standard 2013 für hohe Energieeffizienz
- Effiziente Lüftungsanlage und Wasserenthärtungsanlage vorhanden
- Blockheizkraftwerk für effiziente Energieversorgung
- Keller mit Tageslicht, Fußbodenheizung und separatem Hobbyraum
- Waschmaschinen- und Trockneranschluss im Bad sowie zusätzlicher Waschraum im Keller
- Platzsparende Schiebetüren für maximale Raumoptimierung
- thermostatgesteuerte Fussbodenheizung in allen Räumen
- Netzwerkverkabelung
- Einzelgarage mit elektrischem Torantrieb
- großzügige Westterrasse und verglaster Wintergarten
- großzügiger Kellerraum mit Fenster und Fussbodenheizung
Standort & Lage
Das kleine Mehrfamilienhaus befindet sich in einer schönen Wohnlage in München-Solln. Solln ist der südlichste Stadtteil Münchens und zählt zu den begehrtesten Wohnlagen. Das Umfeld ist geprägt von Einfamilienhäusern und kleinen gepflegten
...mehr lesen
Das kleine Mehrfamilienhaus befindet sich in einer schönen Wohnlage in München-Solln. Solln ist der südlichste Stadtteil Münchens und zählt zu den begehrtesten Wohnlagen. Das Umfeld ist geprägt von Einfamilienhäusern und kleinen gepflegten Wohnanlagen.
Kindergärten, Schulen und sämtliche Geschäfte des täglichen Bedarfs sind fußläufig erreichbar. Ebenso Restaurants, Biergärten und das Sollner Kino.
Die S-Bahnstation SOLLN (S7/S27/Regionalzüge ) erreicht man mit den Bussen 63/136 in wenigen Minuten. Ebenso die U-Bahnstation Aidenbachstrasse.
Diverse Sportvereine und -stätten bieten tolle Freizeitgestaltungsmöglichkeiten. Umliegende Grünflächen laden zum Verweilen oder Spaziergängen ein. Für Kinder gibt es unweit einen Bolz/Basketballplatz. In knapp 20 Fahrminuten gelangt man zum Arbeiten in die Münchner Innenstadt oder zur Erholung an den Starnberger See. Durch die verkehrsgünstige Lage zum mittleren Ring ist auch der Flughafen Franz-Josef Strauss gut erreichbar.
Das Objekt selbst befindet sich in einer ruhigen Seitenstrasse ohne Durchgangsverkehr in einer langjährig gewachsenen Wohngegend .
Kindergärten, Schulen und sämtliche Geschäfte des täglichen Bedarfs sind fußläufig erreichbar. Ebenso Restaurants, Biergärten und das Sollner Kino.
Die S-Bahnstation SOLLN (S7/S27/Regionalzüge ) erreicht man mit den Bussen 63/136 in wenigen Minuten. Ebenso die U-Bahnstation Aidenbachstrasse.
Diverse Sportvereine und -stätten bieten tolle Freizeitgestaltungsmöglichkeiten. Umliegende Grünflächen laden zum Verweilen oder Spaziergängen ein. Für Kinder gibt es unweit einen Bolz/Basketballplatz. In knapp 20 Fahrminuten gelangt man zum Arbeiten in die Münchner Innenstadt oder zur Erholung an den Starnberger See. Durch die verkehrsgünstige Lage zum mittleren Ring ist auch der Flughafen Franz-Josef Strauss gut erreichbar.
Das Objekt selbst befindet sich in einer ruhigen Seitenstrasse ohne Durchgangsverkehr in einer langjährig gewachsenen Wohngegend .
Sonstiges
DALEXIS Immobilien hat sich auf die Vermarktung von Wohnimmobilien für den Kapitalanleger und den Eigennutzer und die Vermietung spezialisiert.
DALEXIS Immobilien bietet mit der langjährigen Erfahrung seiner Experten optimale Voraussetzungen, um den ...mehr lesen
DALEXIS Immobilien bietet mit der langjährigen Erfahrung seiner Experten optimale Voraussetzungen, um den ...mehr lesen
DALEXIS Immobilien hat sich auf die Vermarktung von Wohnimmobilien für den Kapitalanleger und den Eigennutzer und die Vermietung spezialisiert.
DALEXIS Immobilien bietet mit der langjährigen Erfahrung seiner Experten optimale Voraussetzungen, um den höchsten Anforderungen an eine zielgerichtete Planung für Ihr Vorhaben gerecht werden zu können.
Das DALEXIS Immobilienteam besteht aus zahlreichen Spezialisten mit langjähriger Reputation in der Immobilienbranche.
Diese Objektbeschreibung wurde aufgrund von Angaben des Verkäufers erstellt. Der Makler hat diese Information soweit möglich überprüft, übernimmt aber für deren Richtigkeit keine Haftung
DALEXIS Immobilien bietet mit der langjährigen Erfahrung seiner Experten optimale Voraussetzungen, um den höchsten Anforderungen an eine zielgerichtete Planung für Ihr Vorhaben gerecht werden zu können.
Das DALEXIS Immobilienteam besteht aus zahlreichen Spezialisten mit langjähriger Reputation in der Immobilienbranche.
Diese Objektbeschreibung wurde aufgrund von Angaben des Verkäufers erstellt. Der Makler hat diese Information soweit möglich überprüft, übernimmt aber für deren Richtigkeit keine Haftung
Anbieter
DALEXIS ImmobilienService GmbH
Herr Florian Bauer
Hirtenweg 6
82031 Grünwald
82031 Grünwald
Ansprechpartner
Florian Bauer
Hirtenweg 6
82031 Grünwald
82031 Grünwald