Angebot 9656 von 17637

Anbieter kontaktieren

AGB, Datenschutz & Verbraucherhinweis wurden gelesen und akzeptiert.

Balearic Properties Real Estate S.L.

Bild/Logo: Balearic  Properties
Balearic Properties
07460 Pollença
  • Mehr erfahren
bellevue.de-ID: 30573413

Brandneue Finca mit Bergblick kaufen in der Nähe von Binissalem, Mallorca

  • Haus
  • · 454 m² Wohnfläche
  • · 120.000 m² Grundstücksfläche
  • · 3.500.000 € Kaufpreis
Anbieter kontaktieren

Objektbeschreibung

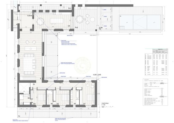
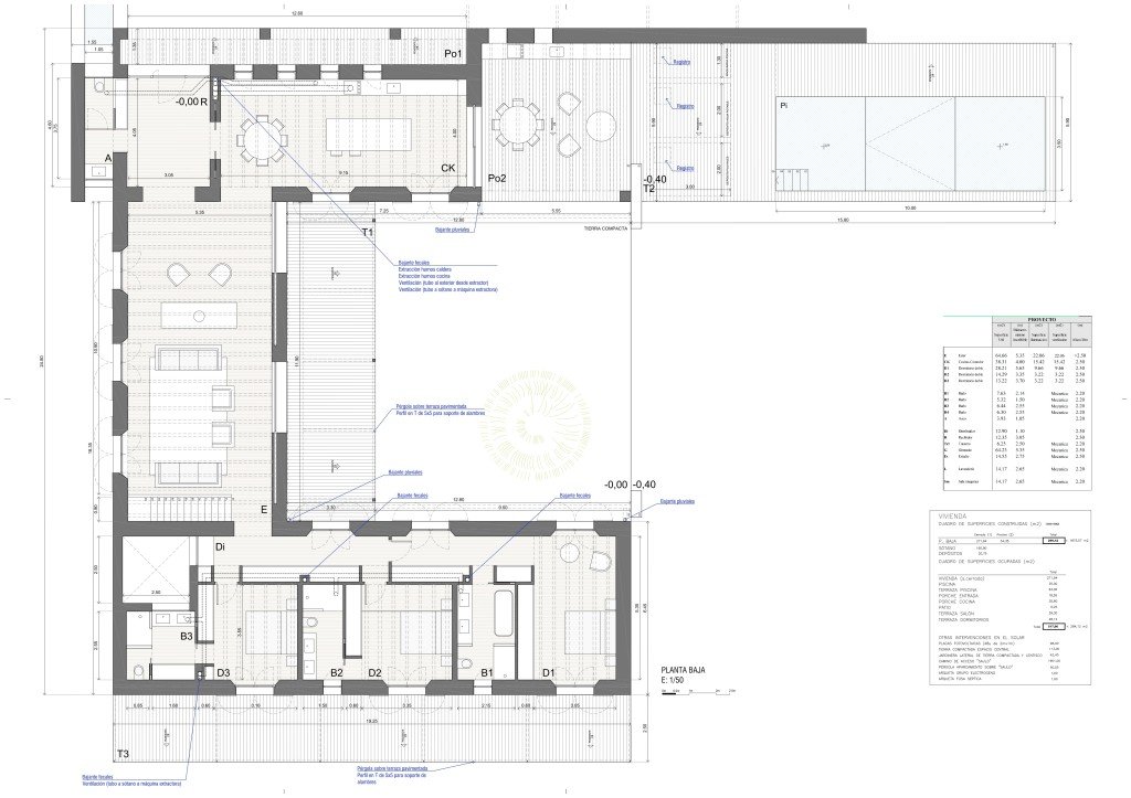
Diese neu gestaltete Villa in der Nähe von Binissalem verfügt über eine markante U-Form und befindet sich auf einem weitläufigen Grundstück von über 120.000 m². Umgeben von Natur und mit Blick auf das Tramuntana-Gebirge, profitiert das Anwesen von ...mehr lesen
Diese neu gestaltete Villa in der Nähe von Binissalem verfügt über eine markante U-Form und befindet sich auf einem weitläufigen Grundstück von über 120.000 m². Umgeben von Natur und mit Blick auf das Tramuntana-Gebirge, profitiert das Anwesen von einer ruhigen Lage auf dem Land und ist nur eine kurze Autofahrt von Binissalem und Inca entfernt.

Die Villa verfügt über Räume, die auf einer einzigen Etage sowie einem Untergeschoss verteilt sind. Im Erdgeschoss befinden sich drei elegante Schlafzimmer, vier Badezimmer (drei davon en suite) und eine moderne Wohnküche, die sich mühelos zur überdachten Terrasse und zum Pool hin öffnet. Der Hauptwohnbereich bietet eine großzügige offene Raumaufteilung mit warmen Elementen wie Holzbalken, Kalksteinwänden und Natursteinböden, während große Schiebetüren und Zimmerdecken, die bis zu 3,5 Meter hoch sind, ein Gefühl von Weite und Licht schaffen.
Der Keller, der sich im Hauptgebäude der Finca befindet, wird durch die Terrasse mit natürlichem Licht durchflutet. Auf einer Fläche von 160 m² befinden sich ein Fitnessraum, ein viertes Schlafzimmer, ein Badezimmer, eine Waschküche und weitere praktische Räume.
Der Außenbereich umfasst einen 35 m² großen Swimmingpool, mehrere überdachte Außenbereiche und Terrassen und eignet sich perfekt für ganzjährige Unterhaltung.

Die Villa befindet sich im Herzen eines 12 Hektar großen Weinguts und baut lokale Rebsorten wie Manto Negro und Callet sowie den französischen Sauvignon Blanc an. Neue Eigentümer können das Anwesen entweder selbst bewirtschaften und ihre Weine verkaufen oder ein Weingut beauftragen, sich um das Land zu kümmern und den Wein zu vermarkten. Inca liegt im Zentrum Mallorcas und dient als wichtiges Bindeglied zwischen verschiedenen Gebieten der Insel.

Darüber hinaus ist das Anwesen autark, mit Solarenergie, einem Trinkwasserbrunnen und einer effizienten Wärmepumpe, die für Fußbodenheizung und Warmwasser sorgt.

Die Villa wird bis Ende 2026 an ihre Eigentümer übergeben werden können.

Binissalem liegt etwa auf halbem Weg zwischen Palma und Inca, das Dorf schmiegt sich an den Ausläufern des Tramuntana Gebirges. Abgesehen davon, dass es ein charmantes Dorfzentrum mit vielen spektakulären Häusern besitzt, ist Binissalem am besten für die Weinproduktion bekannt. Weine aus Binissalem werden weltweit exportiert und geschätzt, langsam aber sicher sind sie in die Liga der anspruchsvollen, etablierten Namen aufgestiegen. Das alljährliche Weinfest ist definitiv eine Party, die man nicht verpassen sollte!

Für weitere Informationen kontaktieren Sie bitte BALEARIC PROPERTIES ESTATE AGENTS MALLORCA per e-Mail oder rufen Sie unser Büro in Puerto Portals an (+34) 971 68 40 00 - Weitere Einzelheiten zu anderen Finca zu kaufen in Binissalem oder mehr zum Thema Haus kaufen in Binissalem.

"Balearic Properties ist seit vielen, vielen Jahren auf den Balearen geschäftlich aktiv. Der Hauptsitz des Unternehmens befindet sich auf Mallorca. Im Laufe der Jahre haben wir ein beispielloses Immobilienportfolio passend zu jedem Budget aufgebaut, dadurch haben wir bereits 10.000 Kunden bei der Suche nach ihrem neuen Zuhause auf den Balearen erfolgreich geholfen. Unsere Team für Projektleitung und unser Bauunternehmen bieten eine einmalige Auswahl an schlüsselfertigen Luxusvillen an, angepasst an allen individuellen und persönlichen Bedürfnissen. Wir bieten auch über 200 Ferienvillen an, die unseren Kunden ein unvergessliches Urlaubserlebnis garantieren.

Balearic Properties ist der exklusive Partner von Savills auf Mallorca. Das Unternehmen bietet seinen Kunden eine über 20-jährige Erfahrung auf dem hiesigen Immobilienmarkt. Unser Portfolio umfasst alle Arten von modernen Villen, Landhäusern und trendigen Bauvorhaben in den besten Wohnlagen von Mallorca. Balearic Properties ist auch spezialisiert auf Immobilien am Wasser und große Anwesen. Das Unternehmen bietet einen kompletten, umfassenden Immobilienservice einschließlich Immobilienverwaltung, Ferienvermietung, Projektmanagement und Rechtsberatung."

Immobiliendetails

  • Nutzungsart
    Wohnen
  • Objektart
    Finca
  • Hauptobjektart
    Haus
  • Vertragsart
    Kauf
  • Objektzustand
    Erstbezug
  • Baujahr
    2024
  • Anzahl Schlafzimmer
    4
  • Anzahl Badezimmer
    5
  • Anzahl Parkflächen
    4
  • Wohnfläche (ca.)
    454 m²
  • Grundstücksfläche (ca.)
    120.000 m²
  • Nutzfläche (ca.)
    568 m²
  • Küche
    1
  • Ausblick
    Berge
  • Anbieter-Objektnummer
    BIN53039

Preise & Kosten

  • Courtage
    Keine besondere Angabe.

Ausstattung

  • Klimanalage
  • Swimmingpool
  • Garten

Standort & Lage

07350 Binissalem · Binissalem · ESP

Die genaue Anschrift erfahren Sie vom Anbieter

Anbieter

Logo von Balearic Properties Real Estate S.L.
2025 Best Property Agents

Ansprechpartner

Verbraucherhinweis

Widerrufsbelehrung des Anbieters

Gilt nicht für Wohnraummiete in Deutschland

Widerrufsrecht für Verbraucher

Sie haben das Recht, binnen vierzehn Tagen ohne Angabe von Gründen diesen Vertrag zu widerrufen. Die Widerrufsfrist beträgt vierzehn Tage ab dem Tag des Vertragsabschlusses.

Um Ihr Widerrufsrecht auszuüben, müssen Sie uns (Balearic Properties Real Estate S.L., Via Pollentia 3, 07460 Pollença, Fax: 0034-971534506, Tel: 0034-971532984, caroline@balearic-properties.com) mittels einer eindeutigen Erklärung (z. B. ein mit der Post versandter Brief, Telefax oder E-Mail) über Ihren Entschluss, diesen Vertrag zu widerrufen, informieren. Sie können dafür das beigefügte Muster-Widerrufsformular verwenden, das jedoch nicht vorgeschrieben ist. Zur Wahrung der Widerrufsfrist reicht es aus, dass Sie die Mitteilung über die Ausübung des Widerrufsrechts vor Ablauf der Widerrufsfrist absenden.

Folgen des Widerrufs

Wenn Sie diesen Vertrag widerrufen, haben wir Ihnen alle Zahlungen, die wir von Ihnen erhalten haben, einschließlich der Lieferkosten (mit Ausnahme der zusätzlichen Kosten, die sich daraus ergeben, dass Sie eine andere Art der Lieferung als die von uns angebotene, günstigste Standardlieferung gewählt haben), unverzüglich und spätestens binnen vierzehn Tagen ab dem Tag zurückzuzahlen, an dem die Mitteilung über Ihren Widerruf dieses Vertrags bei uns eingegangen ist. Für diese Rückzahlung verwenden wir dasselbe Zahlungsmittel, das Sie bei der ursprünglichen Transaktion eingesetzt haben, es sei denn, mit Ihnen wurde ausdrücklich etwas anderes vereinbart; in keinem Fall werden Ihnen wegen dieser Rückzahlung Entgelte berechnet. Haben Sie verlangt, dass die Dienstleistungen während der Widerrufsfrist beginnen soll, so haben Sie uns einen angemessenen Betrag zu zahlen, der dem Anteil der bis zu dem Zeitpunkt, zu dem Sie uns von der Ausübung des Widerrufsrechts hinsichtlich dieses Vertrags unterrichten, bereits erbrachten Dienstleistungen im Vergleich zum Gesamtumfang der im Vertrag vorgesehenen Dienstleistungen entspricht.

Muster-Widerrufsformular

(Wenn Sie den Vertrag widerrufen wollen, dann füllen Sie dieses Formular aus und senden Sie es zurück.)

An Balearic Properties Real Estate S.L., Via Pollentia 3, 07460 Pollença, Fax: 0034-971534506, caroline@balearic-properties.com
Hiermit widerrufe(n) ich/wir (*) den von mir/uns (*) abgeschlossenen Vertrag über den Kauf der folgenden Waren (*)/die Erbringung der folgenden Dienstleistung (*)


- Bestellt am (*)/erhalten am (*)

- Name des/der Verbraucher(s)

- Anschrift des/der Verbraucher(s)

- Unterschrift des/der Verbraucher(s) (nur bei Mitteilung auf Papier)
- Datum


(*) Unzutreffendes streichen

Hinweis auf die Möglichkeit eines vorzeitigen Erlöschens des Widerrufsrechts

Ihr Widerrufsrecht erlischt, wenn wir unsere Leistung vollständig erbracht haben und mit der Ausführung der Leistung erst begonnen haben, nachdem Sie Ihre ausdrückliche Zustimmung gegeben haben und gleichzeitig Ihre Kenntnis davon bestätigt haben, dass Sie Ihr Widerrufsrecht bei vollständiger Vertragserfüllung durch uns verlieren.

Impressum Balearic Properties Real Estate S.L.
VERTRETUNGSBERECHTIGTE/R
Balearic Properties Team


Via Pollentia 3 3
07460 Pollença
ESP
Tel.: 0034-971532984
E-Mail: caroline@balearic-properties.com
Fax: 0034-971534506
Homepage: http://www.balearic-properties.com

ZUSTÄNDIGE AUFSICHTSBEHÖRDE
Amtsgericht Palma de Mallorca

HANDELSREGISTER-EINTRAG
Amtsgericht Palma de Mallorca, Mallorca 3 Mercantil, 1/2006/6.386,0


UST-ID-NUMMER
CIF: B57416752

ZUSÄTZLICHER TEXT
Verbraucherinformationen Online-Streitbeilegung gemäß Art. 14 Abs. 1 ODR-VO: Die Europäische Kommission stellt eine Plattform zur Online-Streitbeilegung (OS) bereit, die Sie hier finden: http://ec.europa.eu/consumers/odr
Anbieter kontaktieren

AGB, Datenschutz & Verbraucherhinweis wurden gelesen und akzeptiert.