Anbieter kontaktieren

AGB, Datenschutz & Verbraucherhinweis wurden gelesen und akzeptiert.

Schmidbauer Immobilien Kreta

Bild/Logo: Oskar Josef Schmidbauer
Oskar Josef Schmidbauer
84100 Niederaichbach
  • Mehr erfahren
bellevue.de-ID: 30568825

Betonskelett im Dorf am Meer, in der Nähe von Ierapetra

  • Haus
  • · 19 Zimmer
  • · 496 m² Wohnfläche
  • · 500 m² Grundstücksfläche
  • · 250.000 € Kaufpreis
Anbieter kontaktieren

Objektbeschreibung

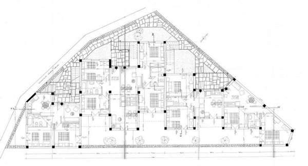
Dies ist ein Betonskelett im Küstendorf Koutsounari, nur wenige Kilometer von Ierapetra entfernt, in einer schönen und ruhigen Lage.

Der Komplex ist insgesamt 496 m² groß und bietet 8 komfortable und geräumige Apartments, jedes mit eigenem Balkon oder ...mehr lesen
Dies ist ein Betonskelett im Küstendorf Koutsounari, nur wenige Kilometer von Ierapetra entfernt, in einer schönen und ruhigen Lage.

Der Komplex ist insgesamt 496 m² groß und bietet 8 komfortable und geräumige Apartments, jedes mit eigenem Balkon oder Terrasse, wo die Gäste die atemberaubende Aussicht auf das Meer und die umliegenden Berge genießen können.
Das Erdgeschoss könnte 5 Wohnungen mit 2 Schlafzimmern, Wohnzimmer, Küche und Bad haben.
Das Dachgeschoss könnte 3 Wohnungen haben, eine mit 2 Schlafzimmern und zwei mit 1 Schlafzimmer.
Der Innenraum kann an die Bedürfnisse aller angepasst werden.
Die Unterkunft befindet sich in fußläufiger Entfernung zum Strand.

Insgesamt stellt dieses Betongrundstück in Koutsounari, Kreta, eine fantastische Gelegenheit für diejenigen dar, die nach einer praktischen und zuverlässigen Investition in einer atemberaubenden Lage suchen.

Immobiliendetails

  • Nutzungsart
    Wohnen
  • Hauptobjektart
    Haus
  • Vertragsart
    Kauf
  • Zimmer (gesamt)
    19
  • Anzahl Schlafzimmer
    14
  • Anzahl Badezimmer
    8
  • Wohnfläche (ca.)
    496 m²
  • Grundstücksfläche (ca.)
    500 m²
  • Stellplatzart
    Freiplatz
  • Ausblick
    Meer
  • Anbieter-Objektnummer
    S-HIER4h

Preise & Kosten

  • Courtage
    2,48 % inklusive der gesetzlichen Mehrwertsteuer

Energie

  • Energieausweis
    Energiebedarfsausweis
  • Energieeffizienzklasse
    H
  • Ausgestellt
    ohne / nicht vorhanden

Ausstattung

  • Garten

Standort & Lage

Die Ortschaft Koutsounari liegt im Südosten Kretas, im Bezirk Lasithi, direkt an der Küste. Sie ist umgeben von üppigen Oliven- und Pinienhainen und daher für den Südosten Kretas recht grün. Hier gibt es gut organisierte Strände, flach abfallend mit ...mehr lesen
Die Ortschaft Koutsounari liegt im Südosten Kretas, im Bezirk Lasithi, direkt an der Küste. Sie ist umgeben von üppigen Oliven- und Pinienhainen und daher für den Südosten Kretas recht grün. Hier gibt es gut organisierte Strände, flach abfallend mit kristallklarem Wasser und feinen Kieselsteinen. Wegen seiner tollen Landschaft ist das Dorf auch Ausgangspunkt zahlreicher Wanderungen. Im Ort gibt es neben den Hotels viele Annehmlichkeiten: Restaurants, Cafés, Minimarkt, Ärztehaus, Apotheke, … Die nächstgrößere Stadt Ierapetra ist ca. 9 km entfernt.

Kreta · 722 00 Koutsounari · GRC

Sonstiges

Wir sind deutsche Immobilienmakler und haben uns spezialisiert auf Immobilien aus Kreta. Neben der Suche nach geeigneten Immobilien auf Kreta für Sie, gehört auch das Organisieren von Besichtigungsterminen auf Kreta zu unserem Portfolio.
Zu jeder ...mehr lesen
Wir sind deutsche Immobilienmakler und haben uns spezialisiert auf Immobilien aus Kreta. Neben der Suche nach geeigneten Immobilien auf Kreta für Sie, gehört auch das Organisieren von Besichtigungsterminen auf Kreta zu unserem Portfolio.
Zu jeder Phase Ihres Immobilienerwerbs auf Kreta stehen wir Ihnen zur Seite und begleiten Sie vom ersten Gespräch bis über den Notarvertrag hinaus.

Uns sind Ihre Vorstellungen wichtig, wie zum Beispiel die Lage auf Kreta in Verbindung mit Meerblick, Strandnähe, Sandstrand, Steinhaus oder Swimmingpool. Zusätzlich gibt es wichtige Punkte zu beachten wie die Maße der Zimmer einer Immobilie. In Griechenland und somit auch auf Kreta werden die Wände miteingerechnet, also Außenwand zur Außenwand. Im Gegensatz zu deutschen Immobilien, hier wird von Innenwand zur Innenwand gemessen.

Wir empfehlen Ihnen unbedingt bei der Besichtigung auf Kreta die angegebene Wohnfläche zu überprüfen, da diese stark von deutschen Angaben abweichen kann (Berechnungs-, Wohnflächenverordnung, DIN-Normen) und Nutzflächen eventuell miteingerechnet wurden (Keller, Technikraum, Balkon, Terrasse etc.).
Bitte beachten Sie auch bei Standortangaben zu Immobilienangeboten auf Kreta, dass dies ungefähre Werte sind.
Der griechische Energieausweis (falls erforderlich) liegt bei der Besichtigung vor.

Zum angegebenen Kaufpreis kommen noch Nebenkosten wie Provision, Grunderwerbsteuer, Notargebühren und Anwaltskosten hinzu. Genaueres finden Sie auf unserer Homepage bei INFOS.

Alle über unser Portal angebotenen Immobilien aus Kreta wurden sorgfältig geprüft und übersetzt. Dennoch können sich Fehler einschleichen, so dass wir keine Gewähr auf Richtigkeit der Angaben übernehmen.

Für alle Fragen rund um das Thema - Kauf einer Immobilie oder Grundstück auf Kreta - stehen wir Ihnen gerne zur Verfügung und können weitere Details im Gespräch klären.

Es gelten unsere AGB, die Sie auf unserer Homepage bei AGB und Widerrufsrecht finden.

Ansprechpartner

Verbraucherhinweis

Widerruf Bei außerhalb von Geschäftsräumen geschlossenen Verträgen und bei Fernabsatzverträgen haben Sie das Recht, binnen vierzehn Tagen ohne Angabe von Gründen diesen Vertrag zu widerrufen. Die Widerrufsfrist beträgt vierzehn Tage ab dem Tag des Vertragsabschlusses. Um Ihr Widerrufsrecht auszuüben, müssen Sie uns mittels einer eindeutigen Erklärung (z. B. ein mit der Post versandter Brief, Telefax oder E-Mail) über Ihren Entschluss, diesen Vertrag zu widerrufen, informieren. Sie können dafür die hier verlinkte Vorlage des Widerrufsformulars verwenden, das jedoch nicht vorgeschrieben ist. Zur Wahrung der Widerrufsfrist reicht es aus, dass Sie die Mitteilung über die Ausübung des Widerrufsrechts vor Ablauf der Widerrufsfrist absenden. Folgen des Widerrufs Wenn Sie diesen Vertrag widerrufen, haben wir Ihnen alle Zahlungen, die wir von Ihnen erhalten haben, einschließlich der Lieferkosten (mit Ausnahme der zusätzlichen Kosten, die sich daraus ergeben, dass Sie eine andere Art der Lieferung als die von uns angebotene, günstigste Standardlieferung gewählt haben), unverzüglich und spätestens binnen 14 Tagen ab dem Tag zurückzuzahlen, an dem die Mitteilung über Ihren Widerruf dieses Vertrages bei uns eingegangen ist. Für diese Rückzahlung verwenden wir dasselbe Zahlungsmittel, das Sie bei der ursprünglichen Transaktion eingesetzt haben, es sei denn, mit Ihnen wurde ausdrücklich etwas anderes vereinbart – in keinem Fall werden wir Ihnen wegen dieser Rückzahlung Entgelte berechnen. Haben Sie verlangt, dass die Dienstleistungen während der Widerrufsfrist beginnen soll, so haben Sie uns einen angemessenen Betrag zu zahlen, der dem Anteil der bis zu dem Zeitpunkt, zu dem Sie uns von der Ausübung des Widerrufsrechts hinsichtlich dieses Vertrags unterrichten, bereits erbrachten Dienstleistungen im Vergleich zum Gesamtumfang der im Vertrag vorgesehenen Dienstleistungen entspricht. Im Falle eines erfolgten Nachweises bzw. der Vermittlung eines Kaufvertragsabschlusses sind wir berechtigt, Wertersatz in Höhe des tatsächlich erbrachten Aufwands zu verlangen. Widerrufsformular Hier finden Sie unsere Vorlage des Widerrufsformulars im PDF-Format zum Ausdrucken: https://griechenland-kreta.immobilien/wp-content/uploads/Widerrufsformular.pdf

Impressum Schmidbauer Immobilien Kreta
VERTRETUNGSBERECHTIGTE/R
Oskar Josef Schmidbauer


Kokkino Chorio 1
730 08 Kokkino Chorio
GRC
Tel.: +49 8702 4939900
E-Mail: info@schmidbauer.immobilien
Fax: +49 8702 4939901
Homepage: https://griechenland-kreta.immobilien/

ZUSTÄNDIGE AUFSICHTSBEHÖRDE
Chamber of Commerce and Industry of Chania Eleftheriou Venizelou 4 731 10 Chania https://chania-cci.gr/

UST-ID-NUMMER
EL178996963
Anbieter kontaktieren

AGB, Datenschutz & Verbraucherhinweis wurden gelesen und akzeptiert.