Anbieter kontaktieren
DALEXIS ImmobilienService GmbH
Michael Kneissl
82031 Grünwald
- Mehr erfahren
bellevue.de-ID: 30555555
Lindenpark in Dresden-Laubegast: Ruhige Drei-Zimmer-Wohnung mit Balkon in direkter Elbnähe
- Wohnung
- · 3 Zimmer
- · 69 m² Wohnfläche
- · Preis auf Anfrage
Objektbeschreibung
Lindenpark in Dresden-Laubegast:
Ruhige Drei-Zimmer-Wohnung mit Balkon
- Sehr gute Wohnlage im begehrten Lindenpark nahe dem Elbufer
- Perfekte Anbindung an das Dresdener Straßenbahnnetz
- Profitieren Sie von der zunehmenden Attraktivität Dresdens als ...mehr lesen
Ruhige Drei-Zimmer-Wohnung mit Balkon
- Sehr gute Wohnlage im begehrten Lindenpark nahe dem Elbufer
- Perfekte Anbindung an das Dresdener Straßenbahnnetz
- Profitieren Sie von der zunehmenden Attraktivität Dresdens als ...mehr lesen
Lindenpark in Dresden-Laubegast:
Ruhige Drei-Zimmer-Wohnung mit Balkon
- Sehr gute Wohnlage im begehrten Lindenpark nahe dem Elbufer
- Perfekte Anbindung an das Dresdener Straßenbahnnetz
- Profitieren Sie von der zunehmenden Attraktivität Dresdens als Halbleiterstandort
Die sehr gepflegte, lichtdurchflutete Drei-Zimmer-Wohnung liegt im dritten Obergeschoss eines soliden Wohnhauses im begehrten Dresdner Stadtteil Laubegast. Das Elbufer ist fußläufig in wenigen Minuten sehr gut erreichbar.
Die exponierte Lage bietet somit ideale Voraussetzungen zum Joggen, Radfahren oder Flanieren am traumhaft schönen Elbufer, mit Blick auf die beeindruckenden Dresdner Sehenswürdigkeiten.
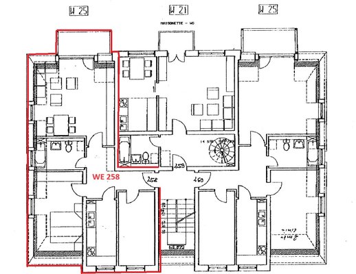
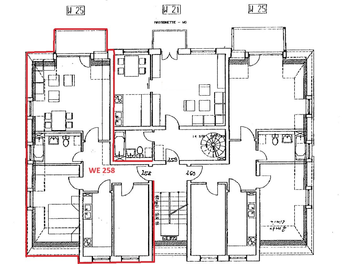
Die solide ausgestattete Wohnung umfasst auf einer Wohnfläche von ca. 69 m² zwei geräumige Schlafzimmer, eine Küche, ein Badezimmer mit WC, sowie ein schönes Wohnzimmer.
Zum Südosten hin verfügt die Wohnung über einen attraktiven Balkon. Dieser ist vom Wohnzimmer aus zu begehen und wird in den Sommermonaten zum Mittelpunkt der Wohnung. Der Balkon ist zum attraktiven Garten ausgerichtet.
Hinzu kommt die gut geschnittene Küche. Der Einzelstellplatz im vollständig sanierten Carport rundet das Angebot gelungen ab.
Das im Jahre 1995 in massiver Ziegelbauweise errichtete Wohnhaus ist gepflegt und wurde laufend modernisiert. Es beinhaltet 12 Wohneinheiten. In den Jahren 2022/23 wurde eine umfangreiche Fassadensanierung ausgeführt.
Eine neue Gas-Zentralheizung wurde im vergangenen Jahr eingebaut.
Der sehr gute Schnitt der Wohnung bietet beste Voraussetzungen für eine optimale Nutzung für Singles und Paare.
Die Wohnung ist für 585,-- (Kaltmiete) unbefristet vermietet. Die Betriebskostenvorauszahlung beträgt 214,-- pro Monat.
Eine in dieser Kombination absolut interessante Gelegenheit im Wohnungsmarkt von Dresden.
Ruhige Drei-Zimmer-Wohnung mit Balkon
- Sehr gute Wohnlage im begehrten Lindenpark nahe dem Elbufer
- Perfekte Anbindung an das Dresdener Straßenbahnnetz
- Profitieren Sie von der zunehmenden Attraktivität Dresdens als Halbleiterstandort
Die sehr gepflegte, lichtdurchflutete Drei-Zimmer-Wohnung liegt im dritten Obergeschoss eines soliden Wohnhauses im begehrten Dresdner Stadtteil Laubegast. Das Elbufer ist fußläufig in wenigen Minuten sehr gut erreichbar.
Die exponierte Lage bietet somit ideale Voraussetzungen zum Joggen, Radfahren oder Flanieren am traumhaft schönen Elbufer, mit Blick auf die beeindruckenden Dresdner Sehenswürdigkeiten.
Die solide ausgestattete Wohnung umfasst auf einer Wohnfläche von ca. 69 m² zwei geräumige Schlafzimmer, eine Küche, ein Badezimmer mit WC, sowie ein schönes Wohnzimmer.
Zum Südosten hin verfügt die Wohnung über einen attraktiven Balkon. Dieser ist vom Wohnzimmer aus zu begehen und wird in den Sommermonaten zum Mittelpunkt der Wohnung. Der Balkon ist zum attraktiven Garten ausgerichtet.
Hinzu kommt die gut geschnittene Küche. Der Einzelstellplatz im vollständig sanierten Carport rundet das Angebot gelungen ab.
Das im Jahre 1995 in massiver Ziegelbauweise errichtete Wohnhaus ist gepflegt und wurde laufend modernisiert. Es beinhaltet 12 Wohneinheiten. In den Jahren 2022/23 wurde eine umfangreiche Fassadensanierung ausgeführt.
Eine neue Gas-Zentralheizung wurde im vergangenen Jahr eingebaut.
Der sehr gute Schnitt der Wohnung bietet beste Voraussetzungen für eine optimale Nutzung für Singles und Paare.
Die Wohnung ist für 585,-- (Kaltmiete) unbefristet vermietet. Die Betriebskostenvorauszahlung beträgt 214,-- pro Monat.
Eine in dieser Kombination absolut interessante Gelegenheit im Wohnungsmarkt von Dresden.
Immobiliendetails
-
NutzungsartWohnen
-
ObjektartEtagenwohnung
-
HauptobjektartWohnung
-
VertragsartKauf
-
Baujahr1995
-
Zimmer (gesamt)3
-
Anzahl Schlafzimmer2
-
Anzahl Badezimmer1
-
Anzahl Parkflächen1
-
Wohnfläche (ca.)69 m²
-
Etage3
-
StellplatzartTiefgarage
-
Anzahl Etagen3
-
BauweiseMassivhaus
-
Anbieter-Objektnummer7451
Preise & Kosten
-
Hausgeld pro Monat307 €
-
CourtageDas Angebot ist für den Käufer provisionsfrei.
Energie
-
HeizungsartZentralheizung
-
BefeuerungsartGas
-
EnergieausweisEnergieverbrauchsausweis
-
Endenergieverbrauch105,1 kWh/(m²*a)
-
Baujahr (laut Energieausweis)1995
-
Energiepass gültig bis2031-03-21
-
GebäudeartWohngebäude
-
Wesentlicher EnergieträgerGAS
-
Ausgestelltnach dem 1.5.2014
Ausstattung
- Keller
Lindenpark in Dresden-Laubegast:
Ruhige Drei-Zimmer-Wohnung mit Balkon
- Sehr gute Wohnlage im begehrten Lindenpark nahe dem Elbufer
- Perfekte Anbindung an das Dresdener Straßenbahnnetz
- Profitieren Sie von der zunehmenden Attraktivität Dresdens als ...mehr lesen
Ruhige Drei-Zimmer-Wohnung mit Balkon
- Sehr gute Wohnlage im begehrten Lindenpark nahe dem Elbufer
- Perfekte Anbindung an das Dresdener Straßenbahnnetz
- Profitieren Sie von der zunehmenden Attraktivität Dresdens als ...mehr lesen
Lindenpark in Dresden-Laubegast:
Ruhige Drei-Zimmer-Wohnung mit Balkon
- Sehr gute Wohnlage im begehrten Lindenpark nahe dem Elbufer
- Perfekte Anbindung an das Dresdener Straßenbahnnetz
- Profitieren Sie von der zunehmenden Attraktivität Dresdens als Halbleiterstandort
Die wichtigsten Merkmale im Überblick:
- Drei-Zimmer-Wohnung im dritten Obergeschoss
- Ca. 69 m² Wohnfläche
- Sonniger Balkon zum Garten ausgerichtet
- Kaufpreis für einen Stellplatz im Carport 10.000,--
- Kellerabteil
- Elbufer ist fußläufig in wenigen Minuten erreichbar
- Gepflegtes, in massiver Ziegelbauweise errichtetes Haus aus dem Jahre 1995
- Umfangreiche Sanierung der Fassaden wurde in 2022/23 abgeschlossen
- Carport-Anlage wurde vollständig saniert
- Neue Gas-Zentralheizung
- Unbefristetes Mietverhältnis
- Nettokaltmiete Wohnung = ca. 585,-- monatlich
- Miete = 40,-- für einen Carport-Stellplatz)
- Betriebskosten-Vorauszahlung = 214,-- monatlich
- Sehr gute Anbindung an den ÖPNV
Ruhige Drei-Zimmer-Wohnung mit Balkon
- Sehr gute Wohnlage im begehrten Lindenpark nahe dem Elbufer
- Perfekte Anbindung an das Dresdener Straßenbahnnetz
- Profitieren Sie von der zunehmenden Attraktivität Dresdens als Halbleiterstandort
Die wichtigsten Merkmale im Überblick:
- Drei-Zimmer-Wohnung im dritten Obergeschoss
- Ca. 69 m² Wohnfläche
- Sonniger Balkon zum Garten ausgerichtet
- Kaufpreis für einen Stellplatz im Carport 10.000,--
- Kellerabteil
- Elbufer ist fußläufig in wenigen Minuten erreichbar
- Gepflegtes, in massiver Ziegelbauweise errichtetes Haus aus dem Jahre 1995
- Umfangreiche Sanierung der Fassaden wurde in 2022/23 abgeschlossen
- Carport-Anlage wurde vollständig saniert
- Neue Gas-Zentralheizung
- Unbefristetes Mietverhältnis
- Nettokaltmiete Wohnung = ca. 585,-- monatlich
- Miete = 40,-- für einen Carport-Stellplatz)
- Betriebskosten-Vorauszahlung = 214,-- monatlich
- Sehr gute Anbindung an den ÖPNV
Standort & Lage
Leben in Dresden-Laubegast
Die sächsische Landeshauptstadt Dresden zählt mit ihren ca. 570.000 Einwohnern mittlerweile zu den wichtigsten deutschen Metropolen in den Bereichen Wirtschaft, Verkehr und Kultur. Der renommierte Messestandort ist ...mehr lesen
Die sächsische Landeshauptstadt Dresden zählt mit ihren ca. 570.000 Einwohnern mittlerweile zu den wichtigsten deutschen Metropolen in den Bereichen Wirtschaft, Verkehr und Kultur. Der renommierte Messestandort ist ...mehr lesen
Leben in Dresden-Laubegast
Die sächsische Landeshauptstadt Dresden zählt mit ihren ca. 570.000 Einwohnern mittlerweile zu den wichtigsten deutschen Metropolen in den Bereichen Wirtschaft, Verkehr und Kultur. Der renommierte Messestandort ist Anziehungspunkt für eine Vielzahl nationaler wie auch internationaler Unternehmen, insbesondere aus dem Bereich der Halbleiterfertigung (Silicon-Saxony).
Der Stadtteil Laubegast ist eine der attraktivsten und begehrtesten Adressen der sächsischen Landeshauptstadt.
Sie sind in nur wenigen Minuten an der Elbe und können am wunderschönen Elbufer joggen, oder entspannt flanieren. Auch die Semperoper und andere zentrale Orte in der Innenstadt sind durch die Anbindung an die Dresdner Straßenbahn in Kürze erreichbar.
Sie erleben in Dresden pulsierendes Leben, Komfort und Ruhe zur Entspannung.
Die hervorragende Infrastruktur Dresdens erstreckt sich auf alle Bereiche des täglichen Lebens. Renommierte Schulen befinden sich in der direkten Nachbarschaft.
Auch die Verkehrsanbindung, sei es mit dem Auto oder den öffentlichen Verkehrsmitteln, ist ein absoluter Pluspunkt von Laubegast. Die Straßenbahnanbindung ist nur ein paar Gehminuten entfernt. Der internationale Flughafen Dresden ist in knapp 25 Minuten mit dem PKW erreichbar. Ebenso die wichtigsten Autobahnen in alle Richtungen.
Die sächsische Landeshauptstadt Dresden zählt mit ihren ca. 570.000 Einwohnern mittlerweile zu den wichtigsten deutschen Metropolen in den Bereichen Wirtschaft, Verkehr und Kultur. Der renommierte Messestandort ist Anziehungspunkt für eine Vielzahl nationaler wie auch internationaler Unternehmen, insbesondere aus dem Bereich der Halbleiterfertigung (Silicon-Saxony).
Der Stadtteil Laubegast ist eine der attraktivsten und begehrtesten Adressen der sächsischen Landeshauptstadt.
Sie sind in nur wenigen Minuten an der Elbe und können am wunderschönen Elbufer joggen, oder entspannt flanieren. Auch die Semperoper und andere zentrale Orte in der Innenstadt sind durch die Anbindung an die Dresdner Straßenbahn in Kürze erreichbar.
Sie erleben in Dresden pulsierendes Leben, Komfort und Ruhe zur Entspannung.
Die hervorragende Infrastruktur Dresdens erstreckt sich auf alle Bereiche des täglichen Lebens. Renommierte Schulen befinden sich in der direkten Nachbarschaft.
Auch die Verkehrsanbindung, sei es mit dem Auto oder den öffentlichen Verkehrsmitteln, ist ein absoluter Pluspunkt von Laubegast. Die Straßenbahnanbindung ist nur ein paar Gehminuten entfernt. Der internationale Flughafen Dresden ist in knapp 25 Minuten mit dem PKW erreichbar. Ebenso die wichtigsten Autobahnen in alle Richtungen.
Anbieter
DALEXIS ImmobilienService GmbH
Herr Florian Bauer
Hirtenweg 6
82031 Grünwald
82031 Grünwald
Ansprechpartner
Michael Kneissl
Hirtenweg 6
82031 Grünwald
82031 Grünwald