Angebot 1867 von 3458

Anbieter kontaktieren

AGB, Datenschutz & Verbraucherhinweis wurden gelesen und akzeptiert.

Reker Immobilien d.o.o.

Bild/Logo: Heiner Reker
Heiner Reker
22211 Vodice
  • Mehr erfahren
bellevue.de-ID: 30549791

Gelegenheit zum Fertigbauen: Schöner Rohbau mit Pool & Meerblick

  • Haus
  • · 4 Zimmer
  • · 172 m² Wohnfläche
  • · 835 m² Grundstücksfläche
  • · 375.000 € Kaufpreis
Anbieter kontaktieren

Objektbeschreibung

Das als Ferienhaus gedachte Bauobjekt liegt in der Nähe der traumhaften Raša Bucht in Istrien.
Die Bauarbeiten haben 2019 begonnen, wurden jedoch nicht zu Ende geführt. Die Grundmauern und die räumliche Aufteilung wurden bereits abgeschlossen.
Das Haus ...mehr lesen
Das als Ferienhaus gedachte Bauobjekt liegt in der Nähe der traumhaften Raša Bucht in Istrien.
Die Bauarbeiten haben 2019 begonnen, wurden jedoch nicht zu Ende geführt. Die Grundmauern und die räumliche Aufteilung wurden bereits abgeschlossen.
Das Haus steht in einer sehr ruhigen Wohnlage umgeben von schönster mediterraner Landschaft.
Die malerische Raša Bucht mit ihrem glänzenden Wasser liegt nur 2,5 km entfernt und bietet schöne Momente für Liebhaber der Natur.

Der nächstliegende Ort Barban ist nur 7 km weit weg. Dort finden Sie Lebensmittelläden, Cafés und Tankstelle. Sollten Sie sich nach größeren Städten sehnen, so liegt das Stadtzentrum von Pula 32 km und Labin 20 km entfernt.

Verleihen Sie diesem Ferienhaus Ihren persönlichen Charme auf 172 m² Wohnfläche! Falls erforderlich, stehen wir Ihnen selbstverständlich mit erfahrenen Handwerkern zur Verfügung.
Verleihen Sie diesem Anwesen Ihre persönliche Note

Das als Ferienhaus gedachte Bauobjekt liegt in der Nähe des Dorfes Barban. Die Bauarbeiten haben 2019 begonnen, wurden jedoch nicht zu Ende geführt. Die Grundmauern und die räumliche Aufteilung wurden bereits abgeschlossen.

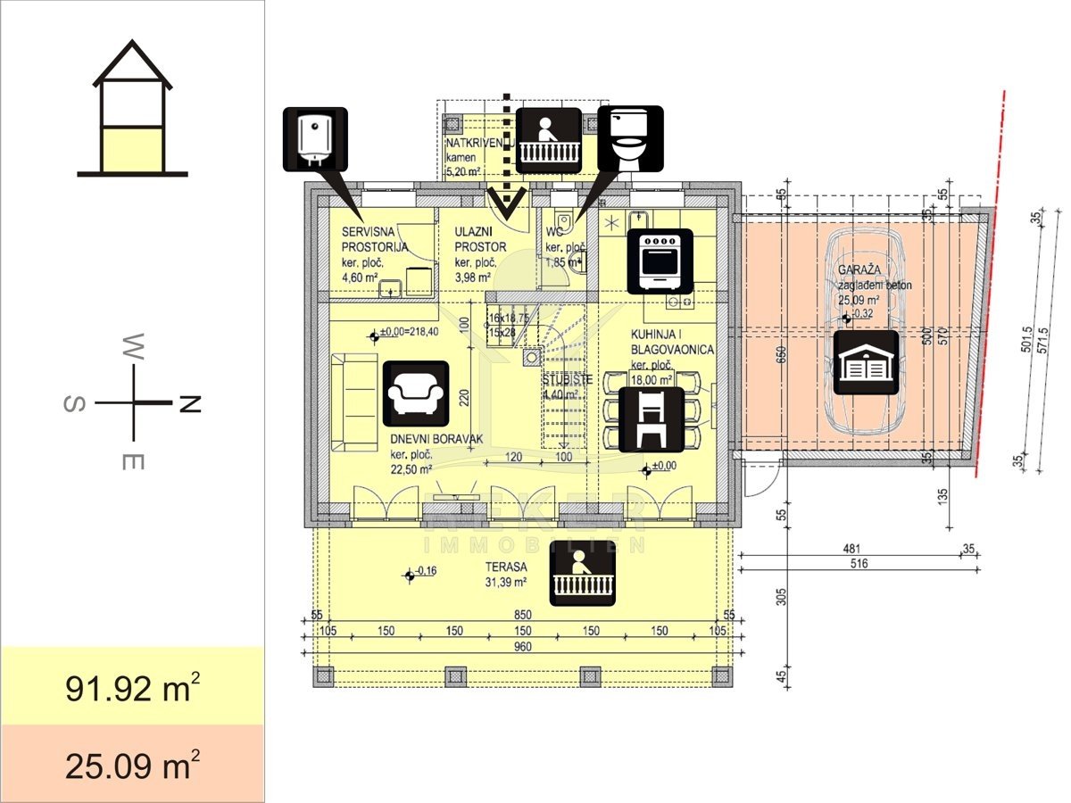
Das Wohnhaus bietet eine Wohnfläche von rund 172 m². Das Haus besteht aus dem Erdgeschoss mit einer Fläche von 91,92 m2 und dem 1. Stock mit einer Fläche von 79,67 m2. Genießen Sie einen fantastischen Ausblick auf das Meer von der Terrasse im Obergeschoss.

Im Erdgeschoss befindet sich das Wohnzimmer mit der offenen Küche und dem Esszimmer. Zudem wurde auf dieser Ebene an ein Gäste-WC und einen nützlichen Abstellraum gedacht. Vom Wohnraum aus gelangen Sie auf die zwei überdachten Terrassen. Im Garten erwartet Sie ein rechteckiger Pool umgeben von Grünfläche. Insgesamt verfügen Sie über ein 835 m² großes Grundstück, welches von einer Steinmauer umzäunt wird.

Immobiliendetails

  • Nutzungsart
    Wohnen
  • Objektart
    Villa
  • Hauptobjektart
    Haus
  • Vertragsart
    Kauf
  • Objektzustand
    Rohbau/Im Bau
  • Baujahr
    2020
  • Zimmer (gesamt)
    4
  • Anzahl Schlafzimmer
    3
  • Anzahl Badezimmer
    2
  • Anzahl Parkflächen
    2
  • Wohnfläche (ca.)
    172 m²
  • Grundstücksfläche (ca.)
    835 m²
  • Freier Stellplatz
    2
  • Stellplatzart
    Garage, Freiplatz
  • Garagenstellplätze
    2
  • Anzahl Etagen
    2
  • Dachform
    Satteldach
  • Ausblick
    Meer
  • Bauweise
    Massivhaus
  • Anbieter-Objektnummer
    1888

Preise & Kosten

  • Courtage
    3,75 % inklusive der gesetzlichen Mehrwertsteuer

Standort & Lage

52207 Barban · Istrien · HRV

Die genaue Anschrift erfahren Sie vom Anbieter

Anbieter

Logo von Reker Immobilien d.o.o.
2025 Best Property Agents
Verbraucherhinweis

Widerrufsbelehrung des Anbieters

(Gilt nicht für Wohnraummiete in Deutschland)

Widerrufsrecht für Verbraucher
Sie haben das Recht, binnen vierzehn Tagen ohne Angabe von Gründen diesen Vertrag zu widerrufen. Die Widerrufsfrist beträgt vierzehn Tage ab dem Tag des Vertragsabschlusses.
Um Ihr Widerrufsrecht auszuüben, müssen Sie uns (Reker Immobilien d.o.o., Micin Stanka 28 A, 22211 Vodice, +49 5207 77227, +49 5207 923455, info@reker-immobilien.de) mittels einer eindeutigen Erklärung (z. B. ein mit der Post versandter Brief, Telefax oder E-Mail) über Ihren Entschluss, diesen Vertrag zu widerrufen, informieren. Sie können dafür das beigefügte Muster-Widerrufsformular verwenden, das jedoch nicht vorgeschrieben ist. Zur Wahrung der Widerrufsfrist reicht es aus, dass Sie die Mitteilung über die Ausübung des Widerrufsrechts vor Ablauf der Widerrufsfrist absenden.

Folgen des Widerrufs
Wenn Sie diesen Vertrag widerrufen, haben wir Ihnen alle Zahlungen, die wir von Ihnen erhalten haben, einschließlich der Lieferkosten (mit Ausnahme der zusätzlichen Kosten, die sich daraus ergeben, dass Sie eine andere Art der Lieferung als die von uns angebotene, günstigste Standardlieferung gewählt haben), unverzüglich und spätestens binnen vierzehn Tagen ab dem Tag zurückzuzahlen, an dem die Mitteilung über Ihren Widerruf dieses Vertrags bei uns eingegangen ist. Für diese Rückzahlung verwenden wir dasselbe Zahlungsmittel, das Sie bei der ursprünglichen Transaktion eingesetzt haben, es sei denn, mit Ihnen wurde ausdrücklich etwas anderes vereinbart; in keinem Fall werden Ihnen wegen dieser Rückzahlung Entgelte berechnet. Haben Sie verlangt, dass die Dienstleistungen während der Widerrufsfrist beginnen soll, so haben Sie uns einen angemessenen Betrag zu zahlen, der dem Anteil der bis zu dem Zeitpunkt, zu dem Sie uns von der Ausübung des Widerrufsrechts hinsichtlich dieses Vertrags unterrichten, bereits erbrachten Dienstleistungen im Vergleich zum Gesamtumfang der im Vertrag vorgesehenen Dienstleistungen entspricht.

Muster-Widerrufsformular
(Wenn Sie den Vertrag widerrufen wollen, dann füllen Sie dieses Formular aus und senden Sie es zurück.)

An Reker Immobilien d.o.o., Micin Stanka 28 A, 22211 Vodice, +49 5207 77227, +49 5207 923455, info@reker-immobilien.de

Hiermit widerrufe ich/wir den von mir/uns abgeschlossenen Vertrag über den Kauf der folgenden Waren /die Erbringung der folgenden Dienstleistung


Bestellt am /erhalten am

Name des/der Verbraucher(s)

Anschrift des/der Verbraucher(s)

Unterschrift des/der Verbraucher(s) (nur bei Mitteilung auf Papier)

Datum


( Unzutreffendes streichen )


Hinweis auf die Möglichkeit eines vorzeitigen Erlöschens des Widerrufsrechts

Ihr Widerrufsrecht erlischt, wenn wir unsere Leistung vollständig erbracht haben und mit der Ausführung der Leistung erst begonnen haben, nachdem Sie Ihre ausdrückliche Zustimmung gegeben haben und gleichzeitig Ihre Kenntnis davon bestätigt haben, dass Sie Ihr Widerrufsrecht bei vollständiger Vertragserfüllung durch uns verlieren.

Impressum Reker Immobilien d.o.o.
VERTRETUNGSBERECHTIGTE/R
Heiner Reker


Micin Stanka 28 A
22211 Vodice
HRV
Tel.: +49 5207 77227
E-Mail: info@reker-immobilien.de
Fax: +49 5207 923455
Homepage: https://www.reker-immobilien.de

ZUSTÄNDIGE AUFSICHTSBEHÖRDE
Handelsgericht in Zagreb

HANDELSREGISTER-EINTRAG
081239791
Kroatische Wirtschaftskammer

UST-ID-NUMMER
HR 83 76066 2355
Anbieter kontaktieren

AGB, Datenschutz & Verbraucherhinweis wurden gelesen und akzeptiert.