Anbieter kontaktieren

AGB, Datenschutz & Verbraucherhinweis wurden gelesen und akzeptiert.

Kensington Artà - Martina Albrecht S.L.

KENSINGTON Finest Properties International Mallorca Nordosten
07570 Artà
  • Mehr erfahren
bellevue.de-ID: 30540739

Historisches Stadthaus auf höchstem Niveau saniert mit Pool und Garage in Artà

  • Haus
  • · 5 Zimmer
  • · 181 m² Wohnfläche
  • · 123 m² Grundstücksfläche
  • · 1.250.000 € Kaufpreis
Anbieter kontaktieren

Objektbeschreibung

Historisches Stadthaus mit wunderschönem Patio, Pool und Blick in Artà

Auf einem großzügigen Grundstück von 123 qm erwartet Sie ein wahres Schmuckstück, das mit viel Liebe zum Detail und unter Verwendung hochwertiger regionaler Materialien auf ...mehr lesen
Historisches Stadthaus mit wunderschönem Patio, Pool und Blick in Artà

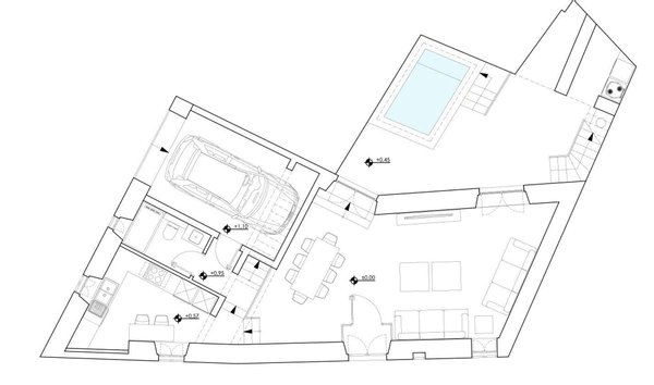
Auf einem großzügigen Grundstück von 123 qm erwartet Sie ein wahres Schmuckstück, das mit viel Liebe zum Detail und unter Verwendung hochwertiger regionaler Materialien auf höchstem Standard saniert wird.

Der einladende und lichtdurchflutete Eingangsbereich führt Sie direkt in den traumhaften mediterranen Patio, der ideal zum Entspannen und Verweilen einlädt. Das Haus bietet Platz für 4 Schlafzimmer und 3 Badezimmer, ergänzt durch einen kleinen Pool und eine Garage.

Für Ihren Komfort sorgen eine Fußbodenheizung sowie eine Klimaanlage, die über eine Luft-Wärmepumpe mit Solarunterstützung betrieben wird und stets angenehme Raumtemperaturen garantiert. Die Haustechnik wird über ein modernes Domotik-System bedient.

Die Fertigstellung dieses Traumhauses ist für Mitte 2026 geplant, allerdings kann es auch im jetzigen Zustand für 475.000€ erworben werden.

Immobiliendetails

  • Nutzungsart
    Wohnen
  • Objektart
    Stadthaus
  • Hauptobjektart
    Haus
  • Vertragsart
    Kauf
  • Objektzustand
    Teil- oder vollsaniert
  • Baujahr
    2025
  • Zimmer (gesamt)
    5
  • Anzahl Schlafzimmer
    3
  • Anzahl Badezimmer
    4
  • Anzahl Parkflächen
    1
  • Wohnfläche (ca.)
    180,89 m²
  • Grundstücksfläche (ca.)
    123 m²
  • Nutzfläche (ca.)
    208,1 m²
  • Küche
    Einbauküche (EBK)
  • Balkon
    1
  • Gartenfläche (ca.)
    20,15 m²
  • Anzahl Terrassen
    1
  • Anbieter-Objektnummer
    KPNO813

Preise & Kosten

  • Courtage
    Provisionsfrei

Energie

  • Heizungsart
    Fussbodenheizung
  • Befeuerungsart
    Luft-/Wasserwärme
  • Energieeffizienzklasse
    A
  • Gebäudeart
    Wohngebäude
  • Wesentlicher Energieträger
    Luftwärmepumpe

Ausstattung

  • Terrasse
  • Swimmingpool

Standort & Lage

Das mittelalterliche Künstlerstädtchen Artà hat sich zur heimlichen Hauptstadt des Nordostens entwickelt. Hier kann man ganzjährig ins mallorquine Leben eintauchen, Galerien und Boutiquen erkunden, oder Kulinarisches in historischen Innenhöfen ...mehr lesen
Das mittelalterliche Künstlerstädtchen Artà hat sich zur heimlichen Hauptstadt des Nordostens entwickelt. Hier kann man ganzjährig ins mallorquine Leben eintauchen, Galerien und Boutiquen erkunden, oder Kulinarisches in historischen Innenhöfen geniessen. Ein breites Angebot für Wanderer, Radfahrer und Golfer und natürlich viele Wassersportmöglichkeiten, sowie drei gut ausgestattete Sporthäfen machen den Nordosten zur Ganzjahresdestination. Unzählige Sandstrände und wilde Steinbuchten bieten grösstmögliche Abwechslung für lange Strandtage. Manacor, die zweitgrösste Stadt der Insel, bietet nicht nur top Einkaufsmöglichkeiten und ein allgemeines Krankenhaus, sondern auch die Rafael Nadal Academy, eine internationale Schule mit sehr gutem Ruf.

07570 Artà · Mallorca - Nordost - Artà · Mallorca · ESP

Die genaue Anschrift erfahren Sie vom Anbieter

Anbieter

Logo von Kensington Artà - Martina Albrecht S.L.
2025 Best Property Agents

Ansprechpartner

KENSINGTON Finest Properties International Mallorca Nordosten

Carrer de Ciutat 22
07570 Artà
Verbraucherhinweis

Widerrufsbelehrung des Anbieters

(Gilt nicht für Wohnraummiete in Deutschland)

Widerrufsrecht für Verbraucher
Sie haben das Recht, binnen vierzehn Tagen ohne Angabe von Gründen diesen Vertrag zu widerrufen. Die Widerrufsfrist beträgt vierzehn Tage ab dem Tag des Vertragsabschlusses.
Um Ihr Widerrufsrecht auszuüben, müssen Sie uns (Kensington Finest Properties Int., Carrer Ciutat 22, 07570 Artá, +34 670 275 663, martina.albrecht@kensington-international.com) mittels einer eindeutigen Erklärung (z. B. ein mit der Post versandter Brief, Telefax oder E-Mail) über Ihren Entschluss, diesen Vertrag zu widerrufen, informieren. Sie können dafür das beigefügte Muster-Widerrufsformular verwenden, das jedoch nicht vorgeschrieben ist. Zur Wahrung der Widerrufsfrist reicht es aus, dass Sie die Mitteilung über die Ausübung des Widerrufsrechts vor Ablauf der Widerrufsfrist absenden.

Folgen des Widerrufs
Wenn Sie diesen Vertrag widerrufen, haben wir Ihnen alle Zahlungen, die wir von Ihnen erhalten haben, einschließlich der Lieferkosten (mit Ausnahme der zusätzlichen Kosten, die sich daraus ergeben, dass Sie eine andere Art der Lieferung als die von uns angebotene, günstigste Standardlieferung gewählt haben), unverzüglich und spätestens binnen vierzehn Tagen ab dem Tag zurückzuzahlen, an dem die Mitteilung über Ihren Widerruf dieses Vertrags bei uns eingegangen ist. Für diese Rückzahlung verwenden wir dasselbe Zahlungsmittel, das Sie bei der ursprünglichen Transaktion eingesetzt haben, es sei denn, mit Ihnen wurde ausdrücklich etwas anderes vereinbart; in keinem Fall werden Ihnen wegen dieser Rückzahlung Entgelte berechnet. Haben Sie verlangt, dass die Dienstleistungen während der Widerrufsfrist beginnen soll, so haben Sie uns einen angemessenen Betrag zu zahlen, der dem Anteil der bis zu dem Zeitpunkt, zu dem Sie uns von der Ausübung des Widerrufsrechts hinsichtlich dieses Vertrags unterrichten, bereits erbrachten Dienstleistungen im Vergleich zum Gesamtumfang der im Vertrag vorgesehenen Dienstleistungen entspricht.

Muster-Widerrufsformular
(Wenn Sie den Vertrag widerrufen wollen, dann füllen Sie dieses Formular aus und senden Sie es zurück.)

An Kensington Finest Properties Int., Carrer Ciutat 22, 07570 Artá, +34 670 275 663, martina.albrecht@kensington-international.com

Hiermit widerrufe ich/wir den von mir/uns abgeschlossenen Vertrag über den Kauf der folgenden Waren /die Erbringung der folgenden Dienstleistung


Bestellt am /erhalten am

Name des/der Verbraucher(s)

Anschrift des/der Verbraucher(s)

Unterschrift des/der Verbraucher(s) (nur bei Mitteilung auf Papier)

Datum


( Unzutreffendes streichen )


Hinweis auf die Möglichkeit eines vorzeitigen Erlöschens des Widerrufsrechts

Ihr Widerrufsrecht erlischt, wenn wir unsere Leistung vollständig erbracht haben und mit der Ausführung der Leistung erst begonnen haben, nachdem Sie Ihre ausdrückliche Zustimmung gegeben haben und gleichzeitig Ihre Kenntnis davon bestätigt haben, dass Sie Ihr Widerrufsrecht bei vollständiger Vertragserfüllung durch uns verlieren.

Impressum Kensington Finest Properties Int.
VERTRETUNGSBERECHTIGTE/R
Martina Albrecht


Carrer Ciutat 22
07570 Artá
ESP
Tel.: +34 670 275 663
E-Mail: martina.albrecht@kensington-international.com
Homepage: www.kensington-mallorca.com

UST-ID-NUMMER
NIF: B67824342
Anbieter kontaktieren

AGB, Datenschutz & Verbraucherhinweis wurden gelesen und akzeptiert.