Anbieter kontaktieren

AGB, Datenschutz & Verbraucherhinweis wurden gelesen und akzeptiert.

Homes Deluxe

Homes Deluxe
03189 Orihuela Costa
  • Mehr erfahren
bellevue.de-ID: 30539413

3 Zimmer Villa in Los Altos

  • Haus
  • · 229 m² Wohnfläche
  • · 400 m² Grundstücksfläche
  • · 750.000 € Kaufpreis
Anbieter kontaktieren

Objektbeschreibung

Brandneue freistehende Villen im zeitgenössischen Stil mit 3 Schlafzimmern und privatem Swimmingpool in Los Altos, Orihuela Costa (Alicante), mit allen Annehmlichkeiten in Gehweite und nur eine kurze Fahrt zu den schönen Stränden entlang der ...mehr lesen
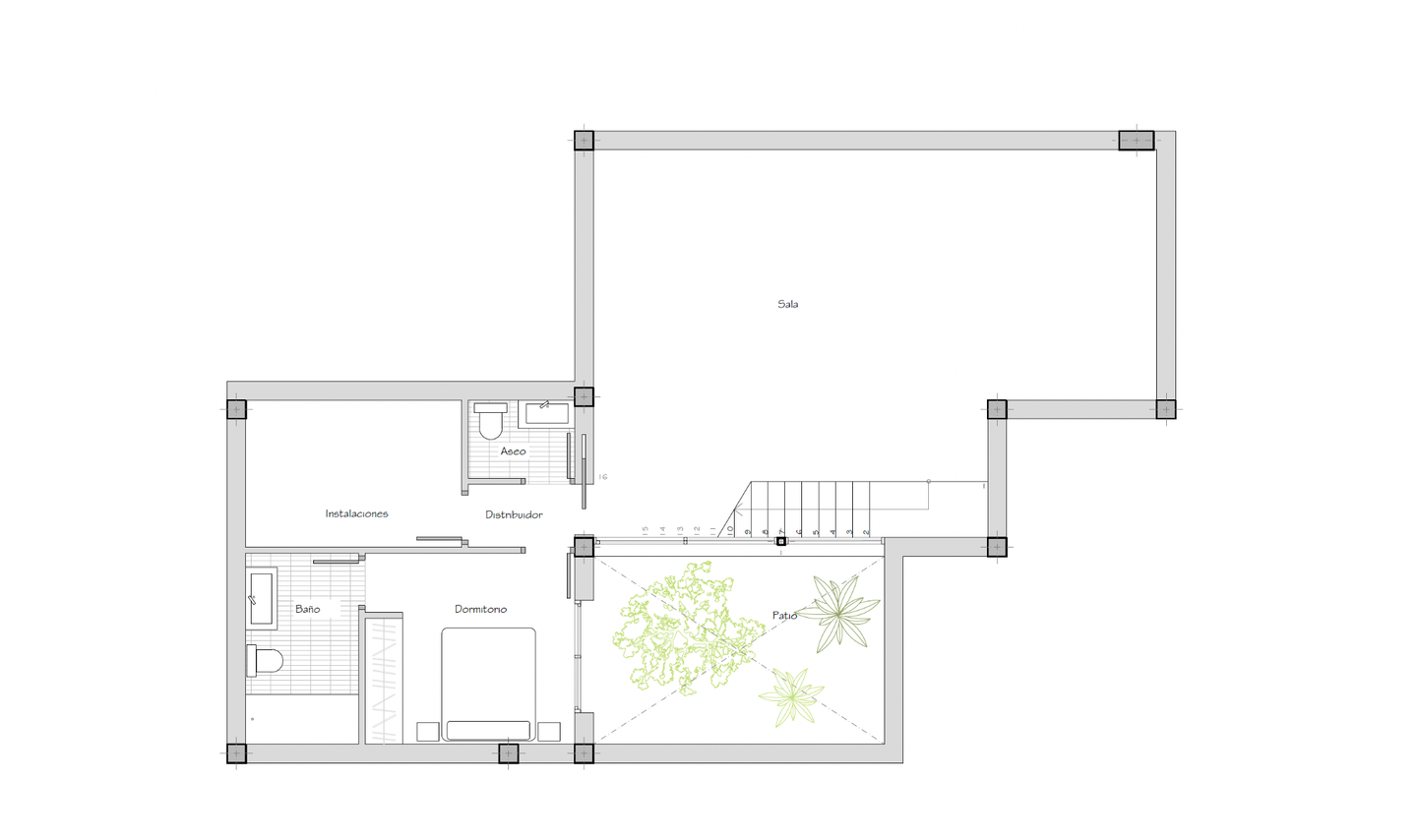
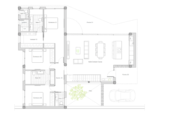
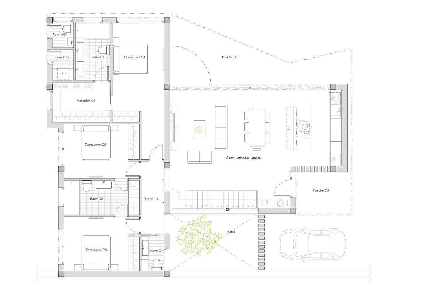
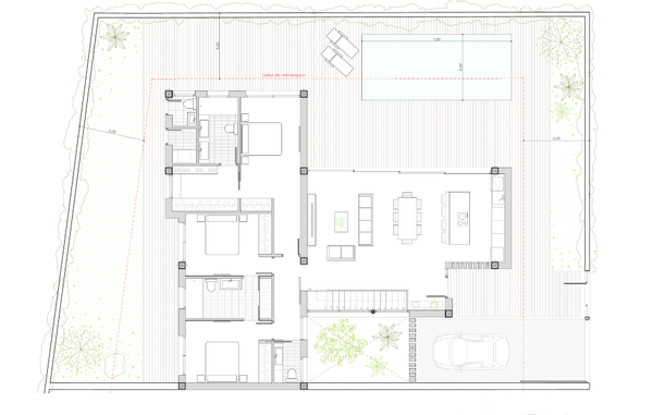
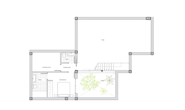
Brandneue freistehende Villen im zeitgenössischen Stil mit 3 Schlafzimmern und privatem Swimmingpool in Los Altos, Orihuela Costa (Alicante), mit allen Annehmlichkeiten in Gehweite und nur eine kurze Fahrt zu den schönen Stränden entlang der Orihuela Costa und Torrevieja.  Das Anwesen befindet sich auf einem Grundstück von 400m2 und verfügt über umfangreiche Außenterrassen und Garten, um das Beste aus dem Leben im Freien in Spanien zu machen, mit Chill-out-Bereiche rund um den privaten Swimmingpool und Bereiche für al-fresco Essen mit Familie und Freunden. Die Villa selbst ist 230m2 und ist in 150m2 der Hauptwohnfläche alle auf einer Ebene mit einem Semi-Sockel von 80m2 verteilt, die Sie zusätzlichen Wohnraum innerhalb der Eigenschaft zu schaffen, um zusätzliche Schlafzimmer, zweites Wohnzimmer, Fitnessraum, Spielzimmer, etc. nach Ihren Bedürfnissen und Anforderungen hinzufügen können.  Diese wunderschön gestalteten, einzigartigen Villen mit allen modernen Spezifikationen und Merkmalen verfügen über 3 Schlafzimmer und 4 Bäder. Das Innere Layout besteht aus einem hellen und geräumigen offenen Wohn- und Essbereich mit Funktion Boden bis zur Decke Fenster öffnen vollständig die Innen- und Außenräume als eine mit Blick auf den privaten Swimmingpool zu machen, eine voll ausgestattete moderne amerikanische Küche mit Mittelinsel, Gäste-WC, eine beeindruckende Master-Suite mit großem Schlafzimmer, en-suite Badezimmer, begehbarer Kleiderschrank / Ankleidebereich und Terrassentür Zugang auf die Terrasse und Poolbereich, und zwei weitere Doppel-Schlafzimmer, die beide teilen sich ein Badezimmer mit Tür Zugang von jedem Schlafzimmer, und beide Schlafzimmer mit Terrassentür Zugang auf die hintere Terrasse. Das Kellergeschoss ist über eine Innentreppe zu erreichen und verfügt über viel natürliches Licht durch den englischen Innenhof und große Fenster. Die Villa verfügt über eine Klimaanlage, Fußbodenheizung, Einbauschränke in allen Schlafzimmern, eine Waschküche, einen privaten Swimmingpool, eine separate Außentoilette und einen privaten Parkplatz auf dem Grundstück. Los Altos liegt südlich von Torrevieja an der Costa Blanca und ist nur 10 Minuten von den preisgekrönten Stränden von Torrevieja und Orihuela Costa entfernt, darunter Los Náufragos, El Acequión, El Cura, Los Locos, La Mata, Punta Prima, Playa Flamenca und La Zenia. Die Weltgesundheitsorganisation erklärte diese Gegend zu einem der gesündesten Orte der Welt. Ein Besuch der Salinas (Salzseen) in La Mata und Torrevieja ist sehr zu empfehlen. Nehmen Sie ein Schlammbad, dessen heilende Wirkung für eine Vielzahl von rheumatischen, dermatologischen, Herz- und Atemwegsbeschwerden bekannt ist. In der Nähe gibt es mehrere Einkaufszentren, darunter das Centro Commercial Punta Marina in Punta Prima sowie die Centro Commercials Filton und Terrazas de la Laguna in Los Balcones, die alle über eine große Auswahl an Bars und Restaurants, Geschäften, Supermärkten usw. verfügen. Das beliebte Einkaufszentrum La Zenia Boulevard ist nur 10 Autominuten entfernt, und die Gegend liegt auch ganz in der Nähe des Universitätskrankenhauses von Torrevieja. Die Orihuela Costa ist bekannt für ihre schönen und ausgezeichneten Golfplätze, und Golfliebhaber kommen mit den vier nahe gelegenen Meisterschaftsgolfplätzen Villamartin Golf, Las Ramblas Golf, Real Club de Golf Campoamor und dem preisgekrönten Las Colinas Golf and Country Club voll auf ihre Kosten.

Immobiliendetails

  • Nutzungsart
    Wohnen
  • Objektart
    Villa
  • Hauptobjektart
    Haus
  • Vertragsart
    Kauf
  • Anzahl Schlafzimmer
    3
  • Anzahl Badezimmer
    4
  • Wohnfläche (ca.)
    229 m²
  • Grundstücksfläche (ca.)
    400 m²
  • Anbieter-Objektnummer
    1176

Preise & Kosten

  • Courtage
    Keine besondere Angabe.

Standort & Lage

Los Altos

Die genaue Anschrift erfahren Sie vom Anbieter

Anbieter

Logo von Homes Deluxe

Homes Deluxe

Herr Thomas D. Kummer
Avenida de las Colinas, Urb. Las Colinas Golf
03189 Almendros, Los (Orihuela-Costa) (Urbanizacion)

Ansprechpartner

Verbraucherhinweis

Widerrufsbelehrung des Anbieters

(Gilt nicht für Wohnraummiete in Deutschland)

Widerrufsrecht für Verbraucher
Sie haben das Recht, binnen vierzehn Tagen ohne Angabe von Gründen diesen Vertrag zu widerrufen. Die Widerrufsfrist beträgt vierzehn Tage ab dem Tag des Vertragsabschlusses.
Um Ihr Widerrufsrecht auszuüben, müssen Sie uns (Homes Deluxe Spanien, Avda de las colinas 22 9, 03189 Orihuela Costa, 0034649669172, info@homes-deluxe.com) mittels einer eindeutigen Erklärung (z. B. ein mit der Post versandter Brief, Telefax oder E-Mail) über Ihren Entschluss, diesen Vertrag zu widerrufen, informieren. Sie können dafür das beigefügte Muster-Widerrufsformular verwenden, das jedoch nicht vorgeschrieben ist. Zur Wahrung der Widerrufsfrist reicht es aus, dass Sie die Mitteilung über die Ausübung des Widerrufsrechts vor Ablauf der Widerrufsfrist absenden.

Folgen des Widerrufs
Wenn Sie diesen Vertrag widerrufen, haben wir Ihnen alle Zahlungen, die wir von Ihnen erhalten haben, einschließlich der Lieferkosten (mit Ausnahme der zusätzlichen Kosten, die sich daraus ergeben, dass Sie eine andere Art der Lieferung als die von uns angebotene, günstigste Standardlieferung gewählt haben), unverzüglich und spätestens binnen vierzehn Tagen ab dem Tag zurückzuzahlen, an dem die Mitteilung über Ihren Widerruf dieses Vertrags bei uns eingegangen ist. Für diese Rückzahlung verwenden wir dasselbe Zahlungsmittel, das Sie bei der ursprünglichen Transaktion eingesetzt haben, es sei denn, mit Ihnen wurde ausdrücklich etwas anderes vereinbart; in keinem Fall werden Ihnen wegen dieser Rückzahlung Entgelte berechnet. Haben Sie verlangt, dass die Dienstleistungen während der Widerrufsfrist beginnen soll, so haben Sie uns einen angemessenen Betrag zu zahlen, der dem Anteil der bis zu dem Zeitpunkt, zu dem Sie uns von der Ausübung des Widerrufsrechts hinsichtlich dieses Vertrags unterrichten, bereits erbrachten Dienstleistungen im Vergleich zum Gesamtumfang der im Vertrag vorgesehenen Dienstleistungen entspricht.

Muster-Widerrufsformular
(Wenn Sie den Vertrag widerrufen wollen, dann füllen Sie dieses Formular aus und senden Sie es zurück.)

An Homes Deluxe Spanien, Avda de las colinas 22 9, 03189 Orihuela Costa, 0034649669172, info@homes-deluxe.com

Hiermit widerrufe ich/wir den von mir/uns abgeschlossenen Vertrag über den Kauf der folgenden Waren /die Erbringung der folgenden Dienstleistung


Bestellt am /erhalten am

Name des/der Verbraucher(s)

Anschrift des/der Verbraucher(s)

Unterschrift des/der Verbraucher(s) (nur bei Mitteilung auf Papier)

Datum


( Unzutreffendes streichen )


Hinweis auf die Möglichkeit eines vorzeitigen Erlöschens des Widerrufsrechts

Ihr Widerrufsrecht erlischt, wenn wir unsere Leistung vollständig erbracht haben und mit der Ausführung der Leistung erst begonnen haben, nachdem Sie Ihre ausdrückliche Zustimmung gegeben haben und gleichzeitig Ihre Kenntnis davon bestätigt haben, dass Sie Ihr Widerrufsrecht bei vollständiger Vertragserfüllung durch uns verlieren.

Impressum Homes Deluxe Spanien
VERTRETUNGSBERECHTIGTE/R
Thomas Kummer


Avda de las colinas 22 9
03189 Orihuela Costa
ESP
Tel.: 0034649669172
E-Mail: info@homes-deluxe.com
Homepage: https://homes-deluxe.com/de/

ZUSTÄNDIGE AUFSICHTSBEHÖRDE
API Alicante, C/ Arzobispo Loaces, 5 03003, Alicante COAPI & API NACIONAL SPANIEN

HANDELSREGISTER-EINTRAG
RAICV 1571


UST-ID-NUMMER
B42636787

ZUSÄTZLICHER TEXT
Wir sind ein API-registrierter professioneller Immobilienmakler mit Sitz in Spanien und verfügen über umfangreiche Erfahrungen im Immobiliensektor, die wir seit über 20 Jahren gesammelt haben. Wir sind in der Lage, Sie während des gesamten Prozesses der Suche und des Kaufs einer Immobilie zu unterstützen und Sie mit unabhängigen, seriösen Anwälten bekannt zu machen, die Ihre Sprache sprechen und die in der Lage sind, alle rechtlichen Anforderungen für den Kauf einer Immobilie in Spanien zu erfüllen, und wir können auch bei allen anderen Kundendienstleistungen helfen, die Sie benötigen.
Anbieter kontaktieren

AGB, Datenschutz & Verbraucherhinweis wurden gelesen und akzeptiert.