Anbieter kontaktieren

AGB, Datenschutz & Verbraucherhinweis wurden gelesen und akzeptiert.

HausHirsch GmbH

Dario Caporali
Downtown Dubai
  • Mehr erfahren
bellevue.de-ID: 30533575

Hochwertiges 1-Zimmer-Apartment im Binghatti Gardenia mit JVC-Community-Blick

  • Wohnung
  • · 2 Zimmer
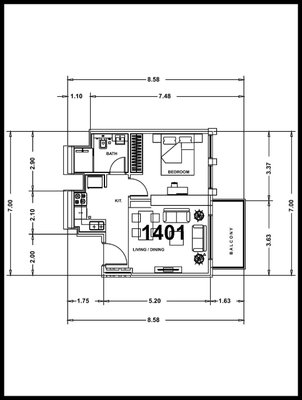
  • · 49 m² Wohnfläche
  • · 210.500 € Kaufpreis
Anbieter kontaktieren

Objektbeschreibung

Willkommen im Binghatti Gardenia - Ihrem neuen Zuhause im Herzen von JVC! Dieses brandneue Apartment mit einem Schlafzimmer ist perfekt für Paare, Singles und Kapitalanleger, die auf der Suche nach modernem und stilvollem Wohnraum sind. Mit einer ...mehr lesen
Willkommen im Binghatti Gardenia - Ihrem neuen Zuhause im Herzen von JVC! Dieses brandneue Apartment mit einem Schlafzimmer ist perfekt für Paare, Singles und Kapitalanleger, die auf der Suche nach modernem und stilvollem Wohnraum sind. Mit einer Fertigstellung im Dezember 2024 bietet dieses Apartment hochwertige Ausstattungsmerkmale wie eine voll ausgestattete Küche, ein geräumiges Badezimmer und einen großzügigen Wohnbereich. Darüber hinaus können Bewohner die Annehmlichkeiten eines gemeinschaftlichen Pools, Fitnessraums und einer schönen Gartenanlage genießen. Erleben Sie urbanes Wohnen in der Binghatti Gardenia - Ihr neues Zuhause wartet auf Sie!

Immobiliendetails

  • Nutzungsart
    Wohnen
  • Objektart
    Etagenwohnung
  • Hauptobjektart
    Wohnung
  • Vertragsart
    Kauf
  • Objektzustand
    Erstbezug
  • Zimmer (gesamt)
    2
  • Anzahl Schlafzimmer
    1
  • Anzahl Badezimmer
    1
  • Wohnfläche (ca.)
    48,68 m²
  • Nutzfläche (ca.)
    42,77 m²
  • Küche
    Einbauküche (EBK)
  • Balkon
    1
  • Balkon/Terrasse (ca.)
    5,91 m²
  • Etage
    14
  • Als Ferienobjekt nutzbar
  • Verfügbarkeit
    ab 01.12.2024
  • Anbieter-Objektnummer
    HA2415269

Preise & Kosten

  • Courtage
    Provisionsfrei

Energie

  • Gebäudeart
    Wohngebäude

Ausstattung

  • Swimmingpool
Willkommen in Ihrem brandneuen Zuhause im Binghatti Gardenia in JVC. Betreten Sie dieses moderne Apartment mit einem Schlafzimmer und lassen Sie sich von den 48 qm Wohnfläche sowie dem gemütlichen Balkon beeindrucken. Das Gebäude bietet Ihnen ...mehr lesen
Willkommen in Ihrem brandneuen Zuhause im Binghatti Gardenia in JVC. Betreten Sie dieses moderne Apartment mit einem Schlafzimmer und lassen Sie sich von den 48 qm Wohnfläche sowie dem gemütlichen Balkon beeindrucken. Das Gebäude bietet Ihnen zahlreiche Annehmlichkeiten wie einen Fitnessraum, einen erfrischenden Swimmingpool und einen sicheren Kinderspielplatz. Ein rund um die Uhr verfügbarer Sicherheitsdienst sorgt für Ihre Sicherheit. In unmittelbarer Nähe finden Sie Restaurants, Cafés, Parks und Gärten, die zu entspannten Spaziergängen und geselligen Stunden einladen. Erleben Sie die vielfältigen Möglichkeiten, die Ihnen dieses Apartment und seine Umgebung bieten. Willkommen im Binghatti Gardenia - Ihr neues Zuhause erwartet Sie!

Standort & Lage

Diese attraktive Immobilie befindet sich im begehrten Stadtteil Jumeirah Village Circle in Dubai. Dieser exklusive Stadtteil zeichnet sich durch eine luxuriöse Atmosphäre und eine ideale Lage aus.

Die Nachbarschaft bietet alles, was man für den ...mehr lesen
Diese attraktive Immobilie befindet sich im begehrten Stadtteil Jumeirah Village Circle in Dubai. Dieser exklusive Stadtteil zeichnet sich durch eine luxuriöse Atmosphäre und eine ideale Lage aus.

Die Nachbarschaft bietet alles, was man für den täglichen Bedarf benötigt. Ein Supermarkt ist nur wenige Minuten entfernt, ebenso wie Ärzte und Apotheken, die für Ihre Gesundheit sorgen.

Für Familien mit Kindern ist die Bildungseinrichtungen in der Nähe ein großer Pluspunkt. Kitas, Grundschulen, weiterführende Schulen und Universitäten sind alle gut erreichbar, um Ihren Kindern eine erstklassige Ausbildung zu ermöglichen.

In der Umgebung gibt es zahlreiche Freizeitmöglichkeiten, darunter ein großes Einkaufszentrum und Restaurants. Die pulsierende Stadt Dubai ist ebenfalls nur eine kurze Fahrt entfernt, um das aufregende Stadtleben zu genießen.

Die Anbindung ist hervorragend, mit einer Haltestelle für öffentliche Verkehrsmittel in der Nähe und einer Autobahnauffahrt, die Sie schnell zu jedem gewünschten Ziel führt.

Erleben Sie das Beste, was Dubai zu bieten hat, von dieser einzigartigen Immobilie im

Dubai · Dubai · ARE

Die genaue Anschrift erfahren Sie vom Anbieter

Ansprechpartner

Dario Caporali

Sidra Tower al Sufouh, 1 Office 1301
Downtown Dubai
Verbraucherhinweis

Widerrufsbelehrung des Anbieters

(Gilt nicht für Wohnraummiete in Deutschland)

Widerrufsrecht für Verbraucher
Sie haben das Recht, binnen vierzehn Tagen ohne Angabe von Gründen diesen Vertrag zu widerrufen. Die Widerrufsfrist beträgt vierzehn Tage ab dem Tag des Vertragsabschlusses.
Um Ihr Widerrufsrecht auszuüben, müssen Sie uns (HausHirsch GmbH, Dreischeibenhaus 1, 40211D Düsseldorf, +49 0 800 000 1244, +49 211 8825025, info@haushirsch.de) mittels einer eindeutigen Erklärung (z. B. ein mit der Post versandter Brief, Telefax oder E-Mail) über Ihren Entschluss, diesen Vertrag zu widerrufen, informieren. Sie können dafür das beigefügte Muster-Widerrufsformular verwenden, das jedoch nicht vorgeschrieben ist. Zur Wahrung der Widerrufsfrist reicht es aus, dass Sie die Mitteilung über die Ausübung des Widerrufsrechts vor Ablauf der Widerrufsfrist absenden.

Folgen des Widerrufs
Wenn Sie diesen Vertrag widerrufen, haben wir Ihnen alle Zahlungen, die wir von Ihnen erhalten haben, einschließlich der Lieferkosten (mit Ausnahme der zusätzlichen Kosten, die sich daraus ergeben, dass Sie eine andere Art der Lieferung als die von uns angebotene, günstigste Standardlieferung gewählt haben), unverzüglich und spätestens binnen vierzehn Tagen ab dem Tag zurückzuzahlen, an dem die Mitteilung über Ihren Widerruf dieses Vertrags bei uns eingegangen ist. Für diese Rückzahlung verwenden wir dasselbe Zahlungsmittel, das Sie bei der ursprünglichen Transaktion eingesetzt haben, es sei denn, mit Ihnen wurde ausdrücklich etwas anderes vereinbart; in keinem Fall werden Ihnen wegen dieser Rückzahlung Entgelte berechnet. Haben Sie verlangt, dass die Dienstleistungen während der Widerrufsfrist beginnen soll, so haben Sie uns einen angemessenen Betrag zu zahlen, der dem Anteil der bis zu dem Zeitpunkt, zu dem Sie uns von der Ausübung des Widerrufsrechts hinsichtlich dieses Vertrags unterrichten, bereits erbrachten Dienstleistungen im Vergleich zum Gesamtumfang der im Vertrag vorgesehenen Dienstleistungen entspricht.

Muster-Widerrufsformular
(Wenn Sie den Vertrag widerrufen wollen, dann füllen Sie dieses Formular aus und senden Sie es zurück.)

An HausHirsch GmbH, Dreischeibenhaus 1, 40211D Düsseldorf, +49 0 800 000 1244, +49 211 8825025, info@haushirsch.de

Hiermit widerrufe ich/wir den von mir/uns abgeschlossenen Vertrag über den Kauf der folgenden Waren /die Erbringung der folgenden Dienstleistung


Bestellt am /erhalten am

Name des/der Verbraucher(s)

Anschrift des/der Verbraucher(s)

Unterschrift des/der Verbraucher(s) (nur bei Mitteilung auf Papier)

Datum


( Unzutreffendes streichen )


Hinweis auf die Möglichkeit eines vorzeitigen Erlöschens des Widerrufsrechts

Ihr Widerrufsrecht erlischt, wenn wir unsere Leistung vollständig erbracht haben und mit der Ausführung der Leistung erst begonnen haben, nachdem Sie Ihre ausdrückliche Zustimmung gegeben haben und gleichzeitig Ihre Kenntnis davon bestätigt haben, dass Sie Ihr Widerrufsrecht bei vollständiger Vertragserfüllung durch uns verlieren.

Impressum HausHirsch GmbH
VERTRETUNGSBERECHTIGTE/R
Marius Wolf


Dreischeibenhaus 1
40211D Düsseldorf
DEU
Tel.: +49 0 800 000 1244
E-Mail: info@haushirsch.de
Fax: +49 211 8825025
Homepage: https://haushirsch.de

ZUSTÄNDIGE AUFSICHTSBEHÖRDE
Die Gewerbeanmeldung nach § 34 c GewO wurde durch Stadt Düsseldorf (www.duesseldorf.de) erteilt.

HANDELSREGISTER-EINTRAG
Amtsgericht Düsseldorf, HRB 99093


UST-ID-NUMMER
DE362155160
Anbieter kontaktieren

AGB, Datenschutz & Verbraucherhinweis wurden gelesen und akzeptiert.