Anbieter kontaktieren

AGB, Datenschutz & Verbraucherhinweis wurden gelesen und akzeptiert.

Su Casita, S.L.

Monika Hannemann
03177 San Fulgencio (Alicante), Spanien
  • Mehr erfahren
bellevue.de-ID: 30530855

Luxuriöse Appartements mit 4 Schlafzimmern, 3 Bädern, Fußbodenheizung, Klimaanlage, Meerblick und Gemeinschaftspool nur 700 m vom Strand

  • Wohnung
  • · 5 Zimmer
  • · 155 m² Wohnfläche
  • · 1.668.300 € Kaufpreis
Anbieter kontaktieren

Objektbeschreibung

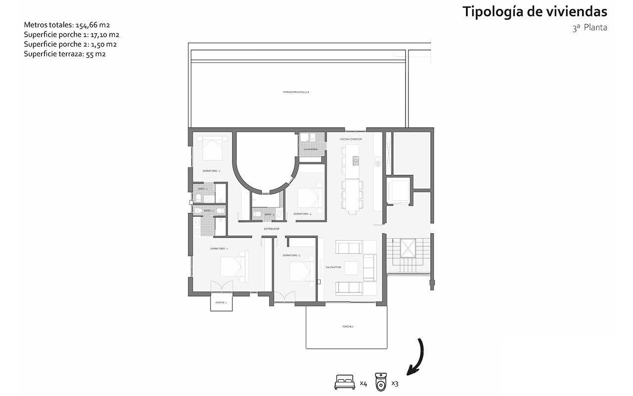
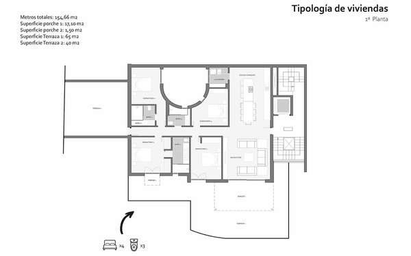
Diese fantastischen Appartements verfügen über eine konstruierte Fläche von 155 m² mit

4 Schlafzimmern,
3 Badezimmern (2 en-suite),
1 Wohn-/Esszimmer mit
moderner Einbauküche und
1 Hauswirtschaftsraum.

Darüber hinaus sind großzügige Terrassen vorhanden.

Der ...mehr lesen
Diese fantastischen Appartements verfügen über eine konstruierte Fläche von 155 m² mit

4 Schlafzimmern,
3 Badezimmern (2 en-suite),
1 Wohn-/Esszimmer mit
moderner Einbauküche und
1 Hauswirtschaftsraum.

Darüber hinaus sind großzügige Terrassen vorhanden.

Der exklusive abgeschlossene Wohnkomplex in Santa Ponsa besteht aus 24 luxuriösen Appartements mit jeweils 4 Schlafzimmern, die geräumig, hell und von höchster Qualität sind, um eine einzigartige und komfortable Atmosphäre zu schaffen. Die Wohnanlage verfügt über eine Tiefgarage, Gemeinschaftsgärten, Sportplatz und Swimmingpool. Sie ist außerdem mit den neuesten technologischen Installationen im Bereich der Energieeffizienz ausgestattet, zum Beispiel der Aerothermie, einer Technik, die die Luft als Energiequelle nutzt, oder das Wärmedämmsystem SATE in den Fassaden. Alle Wohnungen wurden so konzipiert, dass sie über Außenbereiche verfügen, auf denen Sie die herrlichen Temperaturen Mallorcas und die nahe Meeresbrise genießen können. Auf jeder Etage finden Sie großzügige Terrassen mit viel Platz zum Essen und Entspannen, die Penthäuser verfügen sogar über einen privaten Swimmingpool.

Die Wohnungen wurden nach den höchsten Qualitätsstandards und dem neuesten Stand der Technik entworfen, um Ihnen ein exklusives Zuhause zu bieten. Hochwertige Materialien und modernste Energieeffizienz verbinden sich zu einem luxuriösen Zuhause, das Sie verdienen. Großzügige Räume mit komfortablem Design, gebaut mit natürlichen Materialien wie Eiche/Nussbaum/Jet, Marmor, Feinsteinzeug oder Naturstein aus Marés (Sand), verleihen der Wohnung eine einzigartige Harmonie. Der Komfort und die Bequemlichkeit aller Elemente, mit hochwertigen Elektrogeräten, Designarmaturen und modernster Technik, verleihen diesen Wohnungen eine unvergleichliche Qualität. Darüber hinaus bieten sie modernste technische Systeme. So sind beispielsweise alle Räume mit dem Hausautomationssystem KNX
Zennio ausgestattet, mit dem Sie Klimaanlage, Fußbodenheizung, Jalousien und Beleuchtung steuern können.

Die Küche ist in den Gemeinschaftsbereich integriert und so konzipiert, dass Sie das Kochen genießen können, während Sie mit Ihren Lieben zusammenleben. Hochwertige Designermöbel aus Holz werden mit
Spitzengeräten von Miele und einer einzigartigen Arbeitsplatte aus Marmor und Porzellan kombiniert. Alles in natürliches Licht getaucht durch die großen Fenster oder den warmen Schein der in die Decke integrierten LED-Strahler im ganzen Raum.

Immobiliendetails

  • Nutzungsart
    Wohnen
  • Objektart
    Etagenwohnung
  • Hauptobjektart
    Wohnung
  • Vertragsart
    Kauf
  • Objektzustand
    Neubau
  • Zimmer (gesamt)
    5
  • Anzahl Schlafzimmer
    4
  • Anzahl Badezimmer
    3
  • Wohnfläche (ca.)
    155 m²
  • Küche
    Einbauküche (EBK), 1
  • Anzahl Terrassen
    2
  • Tiefgaragenstellplätze
    1
  • Ausblick
    Meer
  • Ausstattungskategorie
    Luxus
  • Objektzustand
    Neubau
  • Anbieter-Objektnummer
    HAN-MLN-170-A01

Preise & Kosten

  • Courtage
    Unsere Angebote sind für Käufer provisionsfrei!

Energie

  • Heizungsart
    Fussbodenheizung
  • Befeuerungsart
    Luft-/Wasserwärme
  • Energieausweis
    Energiebedarfsausweis
  • Energieeffizienzklasse
    A
  • Gebäudeart
    Wohngebäude
  • Wesentlicher Energieträger
    Strom
  • Ausgestellt
    nach dem 1.5.2014

Ausstattung

  • Personenaufzug
  • Klimanalage
  • Swimmingpool
  • Garten
  • Teilmöbliert
  • Fußbodenheizung

Standort & Lage

Santa Ponsa liegt direkt am Meer im Südwesten Mallorcas und ist ein Ort mit besonderem Charme. Strände, Golfplätze, Yachtclub, Restaurants und Geschäfte sind in die natürliche Umgebung eines der begehrtesten
Küstenabschnitte der Balearen integriert.

De ...mehr lesen
Santa Ponsa liegt direkt am Meer im Südwesten Mallorcas und ist ein Ort mit besonderem Charme. Strände, Golfplätze, Yachtclub, Restaurants und Geschäfte sind in die natürliche Umgebung eines der begehrtesten
Küstenabschnitte der Balearen integriert.

Der Strand ist nur ein paar Gehminuten entfernt und Puerto Adriano und Puerto de Andratx sind in wenigen Minuten mit dem Auto zu erreichen.

Die Hauptstadt der Insel, Palma de Mallorca, ist nur ca. 20 Autominuten von Santa Ponsa entfernt und nur 5 Minuten weiter liegt der internationale Flughafen Son Sant Joan. Die Umgebung von Santa Ponsa bietet eine große Auswahl an sportlichen Aktivitäten wie z. B. Golf, Kite-Surfing, Segeln, Tauchen und vieles mehr. Santa Ponsa ist außerdem umgeben von den 3 beliebtesten Häfen von Mallorca wie Puerto Portals Nous, Puerto de Andratx und Puerto Adriano.

07183 Santa Ponsa · Mallorca · Mallorca · ESP

Die genaue Anschrift erfahren Sie vom Anbieter

Anbieter

Logo von Su Casita, S.L.
2026 Best Property Agents

Ansprechpartner

Monika Hannemann

Calle Atenas, 59
03177 San Fulgencio (Alicante), Spanien
Verbraucherhinweis

Widerrufsbelehrung des Anbieters

Gilt nicht für Wohnraummiete in Deutschland

Widerrufsrecht für Verbraucher

Sie haben das Recht, binnen vierzehn Tagen ohne Angabe von Gründen diesen Vertrag zu widerrufen. Die Widerrufsfrist beträgt vierzehn Tage ab dem Tag des Vertragsabschlusses.

Um Ihr Widerrufsrecht auszuüben, müssen Sie uns (Su Casita S.L., C./ Bilbao, 42, Urb. La Marina, 03177 San Fulgencio (Alicante), Fax: 0034-966 790 016, Tel: 0034-966 790 012, kontakt@sucasita.eu) mittels einer eindeutigen Erklärung (z. B. ein mit der Post versandter Brief, Telefax oder E-Mail) über Ihren Entschluss, diesen Vertrag zu widerrufen, informieren. Sie können dafür das beigefügte Muster-Widerrufsformular verwenden, das jedoch nicht vorgeschrieben ist. Zur Wahrung der Widerrufsfrist reicht es aus, dass Sie die Mitteilung über die Ausübung des Widerrufsrechts vor Ablauf der Widerrufsfrist absenden.

Folgen des Widerrufs

Wenn Sie diesen Vertrag widerrufen, haben wir Ihnen alle Zahlungen, die wir von Ihnen erhalten haben, einschließlich der Lieferkosten (mit Ausnahme der zusätzlichen Kosten, die sich daraus ergeben, dass Sie eine andere Art der Lieferung als die von uns angebotene, günstigste Standardlieferung gewählt haben), unverzüglich und spätestens binnen vierzehn Tagen ab dem Tag zurückzuzahlen, an dem die Mitteilung über Ihren Widerruf dieses Vertrags bei uns eingegangen ist. Für diese Rückzahlung verwenden wir dasselbe Zahlungsmittel, das Sie bei der ursprünglichen Transaktion eingesetzt haben, es sei denn, mit Ihnen wurde ausdrücklich etwas anderes vereinbart; in keinem Fall werden Ihnen wegen dieser Rückzahlung Entgelte berechnet. Haben Sie verlangt, dass die Dienstleistungen während der Widerrufsfrist beginnen soll, so haben Sie uns einen angemessenen Betrag zu zahlen, der dem Anteil der bis zu dem Zeitpunkt, zu dem Sie uns von der Ausübung des Widerrufsrechts hinsichtlich dieses Vertrags unterrichten, bereits erbrachten Dienstleistungen im Vergleich zum Gesamtumfang der im Vertrag vorgesehenen Dienstleistungen entspricht.

Muster-Widerrufsformular

(Wenn Sie den Vertrag widerrufen wollen, dann füllen Sie dieses Formular aus und senden Sie es zurück.)

An Su Casita S.L., C./ Bilbao, 42, Urb. La Marina, 03177 San Fulgencio (Alicante), Fax: 0034-966 790 016, kontakt@sucasita.eu
Hiermit widerrufe(n) ich/wir (*) den von mir/uns (*) abgeschlossenen Vertrag über den Kauf der folgenden Waren (*)/die Erbringung der folgenden Dienstleistung (*)


- Bestellt am (*)/erhalten am (*)

- Name des/der Verbraucher(s)

- Anschrift des/der Verbraucher(s)

- Unterschrift des/der Verbraucher(s) (nur bei Mitteilung auf Papier)
- Datum


(*) Unzutreffendes streichen

Hinweis auf die Möglichkeit eines vorzeitigen Erlöschens des Widerrufsrechts

Ihr Widerrufsrecht erlischt, wenn wir unsere Leistung vollständig erbracht haben und mit der Ausführung der Leistung erst begonnen haben, nachdem Sie Ihre ausdrückliche Zustimmung gegeben haben und gleichzeitig Ihre Kenntnis davon bestätigt haben, dass Sie Ihr Widerrufsrecht bei vollständiger Vertragserfüllung durch uns verlieren.

Impressum Su Casita S.L.
VERTRETUNGSBERECHTIGTE/R
Jan Hannemann


C./ Bilbao, 42, Urb. La Marina 42
03177 San Fulgencio (Alicante)
ESP
Tel.: 0034-966 790 012
E-Mail: kontakt@sucasita.eu
Fax: 0034-966 790 016
Homepage: http://www.sucasita.eu

ZUSTÄNDIGE AUFSICHTSBEHÖRDE
Registro Mercantil de Alicante, Calle de Eusebio Sempere, 8, Alicante, Spanien

HANDELSREGISTER-EINTRAG
Registergericht: Registro Mercantil de Alicante, Tomo 1.939, Libro 0, Folio 187,


UST-ID-NUMMER
ES B53133054

ZUSÄTZLICHER TEXT
Verbraucherinformationen Online-Streitbeilegung gemäß Art. 14 Abs. 1 ODR-VO: Die Europäische Kommission stellt eine Plattform zur Online-Streitbeilegung (OS) bereit, die Sie hier finden: http://ec.europa.eu/consumers/odr
Anbieter kontaktieren

AGB, Datenschutz & Verbraucherhinweis wurden gelesen und akzeptiert.