Anbieter kontaktieren

AGB, Datenschutz & Verbraucherhinweis wurden gelesen und akzeptiert.

HausHirsch GmbH

Dario Caporali
Downtown Dubai
  • Mehr erfahren
bellevue.de-ID: 30522579

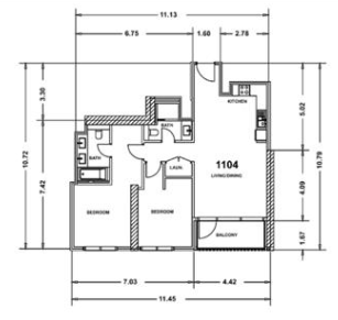
Luxuriöse 3-Zimmer-Wohnung mit Kanalblick im Creek Gate Tower 1

  • Wohnung
  • · 3 Zimmer
  • · 97 m² Wohnfläche
  • · 610.000 € Kaufpreis
Anbieter kontaktieren

Objektbeschreibung

Willkommen in Ihrem neuen Zuhause in einer der exklusivsten Gegenden Dubais! Die 3-Zimmer-Wohnung im Creek Gate Tower 1 besticht durch ihre Premium-Lage und ist ideal für Paare, Kapitalanleger und Familien. Genießen Sie den atemberaubenden Blick auf ...mehr lesen
Willkommen in Ihrem neuen Zuhause in einer der exklusivsten Gegenden Dubais! Die 3-Zimmer-Wohnung im Creek Gate Tower 1 besticht durch ihre Premium-Lage und ist ideal für Paare, Kapitalanleger und Familien. Genießen Sie den atemberaubenden Blick auf den Dubai Creek und die Skyline der Stadt direkt von Ihrem Wohnzimmer aus. Die Wohnung verfügt über eine moderne und hochwertige Ausstattung, darunter eine voll ausgestattete Küche, geräumige Schlafzimmer und ein luxuriöses Badezimmer. Entspannen Sie sich am Pool auf der Dachterrasse oder halten Sie sich im Fitnessstudio fit. Mit dieser Wohnung treffen Sie die perfekte Wahl für ein luxuriöses und komfortables Wohnen in Dubai.

Immobiliendetails

  • Nutzungsart
    Wohnen
  • Objektart
    Etagenwohnung
  • Hauptobjektart
    Wohnung
  • Vertragsart
    Kauf
  • Objektzustand
    Gepflegt
  • Zimmer (gesamt)
    3
  • Anzahl Schlafzimmer
    2
  • Anzahl Badezimmer
    2
  • Wohnfläche (ca.)
    97,27 m²
  • Nutzfläche (ca.)
    89,87 m²
  • Balkon
    1
  • Balkon/Terrasse (ca.)
    7,4 m²
  • Etage
    11
  • Anzahl Etagen
    30
  • Als Ferienobjekt nutzbar
  • Verfügbarkeit
    ab 01.08.2024
  • Anbieter-Objektnummer
    HA2413419

Preise & Kosten

  • Courtage
    Provisionsfrei

Energie

  • Gebäudeart
    Wohngebäude

Ausstattung

  • Gäste-WC
  • Swimmingpool
Willkommen in Ihrem neuen Zuhause im Creek Gate Tower 1! Diese 3-Zimmer-Wohnung bietet nicht nur eine perfekte Investitionsmöglichkeit, sondern auch einen atemberaubenden Blick auf den kommenden Creek Tower.

Das Gebäude beeindruckt mit erstklassigen ...mehr lesen
Willkommen in Ihrem neuen Zuhause im Creek Gate Tower 1! Diese 3-Zimmer-Wohnung bietet nicht nur eine perfekte Investitionsmöglichkeit, sondern auch einen atemberaubenden Blick auf den kommenden Creek Tower.

Das Gebäude beeindruckt mit erstklassigen Annehmlichkeiten, darunter ein Fitnessraum, ein Swimmingpool, ein Kinderspielplatz, Gemeinschaftsbereiche, ein 24-Stunden-Sicherheitsdienst, Cafés, Restaurants und Einzelhandelsgeschäfte.

Stellen Sie sich vor, wie Sie den Tag im Fitnessraum beginnen, im Pool entspannen und dann einen Kaffee in einem der gemütlichen Cafés genießen. Oder wie Sie sich mit Freunden und Familie in den Gemeinschaftsbereichen treffen und den Sonnenuntergang über der Stadt genießen.

Diese Wohnung bietet Ihnen nicht nur ein luxuriöses Wohngefühl, sondern auch eine Vielzahl von Möglichkeiten, Ihr Leben zu bereichern. Machen Sie sich bereit, in Ihrem neuen Zuhause im Creek Gate Tower 1 ein neues Kapitel zu beginnen!

Standort & Lage

Die Stadt Dubai, ein schillerndes Juwel in der Wüste, besticht durch ihre atemberaubende Skyline, Luxusimmobilien und pulsierende Lebenskultur. Als eines der modernsten und innovativsten urbanen Zentren der Welt bietet Dubai eine einzigartige ...mehr lesen
Die Stadt Dubai, ein schillerndes Juwel in der Wüste, besticht durch ihre atemberaubende Skyline, Luxusimmobilien und pulsierende Lebenskultur. Als eines der modernsten und innovativsten urbanen Zentren der Welt bietet Dubai eine einzigartige Mischung aus Tradition und Moderne.

Das Stadtviertel Creek Harbour in Dubai ist ein aufstrebendes und exklusives Wohngebiet, das sich durch seine erstklassige Lage am Wasser und seine luxuriöse Lebensweise auszeichnet. Hier finden Sie eine Vielzahl von erstklassigen Wohnmöglichkeiten, die einen spektakulären Blick auf die Skyline Dubais oder den atemberaubenden Creek bieten.

In der Nachbarschaft von Creek Harbour finden Sie alles, was Sie für Ihren täglichen Bedarf benötigen. Supermärkte, Ärzte und Apotheken sind nur einen kurzen Spaziergang entfernt, um sicherzustellen, dass Sie immer gut versorgt sind.

Im Bereich Bildung bietet Creek Harbour eine Vielzahl von Bildungseinrichtungen, darunter Kindergärten, Grundschulen, weiterführende Schulen und Universitäten, die es den Bewohnern ermöglichen, ihren Bildungsbedarf vor Ort zu decken.

Für Freizeitaktivitäten bietet die Umgebung von Creek Harbour eine Vielzahl von Option

Dubai · Dubai · ARE

Die genaue Anschrift erfahren Sie vom Anbieter

Ansprechpartner

Dario Caporali

Sidra Tower al Sufouh, 1 Office 1301
Downtown Dubai
Verbraucherhinweis

Widerrufsbelehrung des Anbieters

(Gilt nicht für Wohnraummiete in Deutschland)

Widerrufsrecht für Verbraucher
Sie haben das Recht, binnen vierzehn Tagen ohne Angabe von Gründen diesen Vertrag zu widerrufen. Die Widerrufsfrist beträgt vierzehn Tage ab dem Tag des Vertragsabschlusses.
Um Ihr Widerrufsrecht auszuüben, müssen Sie uns (HausHirsch GmbH, Dreischeibenhaus 1, 40211D Düsseldorf, +49 0 800 000 1244, +49 211 8825025, info@haushirsch.de) mittels einer eindeutigen Erklärung (z. B. ein mit der Post versandter Brief, Telefax oder E-Mail) über Ihren Entschluss, diesen Vertrag zu widerrufen, informieren. Sie können dafür das beigefügte Muster-Widerrufsformular verwenden, das jedoch nicht vorgeschrieben ist. Zur Wahrung der Widerrufsfrist reicht es aus, dass Sie die Mitteilung über die Ausübung des Widerrufsrechts vor Ablauf der Widerrufsfrist absenden.

Folgen des Widerrufs
Wenn Sie diesen Vertrag widerrufen, haben wir Ihnen alle Zahlungen, die wir von Ihnen erhalten haben, einschließlich der Lieferkosten (mit Ausnahme der zusätzlichen Kosten, die sich daraus ergeben, dass Sie eine andere Art der Lieferung als die von uns angebotene, günstigste Standardlieferung gewählt haben), unverzüglich und spätestens binnen vierzehn Tagen ab dem Tag zurückzuzahlen, an dem die Mitteilung über Ihren Widerruf dieses Vertrags bei uns eingegangen ist. Für diese Rückzahlung verwenden wir dasselbe Zahlungsmittel, das Sie bei der ursprünglichen Transaktion eingesetzt haben, es sei denn, mit Ihnen wurde ausdrücklich etwas anderes vereinbart; in keinem Fall werden Ihnen wegen dieser Rückzahlung Entgelte berechnet. Haben Sie verlangt, dass die Dienstleistungen während der Widerrufsfrist beginnen soll, so haben Sie uns einen angemessenen Betrag zu zahlen, der dem Anteil der bis zu dem Zeitpunkt, zu dem Sie uns von der Ausübung des Widerrufsrechts hinsichtlich dieses Vertrags unterrichten, bereits erbrachten Dienstleistungen im Vergleich zum Gesamtumfang der im Vertrag vorgesehenen Dienstleistungen entspricht.

Muster-Widerrufsformular
(Wenn Sie den Vertrag widerrufen wollen, dann füllen Sie dieses Formular aus und senden Sie es zurück.)

An HausHirsch GmbH, Dreischeibenhaus 1, 40211D Düsseldorf, +49 0 800 000 1244, +49 211 8825025, info@haushirsch.de

Hiermit widerrufe ich/wir den von mir/uns abgeschlossenen Vertrag über den Kauf der folgenden Waren /die Erbringung der folgenden Dienstleistung


Bestellt am /erhalten am

Name des/der Verbraucher(s)

Anschrift des/der Verbraucher(s)

Unterschrift des/der Verbraucher(s) (nur bei Mitteilung auf Papier)

Datum


( Unzutreffendes streichen )


Hinweis auf die Möglichkeit eines vorzeitigen Erlöschens des Widerrufsrechts

Ihr Widerrufsrecht erlischt, wenn wir unsere Leistung vollständig erbracht haben und mit der Ausführung der Leistung erst begonnen haben, nachdem Sie Ihre ausdrückliche Zustimmung gegeben haben und gleichzeitig Ihre Kenntnis davon bestätigt haben, dass Sie Ihr Widerrufsrecht bei vollständiger Vertragserfüllung durch uns verlieren.

Impressum HausHirsch GmbH
VERTRETUNGSBERECHTIGTE/R
Marius Wolf


Dreischeibenhaus 1
40211D Düsseldorf
DEU
Tel.: +49 0 800 000 1244
E-Mail: info@haushirsch.de
Fax: +49 211 8825025
Homepage: https://haushirsch.de

ZUSTÄNDIGE AUFSICHTSBEHÖRDE
Die Gewerbeanmeldung nach § 34 c GewO wurde durch Stadt Düsseldorf (www.duesseldorf.de) erteilt.

HANDELSREGISTER-EINTRAG
Amtsgericht Düsseldorf, HRB 99093


UST-ID-NUMMER
DE362155160
Anbieter kontaktieren

AGB, Datenschutz & Verbraucherhinweis wurden gelesen und akzeptiert.