Anbieter kontaktieren

AGB, Datenschutz & Verbraucherhinweis wurden gelesen und akzeptiert.

Kensington Artà - Martina Albrecht S.L.

KENSINGTON Finest Properties International Mallorca Nordosten
07570 Artà
  • Mehr erfahren
bellevue.de-ID: 30515859

Mallorquinischer Charme & moderner Minimalismus – Neubaufinca mit Panoramablick bis zum Meer

  • Haus
  • · 6 Zimmer
  • · 355 m² Wohnfläche
  • · 26.000 m² Grundstücksfläche
  • · 4.950.000 € Kaufpreis
Anbieter kontaktieren

Objektbeschreibung

Mallorquinischer Zauber trifft auf eleganten Minimalismus

Betreten Sie dieses architektonische Meisterstück und lassen Sie sich von der nahtlosen Integration natürlicher Oberflächen begeistern. Ses Pins ist ein Juwel des warmen Minimalismus. Der helle ...mehr lesen
Mallorquinischer Zauber trifft auf eleganten Minimalismus

Betreten Sie dieses architektonische Meisterstück und lassen Sie sich von der nahtlosen Integration natürlicher Oberflächen begeistern. Ses Pins ist ein Juwel des warmen Minimalismus. Der helle Bodenbelag harmoniert perfekt mit den Wänden und der Decke und verleiht dem Innenraum einen ganz besonderen Charakter von Ruhe, Wärme und Entspannung.

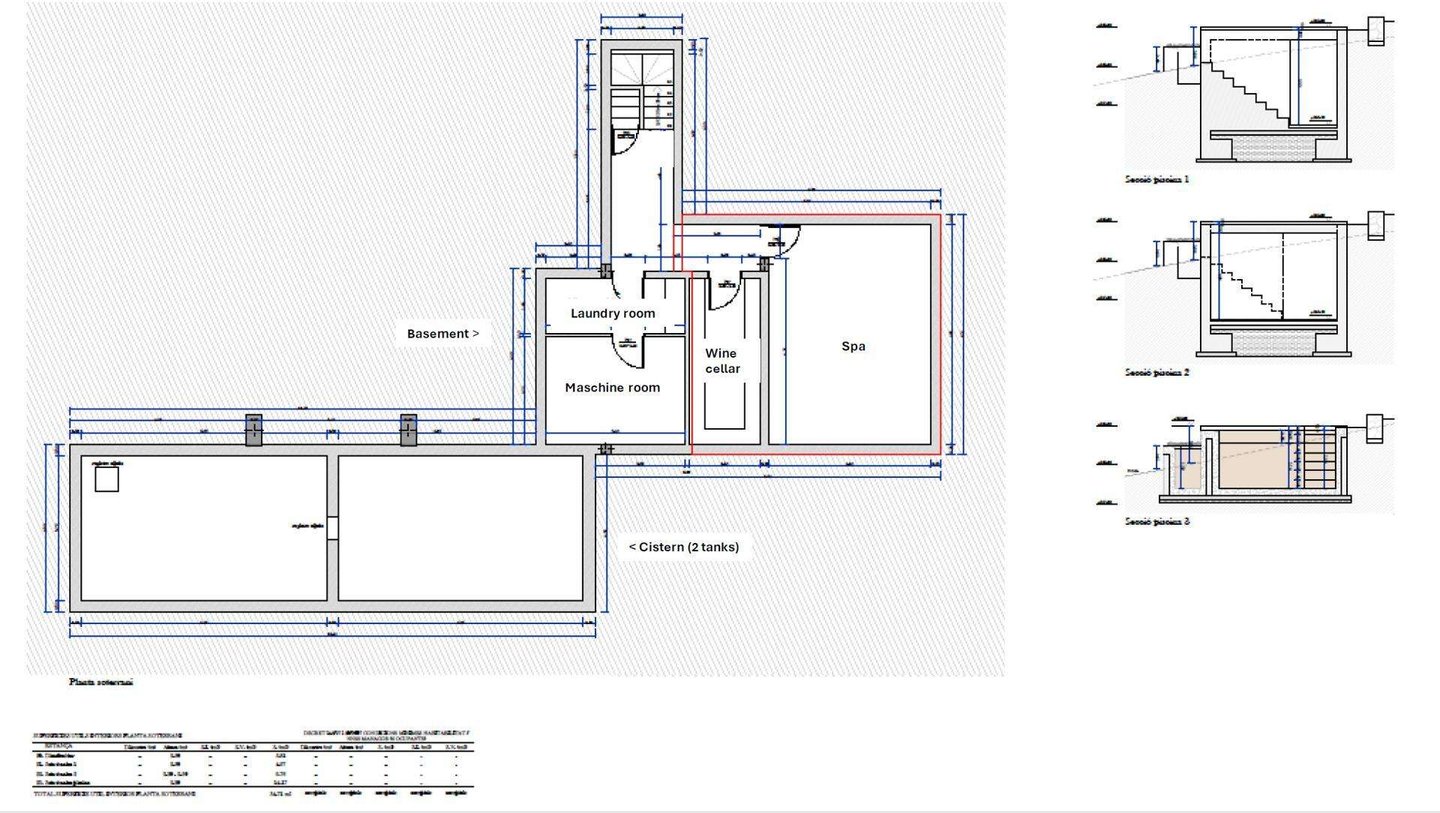
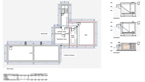
Mit einer reinen Wohnfläche von 355 qm (inklusive 55 qm Keller für Spa, Weinkeller und Waschküche) und einer konstruierten Fläche von 700 qm (Haus, Vorhof, Patio, diverse Terrassen und Poolbereich mit Pool-Lounge) bietet Ses Pins großzügigen Raum für luxuriöses Wohnen. Das Herzstück ist der offen gestaltete Wohnbereich, der Wohn-, Ess- und Küchenbereich nahtlos mit zwei Terrassen und einer Pergola verbindet und einen großzügigen Open-Concept Living Space (240 qm) schafft. Die Raumhöhe von bis zu 3,60 Metern und großflächige Fenster sorgen für eine lichtdurchflutete Atmosphäre. Die Klarheit der Struktur mit dem offenem Wohnkonzept basiert auf einem Entwurf des niederländischen Stararchitekten Rem Koolhaas, einem renommierten Vertreter der modernistischen Architektur.

Die exklusive Küche, ausgestattet mit Geräten führender Hersteller (Miele, Dornbracht), maßgefertigten Schränken und einer massiven Mittelinsel ist der perfekte Ort für gesellige Zusammenkünfte. Das Hauptschlafzimmer ist ein Ruheort mit privatem Außenbereich, einer Außendusche und direktem Zugang zum Pool- und Spa-Bereich. Das Badezimmer bietet mit einer freistehenden Badewanne eine Spa-ähnliche Oase der Entspannung.

Eines der beeindruckendsten Merkmale dieser Immobilie ist der nahtlose Übergang zwischen Innen- und Außenbereich. Der glitzernde Pool und die Pool-Lounge laden zum Entspannen ein – genießen Sie strahlende Morgen und sternenklare Abende in exklusiver Abgeschiedenheit.

Die erhöhte Lage (250 m) bietet einen atemberaubenden Blick auf Pinienwälder, das Mittelmeer und den Klosterberg San Salvador. Das 26.000 qm große, abgeschiedene Grundstück am Ende einer Sackgasse liegt zwischen Son Macia und Felanitx und bietet absolute Ruhe, aber auch die Nähe zu Einkaufsmöglichkeiten, Rafael Nadals Tennisakademie & Spa sowie zu Stränden, Spitzenrestaurants und Golfplätzen (10-20 Minuten Fahrtzeit).

Ses Pins ist eine außergewöhnliche Gelegenheit, eine Immobilie von unvergleichlichem Zauber auf Mallorca zu besitzen. Ein perfektes Zusammenspiel aus architektonischer Brillanz, natürlicher Schönheit und modernem Luxus, mit Fertigstellung Anfang 2025.

Immobiliendetails

  • Nutzungsart
    Wohnen
  • Objektart
    Finca
  • Hauptobjektart
    Haus
  • Vertragsart
    Kauf
  • Objektzustand
    Erstbezug
  • Baujahr
    2024
  • Zimmer (gesamt)
    6
  • Anzahl Schlafzimmer
    4
  • Anzahl Badezimmer
    4
  • Wohnfläche (ca.)
    355 m²
  • Grundstücksfläche (ca.)
    26.000 m²
  • Nutzfläche (ca.)
    700 m²
  • Küche
    Einbauküche (EBK)
  • Anzahl Terrassen
    4
  • Fußboden
    Stein
  • Anbieter-Objektnummer
    KPNO750

Preise & Kosten

  • Courtage
    Provisionsfrei

Energie

  • Heizungsart
    Fussbodenheizung
  • Befeuerungsart
    Luft-/Wasserwärme
  • Energieeffizienzklasse
    A
  • Gebäudeart
    Wohngebäude
  • Wesentlicher Energieträger
    Luftwärmepumpe

Ausstattung

  • Kamin
  • Gäste-WC
  • Barrierefrei
  • Klimanalage
  • Swimmingpool
  • Garten
  • Keller
Weitere Merkmale:
- Pool Salzwasser 12x3m
- Keller für Spa, Weinkeller und Waschküche
- Fußbodenheizung mit Wärmepumpe
- Klimaanlage
- High-Speed-Internet
- Eigenen Brunnen und öffentliche Stromversorgung
- Osmoseanlage und Zisterne mit 46.000 Litern ...mehr lesen
Weitere Merkmale:
- Pool Salzwasser 12x3m
- Keller für Spa, Weinkeller und Waschküche
- Fußbodenheizung mit Wärmepumpe
- Klimaanlage
- High-Speed-Internet
- Eigenen Brunnen und öffentliche Stromversorgung
- Osmoseanlage und Zisterne mit 46.000 Litern Kapazität

Genießen Sie den gelassenen Luxus und den Traumblick bis zum Meer – Willkommen in Ses Pins.

Standort & Lage

Ihr exklusiver Rückzugsort befindet sich auf einem beeindruckenden, 26.000 qm großen, abgeschiedenen Grundstück, das am Ende einer ruhigen Sackgasse gelegen ist. Hier, in absoluter Stille und Abgeschiedenheit, zwischen den charmanten Ortschaften Son ...mehr lesen
Ihr exklusiver Rückzugsort befindet sich auf einem beeindruckenden, 26.000 qm großen, abgeschiedenen Grundstück, das am Ende einer ruhigen Sackgasse gelegen ist. Hier, in absoluter Stille und Abgeschiedenheit, zwischen den charmanten Ortschaften Son Macia und Felanitx, können Sie die Ruhe und Privatsphäre in vollen Zügen genießen.

Trotz der idyllischen Abgeschiedenheit sind alle Annehmlichkeiten des täglichen Lebens nur eine kurze Autofahrt entfernt. In nur 10 Minuten erreichen Sie vielfältige Einkaufsmöglichkeiten, und in 15 Minuten sind Sie bei der renommierten Rafael Nadal Tennisakademie & Spa, wo Sie sich sportlich betätigen oder entspannen können.

Die malerischen Strände und Buchten der unberührten mallorquinischen Ostküste liegen ebenfalls in Ihrer Nähe und sind in nur 10 bis 20 Minuten erreichbar. In unmittelbarer Umgebung finden Sie zudem erstklassige Restaurants, die Ihnen kulinarische Highlights bieten, sowie zwei exzellente Golfplätze für sportliche Aktivitäten.

07500 Manacor · Mallorca - Nordost - Manacor · Mallorca · ESP

Die genaue Anschrift erfahren Sie vom Anbieter

Anbieter

Logo von Kensington Artà - Martina Albrecht S.L.
2025 Best Property Agents

Ansprechpartner

KENSINGTON Finest Properties International Mallorca Nordosten

Carrer de Ciutat 22
07570 Artà
Verbraucherhinweis

Widerrufsbelehrung des Anbieters

(Gilt nicht für Wohnraummiete in Deutschland)

Widerrufsrecht für Verbraucher
Sie haben das Recht, binnen vierzehn Tagen ohne Angabe von Gründen diesen Vertrag zu widerrufen. Die Widerrufsfrist beträgt vierzehn Tage ab dem Tag des Vertragsabschlusses.
Um Ihr Widerrufsrecht auszuüben, müssen Sie uns (Kensington Finest Properties Int., Carrer Ciutat 22, 07570 Artá, +34 670 275 663, martina.albrecht@kensington-international.com) mittels einer eindeutigen Erklärung (z. B. ein mit der Post versandter Brief, Telefax oder E-Mail) über Ihren Entschluss, diesen Vertrag zu widerrufen, informieren. Sie können dafür das beigefügte Muster-Widerrufsformular verwenden, das jedoch nicht vorgeschrieben ist. Zur Wahrung der Widerrufsfrist reicht es aus, dass Sie die Mitteilung über die Ausübung des Widerrufsrechts vor Ablauf der Widerrufsfrist absenden.

Folgen des Widerrufs
Wenn Sie diesen Vertrag widerrufen, haben wir Ihnen alle Zahlungen, die wir von Ihnen erhalten haben, einschließlich der Lieferkosten (mit Ausnahme der zusätzlichen Kosten, die sich daraus ergeben, dass Sie eine andere Art der Lieferung als die von uns angebotene, günstigste Standardlieferung gewählt haben), unverzüglich und spätestens binnen vierzehn Tagen ab dem Tag zurückzuzahlen, an dem die Mitteilung über Ihren Widerruf dieses Vertrags bei uns eingegangen ist. Für diese Rückzahlung verwenden wir dasselbe Zahlungsmittel, das Sie bei der ursprünglichen Transaktion eingesetzt haben, es sei denn, mit Ihnen wurde ausdrücklich etwas anderes vereinbart; in keinem Fall werden Ihnen wegen dieser Rückzahlung Entgelte berechnet. Haben Sie verlangt, dass die Dienstleistungen während der Widerrufsfrist beginnen soll, so haben Sie uns einen angemessenen Betrag zu zahlen, der dem Anteil der bis zu dem Zeitpunkt, zu dem Sie uns von der Ausübung des Widerrufsrechts hinsichtlich dieses Vertrags unterrichten, bereits erbrachten Dienstleistungen im Vergleich zum Gesamtumfang der im Vertrag vorgesehenen Dienstleistungen entspricht.

Muster-Widerrufsformular
(Wenn Sie den Vertrag widerrufen wollen, dann füllen Sie dieses Formular aus und senden Sie es zurück.)

An Kensington Finest Properties Int., Carrer Ciutat 22, 07570 Artá, +34 670 275 663, martina.albrecht@kensington-international.com

Hiermit widerrufe ich/wir den von mir/uns abgeschlossenen Vertrag über den Kauf der folgenden Waren /die Erbringung der folgenden Dienstleistung


Bestellt am /erhalten am

Name des/der Verbraucher(s)

Anschrift des/der Verbraucher(s)

Unterschrift des/der Verbraucher(s) (nur bei Mitteilung auf Papier)

Datum


( Unzutreffendes streichen )


Hinweis auf die Möglichkeit eines vorzeitigen Erlöschens des Widerrufsrechts

Ihr Widerrufsrecht erlischt, wenn wir unsere Leistung vollständig erbracht haben und mit der Ausführung der Leistung erst begonnen haben, nachdem Sie Ihre ausdrückliche Zustimmung gegeben haben und gleichzeitig Ihre Kenntnis davon bestätigt haben, dass Sie Ihr Widerrufsrecht bei vollständiger Vertragserfüllung durch uns verlieren.

Impressum Kensington Finest Properties Int.
VERTRETUNGSBERECHTIGTE/R
Martina Albrecht


Carrer Ciutat 22
07570 Artá
ESP
Tel.: +34 670 275 663
E-Mail: martina.albrecht@kensington-international.com
Homepage: www.kensington-mallorca.com

UST-ID-NUMMER
NIF: B67824342
Anbieter kontaktieren

AGB, Datenschutz & Verbraucherhinweis wurden gelesen und akzeptiert.