Anbieter kontaktieren

AGB, Datenschutz & Verbraucherhinweis wurden gelesen und akzeptiert.

Dianium Inmo - Concept S.L.

Cornelia Grün
03750 Pedreguer
  • Mehr erfahren
bellevue.de-ID: 30494179

Traumwohnung, Panoramameerblick | Villefranche-sur-Mer

  • Wohnung
  • · 3 Zimmer
  • · 73 m² Wohnfläche
  • · 1.100.000 € Kaufpreis
Anbieter kontaktieren

Objektbeschreibung

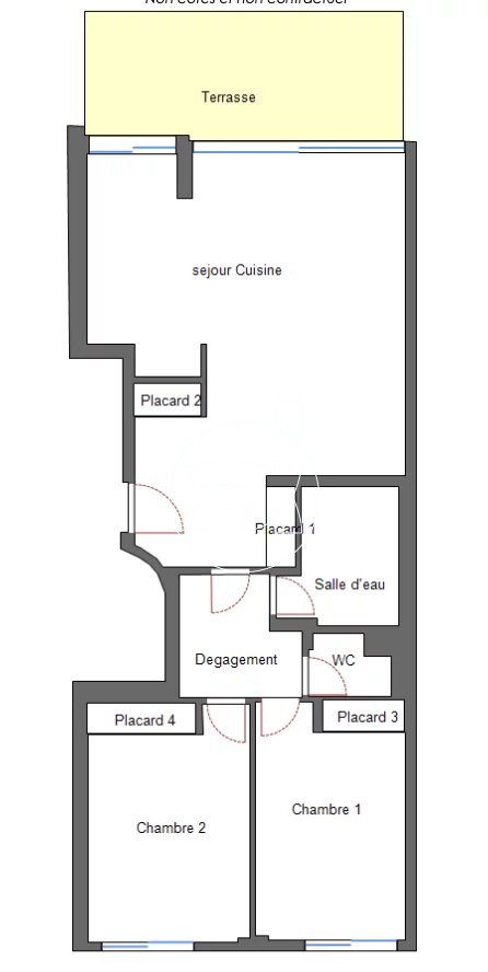
Diese wunderschöne 3,5-Zimmer Wohnung von 75 m², die schlüsselfertig verkauft wird, befindet sich in der 3. von 5 Etagen in der renommierten Anlage "L'Agrianthe" mit Pool und Wachdienst in dem traumhaften Ort Villefranche sur Mer, gleich hinter dem ...mehr lesen
Diese wunderschöne 3,5-Zimmer Wohnung von 75 m², die schlüsselfertig verkauft wird, befindet sich in der 3. von 5 Etagen in der renommierten Anlage "L'Agrianthe" mit Pool und Wachdienst in dem traumhaften Ort Villefranche sur Mer, gleich hinter dem Hafen von Nizza.

Sie bietet ein privilegiertes Lebensumfeld, in dem Sie die Geschäfte, Restaurants und Strände von Villefranche zu Fuß erreichen können. Die öffentlichen Verkehrsmittel sind nur 100 Meter entfernt und bieten einen einfachen Zugang.

Die helle Wohnung besteht aus einem Eingangsbereich, einem geräumigen Wohnzimmer mit amerikanischer Einbauküche, die sich zu einer 14 m² großen Terrasse in Südlage öffnet, mit herrlichem Blick auf das Meer, die Rade von Villefranche und Saint-Jean-Cap-Ferrat.

Des Weiteren gibt es zwei schöne, ruhige Schlafzimmer mit Einbauschränken sowie ein Duschbad und eine separate Toilette. Die Wohnung verfügt außerdem über einen Keller und einen Parkplatz.

Sie liegt ca.10 Autominuten vom Zentrum von Nizza und etwa 20 Minuten vom Flughafen entfernt.

Immobiliendetails

  • Nutzungsart
    Wohnen
  • Objektart
    Etagenwohnung
  • Hauptobjektart
    Wohnung
  • Vertragsart
    Kauf
  • Zimmer (gesamt)
    3
  • Anzahl Schlafzimmer
    2
  • Anzahl Badezimmer
    1
  • Anzahl separate WC
    1
  • Wohnfläche (ca.)
    73 m²
  • Küche
    1
  • Anbieter-Objektnummer
    DIC.13295

Preise & Kosten

  • Courtage
    Keine besondere Angabe.

Ausstattung

  • Möbliert

Standort & Lage

Inmitten der malerischen Küstenlandschaft der französischen Riviera liegt das bezaubernde Villefranche-Sur-Mer, eingebettet zwischen sanften Hügeln und dem azurblauen Mittelmeer. Die pittoreske Stadt besticht durch ihre idyllische Lage, umgeben von ...mehr lesen
Inmitten der malerischen Küstenlandschaft der französischen Riviera liegt das bezaubernde Villefranche-Sur-Mer, eingebettet zwischen sanften Hügeln und dem azurblauen Mittelmeer. Die pittoreske Stadt besticht durch ihre idyllische Lage, umgeben von üppig grüner Vegetation und duftenden Zitronen- und Orangenhainen.

Die Altstadt beeindruckt mit ihren verwinkelten Gassen, gesäumt von pastellfarbenen Häusern mit blumengeschmückten Balkonen. Der historische Charme der mittelalterlichen Architektur verleiht Villefranche-Sur-Mer eine einzigartige Atmosphäre, die zum Flanieren und Entdecken einlädt.

Entlang der Uferpromenade erstrecken sich charmante Cafés und Restaurants, die köstliche mediterrane Spezialitäten servieren. Von den erhöhten Aussichtspunkten bietet sich ein atemberaubender Blick auf das glitzernde Meer und die vorgelagerten Fischerboote, die sanft im Wasser schaukeln.

Mit seinem malerischen Hafen und den goldenen Sandstränden ist Villefranche-Sur-Mer ein wahres Juwel an der Côte d'Azur, das Besucher mit seiner natürlichen Schönheit und seinem entspannten Flair verzaubert.

06230 Villefranche-sur-Mer · Côte d'Azur - Villefranche-sur-Mer · FRA

Die genaue Anschrift erfahren Sie vom Anbieter

Anbieter

Logo von Dianium Inmo - Concept S.L.
2025 Best Property Agents

Ansprechpartner

Cornelia Grün

Avenida Marina Alta 56
03750 Pedreguer
Verbraucherhinweis

Widerrufsbelehrung des Anbieters

(Gilt nicht für Wohnraummiete in Deutschland)

Widerrufsrecht für Verbraucher
Sie haben das Recht, binnen vierzehn Tagen ohne Angabe von Gründen diesen Vertrag zu widerrufen. Die Widerrufsfrist beträgt vierzehn Tage ab dem Tag des Vertragsabschlusses.
Um Ihr Widerrufsrecht auszuüben, müssen Sie uns (Dianium Inmo Concept S.L, Avenida Marina Alta 56, 03750 Pedreguer, +34680697751, info@dianium-residence.com) mittels einer eindeutigen Erklärung (z. B. ein mit der Post versandter Brief, Telefax oder E-Mail) über Ihren Entschluss, diesen Vertrag zu widerrufen, informieren. Sie können dafür das beigefügte Muster-Widerrufsformular verwenden, das jedoch nicht vorgeschrieben ist. Zur Wahrung der Widerrufsfrist reicht es aus, dass Sie die Mitteilung über die Ausübung des Widerrufsrechts vor Ablauf der Widerrufsfrist absenden.

Folgen des Widerrufs
Wenn Sie diesen Vertrag widerrufen, haben wir Ihnen alle Zahlungen, die wir von Ihnen erhalten haben, einschließlich der Lieferkosten (mit Ausnahme der zusätzlichen Kosten, die sich daraus ergeben, dass Sie eine andere Art der Lieferung als die von uns angebotene, günstigste Standardlieferung gewählt haben), unverzüglich und spätestens binnen vierzehn Tagen ab dem Tag zurückzuzahlen, an dem die Mitteilung über Ihren Widerruf dieses Vertrags bei uns eingegangen ist. Für diese Rückzahlung verwenden wir dasselbe Zahlungsmittel, das Sie bei der ursprünglichen Transaktion eingesetzt haben, es sei denn, mit Ihnen wurde ausdrücklich etwas anderes vereinbart; in keinem Fall werden Ihnen wegen dieser Rückzahlung Entgelte berechnet. Haben Sie verlangt, dass die Dienstleistungen während der Widerrufsfrist beginnen soll, so haben Sie uns einen angemessenen Betrag zu zahlen, der dem Anteil der bis zu dem Zeitpunkt, zu dem Sie uns von der Ausübung des Widerrufsrechts hinsichtlich dieses Vertrags unterrichten, bereits erbrachten Dienstleistungen im Vergleich zum Gesamtumfang der im Vertrag vorgesehenen Dienstleistungen entspricht.

Muster-Widerrufsformular
(Wenn Sie den Vertrag widerrufen wollen, dann füllen Sie dieses Formular aus und senden Sie es zurück.)

An Dianium Inmo Concept S.L, Avenida Marina Alta 56, 03750 Pedreguer, +34680697751, info@dianium-residence.com

Hiermit widerrufe ich/wir den von mir/uns abgeschlossenen Vertrag über den Kauf der folgenden Waren /die Erbringung der folgenden Dienstleistung


Bestellt am /erhalten am

Name des/der Verbraucher(s)

Anschrift des/der Verbraucher(s)

Unterschrift des/der Verbraucher(s) (nur bei Mitteilung auf Papier)

Datum


( Unzutreffendes streichen )


Hinweis auf die Möglichkeit eines vorzeitigen Erlöschens des Widerrufsrechts

Ihr Widerrufsrecht erlischt, wenn wir unsere Leistung vollständig erbracht haben und mit der Ausführung der Leistung erst begonnen haben, nachdem Sie Ihre ausdrückliche Zustimmung gegeben haben und gleichzeitig Ihre Kenntnis davon bestätigt haben, dass Sie Ihr Widerrufsrecht bei vollständiger Vertragserfüllung durch uns verlieren.

Impressum Dianium Inmo Concept S.L
VERTRETUNGSBERECHTIGTE/R
Cornelia Grün


Avenida Marina Alta 56
03750 Pedreguer
ESP
Tel.: +34680697751
E-Mail: info@dianium-residence.com
Homepage: www.dianium-residence.com

HANDELSREGISTER-EINTRAG
Alicante B-54664057


UST-ID-NUMMER
ESB 54664057
Anbieter kontaktieren

AGB, Datenschutz & Verbraucherhinweis wurden gelesen und akzeptiert.