Anbieter kontaktieren

AGB, Datenschutz & Verbraucherhinweis wurden gelesen und akzeptiert.

Balearic Properties Real Estate S.L.

Bild/Logo: Balearic  Properties
Balearic Properties
07460 Pollença
  • Mehr erfahren
bellevue.de-ID: 30493063

Stilvolles Stadthausprojekt mit Pool kaufen im Zentrum von Campanet, Nord-Mallorca

  • Haus
  • · 194 m² Wohnfläche
  • · 282 m² Grundstücksfläche
  • · 540.000 € Kaufpreis
Anbieter kontaktieren

Objektbeschreibung

Dieses Grundstück steht in einer ruhigen Straße in Campanet zum Verkauf und bietet einen atemberaubenden Panoramablick auf die umliegende Landschaft und das Dorf. Das Grundstück befindet sich in erstklassiger Lage, nur wenige Schritte vom Hauptplatz, ...mehr lesen
Dieses Grundstück steht in einer ruhigen Straße in Campanet zum Verkauf und bietet einen atemberaubenden Panoramablick auf die umliegende Landschaft und das Dorf. Das Grundstück befindet sich in erstklassiger Lage, nur wenige Schritte vom Hauptplatz, Geschäften, Bars und Restaurants entfernt, und bietet somit umfassenden Komfort.

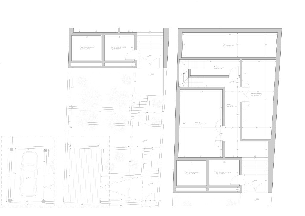
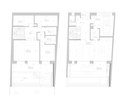
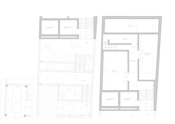
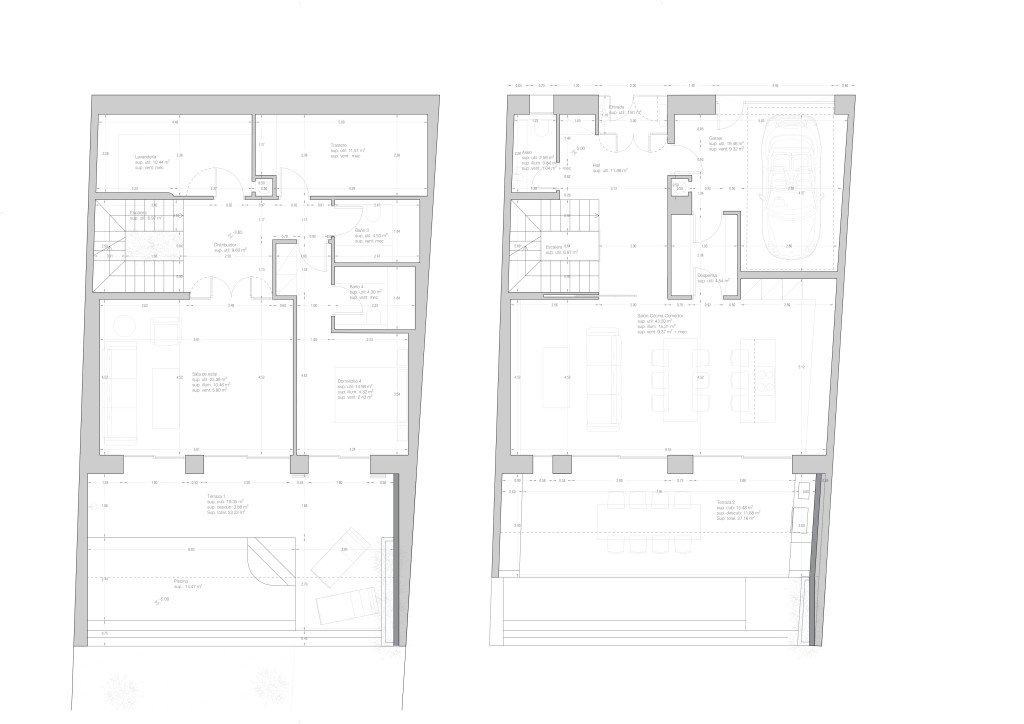
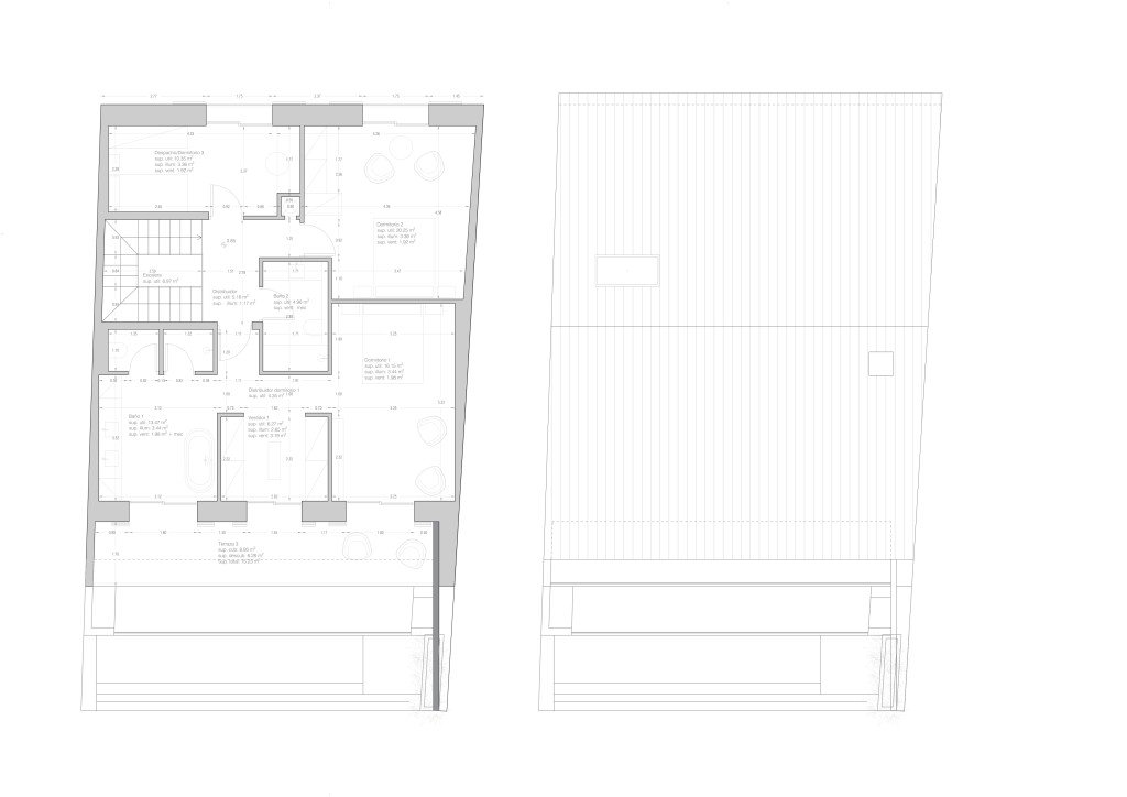
Dies ist eine ausgezeichnete Gelegenheit, ein Dorfgrundstück mit einem genehmigten Projekt für ein nach Süden ausgerichtetes Haus mit vier Schlafzimmern zu erwerben. Das Design erstreckt sich über drei Ebenen, integriert einen technischen Bereich und bietet eine bebaute Gesamtfläche von ca. 240 m². Es verfügt außerdem über eine geräumige Terrasse von ca. 80 m² sowie einen privaten Swimmingpool.

Das Projekt umfasst außerdem eine Garage, einen Carport, eine Klimaanlage mit Wärmerückgewinnung, eine Zentralheizung und ein modernes Design.

Der Preis beinhaltet sowohl das Grundstück als auch das Projekt und die Baugenehmigung, sodass der Bau umgehend beginnen kann. Wenn Sie weitere Informationen benötigen, stehen wir Ihnen gerne zur Verfügung.

Kontaktieren Sie uns jetzt, um weitere Informationen zu diesem außergewöhnlichen Dorfhausprojekt im Herzen von Campanet zu erhalten.

Campanet ist ein bezauberndes mallorquinisches Dorf mit buntem Dorfleben. Sie finden hier authentische Bars, Restaurants, Wochenmärkte, Einkaufsläden uvm. In der Nähe befindet sich das Naherholungsgebiet Ses Font de Ufanes mit Waldgebiet, einem Bach und Wasserquellen.

Für weitere Informationen kontaktieren Sie bitte BALEARIC PROPERTIES ESTATE AGENTS MALLORCA per e-Mail oder rufen Sie unser Büro in Pollensa an (+34) 971 53 29 84 - Weitere Einzelheiten zu anderen Häuser zu kaufen in Campanet oder mehr zum Thema Haus kaufen in Campanet.

"Balearic Properties ist seit vielen, vielen Jahren auf den Balearen geschäftlich aktiv. Der Hauptsitz des Unternehmens befindet sich auf Mallorca. Im Laufe der Jahre haben wir ein beispielloses Immobilienportfolio passend zu jedem Budget aufgebaut, dadurch haben wir bereits 10.000 Kunden bei der Suche nach ihrem neuen Zuhause auf den Balearen erfolgreich geholfen. Unsere Team für Projektleitung und unser Bauunternehmen bieten eine einmalige Auswahl an schlüsselfertigen Luxusvillen an, angepasst an allen individuellen und persönlichen Bedürfnissen. Wir bieten auch über 200 Ferienvillen an, die unseren Kunden ein unvergessliches Urlaubserlebnis garantieren.

Balearic Properties ist der exklusive Partner von Savills auf Mallorca. Das Unternehmen bietet seinen Kunden eine über 20-jährige Erfahrung auf dem hiesigen Immobilienmarkt. Unser Portfolio umfasst alle Arten von modernen Villen, Landhäusern und trendigen Bauvorhaben in den besten Wohnlagen von Mallorca. Balearic Properties ist auch spezialisiert auf Immobilien am Wasser und große Anwesen. Das Unternehmen bietet einen kompletten, umfassenden Immobilienservice einschließlich Immobilienverwaltung, Ferienvermietung, Projektmanagement und Rechtsberatung."

Immobiliendetails

  • Nutzungsart
    Wohnen
  • Objektart
    Stadthaus
  • Hauptobjektart
    Haus
  • Vertragsart
    Kauf
  • Objektzustand
    Projektiert
  • Baujahr
    2023
  • Anzahl Schlafzimmer
    4
  • Anzahl Badezimmer
    3
  • Anzahl separate WC
    1
  • Anzahl Parkflächen
    2
  • Wohnfläche (ca.)
    194 m²
  • Grundstücksfläche (ca.)
    282 m²
  • Nutzfläche (ca.)
    243 m²
  • Anzahl Etagen
    4
  • Ausblick
    Berge
  • Anbieter-Objektnummer
    CAM20525CAM0

Preise & Kosten

  • Courtage
    Keine besondere Angabe.

Ausstattung

  • Klimanalage
  • Swimmingpool

Standort & Lage

07310 Campanet · Campanet · ESP

Die genaue Anschrift erfahren Sie vom Anbieter

Anbieter

Logo von Balearic Properties Real Estate S.L.
2025 Best Property Agents

Ansprechpartner

Verbraucherhinweis

Widerrufsbelehrung des Anbieters

Gilt nicht für Wohnraummiete in Deutschland

Widerrufsrecht für Verbraucher

Sie haben das Recht, binnen vierzehn Tagen ohne Angabe von Gründen diesen Vertrag zu widerrufen. Die Widerrufsfrist beträgt vierzehn Tage ab dem Tag des Vertragsabschlusses.

Um Ihr Widerrufsrecht auszuüben, müssen Sie uns (Balearic Properties Real Estate S.L., Via Pollentia 3, 07460 Pollença, Fax: 0034-971534506, Tel: 0034-971532984, caroline@balearic-properties.com) mittels einer eindeutigen Erklärung (z. B. ein mit der Post versandter Brief, Telefax oder E-Mail) über Ihren Entschluss, diesen Vertrag zu widerrufen, informieren. Sie können dafür das beigefügte Muster-Widerrufsformular verwenden, das jedoch nicht vorgeschrieben ist. Zur Wahrung der Widerrufsfrist reicht es aus, dass Sie die Mitteilung über die Ausübung des Widerrufsrechts vor Ablauf der Widerrufsfrist absenden.

Folgen des Widerrufs

Wenn Sie diesen Vertrag widerrufen, haben wir Ihnen alle Zahlungen, die wir von Ihnen erhalten haben, einschließlich der Lieferkosten (mit Ausnahme der zusätzlichen Kosten, die sich daraus ergeben, dass Sie eine andere Art der Lieferung als die von uns angebotene, günstigste Standardlieferung gewählt haben), unverzüglich und spätestens binnen vierzehn Tagen ab dem Tag zurückzuzahlen, an dem die Mitteilung über Ihren Widerruf dieses Vertrags bei uns eingegangen ist. Für diese Rückzahlung verwenden wir dasselbe Zahlungsmittel, das Sie bei der ursprünglichen Transaktion eingesetzt haben, es sei denn, mit Ihnen wurde ausdrücklich etwas anderes vereinbart; in keinem Fall werden Ihnen wegen dieser Rückzahlung Entgelte berechnet. Haben Sie verlangt, dass die Dienstleistungen während der Widerrufsfrist beginnen soll, so haben Sie uns einen angemessenen Betrag zu zahlen, der dem Anteil der bis zu dem Zeitpunkt, zu dem Sie uns von der Ausübung des Widerrufsrechts hinsichtlich dieses Vertrags unterrichten, bereits erbrachten Dienstleistungen im Vergleich zum Gesamtumfang der im Vertrag vorgesehenen Dienstleistungen entspricht.

Muster-Widerrufsformular

(Wenn Sie den Vertrag widerrufen wollen, dann füllen Sie dieses Formular aus und senden Sie es zurück.)

An Balearic Properties Real Estate S.L., Via Pollentia 3, 07460 Pollença, Fax: 0034-971534506, caroline@balearic-properties.com
Hiermit widerrufe(n) ich/wir (*) den von mir/uns (*) abgeschlossenen Vertrag über den Kauf der folgenden Waren (*)/die Erbringung der folgenden Dienstleistung (*)


- Bestellt am (*)/erhalten am (*)

- Name des/der Verbraucher(s)

- Anschrift des/der Verbraucher(s)

- Unterschrift des/der Verbraucher(s) (nur bei Mitteilung auf Papier)
- Datum


(*) Unzutreffendes streichen

Hinweis auf die Möglichkeit eines vorzeitigen Erlöschens des Widerrufsrechts

Ihr Widerrufsrecht erlischt, wenn wir unsere Leistung vollständig erbracht haben und mit der Ausführung der Leistung erst begonnen haben, nachdem Sie Ihre ausdrückliche Zustimmung gegeben haben und gleichzeitig Ihre Kenntnis davon bestätigt haben, dass Sie Ihr Widerrufsrecht bei vollständiger Vertragserfüllung durch uns verlieren.

Impressum Balearic Properties Real Estate S.L.
VERTRETUNGSBERECHTIGTE/R
Balearic Properties Team


Via Pollentia 3 3
07460 Pollença
ESP
Tel.: 0034-971532984
E-Mail: caroline@balearic-properties.com
Fax: 0034-971534506
Homepage: http://www.balearic-properties.com

ZUSTÄNDIGE AUFSICHTSBEHÖRDE
Amtsgericht Palma de Mallorca

HANDELSREGISTER-EINTRAG
Amtsgericht Palma de Mallorca, Mallorca 3 Mercantil, 1/2006/6.386,0


UST-ID-NUMMER
CIF: B57416752

ZUSÄTZLICHER TEXT
Verbraucherinformationen Online-Streitbeilegung gemäß Art. 14 Abs. 1 ODR-VO: Die Europäische Kommission stellt eine Plattform zur Online-Streitbeilegung (OS) bereit, die Sie hier finden: http://ec.europa.eu/consumers/odr
Anbieter kontaktieren

AGB, Datenschutz & Verbraucherhinweis wurden gelesen und akzeptiert.